
Elyse Roter
Colorado State University 2022 - 2024
Interior Architecture and Design
![]()

Elyse Roter
Colorado State University 2022 - 2024
Interior Architecture and Design



By dismantling the artificial boundaries separating science and art, collaborations can flourish, enhancing comprehension of community challenges and fostering involvement in seeking solutions in a dynamic, complex yet organized manner.
The collaborative practices of art and science present an unprecedented opportunity to generate new forms of knowledge. The concept of synergy, along with the environmental museum, will be inspired by these concepts yet expanded upon and innovated into something spectacularly new. The importance of the relationships and dependencies between art and science, society and environment, and human relationships will be highlighted through interactive exhibits. In each of these modes, art can build bridges to bring community members into conversations involving science, helping position them as knowledge holders and contributors when it comes to giving back to their environment.







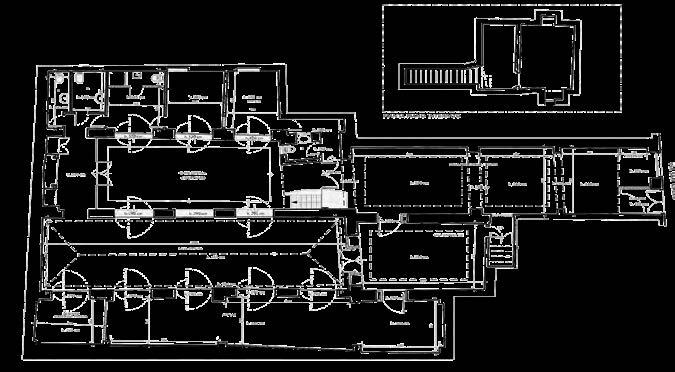
Upon entering, visitors will appreciate the seamless connection between galleries, highlighted by the open vault ramp leading below and the soaring mezzanines above. The spaces will overlap and interact in a dynamic, complex yet organized manner.







WONDER ENTRANCE / RECEPTION
SUPPORT RAMP
MYSTERY - TRANSLUCENT GLASS IN
STALLATION
INVOLVEMENT - INNOVATION STATIONS
INSPIRATION - TEXTILE GALLERY
RESTORATION - GREENHOUSE WALK
THROUGH
COMMUNITY LOCAL ARTIST POP UPS
SATIATION - ECO CAFE









Model Building -
Individuals naturally seek to understand their environment; if it seems confusing, they may develop resentment. To enhance comfort during the learning experience, the museum will build on visitors’ prior knowledge, starting with broad topics and focusing on key takeaways. Emphasis will be placed on visual learning rather than just text-based content.



Capability -
For individuals to feel capable, they need mental restoration, which can be fostered by environments that alleviate mental fatigue. The “Greenhouse Walkthrough” will serve as a transition point between informational galleries, offering refreshing natural landscapes that provide a subconscious break from focused attention, allowing for mental detachment and recharging.
A sense of purpose drives meaningful action, helping individuals thrive in environments that promote authentic participation. As users explore galleries, they will be encouraged to visit “ideation stations” to interact and develop their proposals further.


Locally Sourced -
An increasing awareness of environmental concerns, including food miles and carbon footprints, is prompting consumers to favor restaurants that prioritize local agriculture. By sourcing ingredients locally, restaurants can minimize the environmental impact associated with transportation and actively contribute to sustainability efforts.

The “client” request is to develop the project of a restaurant as a design restaurant and bar establishment, which should be distinctly different from and have a higher quality level of finishings than standard restaurants, with accurate details and particular attention to design and image. Attention to colors is requested along with the use of unique materials, accurate finishes and furnishings for the bar and the dining/dinner area, along with attention to details in lighting design.

HOSPITALITY
LOCATION: FLORENCE, ITALY
Athos Restaurant will serve Mediterranean-inspired cuisine in an earthy and sophisticated environment. The name “Athos” is derived from Greek mythology, alluding to the giant who had created Mount Athos. The interior will adhere to it’s name as the theme consists of Earth’s different rock formations. This restaurant is a high class evening to late-night establishment including a lounge, bar, and an outdoor courtyard. cultural, artistic, and design initiatives.


The concept for this restaurant is derived from the attributes of the different layers of the earth; core, mantle, and crust. Each separate area of the restaurant will represent a layer starting with the core as the reception, the mantle as the main dining area and bar, and the outdoor courtyard as the crust. The interior is meant to give customers a unique and intriguing experience while also achieving a serene feel that connects individuals back to Earth’s beauty.









