

FOLIO
By Elvyn Ayers


















DETAILED DRAWINGS
01






Project: 24C

Project: 24C is one of the projects I handled as a drafter in Studio Ganda after my 3 months probationary period, located in Medan, Indones a. They passed the project to me to let me hand e the detai ed drawings. Although I didn’t start the project, I made a lot of contr butions to this project which led this project to be in the building phase after I had stopped working for Studio Ganda at that time A lot of changes have been made after its initial design, which made me proud to be part of the team.




Project: 38F-I







Sewing Memories
Sewing Memories is my f nal project for my nterior Design class. To achieve th s, I used the different methods such as us ng a cafeteria that spreads the food’s smel throughout the building as a way to remind the people nside to eat during eating times such as breakfast or lunch. Its design is made to help with people memory impairments The design is built to focus on the main senses of a human being to help with relearning to remember dai y tasks.
Although I designed it based on re earning and finding a way to help people with memory impairments remember such things, it is stil a theory if that wil work Because the research I have found throughout the internet has very little evidence on helping people with memory impairments, some has shown progress with people with less heavy impairments







3D MODELINGS






Sewing Memories
The modeling for Sewing Memories is referenced from my shop in Medan, Indones a, renovated into my final project As this place is one of the places I know best, this is the perfect ocation for me to design the interior. The mode is started from scratch, measuring each column and wa l length so I can design the place accurately I didn t choose realism as my choice of render because this theme felt more fitting to me as a art related project










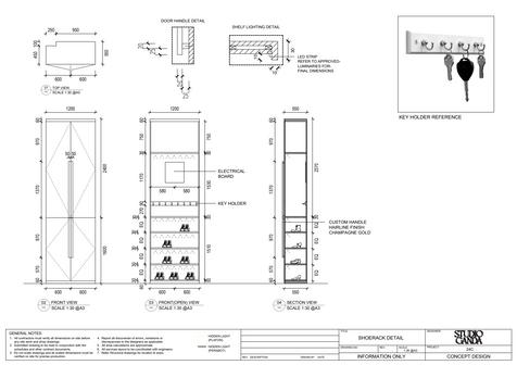
Uniskai
Uniskai is one of the projects done in Medan, Indonesia that has been completed after I had helped with the project when I was still in Studio Ganda It is also the on y project which heavily re ies on my 3D model in axonometry view, to help both the client and the construction worker make the Furnitures and changes in the design. Before me, the head of architect didn’t think of making something like this. It is only implemented recently as one of the requirements of the detailed drawings after this project




This picture to the right shows the axonometry view of the office tab e. Genera ly, it he ps construction workers understand the base structure of the furniture, so that they can build it correctly Although this can be shown to the client as well if want to know how it is made as wel .






Personal Projects
Th s is my personal project. I had the privilege to take some time to mode and renovate my own apartment. The design is catered to my mom, who s the primary person to live in this apartment The design cho ces are based of beach-related theme, which led me to white, gray, and blue co or palate My reference design for these s ocean rustic themed. Similar to Santorini’s base co or, but has a darker blue t nt instead of the light blue t nt.






In the end, the overal space design has been changed because of eff ciency and design related issues This led me to change a lot of the Furnitures, as most of the Furnitures here are custom made Generally, it s more spacious than the previous design, albeit its des gn felt a little bit lacking in my opinion. Although in the end, I haven t started the renovat ons because of certain issues, I am stil proud of myself that I have renovated my own apartment
03 SOFTWARE EDITING






Personal Projects
Highschool Horror Trailer competition
My first experience w th video editing competition in my ife was this event. t was a very fun experience for me and my friend It was a group of 2 people against the other competitors A though my group ranked 2nd in the event, am still proud of my work as it is my first time to ever learn Prem ere Pro and After effects on the fly The title of the video is cal ed The Living Dead, posted on my YouTube channel for viewing.


University Exhibition Trailer
The exhibition is a mandatory activ ty in my university for the f nal project It was a group effort by my batch of students of 2019 I was tasked with making the trai er for the exhibit on to show all the student’s work. It was real y unfortunate that it ended up being a online exhibition Th s project was one of my favorite activities since t requ res a group effort to make the whole th ng to work. My role in this tra ler making is to manage and arrange the video in Adobe Premiere Pro and a few Adobe After Effects tinker ng.



Highschool Yearbook
This project was actua ly something I didn t expect to happen in my life At that time, I was joking around and critiquing the previous’ high schoo yearbooks I even jokingly said to the pr ncipal of the school that I can make a more unique yearbook than the other students
Surpris ng y, Me and my friends got accepted as the group to create the high school yearbook, which in the end, actually started to see the fun and the harsh job as a designer I p aced it here because it is part of the reason why I am a designer here today.




PHOTOGRAPHY









Photography is one of my hobbies that I haven’t real y improve a ot but would ove to try and learn a lot of things related to photography I didn t know I liked photography unti I was in my university, at the year 2022


Specifical y, my exhibition and my graduate year left a big impress on that photography might be fun for me to try. I started try ng to learn online to see more about photography and decided to get a camera to try things out.








A Short Cinematic Trailer - Lingering Connections
https://youtu.be/sGjxkH9wag8
University Exhibition Trailer - SENSO TRAILER 1
https://youtu.be/lJZuKnNQkKY
University Exhibition Trailer - SENSO TRAILER 2
https://youtu.be/6ba8aYLYOAI
University Exhibition Trailer - SENSO TRAILER 3
https://youtu.be/hQbl3j92pZ4


