PORTFOLIO ELISE SNICK
DUTCH ENGLISH
2nd semester exchange
BACHELOR 2019-2022
KU Leuven, faculteit architectuur.
MASTER 2022-2024
KU Leuven, faculty of architecture.
HSLU Lucerne, faculty Technology & Architecture.
![]()
2nd semester exchange
BACHELOR 2019-2022
KU Leuven, faculteit architectuur.
MASTER 2022-2024
KU Leuven, faculty of architecture.
HSLU Lucerne, faculty Technology & Architecture.
OPTIMIZING SPACE WITH A STRUCTURAL FOCUS

RHINO, AUTOCAD AND ADOBE PHOTOSHOP
"Maximizing Space Efficiency: Designing a Required Number of Parking Spots and an Event Hall on a Limited Surface"





DIAMONDS, AUTOCAD AND ANALOGUE-DRAWN DETAILS
"Resilient Design: Exploring Load Shedding, Structural Connections, and Stability Plans with Construction Calculation Software"





EXPLORING IMAGE-MAKING PROGRAMS/ METHODS FOR VISUAL EXPRESSION AND INTERPRETIVE COMMUNICATION

Creating an image around the theme: "Cast, Carved and Wrapped."



The images portray an interpretation of the Ledeberg service centre designed by the architectural office De Vylder-Vinck-Taillieu, with a focus on highlighting the perceived 'low fidelity' elements.






A liberal exploration of a text focused on a psychiatric institution.
DECONSTRUCTING JUN'YA ISHIGAMI: ANALYZING REALIZATIONS, METHODS, AND ASPIRATIONS TO IMPLEMENT ITS FUNDAMENTAL PRINCIPLES IN A FRAGMENT.

A literal model exercise that incorporates the structural intricacies of Jun'ya









Excerpt: A Personal Interpretation of the work of the Japanese architect. Focusing on Height, Elegance, Seamless Interior-Exterior Connection, and Detail.
CARTOGRAPHIC RESEARCH, MAPPING, FLORA DOCUMENTATION, AND DESIGN PROPOSAL FOR THE SCHELDE


By mapping vital factors like soil type, cultivation, pH, salinity and more, and employing tactile exploration techniques such as creating a herbarium and sketching at ten designated points, we aim to gain an in-depth understanding of the river area.







As a result of the research, the decision was made to revisit a historical housing model from the Middle Ages in the Netherlands: the Terp. This approach involves creating an artificial mountain that seamlessly integrates houses. On the north side, ample space is dedicated to the growth of forests, while the south flank provides an ideal environment for cultivating grapes. Most housing units are connected and standardized, featuring their own patio.
Throughout the design process, ecological considerations took center stage. There were greenhouses to facilitate a local and sustainable food supply chain, implemented water reuse systems, harnessed solar energy, and designated car-free zones. This visionary master plan offers a utopian vision for harmonious living in flood plains, where ecological balance and human needs coexist seamlessly.
THE TERP WITHIN THE SELECTED SETTING: AVELGEM'S FLOODPLAIN















URBAN PROJECT IN GHENT: GARAGE BOXES, SOCIAL HOUSING, AND CITY GARDENS AS THE CONTEXT


ADOBE PHOTOSHOP, ADOBE INDESIGN, AUTOCAD, ANALOGUE DRAWINGS AND MODEL
Core themes for me were: softening and greening, giving space to local residents by creating a social urban program.


The cultural center houses a youth club, spacious ateliers, music rehearsal rooms, a multifunctional banquet hall, and a cozy café. These interconnected spaces all revolve around an intimate courtyard, fostering a strong sense of community. Notably, a large kitchen serves as a vital link between the café and the banquet hall, facilitating seamless transitions and interactions between the two. As the project looks to the future, it envisions the transformation of surrounding parking spaces into inviting city gardens, integrating nature into the urban landscape. Above these gardens, a multifunctional structure presents potential opportunities as a hub for ivy plants, storage facilities, playgrounds, and bicycle shelters, adapting to the evolving needs of the community.




The 14-story building is designed around the various stages of a funeral, with each floor serving a specific purpose. On the ground floor, close friends and family of the deceased are welcomed, marking the initial stage of the burial process and providing access to the crematorium located on the below-ground level. As mourners ascend, they encounter a serene circular walkway for reflection. Integrated within the walls of the tower is the columbarium, offering a resting place for their loved ones after the ceremony. Silent rooms along the way provide quiet sanctuaries for contemplation and gathering of thoughts. The top floor features thoughtfully designed ceremonial spaces that capture natural light, creating an atmosphere of hope and solace for the grieving process.
Inspired by the structure of water towers, the building embraces a circular corridor design, enhancing a lean and robust load-bearing central core. To further emphasize the analogy, the larger ceremonial rooms are strategically positioned on the top floors, evoking the imagery of a water reservoir. In order to preserve the integrity of the core and its ascending oblique columns, aa decision was made to hang the facades and external floors of the walkabouts using cables.


AUTOCAD, ADOBE PHOTOSHOP, RHINO


The integration of structure and essential elements like water supply, heating/cooling, chimneys, fire safety, etc., was crucial in this excercise.






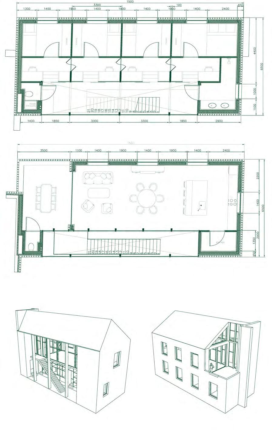
STUDYING THE PRIMARY STRUCTURE OF FLEMISH TYPOLOGIES: FOCUS ON THE L-FORMED FARMSTEAD AND APPLYING THIS TO THE RENOVATION DESIGN OF A SCHOOL IN BAVEGEM.



The search for a "Plato" model in the L-shaped Flemish farmstead involved meticulous analysis of a vast array of examples.





A generic synthesis of the examples in a model.


Renovation project of Bavegem's primary school and presbytery, the decision was made to create an interconnected roof structure ( based on the previously studied typology) that unifies the buildings while preserving their respective protected facades..








REDEFINING URBAN DYNAMICS WITH HISTORICAL CONSCIOUSNESS
HISTORIC MAP (former wall area)

BERLIN 2022

LAND USE MAP

PICTURES OF THE SITE





AUTOCAD, ADOBE PHOTOSHOP, STUDIO MAPBOX
Investigating the Current Scenario, Intricate Historical Significance, Prevailing Urban Planning Policies, and Diverse Functions within the Area.


The significant feature of the site was the presence of massive, vacant fire walls. This evoked an analogy with bookshelves, it was important to retain their visual and memorial impact while making them accessible. The decision was made to frame the area, creating a sheltered and self-contained space within the bustling cityscape. However, maintaining a connection with the surroundings was crucial, achieved by keeping the ground floor open and designing it as galleries referring to a Greek colonnade or stoa.
The site operates as a connected cultural center, designed to appeal to both Berliners and visitors. Each building's design aligns with its specific purpose, including an auditorium, media library, audiovisual facilities, and a traditional library with underground book storage. The "frame" houses various amenities such as food stands, temporary exhibitions, and historical explanation plaques, referring to the current situation. Existing buildings, such as the triangle office building and the corner building housing ateliers and classrooms, were integrated to complete the overall walkabout experience. While all structures are interconnected, each maintains its unique identity and materials.
The garden plan creates an open atmosphere that highlights the individual buildings within secure and framed landscape. The design harmonizes with Berlin's city culture and ensures the continuity of Friedrichstrasse for slow bus traffic. Two sunken plazas were included, one as an added entrance to the audiovisual building and assisting with the framing of the site, while the other provides more privacy. Additionally, a hardened plaza serves as a gathering space.










AUTOCAD, ADOBE PHOTOSHOP, ANALOUE MODEL
Crafting the Individual Building Identities while fostering their function, position and integration in the connected cultural haven.




AUTOCAD, ADOBE PHOTOSHOP, ANALOUE MODEL
'Weiterbauen' within a historically protected monastic site, continuing the architectural narrative with respect for its heritage.





AUTOCAD, ADOBE PHOTOSHOP, ANALOUE MODEL
"The monastic sleeping cell"- reimagined and integrated into the new architectural intervention.


