

Portfolio
ELODIE BOURGOIN
o u t m e
I’mElodie!A4thyearinteriordesignstudentatThomas JeffersonUniversity.Ibelievethatdesignismorethan aesthetics it’saboutcreatingspacesthattellastory andenhancehowweexperiencetheworld.
Throughmyacademicjourneyandhands-on experience,I’vedevelopedakeeneyefordetailanda commitmenttothoughtful,immersivedesign.
Theworksinthisportfolioareareflectionofmygrowth asadesigner,demonstratingabalanceofinnovation andfunctionality,withafocusonuserexperience, materiality,andspatialcomposition.I’mexcitedtokeep pushingcreativeboundariesandshapingmeaningful spacesthatinspire.

Audiology
Office Growing Connections Bottega Tessile
o n t e n t s 01 02 03 04 05 06
CleanAir
TaskForce Shared Roots Art
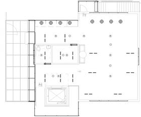
Echo Center Audiology Office
Specialized Medical Office
Tasked with designing a specialized medical office in Philadelphia. The organization of the space is inspired by the workings of the inner ear where sound waves are received and processed. The intent is to make the users of the space circulate similarly to how sound moves in towards the most private organ being the cochlearrepresented on the floor plan as the hearing testing booth. The curved walls emulate the organic qualities of the inner ear and add an interactive aspect to the space.
Softwares used: Rhino, Revit, Enscape, Illustrator, Photoshop




REFLECTED CEILING PLAN

FLOOR PLAN




PATIENT HALLWAY PERSPECTIVE

RECEPTION ELEVATION



AXONOMETRIC
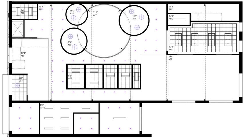
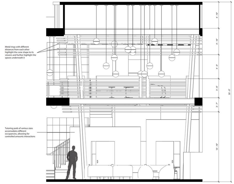
Growing Connections Mentor Center
Senior Child Mentor Center
Tasked with designing a community mentor center in South Philadelphia. The organization of the project is centered on the interactions between children and seniors, and capturing their moments together. A central, light-filled space that becomes the heart of the mentoring center celebrates their relationship. Inspired by the overlaps of the age groups and the bond they develop, a spatial language of overlapping circles, cylinders, and cones create the world they share. This program of the space was developed through the collaboration of occupational therapy students to ensure every users needs are met.




Softwares used: Revit, Enscape, Photoshop, Illustrator
FRONT ENTRANCE
PROCESS WORK
FRONT ENTRANCE PERSPECTIVE




SECOND FLOOR PLAN
FIRST FLOOR PLAN
FIRST FLOOR RCP
SECOND FLOOR RCP

AXONOMETRIC





CRAFT ROOM PERSPECTIVE






DETAIL SECTION OF CUSTOM ELEMENT
SECOND FLOOR PERSPECTIVE
GREAT ROOM PERSPECTIVE
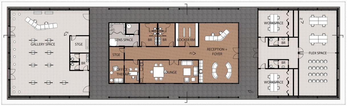
Bottega Tessile
Italian Artisanship Center for Young Adults with Neurodiversity
Tasked with designing an artisanal craft and design center for people on the autism spectrum in Testaccio, Rome. The site is an ex-slaughterhouse - Ex-Mattatoio - that was heavily used during the Roman times and is now a historic part of the city. The goal of this project is to create a communal space where the attendees are free to explore and foster their passion for design. The space strives to teach its users the skills of problem solving and thinking out topics through artisanship. This includes creating designs and doing minor repairs to furniture and clothing. The space itself will draw from traditional materials used around the city and will reflect the history of its location by showing all of the original structure.
Softwares used: Revit, Enscape, Photoshop, Illustrator, InDesign
KEY WORDS:
PASSION
The defining word of the space, the users are free to express themselves through their creativity in a welcoming and supportive environment
COMMUNITY
There will be an emphasis on socialization with the types of works they produce and an exposition space to put their works on display


The materials used in the space will be a more modern interpretation of its surroundings so its users do not not feel alienated TRADITION



SITE AXONOMETRIC

EXPLODED AXONOMETRIC

AXONOMETRIC
EXTERIOR ELEVATION






WALKWAY PERSPECTIVE



P1 EXTERIOR PERSPECTIVE
P2 INTERIOR PERSPECTIVE
P4 STUDIO PERSPECTIVE
P3 RECEPTION PERSPECTIVE
P5 GALLERY PERSPECTIVE
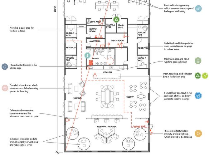
Clean Air Task Force
LEED/WELL Initiative Focused Office
The task was to design a sustainable office for the Clean Air Task Force, a U.S.-based organization founded in 1996.
Dedicated to reducing air pollution and mitigating climate change, the organization focuses on research, advocacy, and policy development related to clean energy and air quality. To reflect its mission, the office design concept is inspired by biomimicry, specifically the use of extremophiles in bioremediation to filter pollutants from the environment. This research informs the design through the principles of screening and filtration.
Softwares used: Revit, Enscape, Photoshop, Illustrator, InDesign, some explorations in VR





SUN STUDIES


RECEPTION PERSPECTIVE

FILTER DETAIL





REFLECTED CEILING PLAN



ACOUSTICS AND THERMAL COMFORT

WORKSPACE COLLAGE


OPERABLE WINDOW DETAIL


LATITUDINAL SECTION

WORSPACE PERSPECTIVE





WORKSTATION DETAIL + POWER/DATA PLAN





CODE PLAN + LEED/WELL POINTS






TOILET SIGNAGE
COLOR PALETTE AND BIOPHILLIC POINTS

















Shared Roots: Fostering a Connection between Children and Nature
Community Center for the Youth
Tasked with designing a community center for Frankford, Philadelphia with a neurodiverse focus The design focuses on creating open, fluid spaces that seamlessly connect indoor and outdoor environments, rooting the building in the essence of nature By integrating natural elements, sustainable materials, and communitycentered layouts, the building has spaces that invite the outside in fostering interaction, well-being, and a sense of belonging.
Softwares used: Revit, Enscape, Photoshop, Illustrator, InDesign
































Visual Journaling Sketches
The course, taken while studying abroad in Rome, is designed to help students practice expressing their understandings of architecture and space using visual notes as the form of com all drawings made using 2B or 4B pencils







Black & White Photography -
Fleeting Moments
This course introduced the technical aspects and controls of a manual 35mm camera together with silverbased black & white film development and printing methods. all photographs shown have been taken, developed, and printed by myself










