Elli Känsälä Arkkitehtuuriportfolio 2024

Page 1

ARKKITEHTUURI PORTFOLIO

ELLI KÄNSÄLÄ

SISÄLLYS

01 02 03 04 05 06 07 MINUSTA DAY CARE CENTER VERSO ARKKITEHTUURIVISUALISOINTI ASUINKERROSTALO HIETAKALLIO EKOTEHOKAS PIENTALO TERASSI SUNDBERG TALO LAUHA

ELLI KÄNSÄLÄ

Rakennusarkkitehtiopiskelija

Oulun Ammattikorkeakoulu

Yhteystiedot

kansala.elli1@gmail.com

0445577110

LinkedIn

www.linkedin.com/in/ellikänsälä-726213285

Graphisoft Archicad

Autodesk Revit

Autodesk AutoCAD

Adobe Photoshop

Twinmotion

Lumion

SketchUp

Word

Powerpoint

Excel

Hei! Olen Elli, 22-vuotias kolmannen vuosikurssin rakennusarkkitehtiopiskelija Oulun ammattikorkeakoulusta.

Olen luonteeltani ystävällinen, analyyttinen sekä luova Työntekijänä olen täsmällinen ja itseohjautuva. Vapaa-ajalla pidän piirtämisestä, valokuvauksesta sekä luonnossa liikkumisesta.

Arkkitehtisuunnittelussa minua kiinnostavat luonnon ja rakennetun ympäristön kohtaaminen, ekologiset ja kestävät materiaalivalinnat sekä saavutettavuus.

Kokemukseni aiemmissa työtehtävissäni ovat kehittäneet minua nopeaan oppimiseen, ongelmanratkaisuun ja tiimityöskentelytaitojen hyödyntämiseen. Nämä taidot ovat auttaneet minua myös opinnoissani.

Tässä portfoliossa on kokoelma valittuja projektitöitäni näiden kuluneiden opiskeluvuosien varrelta. Kiitos mielenkiinnosta!

01

KOULUTUS

2021 - nykyhetki

2021

TYÖKOKEMUS

5-8/2023

6/2022

6-7/2020 6-7/2019

6-7/2018

LISÄKOULUTUS

2023

2021

KIELITAITO Suomi

Englanti Ruotsi

RAKENNUSARKKITEHDIN TUTKINTO

Oulun Ammattikorkeakoulu

YLIOPPILAS

Kaustisen musiikkilukion yleislinja

KAHVILAN KAUSITYÖNTEKIJÄ

Cafe Donner & Smokery Oy

PUUTARHAN KAUSITYÖNTEKIJÄ

Järvelän Puutarha Oy

KAUPAN KAUSITYÖNTEKIJÄ

Osuuskauppa KPO

HAUTAUSMAAN KAUSITYÖNTEKIJÄ

Kaustisen ja Ullavan seurakunta

HAUTAUSMAAN KAUSITYÖNTEKIJÄ

Kaustisen ja Ullavan seurakunta

Hygieniapassi

Työturvallisuuskortti

Äidinkieli

Kiitettävä

Kohtalainen

CV

02

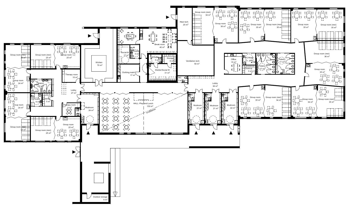
DAY CARE CENTER VERSO

The kindergarten’s base material is solid wood CLT. Exterior is coated with larch planks that are left to grey freely as they age, giving a calming and natural touch to the building.

Different sized square windows are playfully scattered around the facades, creating interesting views, lights and shadows from the children’s perspective.

Architecture of the kindergarten takes inspiration from the nearby building’s shapes while respecting the surrounding nature.

Eco friendly, long lasting and serviceable materials, as well as accessibility have been the base values in the creation of this space-effective and harmonious kindergarten.

In Architectural Building Design of Public Buildings –course we were assigned to plan a kindergarten in Höyhtyä, Oulu, near the beautiful and serene scenery of Lintulampi –park

ARKKITEHTUURIVISUALISOINTI

Arkkitehtuurivisualisointi –kurssin projektityönä oli visualisoida Public Building –kurssilla tehtyä päiväkotia ulkokuvan ja sisäkuvan kautta käyttämällä apuna Adobe Photoshop -sovellusta. Alla ensimmäisen kuvan lähtötilanne, eli muokkaamaton kuva sellaisenaan Twinmotionista. Yllä lopputulos eli muokattu kuva. 03

LEIKKIKENTÄLLÄ

Halusin alkaa elävöittämään kuvaa pihalla leikkivillä lapsilla ja heitä valvovilla aikuisilla. Hain netistä mrcutout -sivustolta kuvaan sopivia ihmishahmoja, latasin ne ja vein Photoshopiin. Skaalasin ja sommittelin hahmot kuvaan. Seuraavaksi tein jokaisen hahmon tasolle varjot ja siirsin ne omiksi tasoikseen. Muokkasin varjoja kääntämällä ne hahmojen peilikuviksi ja vääristämällä niistä pidempiä ja samansuuntaisia kuin kuvan alkuperäiset varjot. Lopuksi alensin vielä varjojen ja hahmojen peittävyyttä, jotta ne sopisivat kuvaan paremmin . Säädin vielä kuvan kirkkautta, kontrastia, värikylläisyyttä ja lämpötilaa.

VALOPUU

Aloitin muokkauksen viemällä kuvan Photoshopiin. Sitten loin uuden tason valoja varten. Valitsin sivellintyökalun, ja sille sopivan keltaisen värin. Siveltimen peittävyys oli tässä kohtaa 100%. Säädin siveltimen kokoa hehkulampun kokoiseksi, ja painoin jokaiselle lampulle keltaisen valopilkun. Halusin vielä lisätä laajemmalle alueelle himmeämpää hehkuefektiä, joten valitsin siveltimen uudelleen, ja säädin sen peittävyyden 30% . Säädin taas siveltimen kokoa, tällä kertaa isommaksi kuin itse lamppu ja lisäsin hehkun samalla tavalla kuin valopisteet aiemminkin. Sitten valitsin tasolle tehtyjen valojen asetukseksi ”kova valo”, joka teki hehkuefektistä realistisemman näköisen. Lopuksi säädin vielä koko kuvan lämpötilaa, värikylläisyyttä ja kirkkautta omaan tyyliini sopivammaksi.

Lähtötilanne: Muokkaamaton kuva Twinmotionista.

04

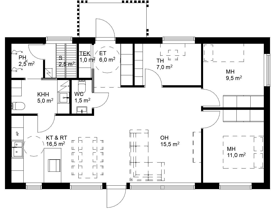
ASUINKERROSTALO AS OY HIETAKALLIO

Asuinkerrostalojen rakennussuunnittelun perusteet –kurssin projektityönä oli suunnitella Oulun Hietasaareen vuoden 2025 asuntomessualueelle kaavoitettu terassitalo.

Suunnittelemani rakennus mukailee tontin muotoja mahdollistaen jokaiselle kattoterassille kauniisti avautuvat näkymät Hartaanselälle. Julkisivujen päämateriaalina toimii hiekanvärinen tiili.

Kerrostalo sisältää paljon yhteisiä tiloja asukkaille, mm. etätyötilan, kerhohuoneen, talopesulan ja yhteisen saunan

Haastetta suunnitteluun toi kaavan vaatimus rakennuksen

terassoitumisesta. Tällöin jokainen kerros on keskenään erilainen ja yksilöllisesti suunniteltu.

Yllä pohjapiirros tyypillisestä asuinkerroksesta, 2. krs. Oikealla esimerkkejä eri pohjaratkaisuista

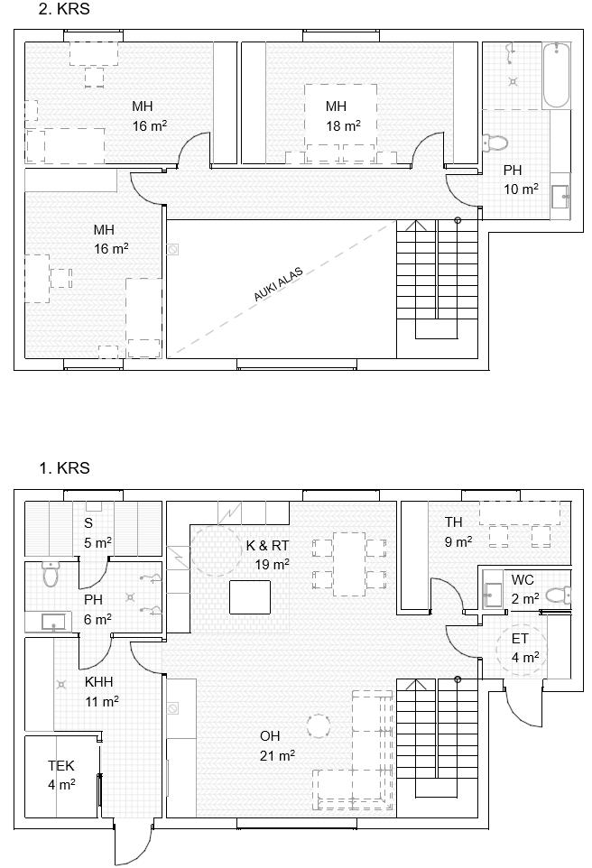
EKOTEHOKAS PIENTALO

Ekotehokas rakentaminen –kurssin projektityönä oli suunnitella neljän hengen ryhmässä ekotehokas pientalo. Minun vastuualuettani oli sisävisualisointikuvien tekeminen ja pohjapiirustusten suunnittelu yhdessä ryhmän toisen jäsenen kanssa.

Päädyimme tekemään mahdollisimman kompaktin ja yksinkertaisen muotoiset pientalon pohjapiirustukset säästääksemme ylimääräisistä kulmista aiheutuvat kustannukset ja minimoidaksemme hukkaneliöt. Rakennuksen runkorakenteeksi valikoitui kotimainen CLTmassiivipuu ja kattoa peittää aurinkopaneelit. Talo sijoittuu tontille niin, että olohuoneen ja keittiön ikkunat päästävät etelästä paistavan auringonvalon ja lämmön tehokkaasti sisään suurista ikkunoista.

Pientalon työhuone muuntautuu tarvittaessa helposti myös vierasmakuuhuoneeksi tai lastenhuoneeksi Tekninen tila on sijoitettu eteiseen liukuovien taakse.

05
Pohjapiirustus: Elli Känsälä ja Minttu Kotka

06

TERASSI SUNDBERG

Minua pyydettiin suunnittelemaan lisäosa vanhan terassin jatkeeksi. Tontti sijaitsee kauniilla ja rauhaisalla paikalla puoliksi metsän, puoliksi läheisten tallien hevoslaitumien ympäröimänä.

Suunnittelun edetessä tärkeimmiksi toiveiksi muodostuivat laajat oleskelutilat kesäjuhlien viettämistä varten, tilava katettu kesäkeittiö grillaukselle sekä tilavaraus paljulle, jota voisi käyttää myös talvella.

Eri oleskelualueiden selkeää rajaamista varten terassin eri osiot ovat askelman korkeuseroilla toisistaan. Porrastuksilla sekä vinoilla kulmilla saadaan myös luotua terassille kiinnostavia muotoja. Terassin askelmien sivuille on asennettu LED-valonauhat tunnelmavalaistuksen luomiseksi sekä helpottamaan liikkumista hämärän tullen. Samalla vanhaan terassiin yhdistettiin suuret portaat, jotka helpottavat kulkua niin sisätiloihin kuin uudelle terassillekin.

Terassin toteutti ulkopuolinen rakennusfirma kesällä 2022 piirustuksieni mukaan. Vinoviivoituksella merkitty osa on olemassa olevaa terassia, vaakaviivoituksella merkitty uutta.

07

TALO LAUHA

Rakennussuunnittelun perusosaaminen 1 –kurssin tehtävänantona oli suunnitella Oulun Varpukankaalla sijaitsevalle tontille puurakenteinen pientalo kuvitteellisen rakennuttajaperheen toiveita mukaillen ja alueen kaavaa noudattaen.

Rakennuttajaperheeseen kuului kaksi aikuista ja kaksi alakouluikäistä lasta.

Rakennuttajaperheen toiveet:

” - Kaksikerroksinen talo murretulla harjakatolla

- Vaalea ulkoverhoilu & ruskeaa rimoitusta

- Vaalea sisustus, korostuksena tumma saarekekeittiö

- Työhuone alakerrassa

- Pesutiloihin kylpyamme ja kaksi suihkua

- Avokatto tuomaan korkeaa tilaa

- Portaiden ja yläkerran kaide lasia

- Suuret ikkunat, mutta myös yksityisyyttä

- Kattamaton terassi jossa palju

- Moderni ja avara takapiha

- Autotalli ja –katos ”

Tekemäni suunnitelma toteuttaa kaikki rakennuttajaperheen esittämät toiveet.

Talo Lauha on rakennusarkkitehtiopintojeni ensimmäinen itsenäisesti suunniteltu projekti.

kansala.elli1@gmail.com

0445577110 ELLI KÄNSÄLÄ

Turn static files into dynamic content formats.

Create a flipbook
Issuu converts static files into: digital portfolios, online yearbooks, online catalogs, digital photo albums and more. Sign up and create your flipbook.