Ellen Lin Waterloo Architecture Portfolio

Page 1


E L L E N L I N

August 19, 2024

To Whom It May Concern,

I am writing to provide a reference for Ellen Lin, who held the position of Co -op Architectural Visualizer with Copper Bay Homes Ltd. from May 06 to August 23, 2024. During her time with us, Ellen consistently demonstrated a high level of skill, profession alism, and dedication to her work.

Ellen's primary responsibilities included creating, editing, and rendering 3D models using SketchUp and Lumion for client review. She also played a significant role in developing visual marketing and sales packages, which featured interior renders and exte rior site plans for a proposed townhouse development. Her technical rendering and Photoshop skills are exceptional, allowing her to produce high- quality work that consistently met or exceeded client expectations.

Throughout her co - op term, Ellen performed exceptionally well. Her work received very positive feedback from clients, which is a testament to her attention to detail and understanding of design visualization. Ellen's strong work ethic was evident in her pu nctuality, reliability, and ability to work independently with minimal supervision. She was always willing to assist other team members, and her strong communication skills made her a valuable asset to our team.

Ellen showed significant growth in her rendering skills during her time with us. The improvement in the level of detail and quality of her renders was noticeable, reflecting her commitment to learning and professional development.

Based on her performance and personal qualities, I have no doubt that Ellen will excel in any role that requires stakeholders to visualize proposed designs. I highly recommend Ellen for future employment and am confident she will be a valuable addition to any team.

Should you require any further information, please feel free to contact me at brent@copperbayhomes.co m.

Sincerely,

Copper Bay Homes Ltd.

+1 (647) 208-7891

Weston Consulting 201 Millway Ave, Suite 19, Vaughan, ON, L4K 5K8

April 18th, 2023

To whom it may concern,

I am writing this reference letter to recommend Ellen Lin for any future opportunities. She worked as a Student Urban Designer at Weston Consulting between January and April of 2023. Ellen joined our urban design team as part of her co-op term and has made an outstanding impact during her term. In my role as Design Director, I oversaw and managed her work on a frequent basis.

Throughout her time with us, Ellen has been an asset to our team, improving her abilities and producing highquality work. Ellen has shown a consistent and rigorous commitment to her responsibilities, exhibiting an eye for detail and an exceptional ability to solve problems. She has been a great team player, helping out wherever she could.

Ellen's main responsibilities during her co-op term were to provide massing ideas, outline drawings, updating 3D models, creating report figures, and assisting on technical Draft Plans. She performed these tasks with the utmost care and attention to detail, and her contribution improved the quality and timeliness of our deliverables. Ellen has consistently shown commitment to her work and delivered reliable, high-quality results. She has been a valuable team member at Weston, and I confidently recommend her for future opportunities. Her hardworking and talented nature is an asset to any organization. I highly recommend Ellen for any future positions and am happy to provide additional information if needed.

I can be reached at 905.738.8080 x238 or smorgan@westonconsulting.com

Sincerely,

VAUGHAN 905.738.8080 x238 TORONTO 416.640.9917 x238 WESTONCONSULTING.COM

Hello!

My name is Ellen Lin and I am currently a third year student at the University of Waterloo’s School of Architecture. I am interested in an 8-month co-op position from January 2025 to August 2025. I love creating and as an architecture student, I am fascinated by the architect’s role in shaping the world and designing for people’s experience in the surrounding environment. Trying my hand at new challenges and learning new skills pique my interest as I am eager to advance in my journey as a designer.

In my leisure time, I enjoy drawing, digital art, painting, crocheting, and watching dramas and animations.

E L L E N L I N

TORONTO, ONTARIO

SUMMARY OF QUALIFICATIONS

• Strong understanding of design development, Adobe Suite, 3D visualization, and drafting software learned through design projects at University of Waterloo’s School of Architecture

• Excellent collaboration skills developed through group design projects at school and working in teams at previous jobs and extracurriculars

• Able to learn and adapt to new concepts and retain information quickly

EXPERIENCE

CONTACT: e56lin@uwaterloo.ca

LINKEDIN: www.linkedin.com/in/ellen-lin-0b3b80253

ISSUU: https://issuu.com/ellen_lin_/docs/2024_ellenlin

SKILL SET

• Rhino

• AutoCAD

• Revit

• Sketch Up

• Lumion

• Photoshop

• Illustrator

• InDesign

• Enscape

Architectural Visualizer | Copper Bay Homes | Waterloo | May 2024 - Aug 2024

• Microsoft Office

• Grasshopper

• MicroStation

• QGIS

• GenAi Stable Diffusion

• Model making

• Handdrafting

• Hand sketching

• Digital Painting

• Created and prepared high quality drawings for an architectural package that exceeded client expentations

• 3D modeled and rendered interior exterior views of residential projects using SketchUp, Lumion, and Photoshop

• Collaborated with interior designer, senior architect, and project manager to prepare marketing package

Junior Architectural Designer | Baldassarra Architects | Vaughan | Sept 2023 - Dec 2023

• Drafted site plans and elevations on AutoCAD and Photoshop based off senior architects’ sketches

• 3D modeled and rendered exterior views of commercial building projects using SketchUp and Lumion

• Developed and prepared construction details, fire route diagrams, parking layouts and site visit reports

Student Urban Designer | Weston Consulting | Vaughan | Jan 2023 - Apr 2023

• Created massing ideas, outline drawings, updated 3D models, created report figures, and assisted on technical draft plans using SketchUp, AutoCAD, MicroStation and Adobe Suite

• Worked with the design team to complete design packages and briefs

Co-Owner of Sweet Blossom Studios | Etsy | Online | Sept 2020 – Sept 2022

• Launched, managed and promoted an online sticker and art prints business in a 3 person team, resulting in 346 sales

• Designed stickers and art prints sold on the shop

• Communicated with customers to sort out issues with orders and shipping

EDUCATION

• University of Waterloo School of Architecture 2021 – Currently Enrolled

- Candidate for Bachelor of Architectural Studies, Honours Co-op

• Earl Haig SS Claude Watson Visual Arts Program 2021

AWARDS AND CERTIFICATIONS

• WHMIS 2015 Certification 2022

- Workplace Hazardous Materials Information System, training to ensure safety in the workplace

• University of Waterloo President’s Scholarship Recipient 2020 – 2021

- Rewarded for achieving an over 90% admission average

• Received Licensed 2 Learn Certification 2016

- Tutoring License given by a Toronto based student success organization

C

O N T E N T S

COMMUNITY BUILT BY THE LAND

PROGRAMS:

ILLUSTRATOR

PHOTOSHOP

INDESIGN

Course: 3A Design Studio

Supervisor: Adrian Blackwell David Fortin

Date: April 2024

Community Built by the Land aims to challenge the colonial methodology behind residential design by integrating one of the demands set by AAHA, First Nations Home Building Lodges. This project hopes to expand on what it means to be home, and aims to provide the necessities and liberty to the residents to be able to live according to their own means, and engage with their surrounding landscape.

Worked in collaboration with Kayla Estacio and Linda Pan

MATERIAL LIFE CYCLE DIAGRAM

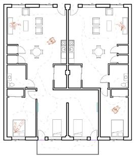
APARTMENT 1 TYPICAL FLOOR PLAN

SINGLE BEDROOM UNIT

TWO BEDROOM UNIT
TWO BEDROOM UNIT

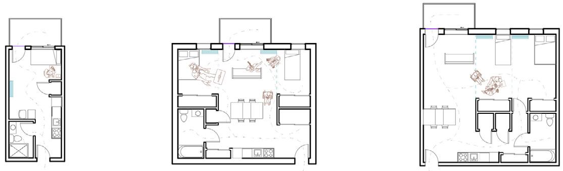
MID-RISE COOPERATIVE TYPICAL FLOOR PLAN

ELEVATION A

2 TWO BEDROOM UNITS
THREE BEDROOM UNIT AND SINGLE BEDROOM UNIT

SECTION A THROUGH MID-RISE COOPERATIVE

Courtyard Shielded From
Hill Water Runoff
Pinnacle Hill
Bioswale and Pedestrian Path

Cohousing for Intergenerational Families

UNIT PLAN

SECTION B THROUGH LOW-RISE COHOUSING

Southern Sun
noon, June 21st
noon, Dec 21st
Towards Pinnacle Hill
Low-rise Cohousing
Low-rise Cohousing
Permeable Residential Road
Conestoga College Blvd.
Bioswale
Runoff from Roof
District Heating
Shared Residential Road Shielded from Northern Winter Wind by Foliage

OMNIUM GATHERUM: A GATHERING FOR ALL

PROGRAMS:

RHINO ILLUSTRATOR

PHOTOSHOP INDESIGN

Course: 2A Design Studio

Supervisor: Adrian Blackwell

Date: December 2022

Omnium Gatherum is an affordable residential building that houses retired seniors and students seeking low-cost housing. By bringing together elders and students, a relationship is formed between the two generations, which contributes in overcoming the issue of senior loneliness. Omnium Gatherum focuses connecting people with one another, with nature, and with their own creativity.

Worked in collaboration with Matylda Schwartz

LIBRARY VIEW

GREENHOUSE VIEW

O A S I S

PROGRAMS:

RHINO ENSCAPE ILLUSTRATOR PHOTOSHOP

Course: 1B Environmental Supervisor: Anna Beznogova

Date: April 2022

Located in Cambridge, Ontario, this workshop is a sustainable reuse project. The workshop is made of local limestone, refurbished materials from the previous structure from the site, and is a zero-waste design. With the use of compostable toilets, solar panels, and rainwater system, the Oasis Workshop is a eco-friendly house for designed for two inhabitants.

Worked in collaboration with Dorcas Ng

SITE MAP

SYSTEMS DIAGRAM

SOUTH ELEVATION

P R O F E S S I O N A L W O R K

MAPLEWOOD MODEL FLOOR PLANS
MAPLEWOOD MODEL RENDERED PLANS

18 Ernst Townhouses Interior Renders

Programs: Lumion, SketchUp, Photoshop

Commercial Building Renders

Programs: Lumion, SketchUp, AutoCAD

In collaboration with Dwayne Warren and Yuting Cai

East Elevation for Weston Consulting - April 2023

Programs: Microstation

EMAIL: e56lin@uwaterloo.ca

LinkedIn: www.linkedin.com/in/ellen-lin-0b3b80253

Turn static files into dynamic content formats.

Create a flipbook
Issuu converts static files into: digital portfolios, online yearbooks, online catalogs, digital photo albums and more. Sign up and create your flipbook.
Ellen Lin Waterloo Architecture Portfolio by Ellen Lin - Issuu