Elizabeth Anderson Interior Architect and Designer
Resume
Education
University of Arkansas May 2025
Bachelor of Interior Architecture and Design
General Business Minor
Santa Reparate International School of Art
Study abroad program in Florence, Italy
Summer 2023
Skills/Software
Adobe Illustrator Enscape
Adobe InDesign Microsoft Excel
Adobe Photoshop Microsoft PowerPoint
AutoCAD Microsoft Word
Autodesk Revit Rhino
Bluebeam
Interior Design Experience Additional Interests/Awards
Gray Design Group - St. Louis, MO
Interior Design Intern
Summer 2024
• Experience with finish specification sets, full CD sets, interior renderings from various phases of design, finish selection and creating material palettes, updating plat books, and creating standard Revit furniture families.
Trivers - St. Louis, MO
Interior Design Intern
2022-2025 (Seasonal)
• Experience with RDS, finish zones, and master finish schedules for various projects including Washington University Arts and sciences and Rend Lake Resort Renovation
• Helped create preliminary concepts for multiple projects located in Jefferson County, IL and Waxahachie, TX.
• Consistently maintained and updated the material library. Created a system to differentiate sustainable and harmful materials.
Teaching Assistant - Fayetteville, AR
Materials and Assemblies, History of Interior Design
• Helped organize flow of class throughout the semester.
2023 and 2025
• Monitored attendance, assisted with grading, and helped create PowerPoints and tests for class
Club Lacrosse - University of Arkansas
President (2024/2025 season), Vice President (2023/2024 season)
2021 - 2025
• Organized regional tournaments and all travel details for the spring season.
• Collaborated with University of Arkansas Recreation.
• Organized team events outside of practice.
• Helped to create the first annual alumni game for graduated club lacrosse players.
• Communicated with officers for their roles including social media, fundraising, and apparel chairs.
Alumni Scholars Program - University of Arkansas
• Scholar and member of the Student Alumni Association
Honors College - University of Arkansas
Fay Jones School of Architecture and Design
2021 - 2025
2021 - 2025
• Honors capstone exploring design representations and client versus designer relationships.
Charles C. Hill, Jr. Endowed Scholarship in Architecture and Design
University of Arkansas
2023 and 2024 Recipient
• For a rising third, fourth, or fifth-year student who demonstrates potential in the design professions.
Convene: Coffee and Wine Bar
Fall 2024
Next: Thrive-Architecture and Design Office
Fall 2023
Neighborhood Tools: Tool Library
Spring 2024
Reisen: Independent Living-Adaptive Reuse
Spring 2023
Forward Psychology Office
Fall 2022
01 Convene
Fall 2024, Professor Charles Sharpless
Convene is a coffee and wine bar designed for people to gather and converse. The design is inspired around the thousand year old Japanese art of wood joinery. With the goal of sustainability in mind, designing for disassembly is a great starting point. By creating elements that can be taken apart, the building shell is left largely untouched and the elements can be reused.
The main material for these elements is oak. In this setting, the oak wood is used to create shelving walls that stretch a large portion of the longitudinal wall and wrap around the restrooms in the center of the building. The strength of oak is ideal when taking into consideration the weight it will hold and the durability needed to disassemble the shelving and reassemble in a new setting. Thinking farther ahead, this material and method of joinery is a great option for the end of its life. If left unstained, oak can decompose, be cut up or ground, or re-purposed in a new way.












Joinery Experiments
The first half of this studio was focused on experimentation with our given material. These are a few early explorations in wood joinery techniques to create frames.


Final Wood Joinery Experiment
The final frame was created using a mitered/dado connection. The inside of the frame holds an insert created from sawdust and natural glue.
Linear Spatial Diagram
in Adobe Illustrator
Refined Blocking Diagram
Created in Adobe Illustrator
The circulation of the space is designed by using linear elements to create movement. A few examples of this concept are the shelving wall and banquet seating.
To maintain consistency and reflect order, a gridded pattern is repeated throughout many of the areas. The grid represents solidity, dependability, and heart. In many cities, a grid is used to design the layout of streets and buildings and creates familiarity and flow. Whether guests are coming to study, meet with a book club, connect with an old friend, or enjoy a beverage, this set up has it all.


Cross Section Perspective, created in Revit and Adobe Illustrator




02 Next Thrive
Fall 2023, Professors Jinoh Park and Lucky McMahon
Building Model created in Revit
The office is separated into two halves, with the elevator lobby in the middle. The south side is primarily for employees and design staff. It includes individual workstations, private offices, huddle rooms, the innovation lab, and a large resource center and material library. The north side is geared towards the public. This is where the reception, large conference room, meeting rooms, training classroom, work cafe, and pickleball court are located. There are many visitors coming through the office every day, whether that be clients, vendors, or deliveries. This separation helps limit distractions on the employee side.
Concept
NEXT is a design firm with locations and clients located all around the world. Their main areas of focus are corporate workplace, healthcare, education, aviation, hospitality and sports. Although this office is located in Dallas, NEXT has 27 locations around the world. Employees often work for various offices both virtually and in person. Collaboration is a daily endeavor. The main needs for this office are collaboration, room for growth, variety, and productivity. Both the daily life of the user, and the future of the company are considered in this design.
This specific location of NEXT is the primary workspace for 46 employees.
- (31) Architecture and Design Staff
- (7) Support Team
- (8) Management
*NEXT also provides workstations for traveling employees from sister offices.
Project Brief




Diagram: Orange tones for general work areas, blue tones for all other areas. Diagrams created in Adobe Illustrator
Zoning Diagram: Same color coordination as bubble diagram. Diagrams created in Adobe Illustrator




Work Cafe and Meeting Room Progress Renderings, created in Revit
Training Classroom and Grand Stair


Mezzanine Reflected Ceiling Plan
Created in Revit and Adobe Illustrator
Wave Line “S”
Main Level Reflected Ceiling Plan
Created in Revit and Adobe Illustrator

Rendered Longitudinal Section A, created using Revit, Enscape, and Adobe Illustrator
Longitudinal Section A, created using Revit and Adobe Illustrator
Cross Section B, created using Revit and Adobe Illustrator
Cross Section C, created using Revit and Adobe Illustrator
























03 Neighborhood Tools
Spring 2024, Professor Jennifer Webb
Building Model created in Revit
The concept of this library is connectivity. Connection in important to establish within the Fayetteville community, as well as using the library as a way to create this connection. Not only is the library as a whole is a connection point, but this concept comes to life within the design of the library.
The entire program is designed around a connecting pathway between floors, going up walls, circling around and within every usable space of the library. This is functional to distinguish work areas, allow changes in flooring material, and as a way finding tool for guests to navigate the library. This pathway encourages exploring different areas of the library and lets people know that the program continues up and the library is more than the collection on the first level. People can come to workshops, use tools with supervision, congregate in the hospitality area, or read about tools and the community of Fayetteville.
The program also includes a donation area to collect gently used tools for others to utilize. Everything within this library encourages establishing connections with people and focuses on the main goal of building a community.
Statement of Concept

Material Palette
Created using Mattoboard and Adobe Photoshop








Ceiling/Air-Flow Diagram


This millwork is the reception/check-in/ out desk on the first level of the tool library. It is build as one permanent unit, not to be moved. The ceiling element above outlines the shape of the millwork below. The lowered desk height is for accessibility, as well as a space for employees to sit at desk height. The rest of the unit is at typical standing height. The countertop is made of zinc with a medium patina. It is wrapped around a plywood center.
The top is resting on a second sheet of plywood to allow a reveal between the counter and the body of the millwork. The body is composed of 3 main layers. the inner framing, the plywood shell, and the charred wood slats on the outer most layer. Wood and zinc are both considered natural and healthy materials. There is a 3 1/2” to kick at the bottom with integrated lighting.






Bar, Books, and Research


Administration/Office



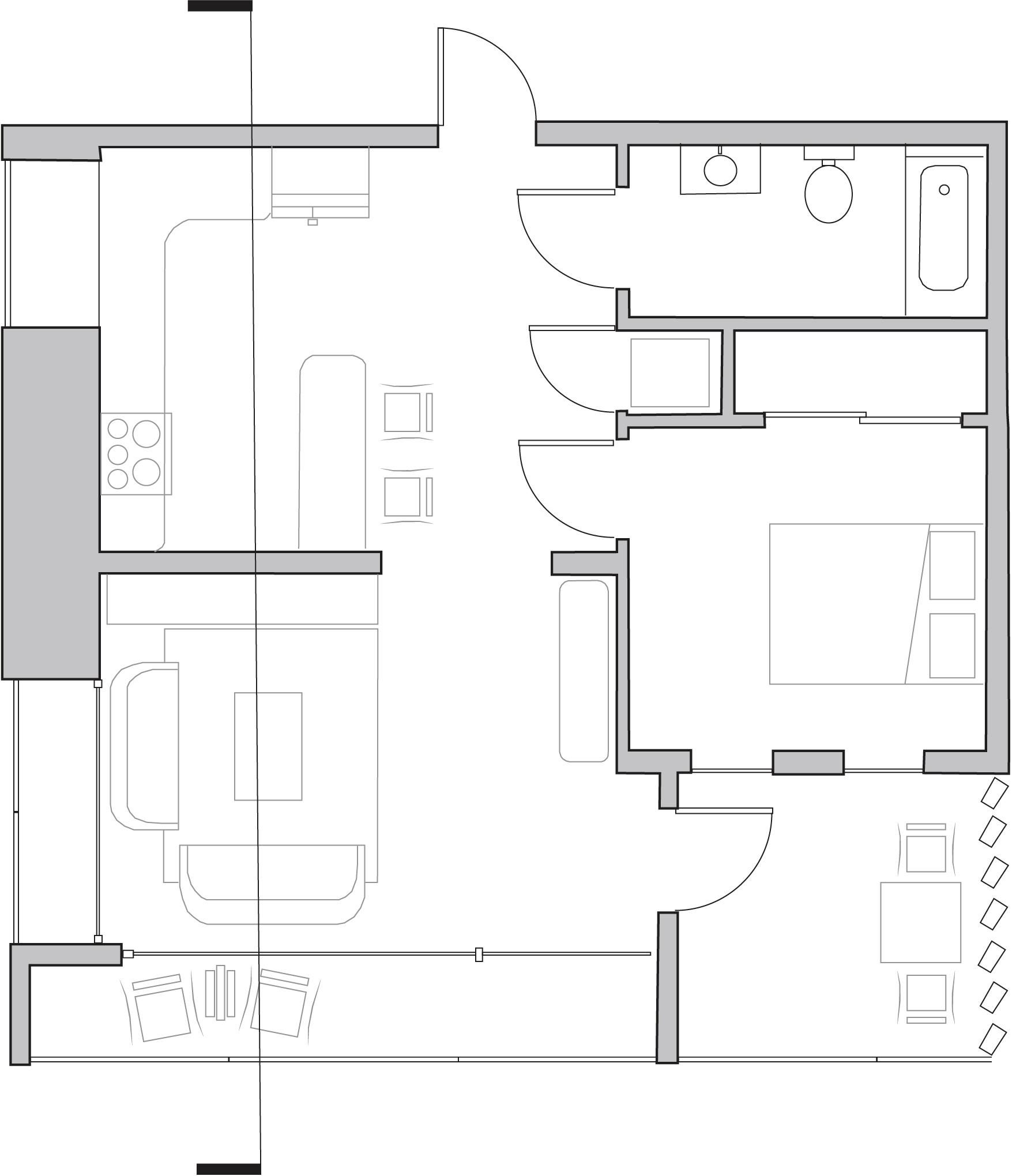
04 Reisen
Spring 2023, Professors Lynn Fitzpatrick and Lisa Skiles
Building Model created in Revit
Located in Paderborn, Germany, this independent living facility encourages socializing, discovering new things, and embracing the journey of life.
The lobby features an art gallery to draw residents to the central core of the building and help encourage them to leave their suites. This area can also be appreciated from the upper level as a sculptural, subtractive body. The gallery is designed around a ramp. There are built-in benches in the interior walls to offer seating for viewers.
Also located in the lobby is a restaurant that is open to the public. There are two types of residences in Reisen, a single unit and a double. Each type has a balcony and a porch like entrance. The idea of these spaces is to encourage residents to leave the walls of their room.
The building for this project is over four hundred years old. Before its current use as an independent living facility, the building was used as a monastery. Maintaining the integrity of this historic building was a major goal throughout the design phases; from working around existing conditions in programming all the way through specifying material finishes.
Adaptive Reuse









Level 1 Plan, created using Revit and Adobe Illustrator



Section A
Created with Adobe Illustrator

Exploded Axonometric Created with Adobe Illustrator

Perspective View
Plan, created with Adobe Illustrator
Axonometric View
Created with Adobe Illustrator


Entrance Perspective
Created with Revit and Enscape
A priority in the design of Reisen is to encourage community. This includes fostering connections with the public population of Paderborn. There is a separate entrance for the public to access the restaurant that is located on the rear of the building and adjacent to the restaurant. The restaurant is open for the public to enjoy alongside residents as a way of integrating the outside community with the residents. The axonometric view above shows a unique corner of the building where three groups of people meet: residents, staff members, and the outside community. The challenge of connecting groups while maintaining enough visual privacy played a pivotal role in the programming and design of this space.

Section Cut
Created with Adobe Illustrator

Created using Revit and Adobe Illustrator

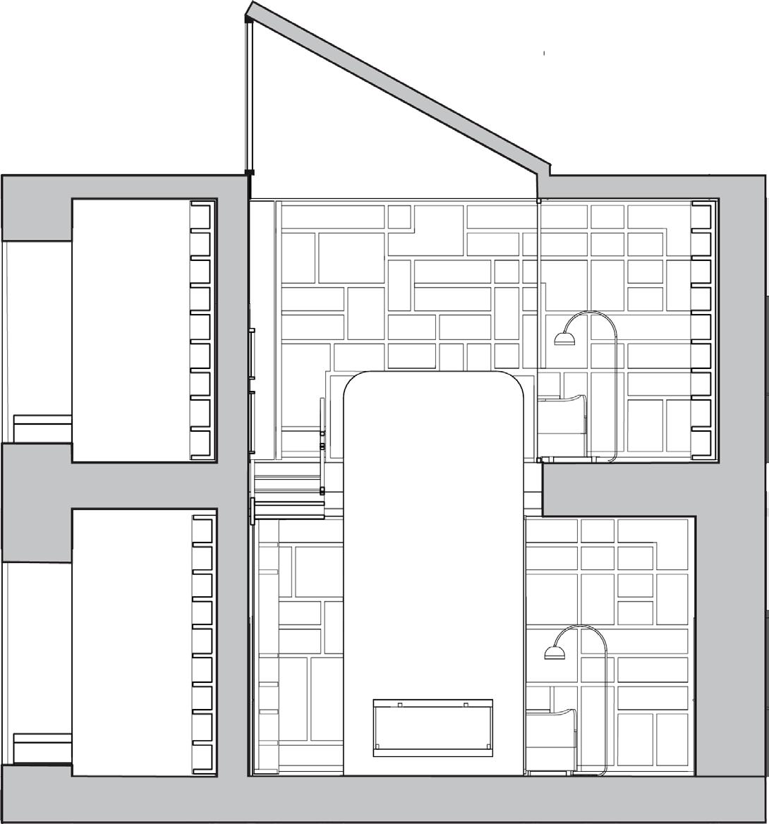
The single bedroom suite separates the kitchen from the living room and features two balconies. One of the balconies is shared with the neighboring suite, but maintains privacy with a slatted wood partition. This is another example of encouraging connection while maintaining privacy.



The two bedroom suite design features a primary bedroom and a guest bedroom that can also be utilized as an office if desired by the resident. The guest bedroom has a murphy bed for flexibility and a sliding wall in place of a traditional door. The bathroom can be accessed through both bedrooms. Or, for maximum flexibility, if the second bedroom is utilized as an office, guests do not have to walk through the primary bedroom.



A two-story library is on the south side of the courtyard. The space features custom bookshelves, lounge seating, as well as work spaces. The hallway adjacent to the courtyard on both levels integrates into the library. There is shelving for additional book storage as well as built-in seating in the windows. The decision to integrate the hallway into the library aligns with the concept of journey. The photo wall pictured next to the staircase depicts past photos of the building throughout history.
The section cut below displays the skylight and custom bookshelves.


Perspective
with Revit and Enscape
05 Forward Psychology
Fall 2022, Professors Lynn Fitzpatrick and Marjan Miri

Below is a project from earlier in the semester. The assignment begins with two-dimensional design and progresses to a three-dimensional version. This pattern and design is integrated into the psychology office. It takes the form of a transparent wall in the staff courtyard.

2D Painted Pattern
Forward Psychology is located in Butte County, California. It is the site of a devastating, fourteen day fire which occurred in 2018. The fire had a big impact on the community of Butte County. Homes, forests, and community buildings were all lost. Many people felt as if they were living the same tragic day over and over again. We were tasked with creating a psychology office located in this county to help treat victims of the disaster. A concept board below depicts images and articles about the event.

3D Dimensional Pattern
Hand-cut and Painted








The plan is laid out in three main sections: staff, youth patients, and adult patients. There are two entrances, one being staff only. The layout provides all patients a level of privacy and comfort, while providing an enjoyable environment for staff who will typically be there forty hours a week. There is parking on all sides of the building.





(314) 606-9857 ega00006@gmail.com References: Kimberly Furlong, kfurlong@uark.edu Charles Sharpless, cgsharpl@uark.edu