SP '23 Elise Yumin Park Architecture Portfolio

Page 1

New York Institute of Technology | B. ARCH ‘25 EYP E L I S E Y U M I N P A R K

Series

Projects dedicated increasing interest and visibility in specific topics.

Built objects conceptualized, then realized to existence.

Research Built
Theory
of theoretically driven projects aiming to promote social equity and community for all.
01 02 03
Communitates Plures Aunts et. Uncles x Snipes Juneteenth Pop-Up Sketching & Renders Productive Frictions: E³ Unhouse for the Unhoused ‘Oversky’ Graphics Housing for the Community, By the Community [p. 01] [p. 21] [p. 23] [p. 09] [p. 05] [p. 17] [p. 15] [p. 13] et al. collaborative Self Motivated axu studio | Dongsei Kim & Kendal Eastwood An Atypical Housing Complex to Benefit the Unhoused Framlab | Bildmuseet, Fast Company 01 07 08 03 02 06 Mapping the DMZ axu studio | Dongsei Kim & Julia Andor 04 SAY IT LOUD - Washington DC Exhibition Beyond the Built Environment | Pascale Sablan + Researchers 05

Communitates Plures

Housing for the Community, By the Community.

ARCH 301 : Edgar Papazian | Individual | Forest Hills, NY | 2022

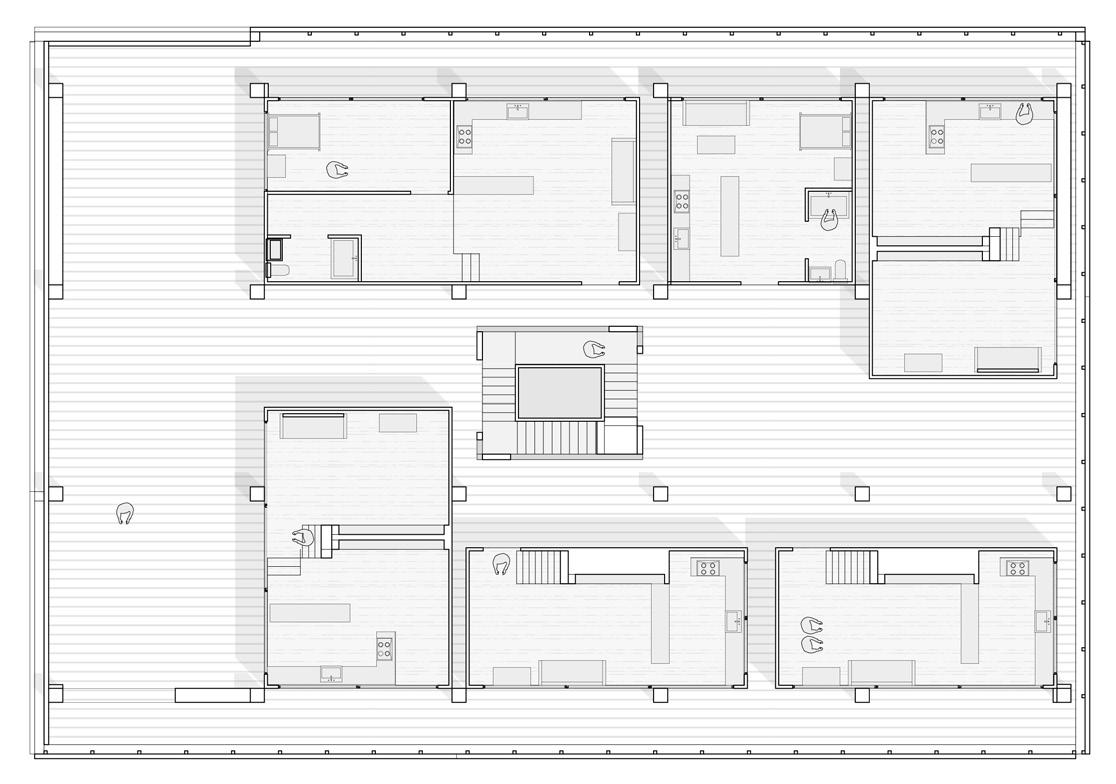
Communitates Plures deals with how a community can be built by a community. Using a super structure of GLT and CLT columns, beams and panels, an environmentally sustainable and conscious building is able to be formed. By allowing each individual resident or family to choose the layout of their pre-fabricated unit, one is able to acheive a high level of autonomy and customization, taking into consideration the backgrounds of all of the residents set to exist in this new housing com-

plex. 65% affordable, low income housing coupled with 35% unhoused individuals being homed makes for an apartment that gives back to the community and those who live in Forest Hills. Community benefitting programs like shared communal gardens, fridges, spaces and more allow each resident to feel at home in the larger scheme of things. Each floor houses its own little community, which lends itself to the title of the complex, Communitates Plures meaning ‘multiple communities’ in Latin.

01
Theory

Cross laminated timber (CLT) is utilized as the floors throughout the building, while glue laminated timber (GLT) acts as the secondary and tertiary structural components. An elevator and stair system runs through the center of the building, anchoring the edifice to the site.

[p. 01]

Level 01Plan Configuration

Each floor plan and community level of the building holds a completely different layout, allowing for the apartment units to be chosen by each resident. Depending on the socio-economic status, lifestyle necessitations and space requirements, each family or individual can pick the unit that best fits their needs. The structure is built first and the apartments are pre-fabricated offsite and pulled into the site based on which layout the resident decides upon. The building, as a whole, utilizes natural light through the erection of a Bendheim wall system, which seperates the exterior from the interior, whilst still allowing for the wanted outside elements to puncture throughout the structure. The studio and one bedroom layouts utilize a 10’ ceiling while the two bedroom and three bedroom apartments utilize a double height 20’ space, which makes each individual apartment apparent from the outside of the building.

[p. 02]
Level 07 Plan Configuration
[p. 03]
[p. 04]
Community space on top floor. Second level of two bedroom apartment unit.

Unhouse for the Unhoused

An Atypical Housing Complex to Benefit the Unhoused

ARCH 201 : Gertrudis Brens | Individual | Siteless | 2021

Creating communities for the unhoused to reassimilate into society is an important aspect in the journey to combat this humankind-wide epidemic. Drawing upon theories proposed by Shigeru Ban and Peter Eisenman, the Unhouse for the Unhoused aims to provide a new, dynamic form of shelter for those who find themselves without housing. The complex is formed from the idea that typical housing formats can be reimagined and reconfigured to specifically

meet the needs of a group of people that necessitates it the most. By creating a completely reconfigurable matrix of modules for unhoused individuals, a sense of autonomy and self sufficiency is able to be recognized and achieved, furthering their reassimilation into society. Each module within the structure of beams is able to be moved based on the individual’s wants and needs, and the housing complex as a whole can be moved to meet specific requirements.

02 Theory

HOUSE II EISENMAN ARCHITECTS, 1970

Peter Eisenman, an architectural theorist, created a series of houses that aimed to reevaluate the theme of a typical home. By working with beams as the main structural component, he creates a series of intricate spaces that are then highlighted by using walls and floors. The idea that the structure is not solely implemented as an architectural necessity, but as an essential part of the design, with the spaces being built around it was revolutionary and provided an interesting thesis.

NINE SQUARE GRID HOUSE SHIGERU BAN, 1997

Shigeru Ban’s Nine Square Grid House draws off of the idea of configurability and reconfiguration, allowing the user to make full use of the space based on preference, intent and accessibility. The use of load bearing walls on either side of the space to support the roof allows for the partition walls in the center to be utilized to its full extend. By using sliding walls in the house, different moments and rooms are configured and reconfigured based on a plethora of factorsnumber of people, intent of space, views. The use of the nine square grid, apparent in both plan and section, allows for a sense of intentional organization.

[p. 05]

01

SLEEP; REST Reconfigurable walls to accomodate four individuals.

02

STUDIO; CREATE Folding walls to create four tables / workspaces.

Each module within the housing complex’s beams is able to be shifted and rearranged based on the individual’s explicit needs and wants. Furthermore, the edifice as a whole is able to shift within the site, allowing for a full sense of choice and self dependency. Aggregating the housing complex to host multiple unhoused individuals can create a strong sense of a common communal value and will allow indiiduals to create connections and relationships within the community.

03

BATHROOM; CLEANSE Folding shower for privacy from other elements.

04

RECREATION; DINE; REST Folding armatures for groups to gather and recreate.

CONFIG_01 CONFIG_02 CONFIG_04 CONFIG_03
[p. 06]
PERCEIVED PERCEPTION RECONFIGURATION MODULARITY STRUCTURAL COLUMN BASE TRACK SYSTEM MODULARITY STRUCTURAL COLUMN BASE CONFIGURABLE ROOMS TRACK SYSTEM
PERCEPTION RECONFIGURATION PLAN TOP VIEW OVERALL 00 PLAN PRIVAT 01 SECTION CUT SITE STRUCTURE PLAN TOP VIEW OVERALL 00 PLAN PRIVATE 01 PLAN OPEN 02 SECTION CUT SITE STRUCTURE / BEAMS PASSAGEWAY PLAN TOP VIEW OVERALL 00 P AN PRIVATE 01 PLAN OPEN 02 P AN RECREAT 03 SECTION CUT SITE STRUCTURE / BEAMS PASSAGEWAYS MATRIX PLAN TOP VIEW OVERALL 00 P AN PRIVATE 01 PLAN OPEN 02 P AN RECREATION 03 SECTION CUT SITE STRUCTURE / BEAMS PASSAGEWAYS MATRIX [p. 07]
PERCEIVED

‘Unhoused’ residents utilize communal space.

Multiple ‘Unhouse’ dwellings take form in site.

[p. 08]

Productive Frictions: E³

Green Energy Efficient Landscape

LAGI Competition Submission | Group | Mannheim, Germany | 2022

Productive Frictions: E³ is a green energy efficient park designed to incorporate a productive energy landscape that can significantly contribute to Mannheim’s renewable energy generation capacity. The site was federal owned until recently, following the closing of the U.S. Military’s Spinelli Barracks. In order to keep a piece of the city’s history relevant, the planning and organization of the park was influenced by the Spinelli Barracks historical map. Observing the scale of the urban context on the surrounding Mannheim city aided in maintaining the scale and connection to the encompassing environment. In addition to the existing factors the design has three other contributors: engaging ecology, producing energy, and storing energy. Throughout the western end of

the park is a series of ecology systems, consisting of carbon sequestration trees, community gardens, animal therapy, and tree nurseries. A total of 838 poles of various types cover the entire site; they produce energy, ecology, economy, and sequester carbon. The 2-meter-tall modules within the E³ poles are stacked and interchanged to adapt to the nature of the public space it is located. In addition to the E³ poles, 31 large solar panels are spread across the site generating about 350 MWh of electricity yearly. These large solar panels are connected and interact with the E³ poles to generate electricity, provide shade, and add visual interest to leisurely activity. Potential excess energy production can be stored on site using the Closed Pumped Storage Hydropower (PSH) technology.

03 Research
[p. 09]
Preliminary research on the Spinelli Barracks and carbon sequestration in trees and forests to inform the planning and energy design of the park.
[p. 10]
The annual capacity of the overall park would be around 8,500 MWh +. This amount can power about 343 households that consume 25kWh per day.
[p. 11]
[p. 12]

Mapping the DMZ

Research on the Demilitarized Zone in Korea

axu studio | Dongsei Kim & Julia Andor | Ongoing

In collaborating with Professor Dongsei Kim, the developement of his research on the significance of borders, the Korean Demilitarized Zone and Korean identities is explored and represented further. The research is deeply rooted in the idea of mapping and its role in architecture, both as a tool and as a means of impacting projects at a variety of different scales. Through the efforts of this research, a plethora of ideas, theories and significances are shown. Researching

Korean history and visually representing its impact on the formation of the manmade border of the DMZ and exploring historical maps to obtain information on all of the villages and towns impacted and erased with the establishment of the DMZ are some of the key projects and issues worked on during the duration of the current research assistantship. The ideas and theories based in urbanism and Mapping the DMZ is key in understanding the fabric of the Korean border.

04 Research
[p. 13] MOUNTAINS ( ) RIVERS ( ) 38˚40’ 38˚30’ 38˚25 38˚22’30 38˚20’ 38˚15 38˚10 38˚05’ 38˚01’30” Fig. A 38˚ 37˚50’ 12 6˚45’1 0.4” 12 7˚00’1 0.4” 12 7˚1 5’1 0.4” 12 7˚30’1 0.4” 12 7˚45’1 0.4” 12 8˚00’1 0.4” 12 8˚1 5’1 0.4” CITIES AREAS ( ) Villages 460 Areas 26 Townships 20 533 PLACES & NAMES ERASED S Mountains 13 Rivers 12 Cities 2 TOWNSHIPS VILLAGES ojang-dong orung ongchangwon Sodumul -don aeksok-tong Nung-dong yedangc ongmak Singi Sodang-gol angto-gol Sambok-tong Magae-dong Changmok-tong anghach Hangdong-ni Nunganmal Chagae-dong Sanggomil-tong Hagomil-tong Polmal gdo-myon angnung-dong Ori-dong anbu-dong ng-gol Oum-n Maehyon-ni Fig. A Fig. A Wach’o onggang-ni Chwaso Chakhak-tong Sojang-ni Changcho ongjang-ni Chungsogok Sagok To asan-ni Masangok angc uk-tong Top’yong-ni Kwangmyong-ni ong-dong angnae Kumam-dong Changjisan-dong Namch’on-dong unggok arhyon-dong ubongch’ Ha-dong Chung-dong K -myon Wondang-ni Songsan-ni Noha-ri Chigum-ni Sangryu-ch’ Naeyu kch’ Oeyu Hongwon-ni Wolchong-ni Yujong-ni Unjong-ni Sokkwanqsan Oep’ung-dong Naep’ung-dong lmo-tong Kach’il-li ogwol-tong Mudae Haktang-ni Manyon-ni gch wanp’o-dong o-dong Chunggasan ungc ongni Chunggang-ni Nae-dong Mundung-ni angjimal Pa Soksa-ri Suim-myon Suip-ch’ Kojang-dong orung ongchangwon Sodumul -dong Paeksok-tong Nung-dong yedangcho ongmak Singi Madam-ni Sodang-gol Solmol Pangto-gol Sambok-tong Magae-dong Changmok-tong anghach’ Hangdong-ni Sokcho Nunganmal ongmal Chagae-dong Sanggomil-tong Hagomil-tong adaul Samich’ Polmal Polmal Saam Chanjwa-ri Suryun-ni gdo-myon angnung-dong Saet’omal Ori-dong P’anbu-dong Ch ang-gol Sami-ch’ Kulch Ko angpo-ri Maehyon-ni-Fig g--

‘ The Forgotten 533 ’ is a conceptual mapping project rooted in history. When the DMZ was erected as a border, 533 villages, townships and cities lost their identity and purpose, only to be remembered through armistice maps.

[p. 14]
The project was one of forty international works in the “Experimental Landings” exhibition, located at Nolan Park 14, Pratt Institute’s School of Architecture GAUD Outpost on Governors Island in New York City.

05 Research

SAY IT LOUD - Washington DC Exhibition

140 African American AIA Fellows

Beyond the Built Environment | Pascale Sablan + Researchers | 2022

SAY IT LOUD is an exhibit featuring projects by women and diverse design professionals, as well as interviews about their experiences in the architecture and design professions. This exhibit shares, protects and celebrates the journey of the underrepresented to inspire the next generation. SAY IT LOUD at The Octagon in Washington, DC includes a special component featuring Black architects from The American Institute of Architects’ College of Fellows, which highlights an

often marginalized group of architects and expounds upon their acheivements despite adverse situations. The exhibit has also been picked up by the National Building Museum. Student researchers from Yale, Harvard, RPI and Cal Poly Tech, as well as myself created profiles for each and every one of the 140 African American AIA Fellows, conducting extensive research that best exemplified these wonderful architects and their impact on the architectural profession.

Each profile highlights key facts and information about the AIA fellow that is being uplifted, including an in depth biography, featured project and project details. These items help to identify the architects’ role in the project as well as showcase their work, something that may not be as well known or spoken about.

[p. 15]
Beyond the Built Environment
[p. 16]

‘OVERSKY’ GRAPHICS

Oversky is a response to how households can reduce their emissions within the urban environment. As a total, private households are one of the biggest contributors to the emission of greenhouse gases. These emissions are often related to a city’s infrastructure such as energy and water supply and waste management. Oversky is Framlab’s proposal to a larger transformation by redefining how we look upon and use our residential habitat. Conceived as a multi-story building suspended above the street that

connects households in adjacent buildings, Oversky centralizes various functions while using environmentally friendly materials that would be able to reduce combined emissions. The project is focused on sharing resources and targets big cities where its positive impacts could be pooled by entire neighborhoods. If cities will continue to be important hubs for people and the world economy, perhaps we need to change our perception of what it means to live in a city.

Framlab | Bildmuseet Conceptual Exhibition | Team | New York / Sweden | 2021 06 Built
Framlab Fast Company

01. Cirrocumulus clouds are high-altitude tropospheric clouds that are short-lived, transitional and wispy in nature.

02. Cumulus clouds are detached, individual tufts of that are spotted in fair weater conditions.

03. Stratus clouds are low-level layered tyoes and hold a nebulosus form that is persistent over long periods of time.

02. Cumulus 03. Stratus 01. Cirrocumulus
[p. 17]
[p. 18]
[p. 19]
[p. 20]

AUNTS et. UNCLES x SNIPES JUNETEENTH POP-UP

Summer Internship | Team | Brooklyn, New York | 2021

Commisioned by the vegan Caribbean cafe, Aunts et. Uncles, and the sneaker and street wear company, Snipes USA, the Aunts et. Uncles x Snipes Juneteenth Pop-Up aimed to create a sense of gathering and community on the streets of Brooklyn, in honor of Juneteenth. Downtown Brooklyn has always been a central meeting

ground for neighborhoods within the borough, and the special installation allowed visitors to immerse themselves in a full on celebration of black history and excellence. The exhibition, displaying words and art in conjunction with the celebration, was curated and designed in honor, celebration and reflection of the black fight for freedom.

et al. collaborative
07 Built

Drawing upon the pre-existing sidewalk dimensions, a nine square grid proportion system is created on the site. The idea to place the modules upon the grid (informed by sidewalk joists) is clearly represented in the direct affirmation of the spaces being used. Breaking up the nine square grid into a series of smaller grids allowed the rules to be created, then expanded upon, and broken, creating a dynamic space that dynamically adheres to the site.

01. Snipes / Mural / Building 01 02 03 04 06 05 02. Street 03. Dining / Retail 04. Living 05. Threshhold 06. Music
[p. 21]

There Was So Much Love, Joy and Freedom In The Air. Freedom in a Sense of Having A Clear Mind.

@auntsetuncles

[p. 22]

Sketching & Renders

By exploring modes of graphic representation in a different manner, architectural thinking and design theory can be further developed. Sketching and

rendering ideas allows the architect and designer to present their ideas in a completely different manner than the simple ideals of plan, section and elevation.

Explorations on
of
Represenation Personal | Individual | Misc. | 2020-2023 08 Built
Modes
Graphic
Procreate Procreate Brooklyn Bridge Ise Shrine Procreate Pantheon
[p. 23]
[p. 24]
[p. 25]
[p. 26]
516-408-8085 epark10@nyit.edu

Turn static files into dynamic content formats.

Create a flipbook
Issuu converts static files into: digital portfolios, online yearbooks, online catalogs, digital photo albums and more. Sign up and create your flipbook.
SP '23 Elise Yumin Park Architecture Portfolio by Elise Park - Issuu