portfolio|2024

Page 1

PORTFOLIO: ELISABETTA AIMI

Ho raccolto parte dei lavori e progetti svolti lungo la mia esperienza formativa e professionale dividendoli in tre gruppi ordinati seguendo una logica di scala crescente.

Il primo gruppo comprende progetti residenziali privati di ristrutturazione, dove il layout originario degli spazi viene completamente ripensato e trasformato per adattarsi alle nuove esigenze dell’abitare.

Il secondo gruppo di lavori riunisce invece alcuni esempi di progettazione architettonica rivolta all'abitare collettivo. Sono tutti progetti residenziali ma sempre rivolti ad un tipo di abitare sociale dove la condivisione di spazi comuni è alla base del concept e dove sono presenti spazi pubblici rivolti per tutta la comunità del quartiere in cui il progetto si inserisce. Infine, l'ultima parte include progetti molto diversi tra loro per dimensione e funzione, ma accomunati dal fatto che sono tutte opere pubbliche intrisecamente legate al luogo di progetto e a chi vi abita.

Tutte queste esperienze seppur caratterizzate da scale diverse sono accomunate dalla volontà di mettere al centro l’esigenze degli individui sempre concepiti come nucleo unitario sia esso di tipo famigliare, professionale o di comunità.

Lungo il percorso universatrio prima, e professionale poi, ho avuto modo di approfondire queste tematiche da diversi punti di vista, dalla ricerca, al rapporto con i committenti, alle pratiche fino alla direzione lavori.

presentazione.

elisabetta aimi.

Data di nascita: 20/09/1995

Indirizzo: via Dei Mille 9, Noceto, PR via Sangallo 3, Milano, MI

Nazionalità: italiano

Professione: Architetto

Iscrizione ordine: Milano n° 22346

E-mail: elisabetta.aimi@gmail.com

Telefono: +39 3409239629

lingue.

Italiano: madrelingua

Inglese:

TOEIC certificate

Listening C1

Reading B2

Spagnolo: DELE certificate

Livello B2

cv.

educazione.

Settembre 2018 - Dicembre 2020

Settembre 2016 - Luglio 2017

Settembre 2014 - Dicembre 2017

Settembre 2009 - Giugno 2014

Politecnico di Milano, Milano (IT)

Laurea Magistrale in Building Architecture

Escuela Tecnica Superior de Arquitectura, Universidad de Granada, Granada (ES)

Programma Erasmus+

Università degli studi di Parma, Parma (IT)

Laurea triennale in Scienze dell’Architettura

Liceo Classico “G.D. Romagnosi”, Parma (IT)

Scuole superiori

altre esperienze formazione.

Marzo 2020 - Maggio 2020

Gennaio 2020

Aprile 2018 - Giugno 2018

Febbraio 2017

Politecnico di Milano, Milano (IT)

Digiskills REVIT+DYNAMO (english) prof. Andrea Colombo

MIAW, Milano (IT)

Milano International Architecture Workshop

Team E - Roberto Cremascoli

Università degli studi di Parma, Parma (IT)

Workshop Archival V

Escuela Tecnica Superior de Arquitectura, Torre del Mar, (ES) Workshop prof. Rafael de Lacour

esperienze professionali.

Luglio 2023 - Oggi

Ottobre 2020 - Giugno 2023

Dicembre 2017 - settembre 2018

Settembre 2017 - Dicembre 2017

BE.ST Belingardi Stefano, Milano

DC|EF Davide Conconi Elisabetta Fulcheri Architetti associati, Milano

Studio Tecnico Aimi, Noceto, PR (IT)

Giandebiaggi Architettura, Parma (IT)

Autocad

Revit

SketchUp

Rhino

Office Midas Gen

One Click LCA

Models

skills.
Photoshop CC Illustrator InDesign Enscape/ V-Ray
progetti I. architettura per lo spazio privato

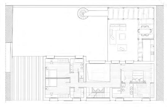
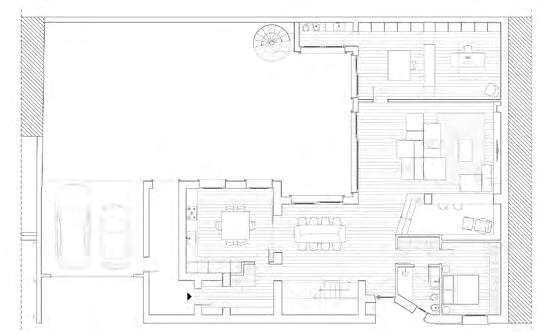
CASA V+L, Milano

Progetto e direzione lavori per manutenzione straordinaria di un appartamento

stato di fatto

progetto

Casa V+L è un progetto di ristrutturazione di un appartamento che doveva trasformarsi per orspitare da una persona ad una famiglia di quattro. Pur non stravolgendo la disposizione della zona a giorno e della zona notte, la fruizione di questi spazi è stata completamente ripensata.

La cucina e il soggiorno che si affaccia sul grande terrazzo da cui si gode una meravigliosa vista su tutta la città, rimangono separate ma comunicanti avendo la possibilità, tenendo aperto il grande pannello scorrevole che chiude la cucina di creare visivamente quasi un unico ambiente, separato solo da un grande mobile su misura e dal disimpegno dell’ingresso. Gli ambienti della zona notte, si distribuiscono in modo radiale attorno ad un nucleo costituito da un locale tecnico cieco di servizio, dando quanta più indipendenza possibile tra la zona ospiti, quella dei genitori e quella dei figli.

DC|EF STUDIO 2021-2022

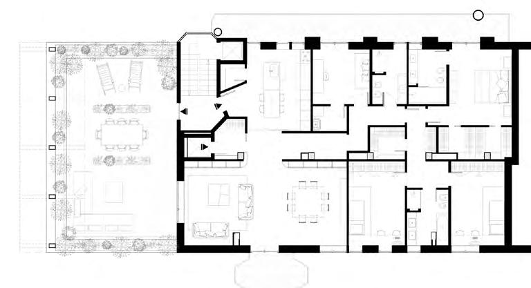
CASA AZ, Milano

Progettoi per manutenzione

straordinaria di un appartamento in palazzo storico

La sfida che ha caratterizzato il progetto di ristrutturazione di questo attico di un palazzo storico di Milano, è stata la composizione degli spazi esistenti che, allo stesso tempo, era proprio la peculiarità e la ricchezza che caratterizza tutto lo stabile di cui compone la parte superiore.

La richiesta di ricavare ambienti in più nella zona notte doveva coesistere con i vincoli presenti siano essi rappresentati dalla struttura portante dell’edificio o dalle aperture sulla copertura. Tali elementi non sono stati volutamente modificati per ottenere un prodotto finale il meno invasivo possibile che rispettasse l’identità originaria di questo ambiente dalla storia così speciale e sempre presente nella memoria dei committenti.

2021-2022

DC|EF STUDIO
stato di fatto progetto

2021-2022

CASA S+D, Seregno

Progetto per manutenzione straordinaria di un’abitazione unifamiliare

DC|EF STUDIO

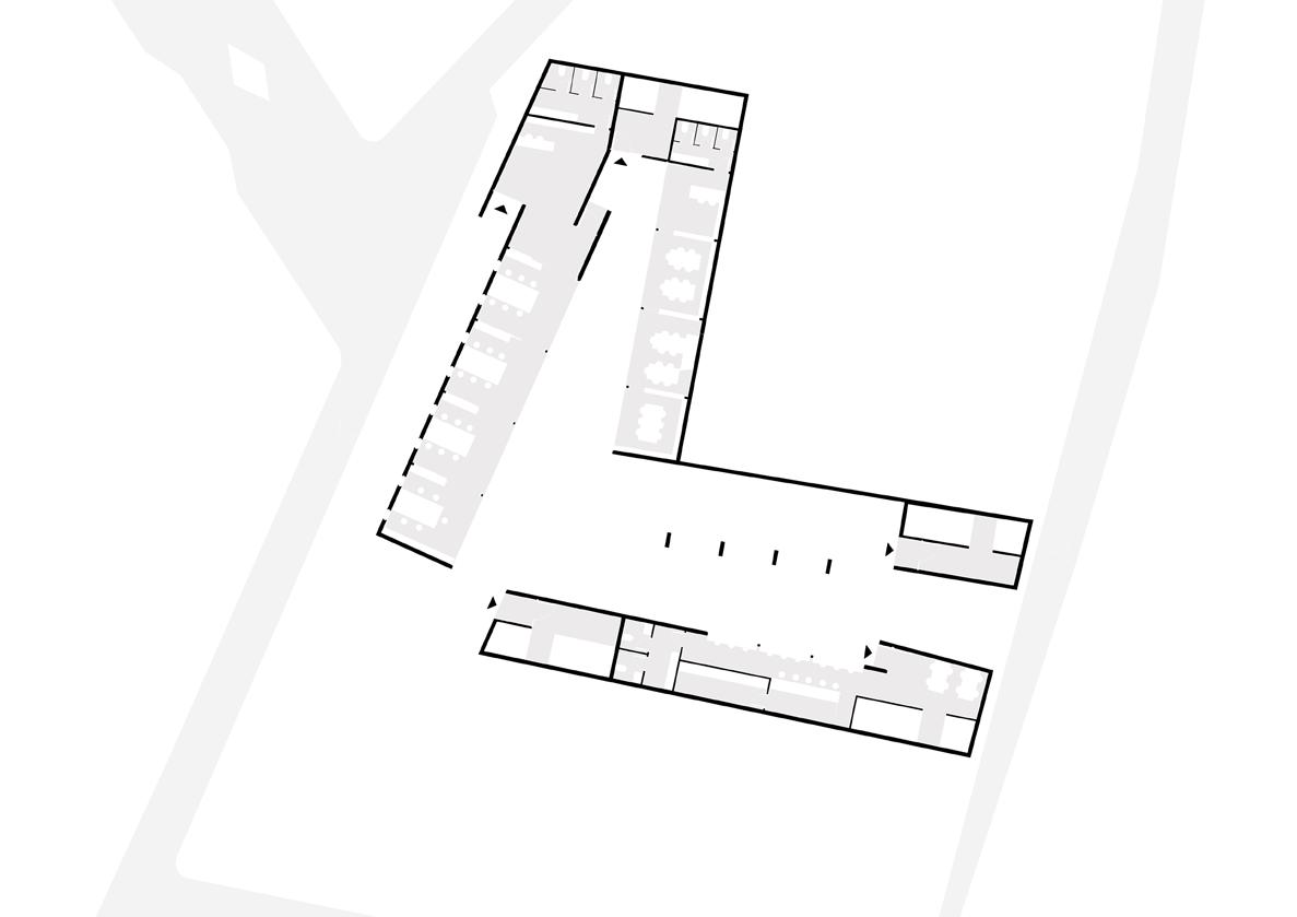
Il tema progettuale principale di questo intervento per un’abitazione unifamiliare era l’inserirsi in modo più armonioso e rispettoso possibile all’interno della cortina esistente, nel centro storico di questo comune della Monza Brianza, senza però rinunciare ad un’identità contemporanea del manufatto ristrutturato. La facciata di questo edificio, un’ ex abitazione al primo piano con laboratorio artigiano al piano terra, viene quindi reinterpretato, scegliendo come linee guida gli allineamenti con la facciata dell’edificio adiacente usando colori neutri e la pietra naturale che identifica in modo netto il basamento al piano zero. All’interno importnati opere strutturali hanno permesso di creare una doppia altezza sulla zona centrale, il fulcro della casa identificata sulla zona pranzo, illuminata da un’ampia apertura vetrata. La peculiare forma del fabbricato ad “L” è stato sfruttato al meglio possibile per ospitare tutti gli ambienti desiderati dai committenti.

pianta piano primo prospetto principale pianta piano terra

architettura per l’abitare

progetti II.

colletivo

Parma Città Futura, Parma

Progetto per spazi pubblici e residenze collettive lungo il tracciato delle antiche mura della città

Laboratorio di Progettazione architettonica II

Prof. Arch. D. Costi 2016

Questa proposta per residenze collettive e spazi pubblici fa parte di una visione di progetto più ampia che prevede interventi di rigenerazione urbana di diverse aree della città di Parma lungo i grandi viali di scorrimento sorti dove un tempo si trovavano le mura di cinta storiche. Nello specifico, questo progetto si inserisce in un contesto particolarmente interessante. L'area designata infatti è un lotto irregolare definito a nord da uno dei viali principali della città dove il "Bastione del Diavolo" testimonia l'antico sistema murario e a sud dalle mura settecentesche dell'ex-carcere di Parma e le mura ottocentesche che delimitano il complesso di San Francesco del Prato, unico esempio di chiesa gotica nella città emiliana, che comprende il sistema di chiostri dove attualmente è ospitata una sede universitaria multidisciplinare. Il progetto si sviluppa in pieno rispetto delle Mura storiche dell'ex carcere che rappresentano un elemento centrale nel concept, riscoprendone la quota originale, situata tre metri più in basso rispetto alla quota del viale, e facendo sì che il volume del progetto non le superi in altezza. Lo spazio progettato per le nuove residenze collettive universitarie rappresentano quindi un filtro tra il viale e uno spazio ipogeo aperto che libera le Mura riportandole alla luce.

planimetria piano terra

prospetto nord

sezione trasversale

8 11 1 2 3 4 5 6 7 10 9 12 13 26 14 15 16 17 18 19 20 21 22 23 24 25 27 28 29

PLANIMETRIA

1. Carcere di San Francesco - in Via di Riqualificazione

2. Plesso universitario - in stretto collegamento con il sistema di residenze universitarie

3. Chiesa di San Francesco Del Prato

4. Ingresso del carcere di San Francesco

5. Casa della Musica

6. Strada del Naviglio

7. Bastione del Diavolo - comunicante con il lotto di progetto

8. Direzionale Uffici Comunali

9. Azienda USL di Parma

10. Polo Commerciale

11. Stradello Porta Pia

12. Largo Michele Novaro

13. Viale Fratti - viabilità modificata e traffico intensificato per diluire l’accesso lungo il viale

14. Viale Mentana - viabilità ridotta e nuova zona 30

15. Bistrot Mentana 104 - comunicante con il lotto di progetto

16. Strada Del Prato

17. Via Emilio Casa

18. Borgo Carissimi

19. Convento dei Frati Minori di San Francesco Del prato

20. Piazzale San Francesco

21. Borgo Degli Studi

22. Piazzale Salvo D’acquisto

23. Attuale accesso al Plesso universitario

24. Nuovo acceso previsto al Plesso universitario

25. Sistema commerciale scoperto

26. Sistema commerciale coperto

27. Accesso al parco antistante il Bastione del Diavolo e agli uffici comunali

28. Cinta muraria Ottocentesca

29. Cinta muraria Novecentesca

SPACCATO ASSONOMETRICO

A. ACCESSI

A.1 rampa di accesso da Viale Mentana

A.2 scala urbana su Viale Mentana

A.3 rampa di connessione pedonale

A.4 piazza ipogea

A.5 collegamento verticale da Viale Mentana

A.6 accesso dalla piazza ipogea

A.7 accesso da Viale Mentana

A.8 accesso da quota strada

B. ZONA COMMERCIALE

B.1 spazi commerciali

C. ZONA RISTORO

C.1 bar

C.2 servizi

C.3 locale tecnico

D. ZONA ESPOSITIVA

D.1 biglietteria e guardaroba

D.2 sala espositiva

D.3 servizi

E. ZONA STUDIO

E.1 sala studio

F. ZONA RESIDENZIALE

F.1 sistema di distribuzione verticale

F.2 atrio

F.3 soggiorno e sala studio

F.4 cucina

F.5 alloggi - tipologia A

F.6 alloggi - tipologia B

F.7 alloggi - tipologia C

F.8 terrazza comune in quota

La quota zero degli attuali viali di scorrimento accoglie spazi commerciali, un ampio spazio dedicato ad aula studio comune e gli accessi principali alla piazza ipogea, sulla quale affacciano un bar-caffetteria e lo spazio espositivo che si sviluppano su due piani. Mentre il piano terra e il piano -1, dedicati a funzioni pubbliche, sono pensati come un basamento leggero, lineare e trasparente, il piano superiore che ospita le residenze si esprime con forme più libere definite a partire dagli affacci sulla città e nel rispetto degli alberi del viale che vanno preservati. Sono previste diverse tipologie di residenze ma tutte sono state progettate seguendo principi di social housing che prevedono in tutte le conformazioni spazi flessibili e dedicati all'abitare collettivo.

A.1 C.2 C.1 A.6 C.3 A.5 D.1 D.2 D.3 A.4 A.2 A.3 A.8 F.1 E.1 B.1 B.1 B.1 B.1 F.1 A.7 A.7 F.1 F.3 F.4 F.4 F.4 F.6 F.5 F.8 F.2 F.2 F.7 F.8 F.8 F.4 F.3 F.5 F.2 F.8
LEGENDA:

Proyectos IV

Prof. Arch. T. Garcia Piriz

2016

Entre medianeras, Granada (ES)

Progetto per spazi pubblici e residenze collettive

Questo progetto nasce con l'intenzione di riempire un vuoto, ricucendo una parte della città di Granada caratterizzanta da lotti vacanti da molti anni. Come riportato nella mappa concettuale, il lotto del progetto è quasi per intero definito da medianeras. Con il termine medianeras si indicano i muri di confine tra un edificio e l'altro che rimangono a vista dopo la demolizione di uno dei due. Le medianeras che delimitano l'area di progetto non sono le uniche in quella parte di città. Un sopralluogo approfondito e studi sulle mappe storiche hanno rivelato che le numerose medinaeras visibili attualmente in quella zona indicano spesso la presenza dei pochi esempi rimasti dell'unico tentativo di pianificazione urbana che negli anni 30 del Novecento prevedeva di trasformare la zona in un quartiere-giradino. Queste medianeras non rappresentano quindi solo un segno di demolizione, ma di una lenta trasformazione di un quartiere che non ha mai trovato una reale identità.

mappa concettuale

L’ intenzione è quindi quella di ricomporre questa ferita presente nel tessuto urbano dell’ area grazie ad un edificio che contenga funzioni sia residenziali che pubbliche così da rigenerare la zona non solo tramite interventi architettonici bensì anche tramite attività utili alla comunità. Il risultato è quello di un edificio che attraverso un gioco di diverse altezze e volumi che non si separano mai veramente, si appoggia senza imporsi sulle medianeras le quali ne modellano inevitabilmente il perimetro. Il volume dell’intervento si inserisce senza imporsi sulle preesistenze con la volontà di preservare uno spazio aperto al suo interno,una corte sulla quale affacciano le funzioni pubbliche quali spazi per laboratori e corsi per la comunità, una biblioteca con spazi studio, pianta piano terra

sezione longitudinale

accesso residenze accesso residenze spazi condivisi per laboratori piazza biblioteca WC WC porticato accesso residenze caffetteria accesso residenze cucina

una caffetteria e gli accessi alle residenze situate nei tre piani superiori. Sono state progettate due tipologie di residenze. La prima tipologia, situata sul lato ovest è stata pensata per appartamenti semi indipendenti con spazi ricreativi comuni adiacenti agli accessi mentre la seconda tipologia è dedicata a permanenze durante periodi brevi o per studenti dove è previsto uno spazio comune che comprende anche la cucina. Le facciate interne sono permeabili e leggere grazie all’utilizzo di una doppia pelle formata da vetro e gelosia metallica che assicura giochi di luce e ombra e presenza di verde rampicante in contrapposizione alle pareti esterne più opache, lisce e potenti, quasi come fossero le nuove medianeras, una corazza protettiva che preserva la vita all’interno della corte.

terrazza terrazza biblioteca residenze tipologia1 spazio comune spazio comune cucina comune caffetteria residenze tipologia 2 terrazza caffetteria
prospetto est
pianta primo piano

Proyectos V

Prof. Arch. R. De Lacour

Arquitectura

Litoral, Torre del Mar (ES)

Progetto per spazi pubblici e residenze collettive

2017

Il progetto trova la sua origine da un percorso particolare: una deriva svolta tra Velez-Malaga e Torre del Mar, luogo di progetto. L’ esperienza di deriva, da cui è nato un video e una mappa astratta, e successivamente l‘analisi del territorio più specifica, il progetto a livelo urbano e la proposta di pratica ecologica, hanno portato ad una conoscenza del luogo profonda e alla scelta personale dell’area e del programma di progetto. L’area scelta è uno spazio tra le due città, oggi inutilizzato, ma con un forte potenziale di collegamento tra le stesse,dove poter collocare funzioni di interesse pubblico. L' impianto planimetrico si sviluppa come un villaggio che si inserisce tra le diverse quote del terreno in modo spontaneo.

mappa territoriale

planimetria

Ciò che deriva da questo percorso progettuale è una proposta di residenze minime, di due tipologie diverse ma create entrambe partendo dall'idea di utilizzare un materiale di riciclo come elemento comune coniugato in diverse maniere; un doppio uso temporaneo e residenziale, ma sempre tenendo come punto di riferimento un’idea di evoluzione e flessibilità a livello spaziale e temporale. Anche le residenze permanenti infatti, attraverso una doppia pelle combinabile, smontabile e flessibile è pensata per cambiare a seconda delle stagioni per beneficiare della migliore efficienza climatica in modo naturale. Come materiale di riciclo, è stato scelto il pallet, che costituisce il modulo base,il materiale principale e il volume delle residenze temporanee; mentre nelle residenze permanenti viene utilizzato come gelosia, pannelli divisori e mobili.

sezione a-a' assonometrie residenze tipo A sezione b-b' esplosi residenze tipologia B

architettura per lo spazio

progetti III.

condiviso
Un bar per la Cittadella, Parma Progetto per un bar caffetteria ecosostenibile all' interno del parco Cittadella

Laboratorio di Tecnologia

2016
Prof. Arch. F. Santolini

Il progetto prevede la costruzione di un bar - caffetteria all'interno del parco Cittadella, uno dei più importanti parchi della città di Parma: uno dei luoghi a cui gli abitanti della città sono più affezionati. Ex fortezza militare del XVI secolo, oggi non è solo un parco, bensì luogo dedicato a diverse attività pubbliche temporanee. La proposta è quella di creare un punto di ritrovo fisso all'interno del parco che offra servizio di ristoro. La tecnica costruttiva scelta è una tecnica a secco, volendo diminuire il più possibile l'utilizzo di cemento presente solo come materiale di fondazione. La proposta è una composizione semplice di volumi regolari sviluppati su un solo livello; un gioco compositivo di volumi pieni e vuoti, che creano un alternanza di spazi aperti/ chiusi, coperti/scoperti. La scelta progettuale si fonda infatti sulla volontà di instaurare uno stretto rapporto tra l'architettura e la natura in cui essa è immersa. Questo rapporto si esprime tramite scelte quali la disposizione all'interno del parco e i materiali.

REALIZZATO CON UN PRODOTTO AUTODESK VERSIONE PER STUDENTI sezione parco Cittadella assonometria planivolumetrico

manto di copertura

guaina impermeabile

pannello di legno

traverso in legno

pannello di legno

isolante

pannello di legno

trave principale in legno

doppio pannello di cartongesso

pannello di legno

barriera al vapore

isolante

pannello di legno

traverso in legno

rivestimento in pietra in pannelli

pavimento in resina

massetto

barriera al vapore

isolante

igloo

magrone

trave rovescia bocca di presa

La posizione nell'area sud-est del parco, adiacente al percorso circolare pedonale più interno e all'entrata sud è stata pensata per trarre vantaggio dagli alberi caducifoglie che garantiscono la schermatura solare naturale dal sole in estate mentre consentono il passaggio di raggi solari in inverno offrendo così un confort climatico durante tutto l'anno. Il materiale principale dell'edificio è il legno, utilizzato per la struttura portante, il deck esterno e la copertura. Il vetro è stato scelto come materiale per il rivestimento esterno sul lato sud dove affaccia lo spazio interno principale dove i serramenti, apribili e rotabili di 90 gradi, permettono di aprire una connessione diretta tra l'area esterna del bar e l'area interna in base alle necessità climatiche del momento. I locali di servizio, situati nella parte nord, sono rivestiti invece da pannelli di petra carsica grigia che creano un netto contrasto con la trasparenza dello spazio dedicato alla fruizione pubblica.

sezione lato sud ovest
dettaglio parete opaca prospetto e

prospetto

trave di bordo

manto di copertura

guaina impermeabilizzante pannello di legno

traverso in legno camera d’aria

e sezione lato nord ovest
dettaglio copertura

MIAW workshop

Prof. Arch. R. Cremascoli

Sensory City, Milano Progetto per un ponte pedonale e spazi publici per quartiere Forlanini

2020

Tema del workshop internazionale di architettura MIAW 2020 era la linea della mettropolitana M4 di Milano. L'area progettuale scelta è l'area adiacente alla fermata del tronco est della metro M4: Stazione Frolanini. L'intervento è volto a arricchire tutto il quartiere grazie a spazi pubblici connessi alla futura stazione della metro. La proposta progettuale prevede la creazione di un'infrastruttura, un ponte pedonale che possa ricucire il tessuto urbano diviso dalla ferrovia che separa quartiere Forlanini con la periferia est della città. Prolungando l'asse storico di via Pannonia, il ponte pedonale collega le tre zone principali del progetto: la zona dei servizi di quartiere (book crossing, meting room di quartiere, mercato coperto, cafè, aula studio), lo skate park e il parco dove il ponte termina con la torre e il belvedere sulla zona agricola est di Milano.

mappa

planivolumetrico

sezione a-a'
pianta piano terra sezione b-b'

Villa Manodori-Roncolo 1888, Reggio Emilia

Progetto per ristrutturazione di una Villa all’interno di un complesso ricettivo e relativo piano di sviluppo ed espansione

DC|EF STUDIO 2021-2022

L’intervento ha interessato l’edificio principale e di maggior valore facente parte di un’ex tenuta di caccia, oggi trasformata in un complesso di hospitality immerso fra le colline pedemontane di Reggio Emilia. La villa ha visto un quasi completo cambiamento nel layout dei suoi tre piani, dopo il complesso e delicato intervento di consolidamento strutturale e di restauro conservativo del sistema pittorico e di affreschi che caratterizzano le pareti e i soffitti dei piano nobili (terra e primo).

Sono state ricavate sei stanze e spazi comuni quali reception, bar, salone, cucina e sala colazioni/riunioni grazie alle quali la Villa può anche funzionare in modo indipendente dal resto dei servizi della tenuta.

Anche gli esterni sono stati soggetto a restauro conservativo, grazie al quale, dopo ricerche tra le fonti sotriche, è stato riportato alla luce il colore originario della villa denominata “la rossa” per il suo caratteristico colore che era stato coperto durante i numerosi interventi che si sono susseguiti dal ‘800 ai giorni nostri.

pianta piano secondo pianta piano primo pianta piano terra

House of religions, Milano

Progetto per spazi sacri

Architectural design for complex construction I

Visiting Prof. Arch. U. Schroder

2019

Il progetto "House of Religions" si sviluppa partendo da un tema complesso. Ispirandosi al concorso "House of One" (2012) per la creazione del primo edificio che ospita spazi sacri destinati alle tre principali religione monoteiste, situato a Berlino. La proposta di progettare uno spazio unico che racchiudesse tre religioni sotto uno stesso tetto è stata portata in questo caso a Milano. Non solo il tema ma anche l'area destinata al progetto ha fatto sì che la soluzione fosse impegnativa da sviluppare. Il luogo scelto per ospitare questo luogo sacro è un lotto da tempo rimasto vacante in viale Doria, inserito in un contesto prevalentemente residenziale e commerciale. Il progetto propone così di sviluppare una torre (simbolo comune nelle tre religione ed elemento architettonico caratterizzante di tutte le architetture religiose tradizionali), che racchiude i tre spazi sacri e dove culmina all'ultimo livello uno spazio di preghiera e riunione comune. Nessun spazio sacro esprime simboli caratterizzanti in facciata: i simboli sono stati riportati e a volte rivisitati nel disegno delle piante: la croce greca per la Chiesa, l'esagono per la Sinagoga, l'ottagono per la Moschea e un cerchio per lo spazio di preghiera comune coperta da una cupola.

figure ground plan
pianta moschea pianta chiesa pianta sinagoga
comune
pianta
spazio sacro

Forme e materiali sono in linea con la funzione sacra dell'edificio. Il materiale principale scelto è il mattone. La facciata è caratterizzata dalla forma che tradizionalmente si può ottenere con questo materiale: l'arco. Partendo da una base più massiccia e opaca, una successione di archi sovrapposti scava la facciata fino a dissolverla al penultimo e ultimo livello dove è situata una terrazza coperta e lasciando intravvedere la cupola dello spazio sacro comune.

sezione b-b' prospetto nord ovest
interno chiesa
interno moschea

Life science Campus, Basel (CH)

Progetto per la nuova sede delle facoltà scientifiche dell'università di Basilea

Architectural design for complex construction II

Master Degree Thesis

Prof. Arch. F. Battisti

2020

Il nuovo edificio che ospiterà le facoltà di Chimica, Fisica, Nano-scienza e Anatomia dell'università di Basilea è concepito come nuovo gate per il campus Schallematteli, il campus universitario nel centro della città. Gli aspetti più importanti per determinare come il progetto si inserisce nel tessuto urbano esistente sono due: le connessioni e le relazioni di scala. Il complesso di edifici esistente blocca un asse della città che da nord connette direttamente il campus con una delle più importanti stazioni. Il nuovo intervento prevede di riaprire quest'asse , garantendo una connessione diretta dalla stazione al cuore del campus. Per quanto riguarda le relazioni di scala col contesto, l'area di progetto si trova a ridosso della zona residenziale che circonda il campus. Questo vuol dire che il nuovo edificio dovrà instaurare un dialogo contemporanemanente con due scale molto diverse: la scala delle abotazioni e la scala del campus.

masterplan
sezione prospettica

Il progetto è stato sviluppato contemporaneamente in tutte le sue componenti principali per ognuna delle quali è stato creato un modello in ambiente Bim: il modello architettonico, strutturale, delle facciate e dei sistemi.

esploso

spaccato assonometrico

Una delle parti da sviluppare con più attenzione è la progettazione delle aree dedicate ai laboratori. L'ambiente dei laboratori, garantendo la sicurezza necessaria e seguendo le specifiche dettate dal brief dell'università, è stato progettato ponendo l'attenzione anche all'aspetto sociale. Le zone dedicate alla consultazione dei risultati di laboratorio, infatti, sono state concepite come un spazio informale che comprende anche lo spazio di circolazione attorno alla zona protetta dei laboratori per garantire uno scambio di conoscenza fluido e casuale tra i ricercatori.

boulevard interno
modello

Turn static files into dynamic content formats.

Create a flipbook
Issuu converts static files into: digital portfolios, online yearbooks, online catalogs, digital photo albums and more. Sign up and create your flipbook.
portfolio|2024 by elisabetta.aimi - Issuu