Elisabeth Gutierrez' Interior Design Portfolio

Page 1


SELECTED WORKS

ELISABETH GUTIERREZ

ABOUT ME

Growing up in a home that wasn’t visually appealing both inside and out, I often felt embarrassed compared to the polished homes I saw on TV. I vividly remember watching makeover shows, wishing my family could renovate to fix the water-damaged ceilings, cracked walls, and uneven floors. As I got older, I realized that these fixes weren’t cheap or easy, and I became passionate about wanting to help underprivileged families access quality, affordable housing.

This experience sparked my desire to study interior design, with a focus on creating functional, safe, and affordable living spaces for underserved communities. I want to design spaces that promote well-being while also being mindful of cost. I aim to join a firm that values people over profit and collaborate with others who share the goal of improving spaces for those in need.

My mission is to make a lasting impact in the design world, placing focus on communities that are often overlooked.

PROFESSIONAL EXPERIENCE

Stoneridge Hospitality | Lake Dallas, TX | Junior Designer

- Utilized AutoCAD to update and revise construction plans

September 2024 - Present

- Utilized Excel to develop specifications for project furniture, fixtures, equipment, and create project quotes/matrices

- Assisted in the creation of color and mood boards to visually guide design concepts for clients

- Used Revit to create 3D visualizations for ongoing projects

May 2024 - August 2024

LPA Design Studios | San Antonio, TX | Interiors Intern (K-12 Education)

- Assisted with various tasks on Revit, Photoshop, Enscape, and Indesign

- Attended and took notes for project & client meetings

- Created material boards for projects

EDUCATION

University of North Texas - CIDA Accredited | Denton, TX

Bachelor of Fine Arts in Interior Design with a Minor in Art History

Officer of Interior Design Student Alliance (IDSA) - Treasurer | Fall 2024 - Present

Member of Honors College | Fall 2021 - Present

Member of International Interior Design Association (IIDA) | Fall 2023 - Present

SKILLS

Autodesk Revit

AutoCAD

Lumion

Enscape

Adobe Suite

Microsoft Office

Multitasking

Time Management

Problem Solving

Collaboration

Adaptability

Active Listening

Aug 2021 - May 2025

DESIGN STUDIO

DENTON ISD STUDENT SERVICES

Revit + Enscape + Photoshop

Sector : Workplace

SKILLS : PROJECT OVERVIEW

The new Denton ISD Student Services Center will serve as a playful and welcoming space that allows for collaboration and innovation. With a flexible layout that includes lounge areas, work pods, and ergonomic furniture this space will give users the choice between collaboration and focus. By incorporating natural elements and vibrant colors, a soothing and inviting atmosphere will be created to allow end users higher levels of comfortability and a boost in personal wellness.

PRINTING AREA

WORK ZONE

BREAKROOM

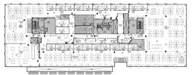
LIFE SAFETY FLOOR PLAN

Denton ISD serves 46 schools across the DFW area. This wall graphic features the schools as a constant reminder to employees of the communities they represent in their work and help better connect with one another.

BREAKROOM

Ergonomic Furniture: Improves comfort and posture, reducing strain and discomfort. By promoting better alignment, it boosts productivity, focus, and well-being.

Collaboration Areas: Open communication with spaces for teamwork and idea exchange, boosting creativity, problem-solving, and team synergy for innovative solutions.

Lounge Seating: Provides a comfortable space to relax, socialize, and brainstorm, promoting creativity, team bonding, and rejuvenation for a dynamic work environment.

WORK ZONE

SOUTH SECTION
PRINTING AREA

LOUNGE MATERIAL BOARD

Wall Felt Shapes

Casework

The Lounge is a space where employees can connect, relax, and unwind during their daily work routine with the incorpation of playful colors, comfortable seating and collaboration areas.

LOUNGE

ASSEMBLY

This area features two small conference rooms that has a retractable folding wall, helping create a larger assembly space, perfect for meetings, parties, team-building events, and more. This retractable folding wall allows for easy customization, effortlessly transforming the layout to suit different needs of the end users.

02

EL NOPAL

Group Project

Personal Roles :

- Space Planning

- Ceiling Plan

- Finish and Furniture Selection

- Floor Plan & Section Diagrams

- Research

Sector : Hospitality

SKILLS

Revit + Enscape + Photoshop

PROJECT OVERVIEW

The goal of this project was to create an upscale new restaurant in Dallas, El Nopal, which is a sister establishment to three other Landeros family-owned restaurants in the Denton area. This innovative concept aims to offer an elevated dining experience while maintaining a deep connection to traditional Mexican values, seamlessly integrating them throughout the space to transform the overall user experience.

The design focuses on the needs of the customer, prioritizing functionality, authenticity, and escapism to create an inviting and immersive atmosphere.

Surrounding Retail

Delivery and Employee Circulation

Sun Path

Patron Circulation

Nature View

Skyline View

SITE ANALYSIS

The site is located on the restaurant marketplace strip in the Trinity Groves neighborhood of Dallas, Texas. It overlooks the Dallas skyline and has a prime nature view of the Trinity River and its surrounding vegetation, offering a calm and serene environment.

Choosing materials based off of cultural inspired aspects such as mexican tile, mexican artwork, warm wood tones, and traditonal bright colors, El Nopal blends native handicrafts with a contemporary twist. The design highlights the use of light, scale, vibrant colors, and rich textures, paired with carefully chosen furnishings, all of which celebrate the distinctive elements of modern Mexican architecture. RENDERED

MATERIAL BOARD

FLOOR PLAN DIAGRAM

The design goal of the space was to provide a connection within the various sections of the restaurant. Incorporating an efficient circulation flow was key to allow for easy access through the space, while still maintaining privacy for a higher dining experience.

LOUNGE

FUNCTIONALITY

Furniture arrangements within this space are easily interchangeable in their positioning, allowing for accomodations for parties or other gatherings.

AUTHENTICITY

The bar radiates a message of truth to Mexican identity and ideology. It is covered in traditional materials like tzalam and teak wood, talavera tiles, chukum wall finish, and natural stone. The bar itself also speaks to the cultural importance of family and the act of sharing food and drink.

ESCAPISM

The main dining area acts as a refuge for customers. A variety of materials and arrangements are employed. Booth seating styles hug and comfort diners while surrounding them with a space that transports them to Mexico. Light penetrates profusely with the direct adjacency to the curtain wall and planters are placed within each arch that delienates the area.

Arches
Cacti Divider

LPA DESIGN STUDIO

Revit + Lumion + Photoshop SKILLS:

Sector : Workplace

PROJECT OVERVIEW

The objective of this project was to design an office space informed by a client interview with a current employee of the company.

LPA is a design firm that emphasizes multi-disciplinary collaboration, with each discipline working in harmony. This design aims to foster greater teamwork and interaction in the workplace through an open-plan layout. The space features hoteling areas, providing employees with opportunities to engage with one another outside of their personal desks. The thoughtful design prioritizes comfort with ergonomic furniture, calming aesthetics, and flexible workspaces that encourage creativity and focus. By creating an environment that supports both collaboration and individual productivity, this space enhances employee well-being and boosts overall work effort.

Collaborative Areas

LARGE CONFERENCE ROOM

Higher Private Areas

Welcoming & Relaxation Areas Not in Scope

DESIGN DIRECTOR OFFICE

ACCOUNTING TEAM WORKING AREA FLEX ZONE

DIRECTOR OFFICE

ROOM PRINTING

MANAGER OFFICE

FLOOR PLAN ZONING DIAGRAM

The design goal is to create a collaborative environment that integrates community, wellness, performance, and user experience into every project. The open layout is intentionally crafted to provide users with the tools and spaces needed to engage more easily with colleagues, enhancing interaction and teamwork throughout the space.

ENVIRONMENT

LPA Inc.’s new office design focuses on creating and nurturing a collaborative environment. The space is intended to cultivate a culture of knowledge-sharing, sparking innovation, creativity, and strengthening team cohesion. To support this, the design incorporates both formal and informal seating options, encouraging spontaneous collaboration. Various seating arrangements, including individual desks, sofas, and bar seating, are strategically placed throughout the space to facilitate diverse work styles and foster engagement.

REFLECTED CEILING PLAN

WAYFINDING BAFFLE DESIGN

ACOUSTIC BAFFLES WITH LIGHTS
ACOUSTIC DROP DOWN BAFFLES

WAYFINDING

Wayfinding is enhanced through the thoughtful use of lighting, including the drop-down baffle design and pendant lights, which guide users seamlessly through the space. Acoustic lighting elements are also integrated to reduce noise and improve sound quality, positively impacting workflow and creating a more focused, comfortable environment.

Personal Works 04

TALAVERA SET

FLORAL SET

WESTERN SET

LADDER PICTCHER SET

Turn static files into dynamic content formats.

Create a flipbook
Issuu converts static files into: digital portfolios, online yearbooks, online catalogs, digital photo albums and more. Sign up and create your flipbook.
Elisabeth Gutierrez' Interior Design Portfolio by ElisabethGutierrez - Issuu