Interior Design Portfolio

Page 1

ELISABETH MOFFETT

I N T E R I O R D E S I G N E R

MEDITERRANEAN RESTAURANT

Located in a historical bank, this restaurant's design had to blend the vintage, eclectic features with a minimalist Mediterranean theme What had to stay? The popcorn ceiling, the teller desk, original bank vaults, and wood paneling that goes up to 4'-0"

TwinMotion

Photoshop

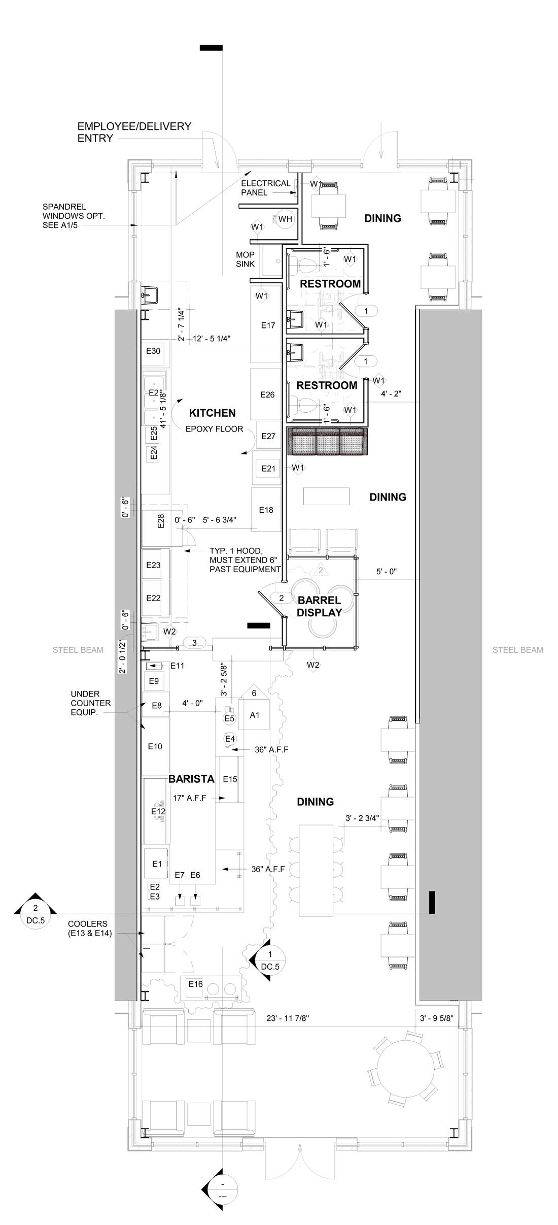
Let the old, bold features be the highlights of the space and keep the rest neutral The original wood panels blend in with the new custom archways These archways also bring the eye down, away from the popcorn ceiling The added mezzanine utilizes the volume of the space and adds interest with the contrasting black mullions and stairs The teller desk has been reused in the kitchen to house different appliances and equipment

Existing Building Notes:

3 Story, 2B Construction

Proposed Tenant A-2

SQ. FT: ± 8,511 SF

Occupant Load: 224 Occupants

Proposed NFPA-13 Fire Sprinkler System

Plaster-patterned Wallcovering

Black Aluminum

Glass/Metal Room Dividers

Cream Colored Polyester

TWINMOTION INTERIOR RENDERING

Revit
M E D I A
FRT Wood
M A T E R I A L S
2 0 2 0 I B C N O T E S P R O F E S S I O N A L W O R K
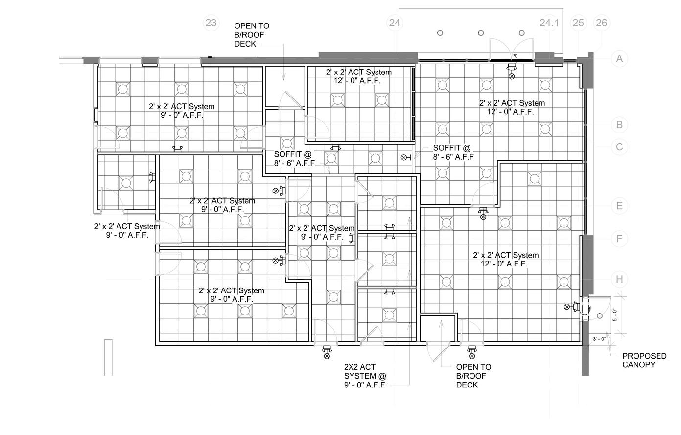
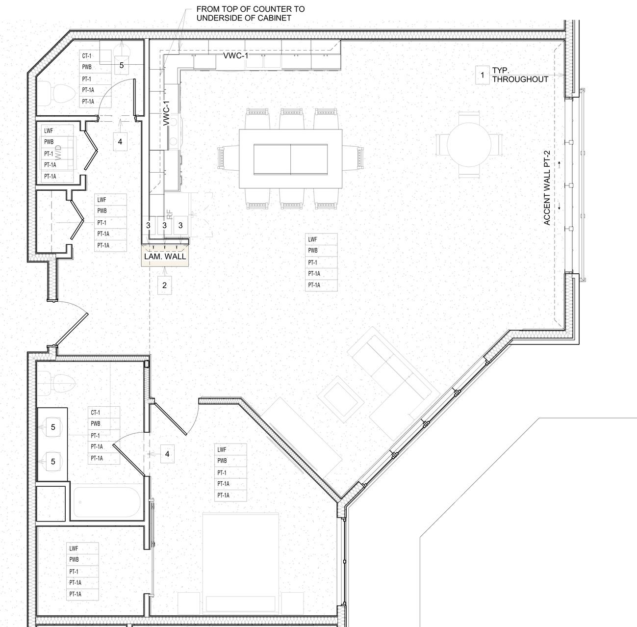
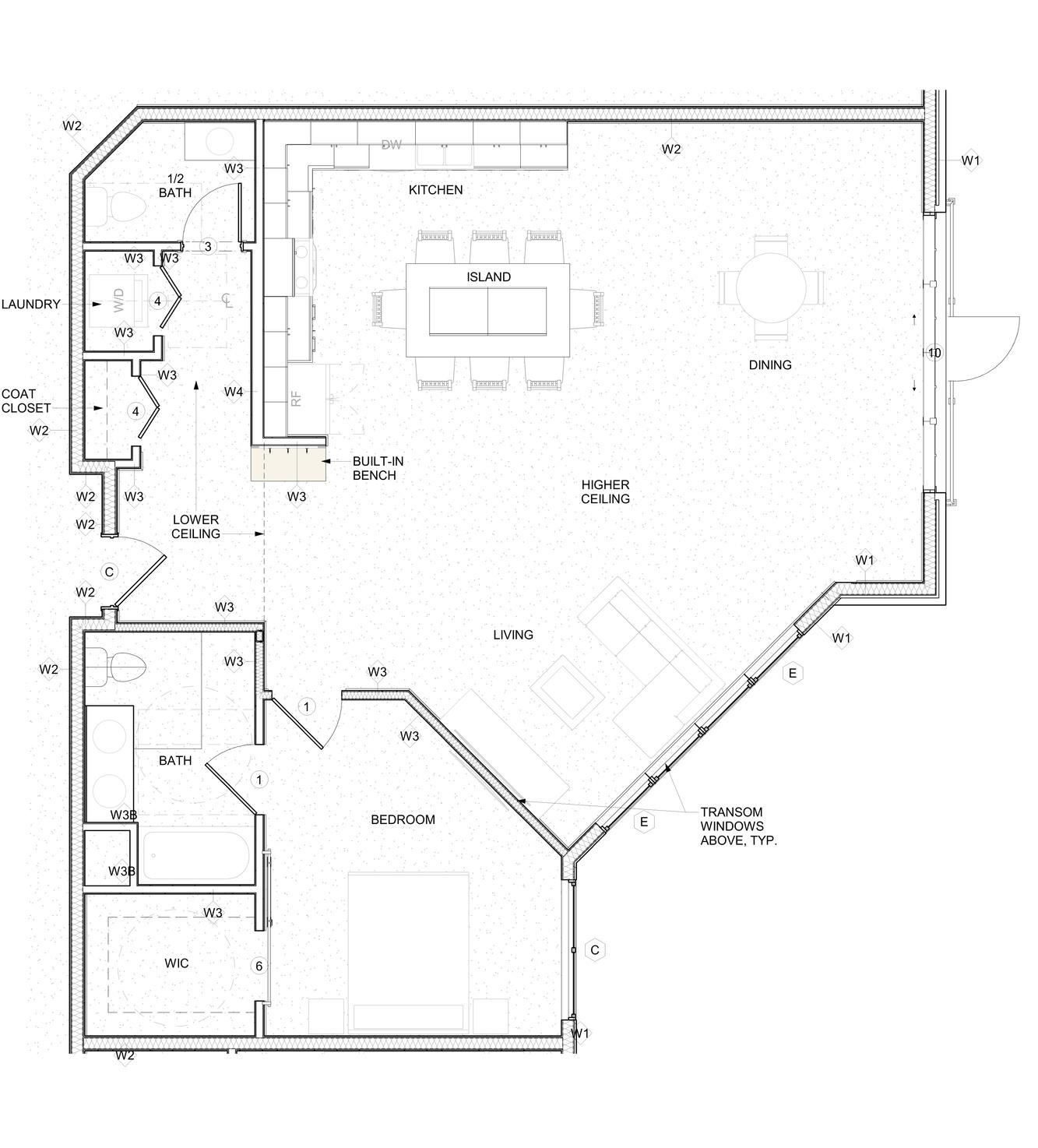
FIRST FLOOR PLAN NTS
T H E C H A L L E N G E
T H E S O L U T I O N MEZZANINE PLAN NTS

APARTMENT BUILDING

Create a new apartment building with a mix of unit types and common spaces The building is to have no studio apartments, but a mix of 1, 2, and 3 bed units

TwinMotion

Photoshop

In order to create a community, there is a central courtyard for all tenants to enjoy The apartment sizes are welcoming to all and unique features, such as a built in bench and coat rack, utilize otherwise wasted space Spacious kitchens, bedrooms and living spaces allow tenants to truly make this home.

2 0 2 0 I B C N O T E S

3 Story, 5B Construction, NFPA-13 Fire Sprinkler System

Occupancy: R-2

SQ FT: ± 25,710 SF

Occupant Load: 337 Occupants

PT-1 VERSATILE GRAY

SHERWIN WILLIAMS

TYPICAL A-1 UNIT PLAN NTS

PT-1 CEILING BRIGHT WHITE

A - SEMIGLOSS FIN SH

B - FLAT FINISH

SHERWIN WILLIAMS

PT-2 SPALDING GRAY

SHERWIN WILLIAMS

LWF: CINNAMON OAK

OUTER BANKS ECOFINISHES

CT-1 DARK GRAY

MODERN STONE CREATIVE MATERIALS

TWINMOTION INTERIOR RENDERING

TYPICAL A-1 UNIT FINISH PLAN NTS

Revit
M E D I A
F F & E K E Y
P R O F E S S I O N A L W O R K
T H E C H A L L E N G E
T H E S O L U T I O
N

LAWYER'S OFFICE

Revit

TwinMotion

Photoshop

Create a functional, private, and updated office This client works with people who require privacy and comfort

T

H E

2 0 2 0 I B C N O T

Existing Building Notes:

3 Story, 2B Construction, Not Equipped w/ Sprinklers

Proposed Tenant B

SQ. FT: ± 2,177 SF

Occupant Load: 15 Occupants

M A T E R I

FRT Wood

Quartz

Glass & Black Aluminum

Carpet Tile

LVT

I A
M E D
L
A
S
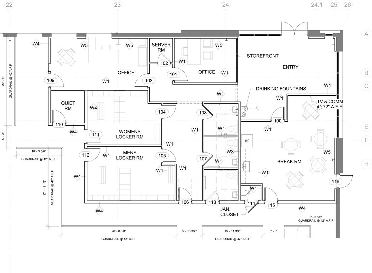
P R O F E S S I O N A L W O R K TWINMOTION INTERIOR RENDERING FLOOR PLAN NTS
E S
T H E C H A L L E N G E
Offices line the existing exterior wall for ample light and storefront doors allow for light in the secondary spaces. The conference room also has a window to allow for natural light. Mirrors, left of the entry reflect light and make the space feel larger for users who may be anxious For employees, there is a large open space to relax and have lunch together. The client also emphasized the importance of a wellness and quiet room to promote mental and physical wellbeing. S O L U T I O N (C ient logo blurred for conf dent al ty)
ENTRY ELEVATION NTS

COFFEE SHOP

H E C H A L L E N G E

Revit

TwinMotion

Procreate

Photoshop

Create a custom barista counter to promote efficiency and create clear circulation to users Arcade tables and pop art wallpaper are to create a laid back environment There are nooks with casual seating and more traditional tables, giving users choice and the ability to tuck away for work.

M

A T

Corten Steel

2 Story, 2B Construction, NFPA-13 Fire Sprinkler System

Proposed Tenant A-2

SQ. FT: ± 2,115 SF

Occupant Load: 95 Occupants 0 2 0 I B C N O T E S

Concrete Hexagon Tile

Black Aluminum LVT

SCHEMATIC DRAWING WITH SAMPLES

TWINMOTION INTERIOR RENDERING COMPLETED PROJECT PHOTO FLOOR PLAN NTS

E D I A
M
Brick/Pop Art Vinyl Wallcovering E R I A L S
Existing Building Notes:
2 P R O F E S S O N A L W O R K
This coffee shop is part of a mixed-use building in an apartment complex The design should allow for quick service and be an environment that locals can socialize and work in
T
H E S O L U T I O N
T

OFFICE/WAREHOUSE

T

T

H E S O L U T I O N P R O F E S S I O N A L W O R K

Proposed Tenant B & S-1

SQ FT: ± 92,615 SF

Occupants

Revit M E D I A
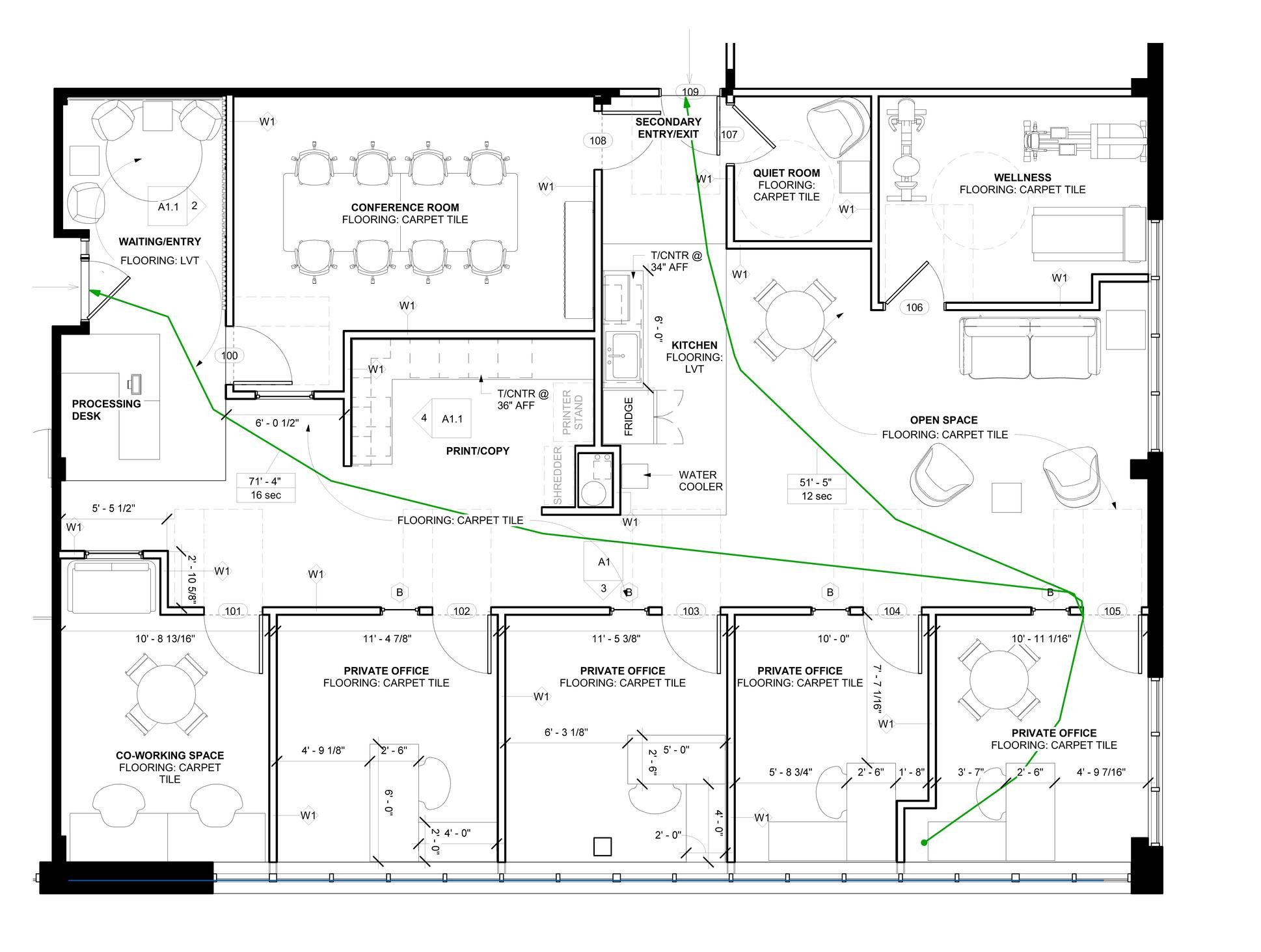
Work with tenants on their proposed fit-up in a brand new metal building Read through the company's programming requirements, racking needs and create a complete permit set H E C H A L L E N G E
The tenant only needed two offices because most of the employees would be out in the warehouse There's a large break room with ample lighting, provided by 10'-0" storefront windows, and easy access to the outdoors This break room also acts as their conference room when needed In the warehouse, the tenant required a specific number of dock and grade doors, with minimal space requirements for racking Allocated racking space is indicated with grey filled regions
1 Story 2B Construction, 903 Automatic Sprinkler System
0 2 0 I B C N O T E S OFFICE FLOOR PLAN NTS OVERALL FLOOR PLAN NTS OFFICE RCP NTS
Occupant Load: 197
2

THE MAINSTAY HOTEL

T H E C H A L L E N G E

Revit

Procreate Photoshop

Illustrator

InDesign

How can hotels located near hospitals better support cardiac patients and their informal caregivers who travel far from home for treatment and rehabilitation?

Cardiac Patients Informal Caregivers

The Mainstay Hotel is part of the Cleveland Clinic in Cleveland, Ohio and welcomes cardiac patients, along with their informal caregivers into a healing and community-centered environment Informal caregivers go unseen by the healthcare community and cardiac rehabilitation is an uphill battle The Mainstay Hotel was created as a home away from home, designed based on research of healing spaces, biophilia, and different avenues of support based on need

Hotel Employees Children

Therapist & Medical Social Workers

Occupancies: A-2, R-1,

SQ FT ± 47,095 SF

Occupant Load: 339 Total Occupants

R-1: Hotel: 41,585 SF/200 = 208

B: Wellness Offices & Spa 3,430 SF/150 = 22

A-2: Cafe Seating: 1,580 SF/15 net = 106

A-2: Cafe Kitchen: 500/200 = 3

NTS SECOND FLOOR PLAN NTS THIRD FLOOR PLAN NTS
M E D I A
S T U D E N T W O R K
C O N C E P T : C A I R N Support - Balance - HopeGuidance - Mindfulness -
Symmetry - Organic Forms U S E R P R O F I L E S
T H E S O L U T I O N
Nature
B
2 0 2 0 I B C N O T E S

THE MAINSTAY HOTEL

MATERIALS

S T U D E N T W O R K
TO-GO STATION & CAFE SPA ROOM
GUEST BEDROOM

A pop-up shop gets the brand out to the public and needs to immediately entice a potential customer There needs to be samples, information and an option to subscribe or buy the product on site

Create custom fixtures that match the brand's values and products. This allows customers to quickly understand what Sugar Fix is all about

This retro toy provides a colorful and fun visual experience The colorful beads inside reflect light to create symmetrical patterns The negative space in the cylinder allows the beads to move around, create an ever-changing pattern

Revit Photoshop Illustrator InDesign M E D I A
S T U D E N T W O R K
SUGAR FIX
T H E C H A L L E N G E
T H E S O L U T I O N C O N C E P T : K A L E I D O S C O P E
SECTION PERSPECTIVE OF ENTIRE POP-UP Space
Color Pattern FLOOR PLAN NTS 1 2 3 4 5 6 F I X T U R E L E G E N D
Gum iPad
quiz
Movement
Bubble
Stand Touch screens for candy
Large candy jar display Real size candy jars
1 2 3 4 5. 6. User on time crunch J O U R N E Y M A P P I N G Touch point
browsing
Informational touch screens Round candy wall fixtures
Parent/Child
Touch point User leisurely shopping Touch point
C O N T A C T I N F O R M A T I O N THANK YOU! 571-289-5406 Albany, NY elisabeth moffett@gmail com

Turn static files into dynamic content formats.

Create a flipbook
Issuu converts static files into: digital portfolios, online yearbooks, online catalogs, digital photo albums and more. Sign up and create your flipbook.