Architecture Portfolio - Eliot Hodo 2023

Page 1

Eliot Hodo rh865@drexel.edu 858-997-4617 ARCHITECTURE PORTFOLIO
1
2 Table of Contents Powelton Art Center 3 The Storyteller 7 Sunshine Park Rowhome 11 PCR Boat House 15 Tiny Home 19 Other Works 21

Powelton Art Center Spring 2023

Much like how artists break rules, the slanted walls in this design break a common rule of Architecture: straight walls. The existing building was kept in the overall design in order to preserve the character of the historic area. The added structure uses the same materiality and similar layouts as the existing building. Since the building was wrapped around the site, a somewhat private courtyard is created, which is accessible by two large, but intimate, thresholds. These also create three main areas: the labs and workshops, the public gallery, and the private studios and classrooms.

3
4
5
1. Gallery/event Space 2. Studio 3. O ce 4. Lounge Space 5. Classroom 6. Cafe 7. Cafe Seating 8. Storage 9. Bathroom
10. Woodshop
11. Metalshop 12. Digital Fabrication Lab 13. Printing Lab 14. Textile Lab 15. Computer Lab Ground Floor Plan 2nd Floor Plan
2 2 2 3 3 4 5 5 6 7 8 9 9 10 11 12 13 15 14
3rd Floor Plan 1. Gallery/event Space 2. Studio 3. Office 4. Lounge Space 5. Classroom 6. Cafe 7. Cafe Seating 8. Storage
Woodshop
Digital
9. Bathroom
Metalshop
Fabrication Lab Printing Lab Textile Lab Computer Lab
1. Gallery/event 2. Studio 3. O ce 4. Lounge Space 5. Classroom 6. Cafe 7. Cafe Seating 8. Storage 9. Bathroom 10. Woodshop 11. Metalshop 12. Digital Fabrication 13. Printing Lab 14. Textile Lab
Ground Floor Plan 2nd
1 2 2 2 2 2 2 2 3 3 4 4 5 5 6 7 8 9 9 10 11 12 13 15 14
15. Computer Lab
Floor Plan 3rd Floor Plan

Elevation - Looking North

Section - Looking North

Elevation - Looking South

Section - Looking South

Section - Looking West

6

The Storyteller

Winter 2023

This building took inspiration from it’s purpose. Since it’s a library, most of the structure is made up of multiple “books” lined up, similar to how books sit on a bookshelf. Although most of the structure is made up of apartments, having the building represent books brings attention to the library. The proportions of each “book” is similar to rowhomes and easily blends into the surrounding residential area, as well as providing little pockets, which mimics the idea of reading nooks. Murals along Wylie Street tell a story as you walk along the sidewalk, and a local artist could be hired to paint the story of the surrounding area’s history, Black History, or any other significant event. This facade also faces the park across the street, which adds more to the community than if it just faced an alley.

7
8
1. Circulation Desk 2. Reading Area 3. Adult/Teen Computers 4. Child Computers 5. Child Reading Area 6. Conference Room 7. Bathroom 8. Community/Flex Space
7 8 9
9. Staff Room
10

Sunshine Park Rowhome Fall

2022

This project focuses on community and connection with the park placed in the middle of the site. The porch runs along the main street, but also along the park to connect both spaces, creating a sense of welcoming. The screening helps show what spaces are more private. Since the entire second floor is shared space, it extends further than the individual units in order to connect to the park more.

11
12
13
Units
Access
Circulation Common Space
14
Ground Floor 2nd Floor 3rd Floor

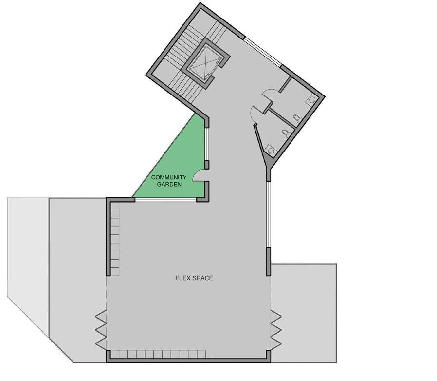
PCR Boat House

Winter 2021

The main desires for this project were community, inclusivity, and to be able to see the river from the street. By splitting into two main structures, someone from the street is able to see the river through the threshold that is created. The threshold is positioned a certain way so it feels like you’re going through a constricted area, then it opens up into a larger clearing along the river. The design also plays with solid and void as a way to allow transparency from the street to the river. The larger structure is much more open and transparent, while the smaller one contains only the circulation core and bathrooms. The third floor is dedicated to the flex space, which is focused around community and inclusion. This is accomplished by having the large, open area with tall ceilings, large windows, and two large balconies.

15
Section - Looking North
16

Ground Floor

17
3rd Floor
2nd Floor
18

Tiny Home Spring 2020

This design won second place in the Design Institute of San Diego Shipping Container Challenge. The home represents an eco-friendly lifestyle for someone who wants to be sensitive to the environment without dedicating their life to it and spending large amounts of time maintaining it. A sink and toilet combo will save water without the extra maintenance of a composting toilet. In the bathroom, a wall of ivy helps absorb excess moisture. The plant-covered roof (green roof), along with solar panels, offer a low-maintenance way to obtain and use clean energy while filtering run-off water. Other benefits of a green roof include lowered cooling/heating costs of the home, extra insulation, and noise reduction. A vertical garden outside allows for plants to grow without taking up a lot of space, while a small hanging garden inside allows easy access to smaller herbs, fruits, and vegetables, like parsley, strawberries, and cherry tomatoes. Although wood or tile might be a popular choice, bamboo flooring is a much better option, since bamboo grows very fast and in copious amounts. Additionally, they last longer and are more resistant to water, mildew, and insects. A unique showerhead allows the person to keep track of how much water they are using in addition to utilizing a water turbine to reduce electricity usage. A small clothes washer can hide away in the closet, while a clothesline outside allows the person to air-dry their clothes and not waste electricity with a dryer. Instead of using a car to travel places, they will ride a bike and prevent unnecessary carbon dioxide emissions. CFL bulbs in the ceiling lights use a lot less energy and release less heat, while still lasting longer than most light bulbs.

19
20

Other Works

21
Growing Pains, 2020 24” x 12” x 8.5” mixed
media

Freedom, 2018

12” x 10” x 11.5”

cardboard

Time, 2021

11” x 17”

mixed media

22

Turn static files into dynamic content formats.

Create a flipbook
Issuu converts static files into: digital portfolios, online yearbooks, online catalogs, digital photo albums and more. Sign up and create your flipbook.