CONDUIT

![]()

















INDUSTRIAL SITES
SEATTLE, WA




























CIRCULATION CORRIDORS
SEATTLE, WA























































































SITE CIRCULATION













































































































































NEW AQUARIUM EXPANSION


PEDESTRIAN STAIRS & ELEVATOR






















NEW PLAYGROUND

































































































































SITE PLAN

















































































































































































































































































16” x 24” GluLam Column

Bracket





























16” x 32” GluLam Beam








































24” Self-Tapping Screws THIRD FLOOR FIFTH FLOOR FOURTH FLOOR





16” Self-Tapping Screws





























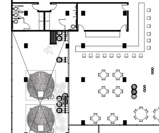
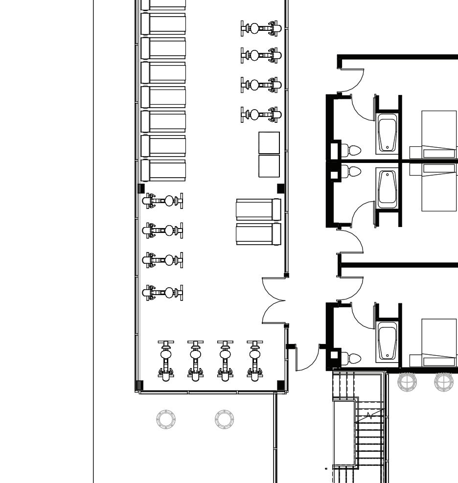
HOSPITALITY
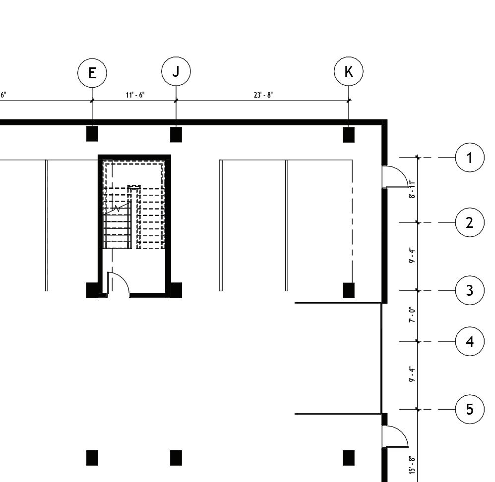
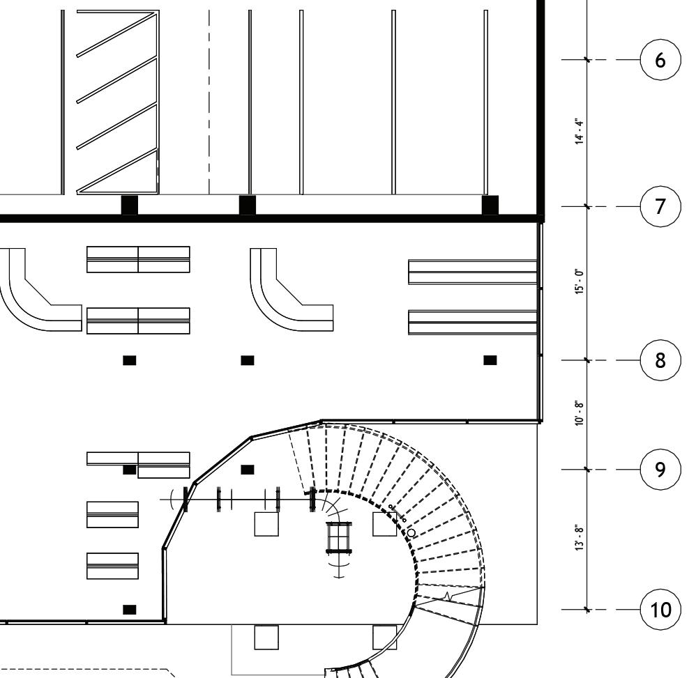
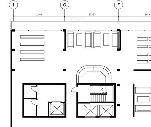
STRUCTURAL GRID

























































































Water is collected from roof and treated on ground oor.

























































































































































Wind is captured from roof and directed down to lower levels for passive cooling.

















































































































































































































































Ventilation from resturant and laundry rooms is directed to the roof.




























Type IV-B height increases daily sun exposure to the roof. Solar tubes capture light and re ect it deep into the building. Industrial Solatubes are e cient up to 100 in length.














Windcatcher
Solatube
Roof Drainage
Laundry Ventilation

NORTHWEST ELEVATION
Maintenence Sca olding
Outdoor Seating
Water Treatment System


Viewing Deck
Greywater Cistern


NORTHEAST ELEVATION
Maintenence Sca olding

Central Core
Gym
Outdoor Balcony

Solatube
Roof Drainage
Windcatcher
Ventilation



Brewery
Outdoor Seating
Viewing Deck

Outdoor Walkway
In-house Brewing Equipment
Water Treatment System
Greywater Cistern


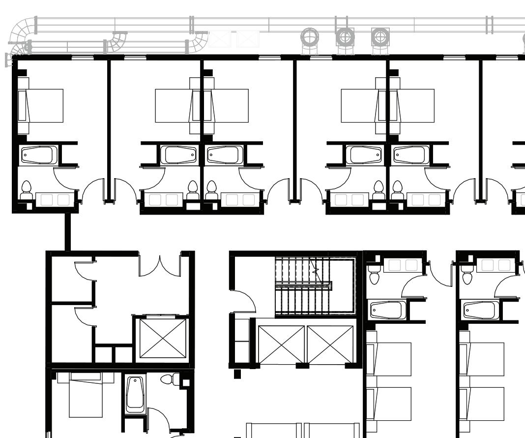
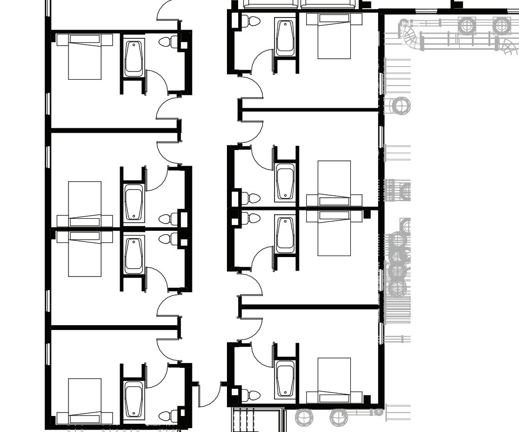
6-12TH FLOORS
FIFTH FLOOR
FOURTH FLOOR



THIRD FLOOR
SECOND FLOOR
GROUND FLOOR




































































































SECTION 01
MAIN LOBBY


























































































sqft
sqft
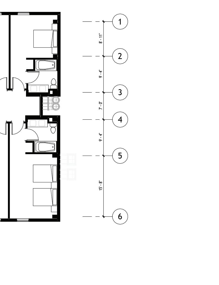
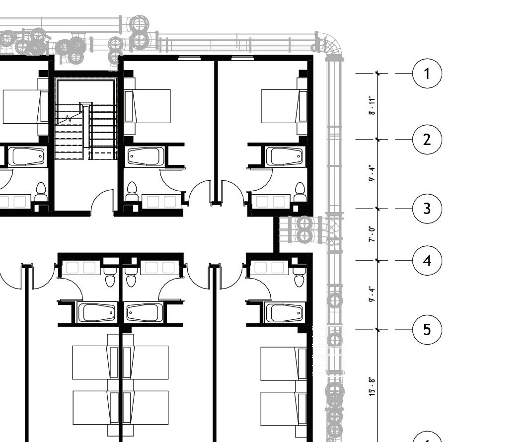
ONE BED (1B)
DIMENSIONS: 12’ 6” x 22’2” AREA: 277 sqft
GUEST CAPACITY:
Total 1-Bed Units: 118
Total 2-Bed Units: 40 Total Units: 158 Total Beds: 198
TWO BED (2B)
DIMENSIONS: 12’ 6” x 26’2” AREA: 327 sqft















7-12 SECTION 1


