AY23-24_501.11+12_Spring Final Booklet

Page 1


Table of contents

Taiwan

Visions of Utopia by the Sea

Theoretical foundation

Utilization of technology

Design approach Economy and sustainability

ABSTRACT

The InterStrait Skyscraper Utopia Timeless Museum, conceived as a monumental edifice in the Taiwan Strait, serves not only as an architectural feat but also as a beacon of the enduring pursuit of utopia through the lens of Chinese civilization. This skyscraper, standing majestically between the vast East China Sea and the turbulent South China Sea, embodies a synthesis of history, culture, and futuristic technology, presenting a unique dialogue between the ancient and the modern. By utilizing the geographic and historical significance of the Taiwan Strait—characterized by its shallow seabed and strategic location—the structure emerges as a new Silk Road, fostering peace and cultural continuity in a region marked by dynamic historical shifts.

The design of the skyscraper integrates elements of various Chinese dynasties, each floor and block distilled into contemporary expressions of historical epochs, through innovative uses of virtual and augmented reality. This blending of digital and physical realms enhances the visitor’s sensory experience, enabling a vivid traversal through time, from ancient streets to the present day. The integration of renewable energy sources—wind, solar, and hydroelectric power—underscores a commitment to sustainability, ensuring that the skyscraper is not only self-sufficient but also a model of ecological resilience.

This project interrogates the possibility of a living museum that transcends traditional static exhibits, proposing instead a dynamic, immersive experience that redefines the perception of time and history. How can such a monumental project reshape our understanding of cultural heritage and its presentation? Moreover, what role can this skyscraper play in the global dialogue on sustainable architectural practices that honor historical legacy while advancing modern technological integration? The InterStrait Skyscraper Utopia Timeless Museum thus stands as a proposal, a question, and a vision—a complex narrative of civilization, innovation, and the eternal quest for utopia.

PROJECT PROPOSAL

The InterStrait Skyscraper Utopia Timeless Museum is designed to radically transform our understanding and presentation of cultural heritage by merging it with cutting-edge architectural and technological innovations. Traditional museums often present history as static and disconnected from the present, but this skyscraper-museum hybrid challenges that by creating a dynamic, immersive environment that engages visitors in a continuous narrative flow of Chinese civilization. Through the integration of augmented and virtual reality technologies, historical epochs are not merely shown but experienced, allowing visitors to walk through recreated historical settings and interact with the cultural artefacts in real-time. This method of presentation not only makes history accessible and engaging to a broader audience, including the digital-native generations but also enhances educational outcomes by providing a multi-sensory learning experience that deepens understanding and retention of historical knowledge.

Moreover, the skyscraper’s design incorporates sustainable architectural practices that demonstrate respect for both historical legacy and environmental stewardship. Situated in the Taiwan Strait, the structure leverages its unique geographic location to harness renewable energy sources such as wind, solar, and hydroelectric power. This not only ensures the operational sustainability of the museum but also sets a global precedent for large-scale architectural projects that integrate cultural heritage preservation with advanced ecofriendly technologies. By doing so, the skyscraper becomes a beacon in the global dialogue on sustainable development, showing how modern buildings can contribute positively to environmental conservation while enhancing cultural and historical education. This project, therefore, serves as a pioneering model for future developments in both museum design and sustainable architecture, proposing a new paradigm where history and modernity converge in harmony against a backdrop of ecological consciousness.

ESSAY

In the center of the Taiwan Strait stands a monument representing Chinese civilization - this skyscraper is not only a building, but also a beacon of human civilization’s eternal pursuit of utopia. This skyscraper bears witness to the eternal dialog between past and future history and culture. The design of each floor and block utilizes contemporary culture to distill the essence of a dynasty. The building is made to be the carrier of a rich picture of Chinese civilization. Here, history is revitalized through the veins of virtual and augmented reality, and the echoes of ancient footsteps are reborn in the simulated streets of a bygone era. The building transcends physical boundaries and becomes a place where culture, technology, entertainment, religion and commerce meet in a crossgenerational narrative. It is a dream woven from historical significance, geographic uniqueness and the sheer will to embody an ancient vision - to create a space where human achievement can not only be told but experienced. The skyscrapers standing in the water are themselves a new Silk Road, a link of communication, a possibility for peace. The combination of sustainable development and cultural integration is a testament to humanity’s desire to achieve peace. It is a timeless museum in the midst of an ever-changing ocean.

The Taiwan Strait has a natural geographic advantage, with the seabed at a water depth of only 60m. Meanwhile in this vibrant Taiwan Strait is not just about convenience or aesthetics. Nestled between the vast East China Sea and the turbulent South China Sea, these waters have silently witnessed the rise and fall of civilizations for thousands of years. In the grand geographic tapestry of the world, the currents of the strait may seem insignificant, but they hold the ever-changing story of a region. As a bridge of trade, cultural exchange and ideological movement, the Taiwan Strait weaves a narrative from the cradle of early civilization to the vastness of the universe, writing a bridge of civilization.

Since the birth of civilization, people’s attention has been focused mainly on land, with different dynasties building their capitals in different places. The Taiwan Strait is like a mirror, objectively participating in and reflecting the conditions of various dynasties. With the advancement of harbor and shipbuilding technology, the ocean became a passageway through the continents and a neutral and eternal recorder. The character of the ocean, like Thomas More’s Utopia and Tao Yuanming’s Peach Blossom Garden, symbolizes an isolated island. It carries each generation’s best vision of a social environment, yet stands all alone. Here, isolation is not pejorative; the unknown it brings makes this monument all the more independent and sacred.

The area is also rich in natural resources that can be exploited. The Taiwan Strait is an important sea route connecting the island of Taiwan with mainland China, providing a solid foundation for the sustainable operation of skyscrapers. With a length of about 180 kilometers at its narrowest point, the Taiwan Strait has strong currents and strong winds, providing ideal conditions for renewable energy generation. Hydroelectric power can utilize the kinetic energy of these currents to generate large amounts of electricity and act as a barrier against strong tides, ensuring the structural integrity of coastal facilities.

In addition, the Taiwan Strait is ideally situated for the installation of solar panels, with plenty of sunshine. It also has great wind potential, especially during the northeast monsoon season. These natural conditions complement the energy mix, making the power supply for the skyscraper both feasible and environmentally sustainable. The building’s water supply needs are addressed by utilizing desalination systems that convert seawater into potable water. These systems, powered by surplus energy from renewable sources, ensure that the skyscraper is self-sufficient in fresh water supply, adopting a holistic approach to sustainable development that takes full advantage of the geography of the Taiwan Strait.

Taiwan’s identity and status are still widely discussed and debated in today’s era. The island’s historical journey from a sparsely populated land to an essential cog in regional and global dynamics reflects the complexity of its relationship with mainland China. Various cultural and political changes have influenced Taiwan’s development, making it a unique and vital entity in East Asia. During Ma Ying-jeou’s administration in Taiwan, cross-strait relations had eased, so Taiwan also had plans for the G3 Beijing–Taipei Expressway. There were three options: north, middle, and south, all undersea tunnels. Among them, the northern route option is the most feasible, from Fuqing in Fujian to Hsinchuan in Taiwan via Pingtan Island.

A total of 144 kilometers, and 126 kilometers from Pingtan Island. Undersea tunnels have been demonstrated for many years. Through the geology and landform data of the seabed, we also have a complete grasp of it. There is also a problem with this tunnel. It is a 126-kilometer pure tunnel, which makes drivers tired when driving. The longest tunnel in the world, the Gotthard Base Tunnel, is only 57 kilometers long. At the same time, the current political environment makes it impossible to continue building the tunnel.

Project name: G3 Beijing–Taipei Expressway
Project Status In progress
Project Start Year: 2000
Project Start Year: Beijing, Hebei, Shandong, Jiangsu, Anhui, Zhejiang, and Fujian Taipei

In Thomas More’s “Utopia,” he depicts Utopia as an island, setting the stage for a philosophical statement about Utopias as skyscrapers erected over the sea. The inspiration for a maritime Utopia draws from the quintessential attributes of the Utopian vision—tranquility, neutrality, equality, and a pastoral connection with nature, reminiscent of Tao Yuanming’s Peach Blossom Spring. This legendary haven, far from the world’s tumult, is a place of peaceful respite where humans live in harmony with nature, free from conflict, and bound by a spirit of egalitarian collectivism. These principles guide the conceptualization of the skyscraper.

When envisioning “Utopia by the Sea,” the first step is to position it away from the territorial and ideological divides that often plague the world. By choosing an environment separated from the mainland, an objective and passive reaction can embrace everyone’s identity, shaping a neutral and peaceful Utopian ideal. Drawing on the spirit of egalitarianism ensures that the architecture and experiences of the skyscraper meet the needs of diverse audiences. Adhering to an objective response to the historical process, this principle affects everything from the layout and accessibility of interior spaces to the planning and activities offered, making it a skyscraper dominated by a timeline. It allows visitors to explore the rich Chinese history and culture within a community-oriented and heritage-sharing environment.

“Utopia on the Sea” echoes the lush, pristine beauty of Tao Yuanming’s Peach Blossom Spring, integrating natural landscapes with architectural design, blurring the boundaries between the built environment and the natural world. Gardens, water features, and open spaces are scattered throughout the skyscraper, inviting visitors to intimately connect with nature, seeking moments of tranquility and reflection amidst the narrative journey through Chinese dynastic history. This integration of natural elements not only enhances the project’s aesthetics and environmental sustainability but also continually reminds visitors of the Utopian vision that supports its creation.

IN the chronicles of Chinese civilization, the concept of summarizing the history of each dynasty within the confines of a museum is a reimagining of how we preserve and honor our collective past. Each dynasty has its unique socio-cultural landscape, philosophical ideas, and architectural forms represented within skyscrapers, akin to traditional museums and cultural halls employing archival methods. This provides a three-dimensional platform where the tapestry of history is vividly redrawn. A record museum catalogs not just the artifacts and narratives of a civilization but also attempts to reconstruct its lived experiences. Visitors walk not through halls lined with artifacts behind glass screens but through streets and palaces where history unfolds. Through the sensory experience augmented by artificial intelligence, narratives guided by the civilization’s own existence lead the journey. Utopia is no longer a distant dream in the best of times but a tangible reality. Establishing utopias at sea, the annals of past eras are woven into the fabric of contemporary society. The structure of this museum skyscraper embodies the dialogue between past and future, inviting exploration of the cyclical narrative of human achievements and ambitions. It reimagines the boundaries between past, present, and future. Isolated from the disputes and disturbances of the outside world. This skyscraper is an objective being in itself. It does not belong to any country of the present. It belongs only to the civilizations that have existed in this land. And with current technology bringing us closer to the ability to restore history, utopia is no longer a distant dream in the best of times. It is a practical reality. Building a utopia on the sea, the chronicles of a bygone era are integrated into the fabric of contemporary society. The very structure of this museum skyscraper embodies a dialog between the past and the future, inviting an exploration of the circular narrative of human achievement and ambition. Re-imagining the boundaries between past, present and future. Create a cohesive vision that honors the past while imagining a future where history, nature, and humanity merge in a harmonious utopia by the sea.

Tao Yuanming’s Peach Blossom Spring
Le Corbusier’s Museum of Unlimited Extension:

And the main direction of Tower is to make a museum of civilization. These three factors mostly affect the process and state of civilization. What we want to do is to allow people to re-experience what happened in each dynasty, to reflect on our past, and to know the past of the region. The social situation of each dynasty affects the entire dynasty. Rise of religion, Decline of trade, and Growth of culture in times of peace. These are all processes that promote social diffusion. Based on the cause and effect theory generated by these objective facts, we thus determine the space and clricluation required for each dynasty by the contribution of the era, the length of time of existence, and the size of the dynasty.

IN the timeline of history, the progress of civilization cannot be separated from three elements: ideology, cultural level, and commercial activities.In China, these categories have traditionally organized museum collections, offering a lens through which the tapestry of the nation’s heritage can be viewed. Merging these three foundational areas with a simulation space gives rise to what is termed a “dynasty block,” a unique architectural concept designed to provide a more nuanced and immersive historical experience. The form and structure of each dynasty block are meticulously shaped by historical factors, allowing visitors to navigate the complexities of the past with greater depth and understanding.

Three Kingdoms period

For example, the Three Kingdoms period, a tumultuous era marked by the division of the realm into three rival states. Reflecting this fragmentation, the dynasty block dedicated to this period features three expansive indoor simulation spaces, each representing one of the kingdoms. Within these simulations, aspects of culture, commerce, and religion are interwoven, drawing from historical events and milestones to create a rich, contextualized experience. The clash between religion and culture is vividly depicted through the narrative of the Taoist uprising, a conflict that not only defined the era but also catalyzed the dynasty’s inception. Meanwhile, the introduction of Buddhism to China, facilitated by the pathways of trade, exemplifies the interplay between commerce and spiritual life during this period. Through such detailed recreations, the architecture itself becomes a storyteller, inviting visitors to step into the living history of the Three Kingdoms, where the lines between past and present blur, and the echoes of ancient times resonate in the modern imagination.

Tang period

Take the Chang’an City of the Tang Dynasty as an example: Take each “block” as a unit, according to the layout of the city at that time, to plan out the commercial area, cultural exhibition area, entertainment activity area, religious activity area, and the scene of life experience area. Tang Chang’an City’s planning layout not only at that time influenced the Japanese Heijo-kyo, Heian-kyo and Tang Bohai on the capital of Longquanfu, etc., but also on the modern Xi’an master plan also produces a great reference role. The layout of Tang Chang’an became a model for ancient urban planning with its strategic layout of natural landmarks and planned grid system. The city was a gathering of political and economic power, as well as a cultural and religious center. Its symmetrical layout, with the imperial palace at its center and extending outward into the city’s carefully organized grid, symbolized the Tang Dynasty’s emphasis on order, harmony, and hierarchical structure. The incorporation of natural water systems into irrigation and transportation highlights the advanced engineering skills of the time, while extensive greening and beautification efforts reflect the dynasty’s appreciation of aesthetics and understanding of the environmental and social benefits of urban green spaces.

CONCLUSION

In the vast Taiwan Strait, where the horizon stretches as far as the eye can see, skyscrapers stand as beacons of human aspiration, testament to the enduring spirit of inquiry and innovation that has propelled civilization forward through the ages. This skyscraper rising from the water is more than just a steel and glass structure; it is a bridge across time, connecting China’s rich past with the limitless potential of its future. It encapsulates the essence of countless dynasties, each contributing its own unique color to the vibrant mosaic of history, while meeting the challenges of modern sustainability and economic vitality.

The skyscraper exists as a bold statement of possibility, when we dare to dream, blending the wisdom of the past with the innovations of the present to create a future in which cultural heritage and technological advances blend harmoniously. Through the design of the Folding Box, the project transcends traditional architectural paradigms, offering a dynamic, immersive journey through the history of Chinese civilization, while its economic model provides a sustainable blueprint for the future of architecture.

DESIGN METHODOLOGY STATEMENT

The design methodology for the InterStrait Skyscraper Utopia Timeless Museum is founded on an integrative approach that combines architectural innovation with a profound respect for historical narrative and environmental sustainability. Our methodology emphasizes a holistic view, where every aspect of the museum’s design is thought through to ensure it supports the overarching goal of creating an engaging, educational, and sustainable cultural space.

At the heart of our design process is the commitment to creating a dynamic experience that bridges the past with the present. We achieve this by structurally dividing the skyscraper into segments that represent different eras of Chinese civilization, each designed to reflect the distinct cultural, architectural, and technological advancements of its time. This segmentation allows for a fluid but coherent narrative journey through the museum, guided by an architectural layout that facilitates both linear progression and nonlinear exploration, encouraging visitors to engage with history at their own pace.

Technological integration is central to our methodology. Augmented and virtual reality technologies are employed not just as add-ons but as integral components of the exhibition spaces, enhancing the realism of historical environments and making them interactive. This approach transforms traditional museum exhibits into immersive experiences, making history palpable and more directly engaging for visitors from all walks of life.

Sustainability drives the physical and operational design of the skyscraper. Utilizing the natural resources abundant in the Taiwan Strait, the building is powered by renewable energy sources—solar, wind, and hydroelectric power. The architecture includes features that optimize energy efficiency and minimize environmental impact, such as high-performance glazing, rainwater harvesting systems, and green roofs. These features underscore our commitment to preserving the site’s natural beauty and ecological balance, ensuring that the museum not only narrates history but also contributes positively to environmental conservation.

Through this methodology, the project aspires to set a precedent for future cultural institutions, embodying innovation in museum design and sustainability in architecture.

SUSTAINABILITY

Seawater Desalination

We can incorporate a seawater desalination system into the program of the Strait Tower to alleviate future economic losses related to the busy traffic on the Expressway and the construction of freshwater transportation pipelines. A seawater desalination system is a technology that removes salt and impurities from seawater, making it suitable for drinking and irrigation. Although traditionally considered as independent infrastructure, it can be integrated into architectural design. Seawater desalination plants can be carefully integrated into buildings, using the waste heat generated by the building to power the desalination process. Rooftop greenhouses can capture freshwater vapor, providing a sustainable water source. This integration not only ensures the building’s self-sufficiency in water but also promotes sustainability. It represents a forward-thinking architectural approach to addressing the challenge of water resource scarcity in an innovative and environmentally friendly manner.

Waste Recycle

The aforementioned examples summarized and provided inspiration and references for the design of Strait Tower. We believe that there is now sufficient technology to meet the construction requirements of this project. We hope that the Strait Tower can make the currently in the planning and construction phases’ Beijing-Taipei Espressway more attractive. As a result, we aim to create a platform and space for genuine friendly exchanges between people from both sides of Taiwan Strait.

A waste recycling system is an important component of sustainable living, involving waste collection, sorting, and processing to divert it from landfills and reduce its environmental impact. When integrated into buildings, it enables on-site recycling, composting, and wastewater treatment for self-circulation. This minimizes waste, conserves energy, and establishes a sustainable closed-loop system, showcasing eco-conscious architecture promoting self-sufficiency and environmental responsibility

Nathanson, J. A. and Ambulkar, . Archis. “wastewater treatment.” Encyclopedia Britannica, October 5, 2023. https://www. britannica.com/technology/wastewater-treatment.

Unknown, Unknown. “Home.” English Website, 2023. https://pureaqua.com/seawater-reverse-osmosis-systemsswro/?keyword=&utm_source=google&utm_medium=cpc&utm_campaign=DSA_Systems&gad_ source=1&gclid=Cj0KCQiAj_CrBhD-ARIsAIiMxT8oPyZNt-Q0Z1N3diRmPypLBOA_5rXrg8CQFHID58ndKbPBf_Stm_ YaArTpEALw_wcB.

After studying the site, we found that wind and solar energy on site became excellent power generation facilities for them. There is no light blocking at sea, and there is enough wind power to drive wind power facilities.

Wind Energy

Wind energy is a method of powering the Strait Tower. There are various examples of placing wind turbines above water. Offshore wind power involves turbines anchored in bodies of water to generate clean energy from the wind. Integrating offshore wind with above-water architecture shows potential for floating and fixed platforms that can support turbines while serving as foundations for various structures, such as research facilities, hotels, or aquaculture farms, facilitating the exchanges of China Mainland and Taiwan. This dual functionality promotes sustainable development, harnessing renewable energy while expanding possibilities for coastal construction. These integrated systems can enhance energy self-sufficiency, reduce environmental impact, and adapt to a renewable energy-driven future.

PHOTOVOLTAIC CURTAIN WALL

Curtain walls are becoming a popular application for photovoltaic glass in buildings. They allow owners to generate power from areas of the building they had never thought of. Buildings become a natural power plant, keeping their design appeal, aesthetics, efficiency, and functionality.

Both amorphous Silicon and crystalline Silicon glass can be used for curtain applications, and choosing one or another will depend on your design preferences, energy needs, and daylight conditions.

PV Glass for curtain walls comes frameless, and it can be assembled into any commercial system. From a mechanical perspective, the glazing contractor will take care of its installation, and then the electrical contractor will interconnect the units.

Different visible light transmittance levels are also an option. A typical curtain wall system can combine semi-transparent PV Glass for the vision areas with fully dark glass for the spandrel. This strategy contributes to optimizing the energy yield from the elevation while maintaining unobstructed views.

Pham, Minh. “All about Offshore Wind Turbine Foundations.” All About Offshore Wind Turbine Foundations, April 12, 2022. https://blog. virtuosity.com/all-about-offshore-wind-turbine-foundations.

Unknown, Unknown. “Photovoltaic Curtain Wall.” Curtain Wall with Photovoltaic Glass - Onyx Solar solutions for buildings, 2023. https:// onyxsolar.com/product-services/photovoltaic-glass-solutions/pv-curtain-wall.

Seawater Desalination System Seawater Desalination Machine
Seawater Reverse Osmosis Desalination Systems SWI Sewage Sludge Treatment
GE Haliade-X Offshore Wind Turbine Diagram Wind Farms System
Photovoltaic Glass

SEA AND STRUCTURE

Sub-sea Tunnel Structure

The Channel Tunnel (Chunnel) is connecting the United Kingdom and France beneath the English Channel. Construction began in 1988, and it was completed in 1994. The tunnel consists of three interconnected tubes: two for train transport and one service tunnel. These tubes are held in place by precast concrete segments. Notably, the Chunnel incorporates innovative safety measures, including fireproofing and a constant airflow system. The tunnel’s depth and design ensure it can withstand the immense water pressure and seismic activity of the channel. It stands as a testament to cross-border cooperation and modern engineering.

Offshore Drilling Platform Structure

Troll A platform, located in the North Sea off the coast of Norway. Standing at an astounding height of 1,548 feet (472 meters), it’s one of the tallest and heaviest structures ever moved by mankind. This concrete gravity-based platform, constructed in the early 1990s, weighs about 656,000 tons and serves as a key gas production facility. It’s supported by enormous concrete legs, each 36 meters in diameter and filled with seawater for stability. Troll A is known for its innovative design, extreme engineering challenges, and its vital role in Norway’s offshore gas production industry.

Bullwinkle oil platform is a massive offshore structure standing at 1,736 feet tall. Constructed in 1988, it’s an iconic oil rig located in the Gulf of Mexico.

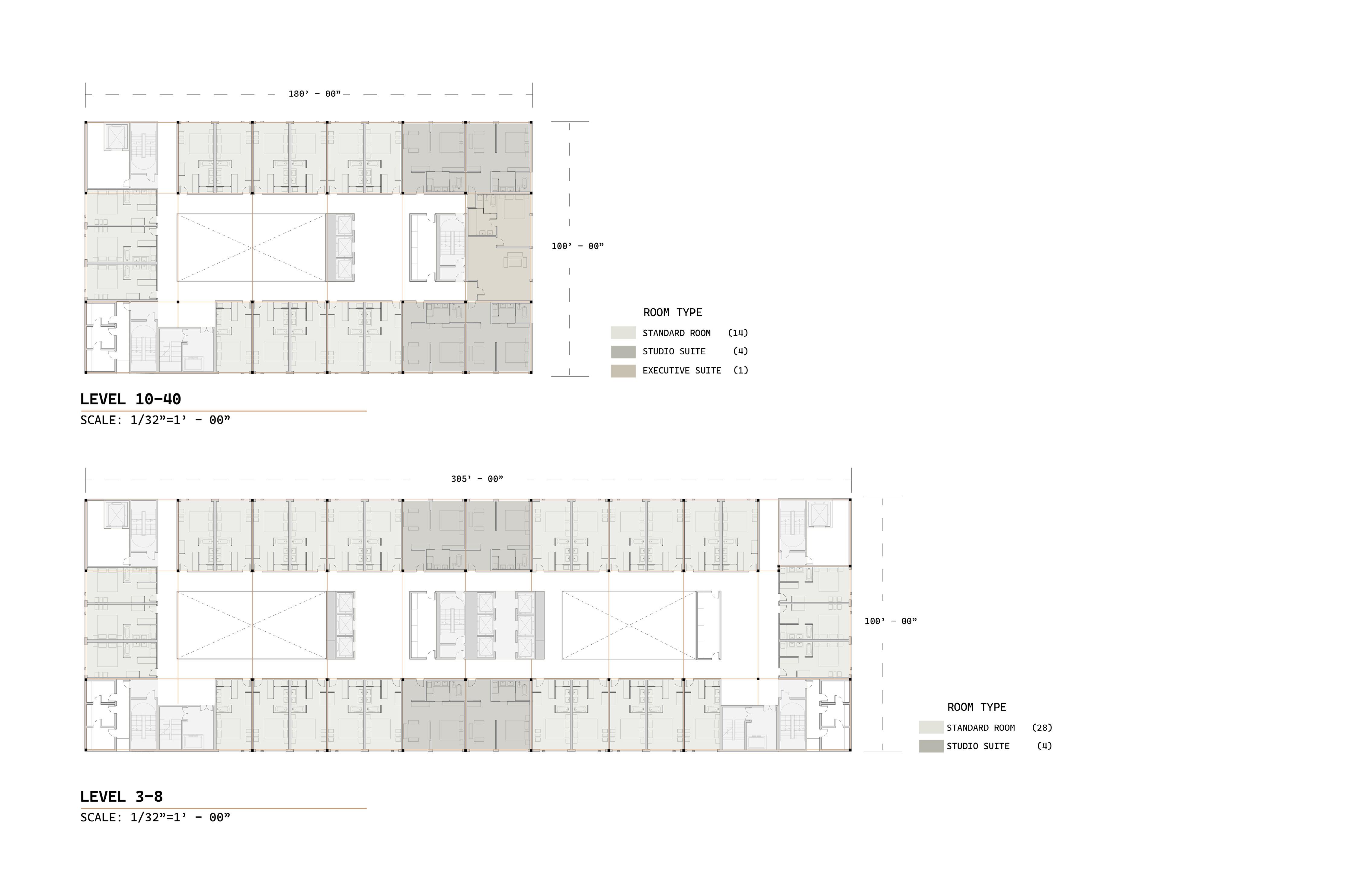
PLAN DRAWING

Hotel

within the InterStrait Skyscraper is not merely an accommodation facility but a strategic component that enhances visitor experience, economic stability, cultural tourism, educational outreach, and accessibility.

Enhanced Visitor Experience: By providing accommodation, the hotel allows visitors to extend their stay at the museum, thereby deepening their engagement with the exhibits and educational programs. It enables a more relaxed visit, where guests can take their time to explore the rich history and cultural displays without the pressure of a day trip.

Economic Viability: A hotel integrated into the museum structure adds a crucial revenue stream that can support the operational costs of the museum. It diversifies the economic base of the project, reducing dependency on ticket sales alone and providing financial stability. This can be particularly important in ensuring the long-term sustainability of the museum.

Promotion of Cultural Tourism: The hotel can serve as a significant draw for international tourists, making the museum a destination rather than just a point of interest. This supports the local economy by increasing visitor numbers and promoting longer stays in the region, which benefits local businesses and services.

Educational Opportunities: The hotel offers unique educational opportunities such as themed rooms or immersive experiences that extend the museum’s narrative into the personal spaces of visitors. This can create memorable learning experiences that resonate on a personal level.

Conference and Event Hosting: With facilities for conferences and events, the hotel can attract academic, cultural, and corporate gatherings that relate to the museum’s themes. This not only adds another layer of functionality but also promotes the museum as a center for scholarly and cultural discourse.

Enhancing Accessibility and Inclusivity: The presence of a hotel can make the museum more accessible to people from diverse geographical and socio-economic backgrounds. It provides a practical solution for those traveling from afar, particularly school groups or international tourists, making cultural education more inclusive.

CURTAIN WALL STUDY

BIBLIOGRAPHY

Wikipedia. “History of Taiwan.” Last modified April 2, 2023. https://en.wikipedia.org/wiki/History_of_Taiwan.

Copper, John. “Taiwan.” Encyclopædia Britannica, December 15, 2023. https://www.britannica.com/place/Taiwan.

Wikipedia. “Cultural Lag.” Wikipedia, October 9, 2023. https://en.wikipedia.org/wiki/Cultural_lag.

Unknown, Unknown. “Chinatown and Little Italy Historic District New York, New York (U.S. National Park Service).” National Parks Service, March 4, 2020. https://www.nps.gov/places/new-york-chinatown-and-little-italy-historic-district.htm#:~:text=During%20 the%201870s%2C%20the%20Chinese,to%20form%20various%20social%20societies.

Unkown, Unkown. “Taiwan Strait Channel Is Proposed to Cross the Two Sides in Half an Hour.” ̨̨, November 16, 2005. http:// fuqing.com/content.asp-catid=114725448.htm.

Mambra, Shamseer. “5 Biggest Oil Platforms in the World.” Marine Insight, November 19, 2023. https://www.marineinsight.com/ offshore/5-biggest-oil-platforms-in-the-world/.

Nathanson, J. A. and Ambulkar, . Archis. “wastewater treatment.” Encyclopedia Britannica, October 5, 2023. https://www. britannica.com/technology/wastewater-treatment.

Unknown, Unknown. “Home.” English Website, 2023. https://pureaqua.com/seawater-reverse-osmosis-systemsswro/?keyword=&utm_source=google&utm_medium=cpc&utm_campaign=DSA_Systems&gad_ source=1&gclid=Cj0KCQiAj_CrBhD-ARIsAIiMxT8oPyZNt-Q0Z1N3diRmPypLBOA_5rXrg8CQFHID58ndKbPBf_Stm_ YaArTpEALw_wcB.

Wikipedia. “Cultural Lag.” Wikipedia, October 9, 2023. https://en.wikipedia.org/wiki/Cultural_lag.

Unknown, Unknown. “Chinatown and Little Italy Historic District New York, New York (U.S. National Park Service).” National Parks Service, March 4, 2020. https://www.nps.gov/places/new-york-chinatown-and-little-italy-historic-district.htm#:~:text=During%20 the%201870s%2C%20the%20Chinese,to%20form%20various%20social%20societies.

Unknown, Unknown. “About Expo ’70 in Osaka.” The Official Site of the Tower of the Sun Museum. Accessed December 15, 2023. https://taiyounotou-expo70.jp/en/about/expo70/.

Bhabha, Homi K. The Location of Culture. London: Routledge, 1994.

Unknown, Unknown. “About Expo ’70 in Osaka.” The Official Site of the Tower of the Sun Museum. Accessed December 15, 2023. https://taiyounotou-expo70.jp/en/about/expo70/.

Bhabha, Homi K. The Location of Culture. London: Routledge, 1994.

Buber, Martin. I and Thou. Translated by Walter Kaufmann. New York: Charles Scribner’s Sons, 1970.

Wikipedia. “History of Taiwan.” Last modified April 2, 2023. https://en.wikipedia.org/wiki/History_of_Taiwan.

Copper, John. “Taiwan.” Encyclopædia Britannica, December 15, 2023. https://www.britannica.com/place/Taiwan.

Pham, Minh. “All about Offshore Wind Turbine Foundations.” All About Offshore Wind Turbine Foundations, April 12, 2022. https://blog.virtuosity.com/all-about-offshore-wind-turbine-foundations.

Unknown, Unknown. “Photovoltaic Curtain Wall.” Curtain Wall with Photovoltaic Glass - Onyx Solar solutions for buildings, 2023. https://onyxsolar.com/product-services/photovoltaic-glass-solutions/pv-curtain-wall.

Turn static files into dynamic content formats.

Create a flipbook
Issuu converts static files into: digital portfolios, online yearbooks, online catalogs, digital photo albums and more. Sign up and create your flipbook.
AY23-24_501.11+12_Spring Final Booklet by Elias Xian - Issuu