portfolio_EA_2024

Page 1


le phare en verre

sous la tutelle de guillaume pelletier en collaboration avec emilie gras-poncet et julia lavoie automne 2024

Le phare en verre met en valeur l’existant en intégrant des espaces végétalisés, une rue piétonne éponge et un volume de circulation en verre qui relie, plutôt que de séparer, les deux masses principales Inspiré par le langage industriel du viaduc Van Horne, il transforme la division en opportunité, offrant des vues dégagées, une meilleure gestion acoustique et un lien visuel avec la nature

Une attention particulière est portée à la réutilisation de la typologie montréalaise du quartier et à l’intégration harmonieuse dans son cadre bâti Enrichi par un programme social - Silence, ça pousse - incluant des cours de cuisine intergénérationnels, le projet privilégie la conservation des ressources, réduit l’empreinte carbone et crée des espaces de vie durables pour la communauté

deux masses divisées

réhabilitation

module collectif unissant

plan de site

quartier du mile end

La tôle ondulée, qui habillait la façade de l’ancien bâtiment, rend également hommag au quartier Elle est réinterprétée de manière fonctionnelle et esthétique en fonctio des besoins du programme, et utilisée de manière contemporaine tant sur les façad qu’à l’intérieur, aux côtés de poutres et colonnes apparentes, et de mezzanines L volumes élevés et les espaces ouverts font écho aux codes industriels tout e maintenant une échelle humaine, notamment en façade sur le boulevard Sain Laurent Ici, la brique existante est conservée et un mur vitré permet une séparatio subtile tout en préservant la transparence et l’ouverture sur l’espace public

percée visuelle

programme circulaire & éducatif

viaducvanhorne

basketball

axonométrie schématique implantation & morphologie

le phare en verre module de circulation habitable collectif + -

bibliothèque divertissement coworking zone café

plan 1er étage

transversale boulevard saint-laurent

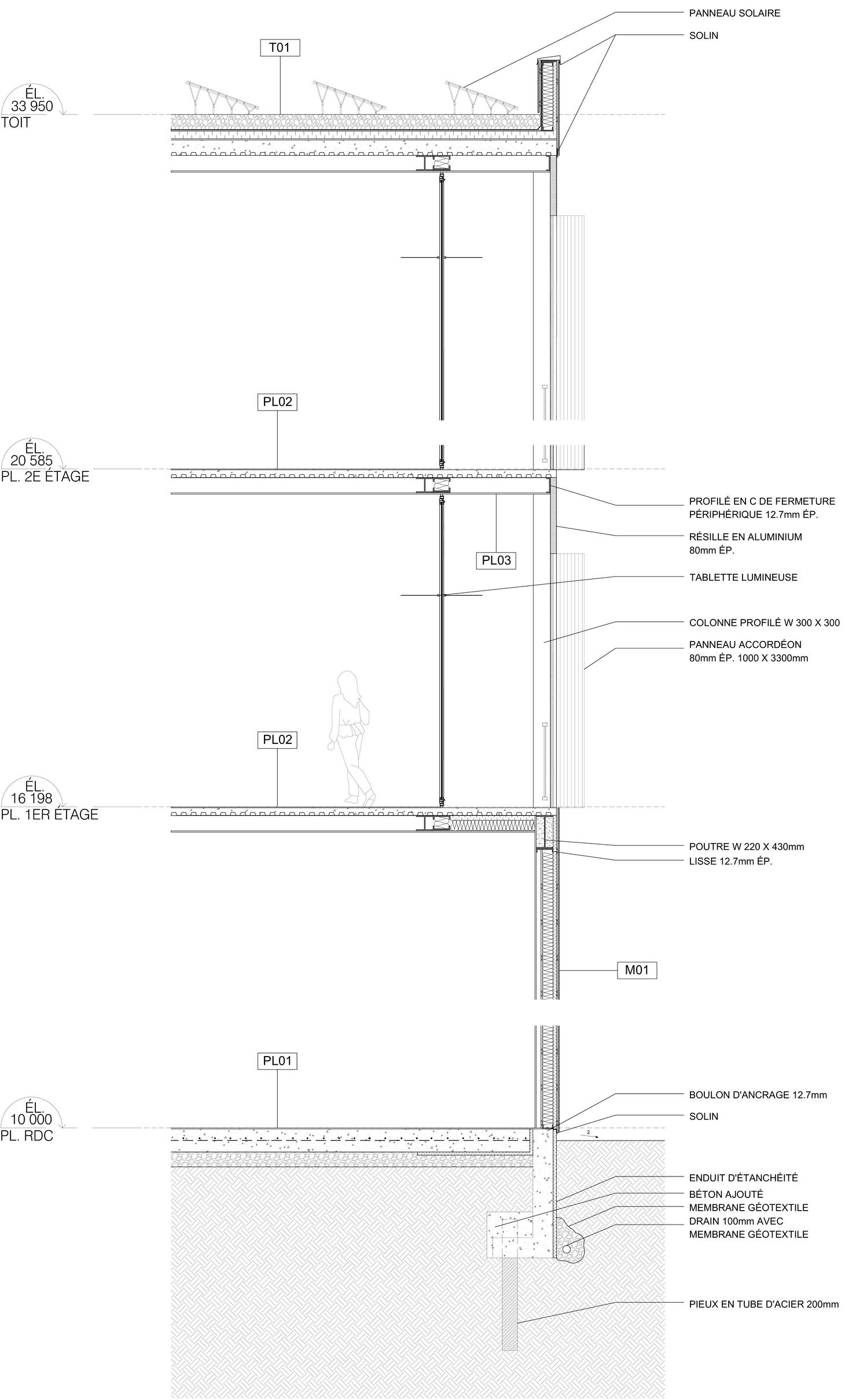
coupe

coupe de mur façade transversale

façade double en tôle d’aluminium blanche et avec résille

sous le toit

sous la tutelle de richard langford hiver 2024

La maison à patio est un dispositif d’habitation revisitant le mode de vie de la banlieue à l’aide du concept de tissage et de mat building Elle naît d’une préoccupation au niveau de l’environnement et de l’enjeu social que représente vivre en collectivité. Le dispositif fait état des dimensions architecturales, sociales et programmatiques. Il se décompose en deux bandes agissant comme datum et en ayant des espaces de nuit et de jour séparés.

Ici, le concept de proxémie d’edward hall est utilisé dans le but de retravailler le tissu social individualiste alimenté par le capitalisme. L’approche choisie pour contrer l’isolement se déroule via la cuisine, espace collectif aux trois ménages de l’ilot, puisque les repas sont un moment propice aux échanges et rencontres aléatoires dans le dispositif : c’est le gouvernail guidant vers le retissage d’un nouveau tissu social.

publique

personnelle sociale intime

comment utiliser l’architecture pour modeler une nouvelle notion de proxémie?

disposition d

développem

des servants + navigation process + syntaxe d’interstice

ment du dispositif

plan rdc
coupe BB

toits végétaux

blocs servants

deux corps de logis principaux

topographie

bassins de rétention zones végétales

la cuisine collective est désigné pour les re aléatoires. c’est autour que le jeu de proxé confort, de distance, de de tissu social se déf retisse

maison-atelier junko

sous la tutelle de guillaume pelletier automne 2024

Le projet vise à maintenir une perméabilité visuelle et physique au niveau du sol en aménageant une « rue urbaine » dynamique, où se situe un espace d’exposition pour le sculpteur résident

Le duplex s’articule autour de quatre niveaux : un rez-dechaussée, où se trouvent un atelier et une galerie d'exposition, un étage pour les grands-parents, un second étage pour la famille de quatre, et un toit terrasse, conçu comme un espace de repos et de promenade

L’aménagement intérieur adopte un style loft industriel, avec des murs détachés du plafond pour accentuer la fluidité des espaces. La structure orthogonale est laissée visible, renforçant le caractère industriel du bâtiment Les entrées des logements sont situées dans la partie la plus lumineuse, tandis que les espaces de nuit, plus calmes, occupent l’autre côté Des détails comme une résille sérigraphiée ajoutent une touche contemporaine à l’esthétique générale.

La conception du bâtiment s’inspire de l’esprit créatif du Mile End De forme rectangulaire, il utilise la maçonnerie comme matériau principal Les panneaux végétalisés, en plus de leurs propriétés acoustiques, ajoutent une dimension visuelle en projetant des ombres changeantes, tout en mettant en valeur la structure d’acier apparente.

L'atelier, conçu sur mesure pour l’artiste, offre des volumes spacieux, avec une hauteur sous plafond de 3 mètres et une grande porte de garage pour faciliter l’entrée de grands matériaux. La lumière naturelle envahit cet espace, favorisant ainsi le processus créatif dans un environnement agréable et fonctionnel.

Le toit terrasse et les espaces extérieurs enclavés dans la structure du bâtiment créent des moments de convivialité entre les occupants des deux logements.

contexte urbain

le site s’inscrit dans le quartier artistique et industriel du mile end. auparavant, la parcelle accueillait l’hôtel de la gare avant d’être épris des flammes et de devenir un espace vert

le site comprend des contraintes anthropiques et naturelles comme l’acoustique et les “flash floods”

viaduc van horne réseau autoroutier voies piétonnes pistes cyclables plan site

balcon2e
balcon1er
terrasse extérieure

histoire

a. hôtel de la gare dans les années 80, accueillait les voyageurs de la gare du mile end

b. site en 2024, zone reconvertie en espace vert

strates

Concept de strates en plan et en élévation

L’intérieurduduplexsediviseendeux strates distinctes : une strate de jour, lumineuseetouverte,etunestratede nuit, plus intime, située côté mitoyen. Cette organisation spatiale crée une transition naturelle entre des espaces baignés de lumière et des ambiances plustamisées

logementfamille(4) logementgrands-parents(2) atelier+expo

plan rdc

élévation boulevard saint-laurent

élévation rue bernard est lumière panneaux perforés

l’escalier

sous la tutelle de stephan chevalier en collaboration avec estelle dupuis automne 2024

Le projet exploré ici imagine un escalier architectural intégré au cœur d’une bibliothèque publique, conçu non seulement pour relier les niveaux mais pour offrir une expérience immersive de lecture et de contemplation. En revisitant la fonction de l'escalier, ce concept introduit un espace de transition unique, où les bancs en gradins y sont savamment agencés, invitant le lecteur à s’installer, à ralentir, à se détendre en feuilletant un livre ou simplement en observant les alentours

L'escalier s’inscrit dans une approche biophilique affirmée. Construit autour de l'idée que l’humain entretient un lien profond avec la nature, ce projet reconnaît l’impact bénéfique de celle-ci sur le bien-être physique et mental Les éléments biophiliques y sont intégrés avec soin : un bac planté de verdure se déploit le long de la montée, comme une coulée végétale qui accompagne le visiteur Les plantes, nourries par la lumière d’un puits de lumière monumental situé juste au-dessus, créent une atmosphère apaisante, évoquant une percée naturelle dans le béton de la ville.

La matérialité joue un rôle crucial dans cette immersion. Le revêtement de l’escalier est en bois de chêne, un matériau chaleureux dont la finition atectonique diffuse un sentiment de proximité et absorbe également les bruits environnants, permettant ainsi une transition douce vers une ambiance de lecture feutrée Il ne s’agit pas seulement d’un choix esthétique, mais d’une réflexion sur la manière dont la matérialité peut modeler les expériences sensorielles.

L’aspect biophilique de l'escalier se poursuit dans le design des mains courantes et des garde-corps, en acier revêtu d’une peinture vert tendre Cette teinte, loin d’être anodine, rappelle les jeunes pousses végétales et semble être une extension de la nature qui habite l’espace Les lignes fines et ascendantes des structures métalliques s’inspirent de la croissance naturelle des tiges de plantes, créant un mouvement qui guide subtilement le regard vers le haut et invite les visiteurs à poursuivre leur ascension.

concept bac végétal

coupe longitudinale

gros plan sur le palier

en collaboration et en solo hiver et automne 2024 divers

a.
b.
c.

a. maquette de servants 1:200 case study house 21

b. maquette de proxémie 1:50

c. maquette finale maison à patio 1:100

d. maquette 1:150 duplex

e. maquette 1:200 duplex

f maquette 1:150 logement collectif

d.

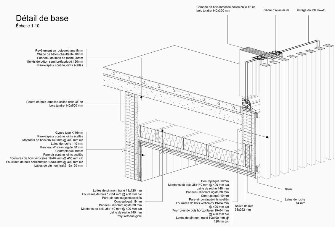
Détail adapté du complexe sportif de Sargans situé en Suisse ayant une structure en bois lamellée-collée.

Le détail sélectionné est tiré d’une coupe générale de la façade. C’est un détail de jonction plancher-façade en porte à faux entre le rez-de-chaussée et l’étage avec une fenêtre battante en façade et un système extérieur de lattes verticales L’étage est destiné à des espaces de bureaux avec un système de plancher chauffant

Ce détail comportait plusieurs défis techniques: gérer une grande section en porte-à-faux, des ponts thermiques, une poutre de dimensions importantes, une jonction de fenêtre battante, la quantité restreinte d’information sur le projet ainsi que l’absence de clarté de certains éléments constructifs et une isolation thermique respectant les normes québécoises.

Turn static files into dynamic content formats.

Create a flipbook
Issuu converts static files into: digital portfolios, online yearbooks, online catalogs, digital photo albums and more. Sign up and create your flipbook.
portfolio_EA_2024 by Elizabeth Alain - Issuu