Elena Cheibaș Matcovschi - Architecture Portfolio

Page 1

ARCHITECTURE PORTFOLIO

ELENA CHEIBAȘ MATCOVSCHI

TABLE OF CONTENTS

01 AFFORDABLE HOUSING, VISALIA, CA M. ARCH. LOUISIANA STATE UNIVERISTY 03 EDUCATIONAL COMPLEX, CHISINAU, MD M. ARCH. TECHNICAL UNIVERSITY OF MOLDOVA THE HEALING EXPERIENCE, WYOMING M. ARCH. LOUISIANA STATE UNIVERISTY 04 05 PROJECT HOUSE IN MOSCOW, RU UPCON SRL 06 SHOWROOM, NIGERIA FREELANCE PROJECT 02 COMMUNITY CENTER, BATON ROUGE, LA M. ARCH. LOUISIANA STATE UNIVERISTY

AFFORDABLE HOUSING, VISALIA, CA M. ARCH. LOUISIANA STATE UNIVERISTY

The 2021-22 Architecture at Zero competition focused on decarbonization, resilience and equity. The challenge of the project design a ordable housing for farmworker families in California’s Central Valley. Key aspects of this project include responding to the challenges of equity and resilience through the design solution.

01

Terrace area

Community Center

Residential area

Residential Zone (first floor)

Residential Zone (second floor)

The Indicators of the Energy E ciency

Residential Zone (first floor)

In this stage of the project, the EUI factor was calculated, the Annual Hourly Emissions and Energy, Annual Electic and Use in order to design a building nancially feasible. The solution was to develop resilience strategies, such as access to green spaces and community services.

Cisterns Living Machine System Bioswale
Cells Tidal Flow Cells Filters
COLLECTION AND USE
- Site Irrigation -Off - Site Irrigation -Toilet Flushing Screen Filters for Irrigation System Recirculation Tank Flow Equalization Storage Tank Wastewater
Raiwater
Flow
WATER
-On

COMMUNITY CENTER, BATON ROUGE, LA

M. ARCH. LOUISIANA STATE UNIVERISTY

For the Community Center Project, the use of green infrastructure was introduced as a method of capitalizing on the components of nature to obtain environmental, economic and social bene ts. I have proposed natural areas and ecological corridor for an environment conducive to animal and plant species, ensuring the protection and connectivity of natural ecosystems. Baton Rouge green spaces can minimize the negative e ects of summer heat waves and improve air quality. The goal of this project in Baton Rouge was the developing and implementing innovative building and green infrastructure to transform the city into a community of opportunity. By focusing on neighborhood scale, the project is centered on the needs and interests of the residents from Baton Rouge.

02

By estimating and analyzing the methods of reducing the overall energy consumption of Community Center, and with the application of di erent sustainable strategies, the EUI is reduced. The methods and strategies for reducing the EUI will nd productivities that can lead to a great amount of cost investments.

Community Center - Incident Radiation Study generated by Ladybug

For the Facade, the adaptive facades provide buildings with exibility so that they can respond to varying weather conditions and occupant preferences. It is increasingly recognized as a promising option for achieving a high indoor environmental quality while o ering the potential for low-energy building operation. The Ventilated facades with integrated building elements that respond to climatic conditions (mechanized openings and automatic shading with intelligent control) present promising potential in improving the overall annual energy savings by adapting the thermal properties of the structure to contradictory climatic conditions throughout the year.

Outlet vents Open Air cavity Intake vents Open Internal window closed Outlet vents Closed Air cavity Internal window Intake vents Closed Outlet vents Closed Air cavity Internal window closed (a)
Multi-Skin Adaptive Ventilated Facade
(b) (c)

BIOPHILIA AIR QUALITY

Right next to the chosen land for the Community Center, there is Dawson Creek, which makes a huge diference, namely that of a pleasing accent to the natural landscape, thus being in connection with the created Green Corridor. The green infrastructure that was implemented in my project includes environmental elements of diferent shapes and sizes that are part of an interconnected ecological network. It is also multifunctional, which means that it can perform multiple functions.

Green Corridor Infrastructure
Climate Consultant Analysis THERMAL COMFORT NOISE ABSORPTION

EDUCATIONAL COMPLEX, CHISINAU, MD M. ARCH. TECHNICAL UNIVERSITY OF MOLDOVA

The Educational Complex is located in the city of Chisinau, Ciocana sector, Bd. Mircea cel Batran. In this zone there is an existing building, which is also intended for Educational Institutions, a kindergarten for 800 children. Because this construction is in a deplorable, ruined state, and consists of prefabricated panels, the land is also in a ruined state that requires its processing. I The purpose the designing of an Educational Complex for Children, consisting of a kindergarten, a primary school and a medical block.

03

Education Center for Children

Elena Cheibaș
25 25 25 25
Educational Center Sketch Precast Concrete Foundation Beam Elaborated by: Elena Cheibaș Professor: Kristopher Palagi
50 50 50 50 Educational Complex Analysis
Column
2 3 1
Rainscreen Cladding Systems 1- Backing Wall 2 - Vapour Control Layer 3 - Insulation 4 - Panel Support System 5 - Panels 6 - Panel Joints
5 6 4
Rainscreen Structure

THE HEALING EXPERIENCE, WYOMING M.

The goal of The Healing Space is to implement traditional medicine from the Lakota People to everyone. To use their sacred treatments and rituals. Also, the creation of a space created with the values and principles of native people to educate and learn Lakota medicine. People are becoming more interested in how to maintain a healthy body from the inside out. The Lakota Indigenous and many other Indigenous tribes always have and still do practice “natural medicine.” The Lakota People believe that medicines are people. Native Americans believe that a person is made up of the body, spirit, and a destiny. The ancient Lakota Indian doctors not only cared for the physically ill but for the emotionally upset as well.

04
ARCH. LOUISIANA STATE UNIVERISTY

The Healing Space is a place for people in order to learn about Lakota Medicine. Through this design concept, it will have a large impact on developing the medicine skills. The medicine wheel is a sacred symbol used by the Lakota and others to represent spiritual knowledge and a connection to everything in the universe. It is a symbol of unity, good health, well-being, honor, and recognition. The medicine wheel consists of a circle through the center of which is drawn a horizontal and vertical line.

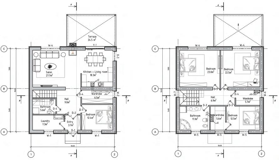
PROJECT HOUSE IN MOSCOW, RU

05
UPCON SRL
06
FREELANCE
SHOWROOM, NIGERIA
PROJECT
cheibas.cheibas@gmail.com 504 - 390 - 8505

Turn static files into dynamic content formats.

Create a flipbook
Issuu converts static files into: digital portfolios, online yearbooks, online catalogs, digital photo albums and more. Sign up and create your flipbook.