Elena Passoni - 2024 Portfolio

Page 1

Selected Works - 2024

Elena Passoni

+1 305 490 7814

+39 346 830 0484

elena99.passoni@gmail.com

I am an architectural designer currently in Miami but natively from Italy, and open to exploring the world. am interested in architecture for the community, creating public spaces for all, and emphasizing the concept of third space. I am also passionate about urban planning, furniture design, and sustainable and healthy measures for modern, thriving cities.

Hard Skills:

Revit, Adobe Photoshop, Adobe InDesign, Lumion

AutoCAD, Rhino, Adobe Illustrator, Revu Bluebeam

Education:

Florida International University - Miami, FL (May 2023)

Master of Architecture (M.Arch) - Honors College

4.0 GPA - Member of AIAS, Tau Sigma Delta (Sigma Xi Chapter)

Liceo Artistico Statale Giacomo e Pio Manzu - Bergamo, Italy (July 2018)

Art High School - Interior and Industrial Design Specialization

Memberships:

• Assoc. AIA, Miami Chapter

Presentations, Publications, and Projects:

• URFIU 2020 Research Conference - Presentation: “Hues of Miami”

Miami, 22nd September 2020 (Remote)

• EPA Rainworks Challenge, 2021Demonstration Category: “Resilient MAST@FIU”

Work Experience:

HKS Architects - Coral Gables, FL USA (May 2023-Present) Design Professional I

• Working on Concept, Schematic Design, and Design Development phases of projects, primarily in Revit, AutoCAD, and Adobe Indesign.

• Collaborating on hospitality projects of large scope and program for luxury brands and developers, participating in client and consultant meetings and coordination workshops.

• Conducting indipendently area calculations for all phases of projects, including VE options comparing current and estimated program changes.

• Developed realistic renderings and graphics for client and consultant presentations.

FIU Facilities Planning - Miami, FL USA (Feb 2020-Apr 2023) Student Assistant/Intern

• Coordinating 3 BIM Models in Revit for FIU’s three campuses with accurate surveys and representation of existing and new buildings and layouts of the surrounding area.

Other Skills: 3D Printing, Laser Cutting, CTC Revit Toolkit

Languages:

English

Italian

French ArcGIS, Enscape

Spanish

Soft Skills:

Communication, Time Management, Punctuality, Adaptability, Problem Solving

Hobbies:

Watercoloring, Hand Drawing and Sketching, Acrylic Painting, Ballet Dancing, Crocheting, Exploring New Places

1st Place Award

• Infill Housing 9 Book, 2021.

Book designer under direction of Prof. Jason Chandler

• (UN)Pack - PreFab Studio D10 Summer 2022

Book by Marcelo Ertorteguy. Project Feature

Awards and Recognitions:

• Master’s Project Award

Top thesis prohect of graduating class

• Award of Commendation for Academic Excellence 1 of 2 students graduated with 4.0 GPA from whole program

• AIA Miami 2022 Student of the Year Award.

• Florida Educational Facilities Planners’ Association Scholarship 2nd Place - 2020/21, 1st Place 2021/22, 2022/23

• BEA Scholarship Recepient - 2020/2021

• Top Class Project: Design 4, Design 5 (project 1 & 3), Design 6.

• Dean’s List (Fall 2018 to Spring 2023)

• Student Emplyee of the Year Nominee - FIU (2021)

LinkedIn: www.linkedin.com/in/elena-passoni

• Modelling accurate topography for the campus Revit models by using GIS technology, to be used for future campus planning decisions.

• Developing ideas and presentations with models and rendering for committee reviews, discussions, and decisions on future projects for FIU’s campuses and for possible funding opportunities.

• Designed and conceptualized a new campus building for a potential donor in 2 days under the assignment of the University’s president.

• Created the first 6 official 3D printed maps of the MMC and BBC campus at 2 different scales, to be used for planning meetings and committee decisions.

AM 10 Architect Alessandra Morri - Bergamo, Italy (Jan 2016-June 2017) Apprenticeship

• Assisted during land and metric surveys of sites and buildings for land register

• Designed interior ideas for client projects, producing drawings and sketches while also gathering information about cost and retail options.

• Created physical architectural models for clients.

2
3 Lemon City Swimming Center 2023 - Master Thesis Project 4 10 14 18 22 Breeze Bridge Towers Sketches, Artwork, Competitions 2022 - Design 9 La Pastorita Modular Housing 2022 - Design 10 Index The Allapattah Connection 2022 - Comp Studio

01: Lemon City Swimming Center

Comprehensive Design Studio, Fall 2022

Professor Mark Marine

Located at the North-East side of Lemon City, this empty site comprised of three lots is situated in an industrial area. At its East, train tracks separate it from a North Miami residential area. The aim for the site is to provide a natatorium and welness center tailored to children and the general population of the area. The train tracks provide a clear separation between those two areas and the strategic location of the site is ideal to bring together both communities. Program includes an olympic sized pool, a children learning pool, a community center room, welness spaces with dedicated specialist offices (a nutritionist, physical therapist, and chiropractor. A bridge also connects the new building to the residential neighborhood to avoid having to directly cross train tracks.

4

Concept Diagram

The design is inspired by the high speed of trains of the nearby railway. 3 simple geometries based on the site shape are extruded. Their volumes are slanted and intersect to create moments of opening towards the community and tension and separation between program. Site Outline Extrusion and Massing Skew and Intersect

Circulation Diagram

Process Sketches

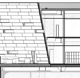
5 North Elevation Cross Section
View
Exterior
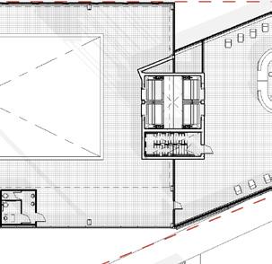
Ground Floor old Second Floor Third Floor Fourth Floor T.O. FOOTING -7' - 0" D 102 1 Ground Floor old 0' - 0" Second Floor 15' - 0" Third Floor 30' - 0" Fourth Floor 45' - 0" Roof 60' - 0" Level 2 Parking 10' - 0" Top Parking 20' - 0" 01 - Lemon Children and Spa Center - Comp Studio
6 First Floor Plan 1 2 A 6 8 9 10 11 12 1 A 300 C 13 14 15 16 1 A 301 1 A 302 1 A 303 7 2 40 121' 10 1/2" 1903 SF Lobby 2814 SF Kids Pool 8331 SF Olympic Pool 7 30 46' - 6 1/2" 2 50 2 21 0 406 1/2 36' 6" 34' 4 1/2" 23' 0" 35' 6" 34' 8 1/2" 2 52 354 SF Pool Mech 365 SF Pool Storage 721 - 1 Exterior Amphitheater Back of House Proposed Public Park NE 71st Street NE 70th Street A 6 8 9 10 417 SF Lobby 2 830 SF Women Lock. 1855 SF Gym 1049 SF Practice Room 2 Bridge Connection 12 1 A 300 C 13 36' - 6" 57' 4 1/2" 14 15 35' 6" 34' 8 1/2" 16 1 A 302 1 A 303 7931 SF Outdoor Green Roof 592 SF Open Work Space 361 SF Office 557 SF Mech. 119 SF Mech 2 374 SF Lockers staff 7 738 SF Men Lock. 1003 SF Practice Room 1 Third Floor 1’-0”=1/16” Structural Model 1’-0”=1/16” Architectural Model 1’-0”=1/2” Section Model 01 - Lemon Children and Spa Center - Comp Studio
7 Section Perspective 01 - Lemon Children and Spa Center - Comp Studio

The facade system is made of horizontal steel, copper-colored panels. The longitudinal shape and direction of the panels is meant to recall the speed and velocity of the nearby tracks, both to the people approaching it from nearby, and to the people who pass by it on the train tracks.

Horizontal windows take the place of some panels along the facade, puncturing it in strategic locations.

The natatorium space instead allow natural light in from the east through a curtain wall. On the west side operable thin windows allow for minimal light to come in. They also extend to the ceiling to allow light to come in the natatorium at all times of the day.

8 A 400 A 400 2 400 4
Axonometric Detail Section Detail 45' - 0" 61' - 0" 30' - 0" 14' - 11" 0' - 0" Gypsum Panels Air/Vapor Barrier Rigid Insulation Waterproofing Precast Concrete Corten Steel Panels Metal Deck with Concrete Slab Floor Tile Finish Suspended Ceiling Concrete Roof Top Waterproofing Rigid Insulation Pool Cast-in-place Concrete Footing Tiles Beam Covers with Acoustical Barrier W -Flange Beams Concrete Roof Top Waterproofing Rigid Insulation Gypsum Panels Air/Vapor Barrier Rigid Insulation Waterproofing Precast Concrete Steel Copper Panels Suspended Ceiling Floor Tile Finish Metal Deck w Concrete Slab W-Flange Beams Beam Covers w Acoustical Tiles Pool Cast-in-place Concrete Footing 01 - Lemon Children and Spa Center - Comp Studio
9 01 - Lemon Children and Spa Center - Comp Studio

02: The Allapattah Connection

Masters Thesis Project

Fall 2022, Spring 2023

Professor Elisa Silva

Group Project with Jordan Pabon

The project is in the Miami neighborhood of Allapattah, where families need the support of local facilities where children and young adults can safely engage their time after school and on weekends. Conversations with local neighbors have revealed a real need for facilities that offer activities and educational support that are affordable and safe. Located just south of the Juan Pablo Duarte Park, our proposal creates a new public connection between the park to the North and the elementary school to the West. It creates opportunities for recreation and education, while contributing to the need for affordable housing in the area. It also engages the surrounding context by allowing for new entry and exit points through the site to the Juan Pablo Duarte Park that would help connect the surrounding residential communities, and the commercial corridor of NW 17th Street.

10

Concept Site Analysis

Local entry points create a network of paths that define the site´s landscape into three areas which also coincide with the project´s three programs: educational, community, and residential. The ground plane is manipulated to form a set of terraces of inhabitable space, that house the various buildings relating to our four programs.

11
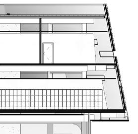
02 - The Allapattah Connection - MP 1. Natatorium 2. Education 3. Plaza 4. Community 5. Outdoor Ampitheatre 6. Playground 7. Picnic Pavillion 8. Cafe 9. Residential 1. 2. 3. 4. 6. 5. 8. 7. 9. 0’ 50’ 100’ 150’ 200’ NW 17th Street Overall Plan View

Local entry points create a network of paths that define the site´s landscape into three areas which also coincide with the project´s three programs: educational, community, and residential. The ground plane is manipulated to form a set of terraces of inhabitable space, that house the various buildings relating to our four programs.

12
Cultural Center 2nd and 3rd Floors
Residential Typical Floor Comprehensive Ground Floor Plan NW 24th Street 17th Avenue Entrance
Murals on Comstock School Expansions by “Esquina de Abuela” NW 17th Ave
02 - The Allapattah Connection - MP
13 03 - The Allapattah Connection - MP

“La Pastorita” Modular Housing

Design 10

Summer 2022

Part of the (UN)Pack Prefab Studio series by Professor Ertorteguy, “La Pastorita” aims to create density by expanding housing on top of existing 2-story apartments from the 60s by utilizing prefabricated, modular elements. Inspired by the Nakagin Capsule Towers, replaceable steel modular apartments of three sizes are stacked on top of eachother supported by central cores that house plumbing and mechanical systems. The top floor consists in a water filtration system that collects rainwater and purifies it to be distributed to clean, freshwater pools around the building and to the individual units. Cisterns are also available to store water. The modularity of the building is given by using two, mirrored types of shapes that in-between create community spaces that allow for resident interaction and mingling.

14 03:

Exterior View Modular Unit Concept

There are two types of modules available, generated from the same mirrored shape. This allows to create a complex yet organized composition and maximize the space between units by creating balconies, social areas, or entrance hallways.

15 Second Floor Plan First Floor Plan
Module 1 Module 2
02 - “La Pastorita” Modular Housing - Design 10
Process Sketches
16 Section Perspective Modular Apartments Water Filtration System Diagram Modular Exploded Apartment 02 - “La Pastorita” Modular Housing - Design 10 Typical Small Unit Floor Plan Typical Large Unit Floor Plan Steel Framing Wet Core (Kitchen and Bathroom) GRFC Wall Panels with Ribbed Pattern Cavity Insulation Continous Insulation Gypsum Panels
17 02 - “La Pastorita” Modular Housing - Design 10

Design 9

Spring 2022

Professor Thomas Spieghelhalter

By the year 2100, Miami Beach will be mostly underwater, with the sea level rising up to 10 meters. As we build new infrastructure and architecture, it is important to consider those aspects in order to build and create something that is resilient and long lasting. The Breeze Bridge Towers aim to do so. Located on the Julia Causeway (I-195), more specifically on its southern side in the water, the building develops vertically as a massing split on the E-W axis and shifted longitudinally. The reason behind this simple, yet significant design choice is to encourage wind circulation between the two towers to passively cool the building.

18 04: Breeze Bridge Towers
Group Project with Jordan Pabon

Programatic Section

The building is programmed to offer any possible service for its residents, from adaptable living units, to a hospital, schools, and shops. There are also green levels adapted as parks and indoor vertical farming spaces that help making the building self-sustainable. The south facade is retrofitted to avoid direct sunlight exposure and polycrystalline solar panels help the building reach an EUI of -7. The building is meant to adapt throughout the years to changing environmental conditions, starting from the access to the building on the North side, and the hydraulically movable marina that adjusts depending on the sea level, up to 10 meters in height. A wetland ecosystem enriched with local, Biscayne Bay vegetation enhances wind flow and passive cooling while sustaining the natural environment.

19
04 - Breeze Bridge
- Design 9
2100
Towers
80-Year Progress Axonometrics 2022
COMMON SPACE
20 04 - Breeze Bridge Towers - Design 9
21 Carbon Neutral Strategies Diagram 04 - Breeze Bridge Towers - Design 9

Art, and Competitions

Building Sketches

Watercolors

Mixed Media Digital and Sketched Documentation of Allapattah - Thesis Seminar

22 05:
Sketches,

ECOFORMA

HKS Team: Elena Passoni, Mayte Idarraga, Franklin Novo

SIGNATURE FUNCTIONALITY

PROCESS

The nested piece of the chair can easily slide out thanks to the ergonomic handle on both sides. This modular piece can be used differently based on the person’s desires and comfort. From a foot stool, to a backrest, and much more.

MATERIALS

The chair can be made by different cover materials based on preference and availability. The base is carved by a block of organiz latex foam, topped with a layer of organic cotton wool batting. Cover materials are all eco-friendly and sustainable and range from vegan mycelium leather, colorful repurposed textiles, and organic cotton velour. The stool is made my colorful recycled plastic.

23
Edition 1
CHAIR The Archtiect’s Chair -
(BUILDNER Competition Entry)

Turn static files into dynamic content formats.

Create a flipbook
Issuu converts static files into: digital portfolios, online yearbooks, online catalogs, digital photo albums and more. Sign up and create your flipbook.