PORTFOLIO//ELEFTHERIOS ZAFEIRIDIS

Page 1

eleftherios zafeiridis

1 2 3

Tackling the issues of “collective housing” as an architectural and social phenomenon and conceptualising high-rise building development, with the study of a small apartment building in an urban environment in Xanthi.

4 5

A unique building of a cultural nature in Xanthi with a strong public presence, which strengthens the collective memory and culture of citizens (e.g. Museum, Library, Arts Center, etc.).

Small Apartment Building Cultural Center Port Urban Design Transformations of the old port facilities on the peninsula “Panagia” in Kavala into a space for cultural activities, recreation, mild sports activities and relaxation.

Hotel Unit and Faculty of Tourism Professions

Tackling the issues of coexistence of the Faculty and the Hotel Unit, as well as their correlations with the surrounding neighborhood, the green zones and the commercial port of the city of Lavrio in the county of Athens.

Spa Facilities and Accommodations

Creation of Spa facilities and guest accommodation facilities in Thermes, county of Xanthi. Planning and integrating into the special environment of the place, facilities of hot thermal springs.

Table of Contents

Portfolio | Eleftherios
Zafeiridis
Selected Works

Small Apartment Building

Eleftherios Zafeiridis

Sofia Konstantinodi

Maria Potolia

PLACEMENT-STRUCTURE

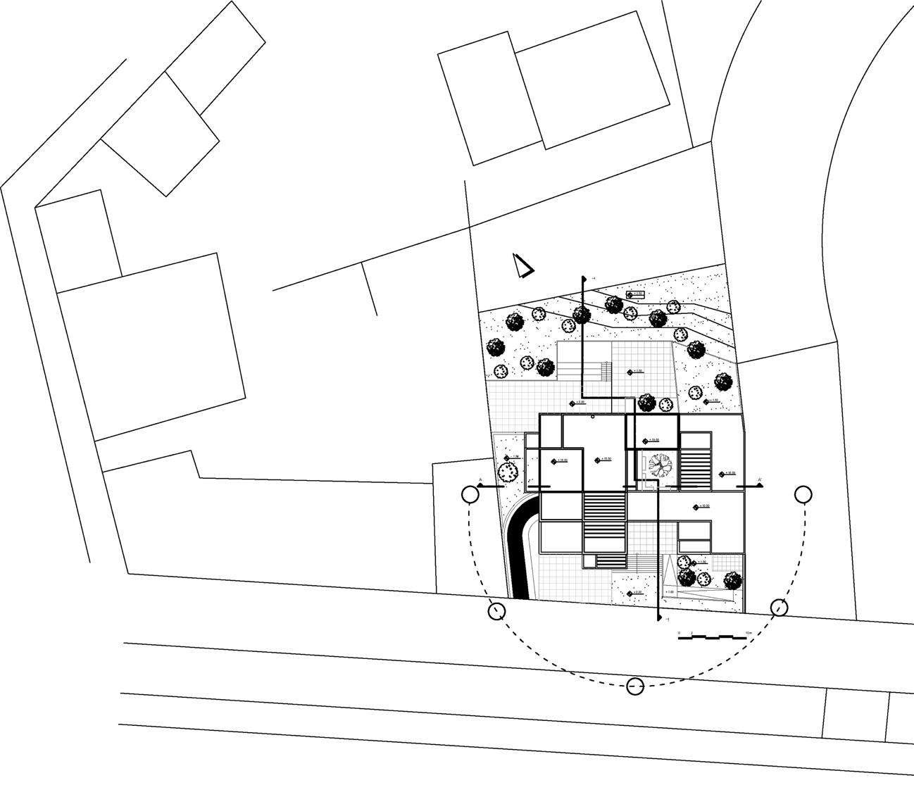
The main orientation of the building is SW, it has a view of the park and a distant view of the river. The apart ments of the eastern building volume and part of the apartments of the western volume face NW to the moun tain and the surrounding houses.

BUILDING ANALYSIS

The building consists of two main building volumes of different dimensions, a central atrium and a staircase on the north side that connects them. The two volumes are also bridged from the south side with balconies. The western volume consists of the ground floor exhibition and four floors with a total of five apartments. The eastern volume consists of a ground floor residence and two other floors with three apartments. On the south side of the plot the building is set back from the road creating a semi-public space. On the north the private courtyard of the apartment building is located.

MATERIALS

The basic material of the facade is the uncoated reinforced concrete, a timeless and visually neutral material, the monotony of which is interrupted by the colored plaster and the horizontal wooden blinds placed as shades mainly on the SW facade. Wooden pergolas for shade have been installed on the balconies of the south face and a large wooden pergola on the roof of the eastern building volume. Some balconies have exposed concrete parapets and other metal railings.

Portfolio | Eleftherios Zafeiridis

Master Plan G

Small Apartment Building | Selected Works
Portfolio | Eleftherios Zafeiridis
A B C
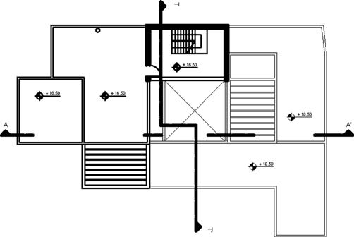
Ground Level Plan A
Small Apartment Building | Selected Works First Level Plan Second Level Plan Fourth Level Plan Fifth Level Plan Third Level Plan Basement Level Plan B E F G C D E F
Portfolio | Eleftherios Zafeiridis
Street Elevation
Small Apartment Building | Selected Works
NW Elevation
Portfolio | Eleftherios Zafeiridis
Duplex apartment on the third and fourth floor
duplex’s parts B
A
Small Apartment Building | Selected Works
section A B
duplex’s

Cultural Center

Eleftherios Zafeiridis

Konstantina Aslanidou

Eleftheria Baltatzidou

MAIN ENTRANCE - RECEPTION

With a windbreak, an information desk, a cloakroom and a waiting area for visitors.

SPACE FOR PERIODIC

EXHIBITIONS

- EVENTS

The periodical exhibition space is located near the main entrance and has sufficient visibility in the public ground floor zone. It also develops on the first floor, as a single space. There is an expansion of the indoor exhibition space into a semi-outdoor exhibition space. An easy way to import/export the rotating exhibition material is established.

AMPHITHEATER

Suitable for speeches, screenings, theater and dance performances, concerts, etc. Consists of: foyer, equipment room, a 120 seats hall and a main stage. It includes a projection and sound-lighting control room and a translation room. It is located further from the stage, it has a separate entrance from the foyer and a raised floor.

LIBRARY

It is a specialized library that covers the Center’s fields of interest, with printed, digitized and audiovisual material.

ADMINISTRATION

Consists of: director’s office, secretariat, files room.

Portfolio | Eleftherios Zafeiridis
Cultural Center | Selected Works Ground Level Plan

First Level Plan

Second Level Plan

Portfolio | Eleftherios Zafeiridis
Cultural Center | Selected Works
Level Plan
Basement
East Elevation North Elevation
Portfolio | Eleftherios Zafeiridis
West Elevation South Elevation Section B-B’
Cultural Center | Selected Works
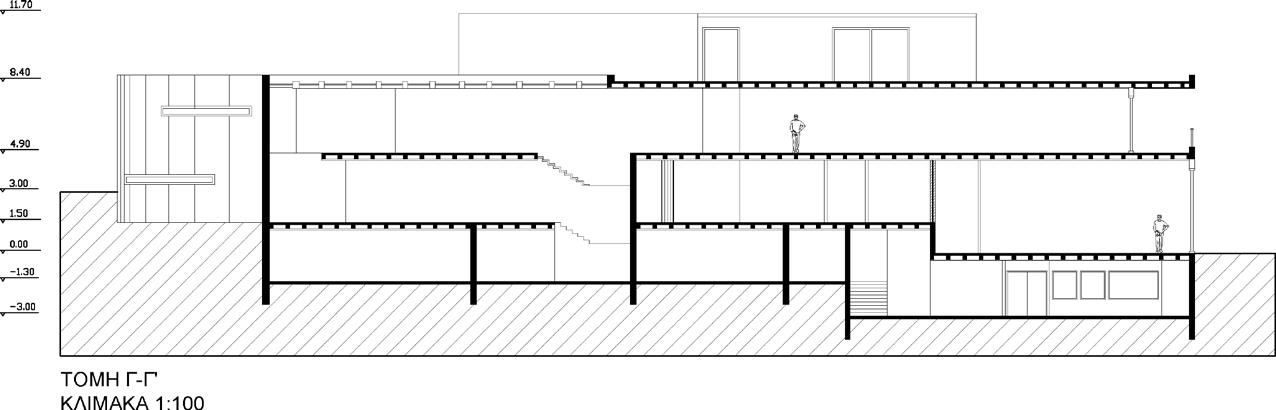
Section A-A’ Section Γ-Γ’

Port Urban Design

Eleftherios Zafeiridis

Konstantina Aslanidou

Eleftheria Baltatzidou

Kioskeridis Aggelos

LANDSCAPE RESTORATION PROPOSALS

Outdoor configurations on the existing platforms of the port facilities (Design of natural space, walkway levels, seating areas and surfaces with hard materials). Redesign interventions in the large elongated building in front of the port facilities in which new activities are created. Outdoor amphitheater configurations with a capacity of 50-100 people. Two small outdoor basketball courts (without bleachers). Play areas suitable for ages 6-12 years old. Small floating platforms and piers of light construction that have the wwability to accommodate play activities, in relation to the water and seating areas. An outdoor parking space, up to 50 spaces. Access plans to all the above areas for people with special needs. Urban equipment (seats, lighting, water elements).

Portfolio | Eleftherios Zafeiridis
Port Urban Design | Selected Works
A A' ΚΑΤΟΨΗ ΔΩΜΑΤΟΣ ΚΛΙΜΑΚΑ 1:500 Upper Level Plan 00 01 01 00 00 00 00 01 02 01 01 01 01 00 00 03 01 02 02 02 02 02 01 ΟΔΟΣ ΕΡΜΙΟΝΗΣ Α΄ΠΑΡΟΔΟΣΕΡΜΙΟΝΗΣ 02 01 02 02 01 01 00 ΠΑΡΟΔΟΣ2Η Θ.ΠΟΥΛΙΔΟΥ P ΠΛΑΤΕΙΑ +-0.00 +1.00 -0.20 -0.20 1m 2m 5m 10m 30m ΚΑΤΟΨΗMASTERPLAN-ΙΣΟΓΕΙΟ ΚΛΙΜΑΚΑ1:500 MainSquare 00 01 01 01 00 00 00 00 5ο ΓΥΜΝΑΣΙΟ 02 01 01 01 02 02 02 01 01 01 01 01 01 00 00 00 03 01 02 02 02 02 02 01 00 ΟΔΟΣ ΕΡΜΙΟΝΗΣ Α΄ΠΑΡΟΔΟΣΕΡΜΙΟΝΗΣ 02 01 02 02 01 01 00 2Η ΠΑΡΟΔΟΣ Θ.ΠΟΥΛΙΔΟΥ P ΠΛΑΤΕΙΑ+ 0.00 +1.00 -0.20 -0.20 1m 2m 5m 10m 30m ΚΑΤΟΨΗMASTERPLAN-ΙΣΟΓΕΙΟ ΚΛΙΜΑΚΑ1:500 01 00 01 01 01 00 00 00 00 5ο ΓΥΜΝΑΣΙΟ 02 01 01 01 02 02 02 01 01 01 01 01 01 00 00 03 01 02 02 02 02 01 01 02 01 00 ΟΔΟΣ ΕΡΜΙΟΝΗΣ Α΄ΠΑΡΟΔΟΣΕΡΜΙΟΝΗΣ ΚΑΨΑΛΗΟΔΟΣ P ΠΛΑΤΕΙΑ+ 0.00 +1.00 -0.20 -0.20 1m 2m 5m 10m 30m ΚΑΤΟΨΗMASTERPLAN-ΙΣΟΓΕΙΟ ΚΛΙΜΑΚΑ1:500 00 01 01 00 00 00 00 01 02 01 01 01 01 00 00 03 01 02 02 02 02 02 01 ΟΔΟΣ ΕΡΜΙΟΝΗΣ Α΄ΠΑΡΟΔΟΣΕΡΜΙΟΝΗΣ 02 01 02 02 01 01 00 ΠΑΡΟΔΟΣ2Η Θ.ΠΟΥΛΙΔΟΥ P ΠΛΑΤΕΙΑ +-0.00 +1.00 -0.20 -0.20 10m 30m ΚΑΤΟΨΗMASTERPLAN-ΙΣΟΓΕΙΟ ΚΛΙΜΑΚΑ1:500 00 01 01 00 00 00 00 01 02 01 01 01 01 01 00 00 00 03 01 02 02 02 02 02 01 ΟΔΟΣ ΕΡΜΙΟΝΗΣ Α΄ΠΑΡΟΔΟΣΕΡΜΙΟΝΗΣ 02 01 02 02 01 01 00 2Η ΠΑΡΟΔΟΣ Θ.ΠΟΥΛΙΔΟΥ P ΠΛΑΤΕΙΑ+ 0.00 +1.00 -0.20 -0.20 -0.45 +1.80 1m 5m 10m 30m ΚΑΤΟΨΗMASTERPLAN-ΙΣΟΓΕΙΟ ΚΛΙΜΑΚΑ1:500 A' Portfolio | Eleftherios Zafeiridis A ΚΑΤΟΨΗ ΙΣΟΓΕΙΟΥ ΚΛΙΜΑΚΑ 1:500 Ground Level Plan A' ΔΩΜΑΤΟΣ 1m 2m 5m 10m 30m 1m 2m 5m 10m 30m
02 01 02 02 01 01 2Η ΠΑΡΟΔΟΣ Θ.ΠΟΥΛΙΔΟΥ ΠΛΑΤΕΙΑ ΠΑΡΑΛΙΑ+ 0.00 +1.00 -0.20 -0.45 +1.80 30m MASTERPLAN-ΙΣΟΓΕΙΟ 00 ΠΛΑΤΕΙΑ+ 0.00 +1.00 -0.20 -0.20 1m 2m 5m 10m 30m ΚΑΤΟΨΗMASTERPLAN-ΙΣΟΓΕΙΟ ΚΛΙΜΑΚΑ1:500 Port Urban Design | Selected Works Master Plan A' A A' ΚΑΤΟΨΗ ΟΡΟΦΟΥ ΚΛΙΜΑΚΑ 1:500 First Level Plan 1m 2m 5m 10m 30m
Portfolio | Eleftherios Zafeiridis
North Elevation Exterior atrium configuration
Port Urban Design | Selected Works
Side View of the redesigned existing building East Elevation
Portfolio | Eleftherios Zafeiridis
Site’s Entrance
Port Urban Design | Selected Works
Section A-A’ Back Side

Hotel Unit and Faculty of Tourism Professions

In this project my team and i proposed further design changes on the map’s area 3, whereas other student teams proposed some design changes that are not presented here, on the map’s areas 1 and 2 .

PLACEMENT-STRUCTURE

The layout of the buildings within the site, resulted from the land uses and the traffic network (cars, bicycles, etc.) of the wider area. Additionally, the two building units follow the boundaries of the site, a decision deriving from the effort to ensure that the hotel unit has visual view of the harbor and that the Faculty of tourism professions has direct access to and from the surrounding proposed residential zone.The location of the hotel unit is in the south-eastern part of the site and the faculty of tourism professions in the north-west. An outdoor space was created in the center of the site which includes green areas, a swimming pool, a waiting area, and the outdoor breakfast area.

HOTEL ANALISIS

The hotel consists of 81 beds, a cafe-restaurant, a gym, a spa and a meeting room. Wanting to achieve a bioclimatic design we created an internal patio with hanging gardens and installed sunshades on the south and east faces. In addition, photovoltaic panels were placed on the planted roof of the building in order to cover its energy needs.

FACULTY ANALISIS

The faculty of tourism professions includes classrooms, laboratories, offices, changing rooms, etc.. Its outdoors sitting area occupies the western boundary of the site. In the southern part of the site, the buildings are connected through a semi-outdoor space achieving a direct access from the faculty to the internal functions of the hotel and creating a private passage for the students to attend their trainership.

Portfolio | Eleftherios Zafeiridis

Map of Lavrio’s commercial port

Area’s 3 Master Plan

Hotel Unit and Faculty of Tourism Professions | Selected Works Littoral Zone Sports & Educational Center Shopping Center Green Zone Proposed Area 1 as the Center of Lavrio Proposed Area 2 as a Residential Zone Proposed Area 3 as the Hotel & the Faculty
| Eleftherios
South Elevation Waiting Room Reception Breakfast area Kitchen Storage Staff area Staff offices Director’s office Teachers’ offices Classroom Secretariat Doctor’s office Canteen First Level Plan Room Classroom Locker rooms Study hall Second Level Room
Portfolio
Zafeiridis
Hotel Unit and Faculty of Tourism Professions | Selected Works East Elevation Third Level Plan Room Restaurant
Portfolio | Eleftherios Zafeiridis
Section A-A’ Section B-B’
Hotel Unit and Faculty of Tourism Professions | Selected Works
Section North - South
Portfolio | Eleftherios Zafeiridis
3D Render of the Hotel Room Hotel Room
Hotel Unit and Faculty of Tourism Professions | Selected Works
Hotel
Faculty of Tourism Professions Structural Analysis
Unit
3D Render of the site's
North view
Portfolio | Eleftherios
Zafeiridis
Hotel's patio
Hotel Unit and Faculty of Tourism Professions | Selected Works
Bird's eye view of the building unit South-East view of the Hotel

Spa Facilities and Accommodations

Eleftherios Zafeiridis

Konstantina Aslanidou

Eleftheria Baltatzidou

PLACEMENT-STRUCTURE-ANALISIS

The building unit is organized around the area of hot thermal springs in the mountainous region of Xanthi in Thermes. The study area is located on a mountainside at the limits of the settlement of Therme. The whole concept of our building is organized around a vertical axis (trunk), in which we find basic functions of the building unit, such as reception, cafe-breakfast area, restaurant, observatory and the stairwells.

In addition, another design parameter was the orientation, which is why we turned the entire building towards the East ensuring a view of the mountain from all points of the facilities. To the south-east are gathered all the bathing facilities and to the south-west all the hospitality areas which are separated by the main vertical axis. In this way we wanted to ensure the separation of the functions in the building, from the public to the more private parts. Finally, in order to harmonize the building with the environment around it and to ensure coolness in the summer months, we chose green roofs.

Portfolio | Eleftherios Zafeiridis
Spa Facilities and Accommodations | Selected Works Upper Level Plan
Portfolio | Eleftherios Zafeiridis
Level Plan
Ground
Spa Facilities and Accommodations | Selected Works Rooms Level Plan 1. Reception 2. Restaurant 3. Observatory 4. Director’s office 5. Conference room 6. Accounting department 7. Baby care 8. Special needs WC 9. Women WC 10. Men WC 1. Staff elevator 2. Shared waiting area 3. Rooms 4. Shared rooms pool area

Portfolio | Eleftherios Zafeiridis

rooms loft Level Plan 1. Hot springs reception 2. Doctor's office 3. Staff only room 4. Women WC 5. Men WC 6. Men lockers 7. Women lockers 8. Shower area 9. Emergency exit 10. Hot springs Main room 11. Hydromassage pools 12. Hot-Cold pools 13. Sauna 14. Massage room 15. Exterior relaxation area 16. Waiting room 17. Multipurpose hall 18. Storage 19. Breakfast-Coffee Hot Springs & Coffee Level Plan
Deluxe
Spa Facilities and Accommodations | Selected Works Deluxe rooms Level Plan 1. Deluxe rooms 2. Deluxe shared area 3. Storage 4. Laundry room 5. Linen room 6. Staff only break room 7. Staff only WC 8. Staff only locker room

Upper

Simple rooms level

Hot spring fasilities level

Lower level Deluxe rooms

Portfolio | Eleftherios
Zafeiridis
roof at zero level South-East view 3D Render

Hot springs facilities 3D Render

Spa Facilities and Accommodations | Selected Works
Portfolio | Eleftherios Zafeiridis
Section A-A’
Spa Facilities and Accommodations | Selected Works
Portfolio | Eleftherios Zafeiridis
Simple room layout Hot springs interior Reception
Spa Facilities and Accommodations | Selected Works
Deluxe rooms
Bird’s eye view 3D Render
Portfolio | Eleftherios Zafeiridis
Section B-B’
Spa Facilities and Accommodations | Selected Works
Eleftherios Zafeiridis

Turn static files into dynamic content formats.

Create a flipbook
Issuu converts static files into: digital portfolios, online yearbooks, online catalogs, digital photo albums and more. Sign up and create your flipbook.
PORTFOLIO//ELEFTHERIOS ZAFEIRIDIS by Eleftherios Zafeiridis - Issuu