Eleanor Huntley - Architectural Portfolio

Page 1

ELEANOR HUNTLEY

MASTEROF ARCHITECTURE-KENTSTATE

UNIVERSITY

CURATED WORKS

FOREWORD

As a lover for theatre and an admirer of design, I find architecture fascinating as we create the very world in which people exist. It can be as fantastical or as functional as one desires, but it will always have a direct influence on how we as people live day to day. My name is Eleanor Huntley, and I strive to create something visible and permanent that impacts the human experience in a positive way. I’m always eager to learn new things and gain valuable experience with every opportunity I stumble upon.

2
3 TABLE OF CONTENTS SHIFTING GROUND: ORNITHOLOGY LAB (sub)URBAN COMMONS THE UNDIVIDED MANY CLEVELAND SCHOOL OF MEDIA ARTS 4 10 DISSONANT MEASURES 20

SHIFTING GROUND: ORNITHOLOGY LAB

A BUILDING RESPONSIVE TO EVER-CHANGING LANDSCAPE

Third

Year Design Studio I

Semester: Fall 2021

Professor: Francois Sabourin

Shifting Ground is a response to a theory of changing landscape over time within Kelley’s Island in Lake Erie, Ohio. The quarry is strategically filled with dredge over a 30 year period, and the building and program reacts to the scenario as the years go on. In this future, entitled the Green Island Scenario, the 6-story building adapts to become an ornithology laboratory to study the over 4,000 species of birds of the Great Lakes region. Housing a rehabilitation center, exhibition, science labs, and equipment storage adjacent to a staged wetland, this building is ideal for the function of the Green Island Scenario.

The facade of the building is composed of strategically placed CMU blocks acting as a solid net encompassing the structure. Land, and birds, can penetrate the facade, blurring the lines of interior and exterior, and create new architectural experiences as time goes on and the quarry continues to be filled. Doors on every floor ensures usability in every possible situation.

4
In collaboration with Gwendolyn Darling
RECEIVED MERIT AWARD IN STUDENT WORK 2022 AIA CLEVELAND DESIGN AWARDS

Renderings by EH

Timeline Maps and Axons in collaboration with GD

6 Roads Topography Buildings Green Island Footpaths Site Key: Quarry Filling Key: Forests Roads/Pathways Grasslands Infrastructure Scale: 1” = 2000” 0 1000 2000 4000 Description: Fill the basin. 2022 2051 Water 2033 2023 2024 2025 2026 2027 2028 2029 2030 2031 2032 2035 2034 2036 2037 2038 2039 2040 2041 2042 2043 2044 2045 2046 2047 2048 2049 2050 2051 2052 Green Island: 2025 Ornithology Laboratory Scale: 1” = 120’ Green Island: 2034-2037 Ornithology Laboratory Green Island: 2038-2043 Ornithology Laboratory Scale: 1” = 120’ Green Island: 2047-2052 Ornithology Laboratory Scale: 1” = 120’ 0 60’ 120’ 240’ 2022 Roads Topography Buildings Green Island Footpaths Site Key: Description: Fill in one parcel off of the end of the rectangular outlook. 0 1500 3000 6000 2033 2023 2024 2025 2026 2027 2028 2029 2030 2031 2032 2035 2034 2036 2037 2038 2039 2040 2041 2042 2043 2044 2045 2046 2047 Roads Topography Buildings Green Island Footpaths Site Key: Description: Fill in all remaining parcels except for the basin. 0 1500 3000 6000
2025 2034-2037 2038-2043 2047-2052
7 700” Building without Facade Scale: 1” = 350” 0 175” 350” 700” Building with Facade Scale: 1” = 350” 0 175” 350” 700” Building Structure and Core Scale: 1” = 200” 0 100” 200” 400” Third Floor Plan Scale: 1” = 200” 0 100” 200” 400” Fourth Floor Plan
Scale: 1” = 40’ 0 20’ 40’ 80’
Building Layers by GD
Section
Green Island: 2025
A
Section A Scale: 1” = 200” 0 100” 200” 400” Section B Plans
GD
EH Scale: 1” = 200” 0 100” 200” 400” Fourth Floor Plan Scale: 1” = 200” 0 100” 200” 400” Section B
Green Island: 2052
by
- Sections by

Physical Model in collaboration with GD - over 30,000 3D printed bricks

EH 9
Core Model by

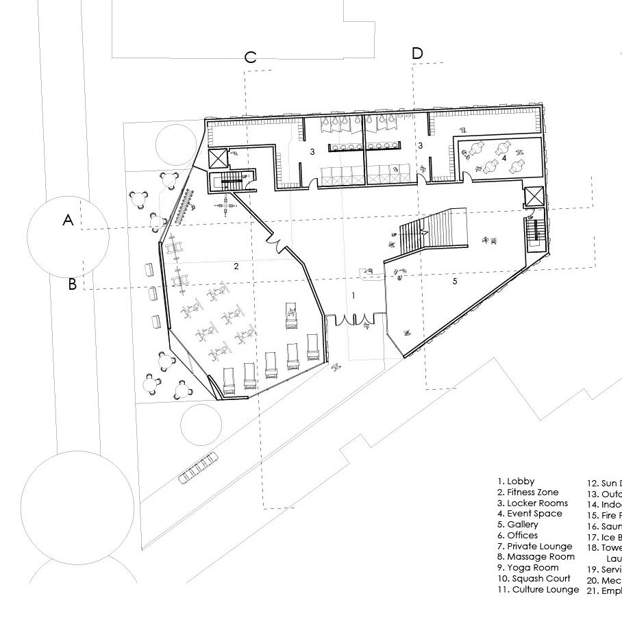
CLEVELAND SCHOOL OF MEDIA ARTS

AN ADAPTIVE REUSE PROJECT IN THE FLATS OF CLEVELAND

Fourth Year Design Studio I

Semester: Fall 2022

Professor: Robert Kobet

The Cleveland School of Media Arts was assigned to a site with five existing buildings occupying the area. Two were utilized within this proposal, and the rest of the program was defined by new construction. In this design, inspired by the adjacent silos of Lafarge North America, the project became characterized by tall glass silos that functioned as a hierarchy of entries and methods of allowing natural light into an unexpected space: underground.

In addition to the assigned program, a large collaboration lounge was added in the heart of the facility. Against the existing buildings, the above-ground design created a solid complex with a light, welcoming plaza that encouraged an engaging landscape for not only the intended user group, but also the public of Cleveland, Ohio. These silos also acted as the kinetic element, as the moving glass in the central plaza connected the interior underground spaces with the exterior. They drive the project and promote interaction with various landscapes, inside the project and on the site, and with each other, as these spaces promote collaboration and innovation for the user group.

FEATURED IN KENT CAED’S X-GALLERY FALL 2022 STUDIO

10
12 0 20 40 80 Lower Level Floor Plan 10 1 8 1 10 1 1 3 34 36 36 36 36 26/27 1 1 1 20 20 20 35 1 7 37 11 11 11 Capture 3. Virtual Reality 4. Color Correction Lab 5. Event Space 6. Blackbox Theatre 7. Screening Room 8. Recording Studio 9. Sound Stage Bay 12. Makeup 13. Wardrobe 14. Green Room 15. Casting Room 16. Support Engineering 17. Camera Prep Stations 18. Fabrication Shop Office 21. Pantry 22. Dean 23. Conference 24. General Storage 25. Lighting and Grip Equipment 26. Camera Equipment 27. Sound Equipment Prop/Furniture 30. Equipment Archives 31. Admin Files 32. Office Storage 33. Lobby 34. Collaboration Lounge 35. Cafe 36. Courtyard 37. Control Room/Server Ground Floor Plan 28/29 16 18 17 19 24 1 1 1 4 7 11 11 11 11 11 9 9 15 14 14 12 13 6 25 5 5 8 1 2 1 37 33 33 5 0 20 40 1.Classroom 2. Motion Capture 3. Virtual Reality 4. Color Correction Lab 5. Event Space 6. Blackbox Theatre 7. Screening Room 8. Recording Studio 9. Sound Stage 10. ADR Stage 11. Edit Bay 12. Makeup 13. Wardrobe 14. Green Room 15. Casting Room 16. Support Engineering 17. Camera Prep Stations 18. Fabrication Shop 19. Makerspace 20. Office 21. Pantry 22. Dean 23. Conference 24. General Storage 25. Lighting and Grip Equipment 26. Camera Equipment 27. Sound Equipment 28. Set Equipment 29. Prop/Furniture 30. Equipment Archives 31. Admin Files 32. Office Storage 33. Lobby 34. Collaboration Lounge 35. Cafe 36. Courtyard 37. Control Room/Server Ground Floor Lower Level 0 20 40 80 Lower Level Floor Plan 10 1 8 1 10 1 1 3 34 36 36 36 36 26/27 1 1 1 20 20 20 35 1 7 37 11 11 11
13.
15. Casting Room 16. Support Engineering 17. Camera Prep Stations 18. Fabrication Shop 19.
21.
22.
23. Conference 24. General Storage 25. Lighting and Grip Equipment 26. Camera Equipment 27. Sound Equipment 28. Set Equipment 29. Prop/Furniture 30. Equipment Archives 31. Admin Files 32. Office Storage 33. Lobby 34. Collaboration Lounge 35. Cafe 36. Courtyard 37. Control Room/Server
1.Classroom
2. Motion
Capture
3. Virtual Reality 4. Color Correction Lab 5. Event Space 6. Blackbox Theatre 7. Screening Room 8. Recording Studio 9. Sound Stage 10. ADR Stage 11. Edit Bay 12. Makeup
Wardrobe 14. Green Room
Makerspace 20. Office
Pantry
Dean

Sectional Axonometric

13

DISSONANT MEASURES

A CULTURAL AND RECREATION CENTER IN TREMONT, OHIO

Second Year Design Studio II

Semester: Spring 2021

Professor: Greg Stroh

DISSONANT MEASURES is a cultural and recreation center located in Tremont, Ohio that emphasizes the notion of dissonance as an architectural term and physical experience.

Through separating contrasting programs and using dramatic proportions and clashing forms, it creates a sense of tension and disunity within an urban environment, defined as the dissonant experience. The use of curvilinear versus rectilinear geometry to distinguish differing program uses, the lack of visual connections, and the striking height of the building compared to its context makes the project stand out as a dissonant experience within the city.

This facade has different thicknesses and widths to create jagged edges conditions wherever present, which rids the feeling of a satisfying conclusion to the pattern. Slight openings peek through the pattern to reveal the program inside. These “unfinished” moments add to the tension and feeling of dissonance overall present in this form.

14

Form Development

16
Exploded Axon Program Diagram Separate Chamfer Loft Twist

A Section B

17
Section West Elevation South Elevation

Floor Plan

18 Ground
Floor Plan
Second
Views Recreation Culture H2O Movement
Recreation Culture H2O Movement Diagram Movement
View Diagram
Diagram
19

THE UNDIVIDED MANY

4TH MEMORIAL DESIGN ON KENT STATE CAMPUS

Second Year Design Studio I

Semester: Fall 2020

Professor: Kyle Zook

With a prompt to design a new memorial for the Kent State May 4th Shooting, a monument emphasizing the many voices of the protests became the design driver. The Undivided Many represents the need for change. As we reflect on the victims of May 4th and the greater context of the event with this memorial, we strive to challenge the rules and standards we are meant to follow to spark action in individuals wanting to improve the environment and society in which we live and lead a new movement for the sake of society.

This memorial reads as one cohesive piece, but with a closer look reveals the many pieces that create the form. It reflects the unifying goal of the 1500+ individuals that sought to make a difference on May 4th. It is many people gathering with one voice and one objective: to create a better future.

20
A MAY
22 0 8 4 Plan 0 8 4 12 20
23 0 4 2 6 10 Section 0 4 2 6 10

(sub)URBAN COMMONS

A MIXED-USE PROJECT PROMOTING COMMUNITY AND PLAY

Integrated Design Studio

Semester: Spring 2023

Professor: Matt Hutchinson

In collaboration with Allison Dillmann

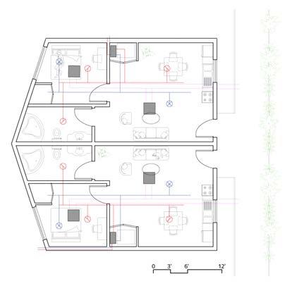
The design of (sub)URBAN COMMONS is primarily driven by existing site factors and the desire to create open, lightweight green spaces for the mixed-use grocery and residential building in the Mission District of San Francisco. In an affordable housing project, it is important to consider the needs of the user beyond basic shelter. One notable need is more green space, which is key to healthy living in dense areas. As a result, we’ve developed a project with key “zones” of existing. The Commons is the crux of these zones, as a large vertical garden with several moments of play and interaction. The Neighborhood extends from the commons to act as circulation of the housing units. Its facade and design emulates the Commons, encouraging a sense of community for residents. Lifestyle encapsulates the spaces that enrich the lives of urban residents: a grocery store and open market, a fitness center, a lounge, and a public terrace. With different geometries, colors, and scales to define the units, each resident gains a sense of home within a dense living style. The mixed-use housing project in who le blends suburban and urban elements into one project. There are elements of streets, of backyards and gardens, of homes with “personal touches” but there’s also ease of access to facilities like markets and fitness centers, all within one site.

RECEIVED CITATION AWARD IN STRUDENT WORK

2023 AIA AKRON DESIGN AWARDS

24
Renderings
by AD

Program Axon by EH Structure Axons by AD

26 23RD ST S VAN NESS AVE SHOTWELL ST 0 20’ 40’ 80’ EXPLODED AXON Allison Dillmann Eleanor Huntley San Francisco, CA Neighborhood Housing Market Community Space Commons Service MASSING AXON MISSION DIAGONAL Allison Dillmann Eleanor Huntley
Site Plan by EH
27 Wall Section in collaboration with AD
Elevation by EH

done in collaboration with AD Plan by EH

28
Models
Housing Unit Drawings by EH 29

Eleanor Huntley Experience

06/2023Present

Architectural Designer

SoL Harris/Day Architecture, North Canton, OH

• Participate in design, documentation, and construction administration of multiple commercial projects locally.

• Develop client relationships and manage contractor coordination alongside project managers.

Architectural

Designer

• Rootstown, OH

• eleanorahuntley@gmail.com

• (330)687-7911

Skills

• Customer Service

• Time Management

01/2023 -

Design Intern

Metis Construction Services LLC. Kent, OH

• Collaborated with registered architects in the development of several architectural projects and renovations, both residential and commercial.

• Documented designs, submited permits, and conducted evaluations in several project phases.

06/202101/2023

Architecture Intern

ThenDesign Architecture, Willoughby, OH

• 2 full-time summer interships. Part-time intern during school

• Assisted architects and interior designers in K-12 educational projects throughout the Northeast Ohio area.

• Organized, participated, and generated reports on multiple engagement sessions with community members.

• Public Speaking

• Adobe Creative Suite

• Revit

• Archicad

• Rhino 3D

• V-Ray

• Enscape

• Microsoft Office

• 3D Printing

• Laser Cutting

Organizations

09/2021 -

Digital Output Lab Technician

Kent State University CAED, Kent, OH

• Managed, maintained, and supervised the use of 3D printers, laser cutters, and color plotters.

• Troubleshot hardware and software issues for efficient project producing.

06/201805/2019

Architecture Intern

Bio-Med Science Academy, Rootstown, OH

• Participated in the design and management of high school expansion from the client’s perspective

• Collaborated with Hasenstab Architects, CT Taylor Construction, and OFCC

Education

08/201905/2023

Kent State University, Kent, OH

Bachelor of Science, Architecture

Minor in Business

GPA: 3.9/4.0

01/202205/2022

Kent State University, Florence, Italy

Semester Abroad

Studied Architecture and Architectural Media

GPA: 3.8/4.0

08/201505/2019

Bio-Med Science Academy, Rootstown, OH

STEM Honors High School Diploma

GPA: 4.0/4.0

09/2023Present

ACE Mentor Program of Greater Akron - Canton Mentor

06/2023Present

08/2019Present

08/202204/2023

08/201905/2023

American Institute of Architects Associate Member, Akron Chapter

American Institute of Architecture Students Vice President, Mentor CAED Senatorial Committee

Senator: Cade McCue

Kent State University Honors College

Awards

• AIA Akron Endowed Scholarship 2021

• AIA Akron Endowed Scholarship 2022

• Joseph Morbito Study Abroad Fund 2022

• Honors College Bengier Study Abroad Scholarship 2022

• Dean’s List (x7)

• President’s List (x2)

• AIA Cleveland Merit Award 2022 in the Student Category: “Shifting Ground: Ornithology”

• AIA Akron Citation Award in the Student Category: “(sub)URBAN COMMONS”

• Kent State CAED X-Gallery Selection: Fall 2022

30
12/2021
04/2023

Turn static files into dynamic content formats.

Create a flipbook
Issuu converts static files into: digital portfolios, online yearbooks, online catalogs, digital photo albums and more. Sign up and create your flipbook.