Second Year

![]()
Second Year

ARCHITECTURE STUDENT

+61 439551999
eleanor@dissel.com.au
138 Union rd, Carmel, 6076
am a university student who hopes to obtain a casual role while I complete my tertiary education. am passionate about architecture and design. I enjoying working with a diverse range of people, am confident, reliable and quick to learn new skills.
2022 TO DATE
BACHELOR SCIENCE (ARCHITECTURE)
Specializing in construction management
Curtin University
• CWA - 80
• Vice Chancellor Recipient
2021
HIGH SCHOOL GRADUATE
Guildford Grammar School
MICROSOFT OFFICE
Word PowerPoint
BIM Revit
Rhino Grasshopper AutoCAD Sketchup
ADOBE CC Photoshop Illustrator InDesign
OTHER Unreal Engine Twin Motion Enscape Acrobat
CAPABILITIES
• Organised
• Independent
• Respectful
• Diligent
• Clear, confident and considered communication
• AUSTSWIM Swimming Teacher Qualification
• First Aid Certificate
• RLSS HLTAID001 CPR
• Perth Coffee School Barista Qualification
• RSA
• Police Clearance Check
• Working with Children Check
2023
Gansam Architects and Partners | Seoul, South Korea.
Architecture Student Intern
Three month internship program at South Korean architecture firm. Working with lead design time on competition proposals and initial stages of design development.
Developing Photoshop post production renders for competitions
3D site and building modeling in Rhino, Grasshopper and Sketchup
Producing schematic drawing sets and renders for clients
2023 - Present
Self Employed
Freelance Graphics and Marketing
Working with independent small businesses creating logos, graphics, brand guidelines and social media content.
Creating logo designs using illustrator and Photoshop
Developing cohesive brand guidelines including imagery, typography and color schemes
Advising on social media marketing strategies
2021-Present
Fairbrossen Winery | Bickly Valley, Perth Hills
Cellar Door Manager
Working at boutique winery in the Perth Hills, independently managing and operating the Cellar door as well as overseeing events.
Managing payment and money
Handling food and drink
Conducting wine tastings
Managing stock and accounts
2018-2023
Department of Education | Western Australia - Multiple Locations
Swimming Teacher
Swimming teacher working both independently and with a team to deliver quality swimming education to a range or students.
Experience teaching Infants, children, teenagers and adults
Experience working with children with disabilities
Organizing / filling out documentation and paper work
Communicating with parents
06

14
20
26
32



Regional Studio Coastal Cafe The Intrepid Milliner Residence Internship Documentation
38

Civic structure in Northam Western Australia
Design Studio 2B - Regional Studio
Year: 2023, Year 2, Semester 2
Location: Northam, Western Australia
Tutor: Justin Owens
Type: Civic
Program: AutoCAD, Illustrator, Photoshop, Sketchup
Role: Individual Project
This project involved designing a civic structure in Northam that combines speculative design with a deep respect for the country and land. The primary objective was to showcase the thought process and development of ideas through the sketch design process. All site analysis, process work, diagramming, and final presentations were hand-drawn to emphasize the organic nature of the design evolution.
The structure features tale pitches, which are private rooms for storytelling, as well as public reading spaces and digital storytelling areas.
Connected to this central hub is a creative studio that accommodates a resident author, artist, and craftsperson. The design also includes a bathroom block and a cafe, all of which surround a central performance space. As part of the assignment, speculative devices were created to represent the abstract concepts of seeing, viewing, hearing, and speaking. These devices were explained and explored through the use of hybrid drawings, further demonstrating the project’s focus on conceptual thinking and creative expression.


Site Analysis Collage

Draw inspiration from historical context, evaluate current environmental conditions and envision a sustainable future, with a specific emphasis on the river ecosystem and surrounding wildlife

Capturing Natural View
Letting the landscape frame the view

Multi- functional
Spaces can be used for multiple purposes, reducing need for more buildings
Historical Event

Materiality
Light weight, locally sourced materials that suit the climate

Improving Landscape
Replacing introduced species with natural ones and filling space

Climate adaptability
Maximizing passive thermal regulation and designing for potential flooding

Connection with Site
Blurring the line between indoor and out. Promoting connection with nature.

River Training Scheme Aim
After severe flooding in 1955 the Avon River Development Committee was formed. From 1957-1972 over 200km of trees, debris and sediment was removed from the river beds of the Avon.

The aim was to increase the velocity and erosional power of the river in hope that flood water would go down quicker. Preventing damage to the town and surrounding farm land.

As a result, the River Training Scheme caused severe damage to the river and natural pools. Millions of tonnes of sediment was mobilized and the river pools became sand traps that filled with sediment. Salt levels rising.

Below: Plan of bathroom amenities using an open plan strategically designed to offer privacy while maintaining connection to environment.



A1 Hybrid Drawing of design proposal illustrating the response to site, historical event and community.





The world we see around us consists of three dimensions. Length, width and hight. But there is a fourth dimension. Time. Space time fuses the three dimensions of space with the one direction of time. The light cone is a space time diagram used to visualize how different observers perceive where and when events occur. The seeing viewing device explores the concept of seeing the past, visualizing the future and observing the now.






Top cutout represents an event or a story and all the information and details within it

Middle support made from metal represents how even though we cannot physically see what is spoken it has a strong impact and connection to people
Wooden shapes represent pieces of information that are carried though story telling. They begin close to the source and stable but get closer together, become more unstable and jumbled up the further from the original source it gets

3D printed black shapes represent miss information or a negative influence on what is being spoken
The mirror that reflects the device represents how what we say is just a reflection of what we hear.
The oldest form of sharing knowledge is through storytelling. Speaking, hearing, and speaking again forms a chain connecting us to the past and influencing the future. Stories from the past shape our present, and what we say in the present forms the future. However, storytelling is subject to personal interpretation, and as information travels further from its source, it becomes increasingly altered, tainting the truth. This device explores how stories change as they are carried through speaking and hearing.
Beach side Cafe and Kiosk designed for inter-generational connection
Architectural Methods 2B - Information

2023, Year 2, Semester 2
This unit focused on learning the stages of design and development using Revit software by designing and documenting a cafe and kiosk located on a site in Mosman Beach.
Welcoming cafe and kiosk that combines environmental adaptability with access and inclusivity to accommodate people of all needs.
Location: Mosman Beach, Western Australia
Brad Shirvani
Public
Program: Individual Project

















The project was completed as part of a group, with two other members designing bathroom facilities and a function centre to complement the cafe.
The cafe and kiosk were designed to cater to three generations of visitors, ensuring a welcoming and inclusive atmosphere.

The design process followed a progression from schematic





design to design development and finally, documentation. A key focus throughout the project was to create clear and accessible circulation paths, ensuring ease of movement for all users.


The structure itself was designed using a timber frame lightweight construction, which was chosen for its sustainability and adaptability. The exterior features a composite timber finish, selected specifically to withstand the coastal climate conditions of Mosman Beach.






















































































































































































































































































































































An interactive Pavillion consisting of haptic surfaces
Architectural Methods 2A - Digital Fabrication
Year: 2023, Year 2, Semester 1
Location: Meadow
Tutor: Camillo
Type: Speculative
Program: Rhino, Grasshopper, Photoshop
Role: Individual Project
This interactive pavilion serves as a unique space for individuals suffering from extreme rare phobias to engage in exposure therapy through haptic interaction with various surfaces. Nestled within private meadows, the pavilion encourages visitors to explore and discover through selfguided experiences.
The pavilion features intricate wall, roof, screen, and ceiling designs that are aesthetically constructed to promote engagement. Every element within the space is designed to challenge perceptions – sharp objects are soft to the
touch, round shapes are revealed to be rectangular, fluid forms are solid, and seemingly scary features are inviting. The surfaces draw inspiration from the organic origins of modern-day objects and geometry, echoing the tranquil beauty of the surrounding environment.
To create these complex surfaces, Rhino 3D and Grasshopper software were utilized. Additionally, two 1:1 scale sections of the surfaces were digitally fabricated using 3D printing technology.






Polar array of twisting spindles creates centric extrusion from roof, for the ceiling components to hang from. Organic appearance of texture and colour brings users back to the natural origin of their fear - Linonophobia (fear of string and rope).



Internal component of screen is an intertwining web of irregular pipes made of a translucent material. Users suffering from trypophobia (fear of irregular patterns, holes or bumps) can see though the surface, removing fear of what might be inside the holes.













Single dwelling within urban residential cluster
Design Studio 2A - Residential Typology
Year: 2023, Year 2, Semester 1
Location: Subiaco, Western Australia
Tutor: Olivier Mcfarlan
Type: Residential
Program: AutoCAD, Photoshop, Sketchup, Endscape
Role: Individual Project
The Milliner Residence is a compact, detached dwelling designed for a single occupant who works as a hat maker.
Located on a 100 square meter allotment in Subiaco, Western Australia, the project required a design that responded to both the surrounding site and the client’s specific needs.
To develop the optimal layout for the residence, various architectural typologies were explored, including linear spine, serial progression, courtyard, grid, and cloister styles. After
careful consideration, the cloister typology was selected for further development.
The design of the Milliner Residence centres around the concept of balance, which is reflected in its function, materiality, circulation, form, and environmental response.
The cloister layout creates a harmonious relationship between the interior spaces and the outdoor environment, providing the occupant with a sense of tranquillity and connection to nature.



Diagrams showing the development of form. Specific design choices and how they improve aesthetic, thermal, light and ventilation. Division of space to suit the various components of the clients life.


















Internship at South Korean Firm, Gansam Architects
Year: 2023, Summer Semester
Location: Soul, South Korea
Firm: Gansam Architects and Partners
Type: Internship
Program: Rhino, Grasshopper, Photoshop, Sketchup, AutoCAD, Endscape
As part of the New Colombo Plan Scholarship, had the opportunity to undertake a three-month internship at an architectural firm in Seoul, South Korea, during the summer break. During my time there, I worked closely with one of the firm’s design teams, contributing to various projects and competitions.
One of the main projects I was involved in was a competition to redesign a portion of the city’s new international business
Below: Modelling of first five floors and external facade, using rhino and grasshopper. Render produced externally.
district. Over a three-week period, assisted the team with site and building modelling using Rhino software, creating diagrams in Illustrator, and enhancing renders using Photoshop. This experience allowed me to apply my skills and knowledge in a professional setting while learning from experienced architects and designers.
Following the competition, I worked on a ground breaking project aimed at creating South
Korea’s first co-living village. My responsibilities included drafting schematic plans, 3D modelling individual housing units, and producing renders that were used to promote the project to prospective residents. This project gave me valuable insight into the design process for innovative housing solutions and the importance of effective visual communication in attracting potential clients.












Three day super studio with architecture students from Pai Chai university in South Korea
New Colombo Plan Scholarship
Year: 2023, Summer Semester
Location: Meadow
Tutor: Camillo
Type: Speculative
Program: Rhino, Grasshopper, Photoshop
Role: Group Project


As part of the New Colombo Plan Scholarship in South Korea, had the opportunity to participate in a super studio alongside students from a local university. The competition focused on redeveloping an existing historical site to reconnect two traditional Korean houses and enhance the visitor experience. The site, which was once surrounded by forests and fields, is now overshadowed by massive high-rises. Our team’s approach was to guide visitors through the site using simple walkways and screens, strategically integrating bodies of water to separate the site from the surrounding busy streets. The goal was to create a peaceful and meaningful
experience for visitors, allowing them to appreciate the historical significance of the traditional Korean houses. My role in the project involved collaborating with the team during the design process, contributing to the development of the concept and the overall visitor experience. produced a site plan, detailed drawing of the walkway, highlighting its construction and materials, and final renders that showcased the environmental qualities of the redeveloped site. By engaging with local students and responding to the unique brief. gained valuable insights into the importance of cultural sensitivity and contextual design.








Year: 2023, Year 2, Semester 1
Location: Curtin, Bentley Campus
Tutor: Dillon Gorton
Type: Community
Program: Hand Drawing
Role: Individual Project
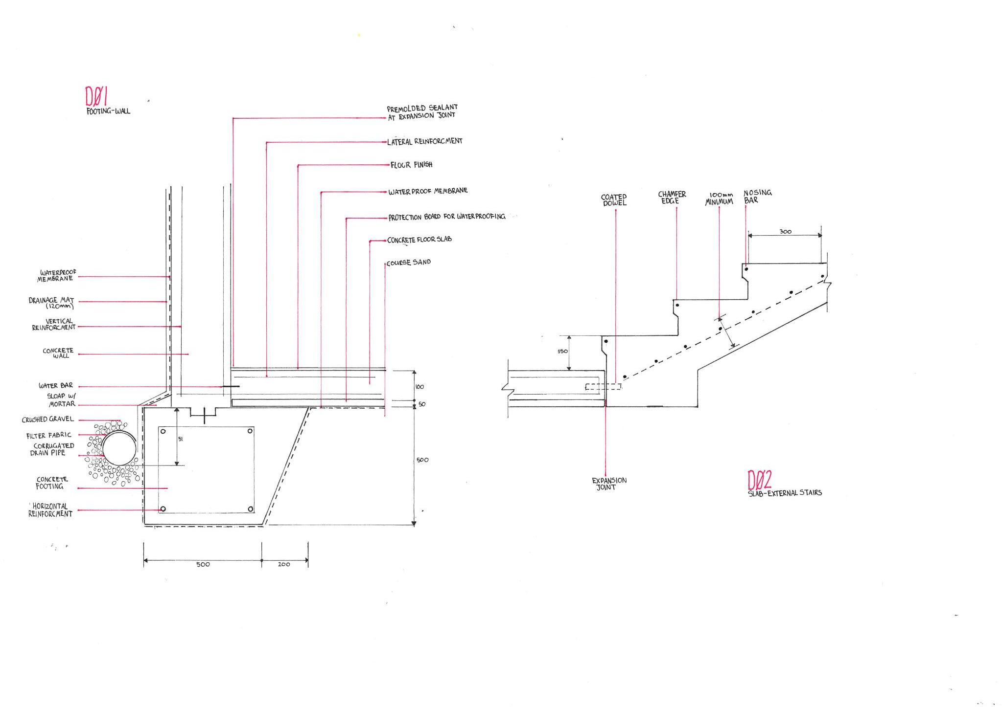
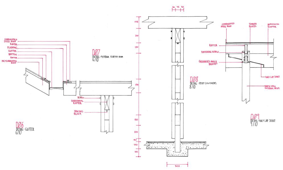
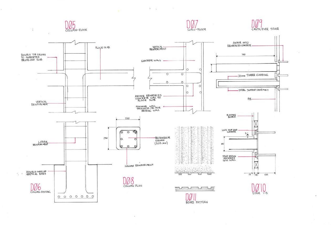
This unit served as an introduction to the conventions and techniques used in construction drawings.
The main objective was to create a set of plans and details for a building located within the Curtin University campus. All drawings were required to be completed by hand, and measurements were obtained through personal site surveys.
The drawing set combined the technical aspects of construction drawings with the design presentation elements of architectural drawings.
This approach allowed for the development of both technical proficiency and creative expression in architectural representation.
In addition to the campus building, the same set of drawings was produced for the house designed in the concurrent design studio. This parallel exercise provided an opportunity to apply the newly acquired drawing skills to a personal design project, reinforcing the understanding of construction drawing conventions and techniques.











Eleanor Disselkoen
2nd Year Selection of Work
Phone: 0439551888
Email: eleanor@dissel.com.au
Issuu: https://issuu.com/eleanordisselkoen