"Architectural Alchemy: Transforming Spaces, Shaping Dreams"

Page 1

PORTFOLIO

ARCHITECTURE

AND URBAN DESIGN

ELDJONA MATAJ

TABLE OF CONTENTS

03

Elevated Green Park and Landmark Professional Project

Upcycled outdoor furniture Professional Project

Public spaces in rural Denmark Research project

Place For Community Master thesis project

Sustainable harbour transormation Master project

Portals into the wild world Master project

Port in Motion Master project

Shipping company Professional project

Multifunctional Building Professional project

Multifunctional Center Bachelor thesis project

Student Accommodation Bachelor project

Reinventing Cities

Competition
Urbanism
Sustainable Wall Volunteering design work
06
07
Urban Architecture
Tactical
Volunteering work
04 05
01
02 08 09 10 11 12 13 14
Architecture Competition Volunteering

Elevated Green Park and Landmark

Proffesional Experience at Creator Projects, 2024 (Copenhagen, Denmark)

The project involves designing an elevated green park that will serve as a new landmark and enhance the existing area. This vibrant public space will feature lush greenery, walking paths, seating areas, and artistic installations, promoting unity and connection within the community. The park aims to beautify the neighborhood and become a cherished destination for residents and visitors alike.

Masterplan
01

Park Visualization

Site Analysis

Upcycled outdoor furniture

Proffesional Experience at Mellow designs, 2024 (Copenhagen, Denmark)

Mellow designs lives by the zero waste-philosophy, which lead them to create the mellow joint™️ which makes it pos sible to repurpose idle Euro Pallets by connecting them into different structures. The connection is flexible system solu tion which means it is easy to adapt the setup to specific needs and create new, innovative structures. Reusing waste materials also ensures a more circular concept.

02

Festival installation Visualization

Public Typologies in rural Denmark

Research Project at Aalborg University 2022/2023 (Copenhagen, Denmark)

The pilot research project studies physical spaces in small villages (less than 1,000 inhabitants) to enhance understanding of their spatial structures and roles. Over a year, it involves desktop studies and fieldwork using an analytical model to map village spaces. The goal is to better understand their materiality, function, and conditions, contributing to the typologization of Danish rural areas. The project supports strategic planning for villages but does not offer specific recommendations. solution

Significant village traits map

GEDSTED DURUP
VINDBLÆS
SPARKÆR HAVBRO
03

Spatial scale analysis

Section A-A’ 1:500

1:1.000 Plan Diagram

A A

Village scale mapping analysis

Map analysis: Location/ Overview/ Figure Ground/ Morphology/ Functions/ Infrastracture/ Landscape/ Soil conditions

Territorial scale mapping analysis

Map analysis: 7 selected villages from 64 # Overview/ Inhabitants & population development/ Functions/Infrastracture/ Landscape/ Geological conditions

Design Concept

Place for Community

Master Thesis project, 2022 (Copenhagen, Denmark)

A general desire for more housing, privacy, elbow room and cars can challenge the design of New urbanist inspired approaches. This master plan aims to please both households. With the diversity, inspired by the transect, both ways of living; in a small row houses, roads and block/ courtyard areas can be fulfilled. Moreover, ways to experience and escape them both, are possible within a short distance and time.

Masterplan
04

Typologies Proposal Diagram

Access Proposal Diagram

Function Proposal Diagram

The master plan is designed to reflect the existing typology of Sydhavnen. This aims to ease the conflict of a cultural split in Sydhavnen, by providing physical spaces that can please the full district, no matter if you live or visit the site.

The focus on community and the existing local wishes may foster a better social environment and a willingness to engage in the new neighbourhood as a connected community throughout Sydhavnen.

The nature park improves the urban environment and the quality of life whilst increasing health, biodiversity and offering an encounter with people and nature. Being part of this nature experience is a great chance to disconnect from the quick everyday rhythms.

The courtyards work which praise safety of belonging while monotony by offering meeting points or scape” the road. It space in front of the parating the public vate leisure spots.

Row Houses Courtyard

The nature park improves the urban environment and the quality of life whilst increasing health, biodiversity and offering an encounter with people and nature. Being part of this nature experience is a great chance to disconnect from the quick everyday rhythms.

The Nature park

work as places safety and the sense while breaking the offering semi-private or spaces to“eprovides private the entrances, sepublic spaces to pri-

Section A-A’ Section B-B’

Design Concept

Harbour Sustainable Transfrormation

Master project, 2020 (Struer, Denmark)

A general desire for more housing, privacy, elbow room and cars can challenge the design of New urbanist inspired approaches. This master plan aims to please both households. With the diversity, inspired by the transect, both ways of living; in a small row houses, roads and block/courtyard areas can be fulfilled. Moreover, ways to experience and escape them both, are possible within a short distance and time.

Masterplan
05

Blue/Green analysis

Function
qualities
analysis Spatial
analysis Skatepark and Floating structure

Design Layers Exploded Diagram

Specification Details

Public Space Expierience

Landscape and Plants

Water Canal Detail

For Extreme raining Cases

Green Roof Detail

For Everyday Cases

Water Management Principles

In order to reduce the future climate issues in Struer, measures are required to prevent flooding due to sea-level rise and cloudburst events. The design concept is implemented as a sum of multifunctional urban elements that can be used to hold rainwater runoff and strengthen defences against rising sea levels. The general plan is designed around the terrain hill, the three water canals and the small lake in the Plaza square which operate in parallel as reservation tanks but also as places for play, sitting and recreation, as main water elements in the landscape.

Water Management Schema

Everyday Scenario Extreme Scenario
Enhancing Landscape and Architecture

Amphithiater Stairs

Connection -to and from- Harbour and City

Section A-A’ Section B-B’

Portals into the wild world

Master project, 2020 (Hjorring, Denmark)

The site is a green sanctuary in the middle of a brick city, where you are isolated from the traffic noise and chaos. The site is surrounded by trees and consists of two open spaces that are divided by a wall of trees. Within these open spaces native plants will be planted.

The Concept

Elevated pathway Submerged pathway

Proposal/ Sensorial site section

Existing site morphology

06

Canvas that shows the relation between City-Environment-Geography

Scenery

Sound

Experiences

Concrete ground feeling

Soft ground feeling

Materials

Gateways

Port in Motion

Master project, 2021 (Grenaa, Denmark)

The problem statement of this project was ´´How to develop a recreational port for both locals, workers and tourists by enhancing the connection and accessibility between the entrance to the heart of the port?´´. Enhancing the access and strengthening the connection to the port of Grenaa constitute the guideline of “Port in Motion”, a project that relies on soft mobilities in order to transform the port from a place of car transit to a recreational place of discovery.

Masterplan

1. Wayfinding proposal
view
2. Multifunctional furniture
Axometric
3. Traffic proposal
07

Design Concept

Ripples effect

Wayfinding

Unity and motion

See through /go through

Designing shapes that favorise multiple uses

Encouraging gathering Multiple vantage points

A-A’
Section
B-B’
Section

Multifunctional Furniture

Frames

• Explore the urban context through transparency

• Help visitors to navigate

• Creates a destinct image for the site

• Tells a story about the site

Mobility Analysis

Traffic section proposal

Ground material

• Visual guidance towards and along the port

• Calms traffic and protects slow-mobilities

• Creates a sense of safety and comfort at night

Professional Experience at Sotoviks + B

Shipping company

(Athens, Greece)2019-2020

Team: Eldjona Mataj, Anna Litsou

Design: August / Construction: March

08 Ground Floor Plan Roof Top Construction detail Roof top construction detail Constructional roof top detail Building View
detaildetail detail

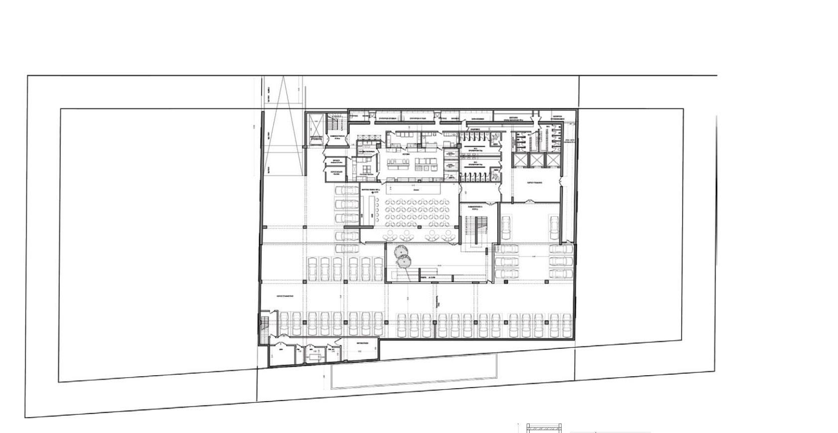
Professional Experience at Sotoviks + B

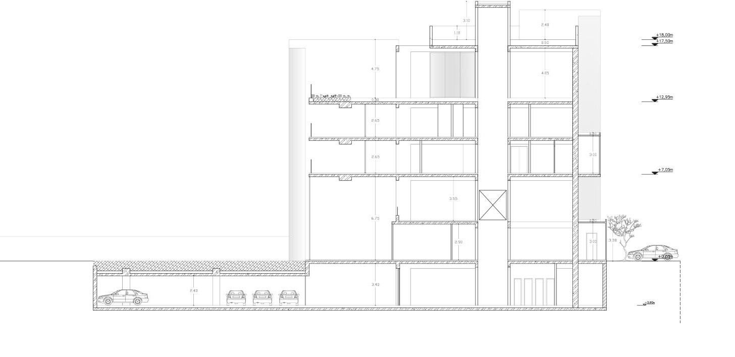
Multifunctional Building

(Athens, Greece) 2020

Team: Eldjona Mataj, Anna Litsou

Design: November

09
Floor Plan Section A-A’
Ground
Planting construction detail
Section B-B’

Multifunctional Center

Bachelor Thesis, 2019 (Athens,Greece)

Architecturally designed to create a building whose ´continuation and end´ create a park and an interactive playground for children, highlighting the ancient and sea diving, the triangular shapes were emphasized to allow a slight transition of levels to the interactive energy of the child users. The first purpose was to solve the external ramp which was modeled based on diagonal engravings from the shape of the building. The purpose of the proposal is the creation of landscape architecture. The formation of a landscape form combined with the natural element is perceived as a natural expanse that frames the layers studied. It functions as a painting that the city is invited to see and experience. It harmonizes with the natural environment and draws information from the landscape itself.

Diagramatical design development

10
Ground Floor Plan
Roof Plan
1st Floor Plan

Environmental Section

Constructional detail of the building
Constructional detail of the roof
View B
View A
View C

Student Accomodation

Bachelor Project, 2018 (Athens,Greece)

After visiting the study area, my personal attention was drawn to the intense fluctuations in the height of the buildings. This is due to the difference in the chronology of the buildings and the reason for the refugee houses. This results in a strong escalation of heights that create different escape views. In this case, I defined the geometric strict bulk of the buildings as the ´full´ and the open spaces as the ´empty´ of the area. To reinforce this view I have studied the table by P. Modrian Composion A (1923). I defined the colors as the ´full´and the white as the ´empty´ in the canva. There is an interrelated unity between them, as the absence of the complete ones prevents the appearance of a emptiness.

Ground Floor Plan 1st Floor Plan
11
A B’ B’
Section
A-A’ Section B-B’
Axonometric building View
Construction detail 1
Construction detail 2

Students Reinventing Cities

Competition, 2021 (Montreal,Canada)

This project examines the potential that circular urbanism holds as a sustainability strategy for urban redevelopment projects. Currently redevelopments done in a linear process fail to maximise temporal, material, and spatial resources, while at the same time is unsuccessful to address important community needs in redeveloped areas. Alternatively, circular urbanism can be considered as an adaptation of circular economy to the urban redevelopment process, combining urban regeneration, adaptive reuse and multifunctionality practises.

Pyramid Emission
12

Multifunctional Office Space

Temporal Analysis of an Office Space

Instead of building a new structure to accommodate the community’s needs, functions can be combined in the same space, for different times in a day.

Window Reuse as a Community Greenhouse

Many elements and building materials can be reused or repurposed which will save embodied energy, free space in landfills, and reduce co2 emission.

Maximising the spatial resource could be the opposite of sprawl, reusing this already urbanised land in the city, sparing nature from being urbanised.

Community Garden and Farmers Market

Bus stops have potential for interaction, but people currently view waiting time as ”dead time.” This proposal aims to improve waiting time quality at a bus stop in southern Copenhagen. The proposal includes wooden elements for seating, bike parking, and planters.

Making the ’wait’ worthwhile

Competition, 2023 (Copenhagen, Denmark)

13

VOLUNTEERING WORK

Sustainable Wall

Proffesional Experience at Mellow designs 2024 (Copenhagen, Denmark)

Mellow Designs’ Mellow Wall™ is a flexible, panel-based temporary partition using upcycled scaffolding. It allows for various natural materials like hempcrete and mycelium. Easy to assemble without power tools and causing no damage, it offers a versatile, cost-effective solution for businesses.

14
‘‘ Architecture is about trying to make the world a little more like our dreams ’’

Sincerely,

Turn static files into dynamic content formats.

Create a flipbook
Issuu converts static files into: digital portfolios, online yearbooks, online catalogs, digital photo albums and more. Sign up and create your flipbook.