2023 Portfolio

Page 1


ACADEMIC PORTFOLIO

ARCHITECTURE PORTFOLIO

2014-2019

2014-2023 selected work

Siyuan Cheng

Elaine(Siyuan) Cheng

“Architecture is the art of reconciliation between ourselves and the world, and this mediation takes place through the senses.”
Juhani Pallasma

INTERCONNECTED

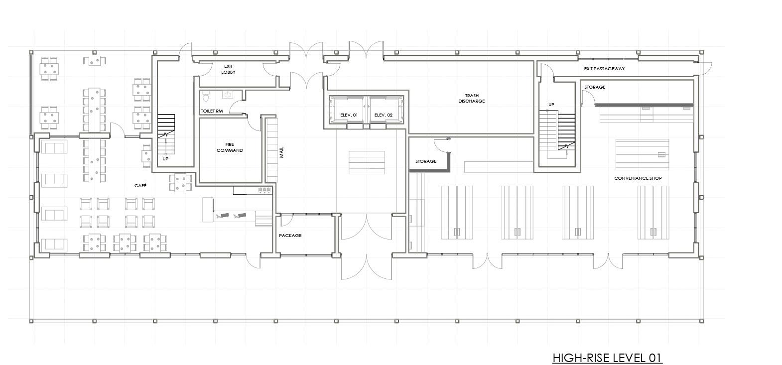
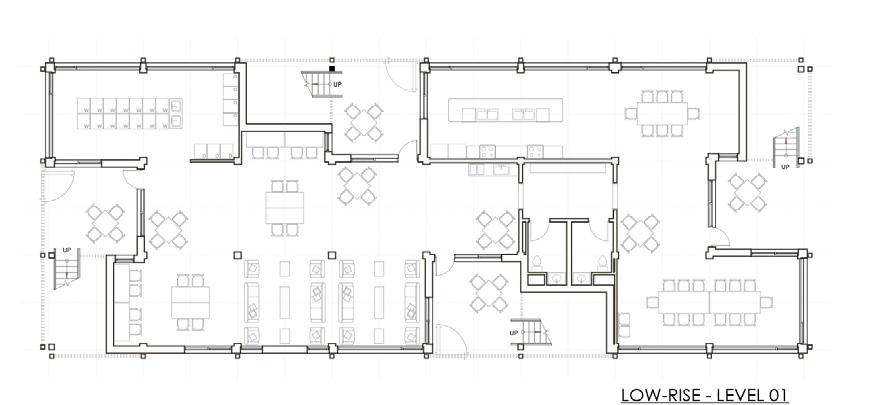
Residential/ Housing Development Detroit, MI, USA

Instructor: Lars Graebner, Christina Hanson 2022

INTERCONNECTED is a community that prioritizes the needs of its residents. With a diverse range of housing options that cater to people from all backgrounds, this development is located in the Brush Park neighborhood of Detroit, Michigan. Over the years, the urban environment has become increasingly vacant, exacerbating the missing middle housing crisis. However, INTERCONNECTED seeks to address this problem by ofering a high-density of units spread across two building typologies, a low-rise and a high-rise, on 2.46 acres of land near Downtown Detroit.

Te units themselves are designed to be open and adaptable, with unique foor plans that allow residents to confgure their homes according to their specifc needs. Ranging from studios to three-bedroom apartments, the units cater to individuals and families alike. Te nine low-rise buildings include four four-story buildings that feature on-site resources like laundry facilities, a leasing ofce, a kids zone, a café, a gym, and more.

In addition, the garden courtyard spaces between the buildings are open to the public but are primarily intended to be an extension of the residents’ homes, allowing them to connect with nature and enjoy a sense of community.

Above all, INTERCONNECTED is committed to respecting its residents and the wider community in Brush Park. By creating a space that is welcoming and inclusive, this development strives to provide a home for people from all walks of life.

Psychrometric Chart

SITE

Apartment rent ranges

At 35.05%, apartments priced $700 - $1000 represent the bulk of Detroit, Michigan rentals, while condos priced Under $500 hold the lowest share of the market – 0.45%.

Renters take up 52% of Detroit, Michigan real estate, occupying a total of 141,707 units, while homeowners live in 128,739 properties.

Average household size of renter-occupied housing units**

Renter median household income** $25,004

Median number of rooms of renter-occupied housing units**

Tere are 48,406 rentals in Detroit, Michigan with 3 beds making up the highest share of the market, at 34%.

Building Strategy

Landscape Strategy

Te tower is strategically positioned at the northeast corner of the site for two key reasons. Firstly, this location maximizes the site’s natural light while ensuring that the tower doesn’t appear too imposing and overshadow other low-rise buildings. Secondly, the design aims to establish an anchor point for the site, providing a visual cue for trafc approaching from the south and allowing them to experience the vibrant community from afar.

Life Cycle Analysis For Steel Structure

Mechanical System

Life Cycle Analysis For CLT Structure

Detroit, MI, USA

Instructor: Christian Unverzagt 2021

Te Elmwood Park Library project aims to establish a local library branch that provides an inclusive space for people with diferent abilities, allowing them to learn and spend their time equally. To achieve this, the project anticipates future demographic changes based on existing site and trafc conditions, and identifes the needs of diferent user groups such as children, adults, and the elderly in an ergonomic manner. For instance, the height of the bookshelves is adjusted to suit the abilities of diferent groups, and the overall circulation is developed with consideration for the varying mobility of each group and their relationship with one another. Te plan and structure of the library are designed to facilitate the aforementioned purpose.

American Indian

2+ races

Races

Current Age Distribution

When we view Elmwood Park solely from a community perspective, it appears to be a “closed-of ” area. However, if we zoom out to the urban level, we can recognize Elmwood Park as a signifcant link between two signifcant urban projects - the Eastern Market and Riverfront development. Although the current residents of Elmwood Park are primarily older individuals, its strategic location ofers opportunities for greater inclusivity. With my design, I intend to create diverse rhythms for diferent groups of people to ensure that everyone has equal access to the library’s knowledge and resources. Black

Te massing of the building begins with the concept of a tree branch, which has three branches that point to the three main directions of the city to the site.

Te edges of the building volumes were sofened in the subsequent optimization

In order to optimize the reading experience of the library, the building is designed with skylights on the roof so that natural light can enter the interior. Also, drawing inspiration from reading, the exterior skin of the building resembles a curled book page, adding a sense of movement to the entire facade.

Skylight

Ergonomic Analysis And Circulation Design

Adults Handicap Children

Ergonomic Analysis Relates To Spatial Use

Circulation Design Based On Mobility And Scale

Facade
3rd Floor
2nd Floor
Gound Floor
2nd Floor
3rd Floor
Children Zone Tird
“La Grande Piscine À Brusa” Jean-Léon Gérôme
Sitting
Bath
Bath
Shower

In traditional Chinese culture, public baths were a vital aspect of daily life. Tey not only served as a place to cleanse oneself but also provided an opportunity for socializing with friends, making them an important social hub. In Beijing, for instance, the Siheyuan and Hutong were central to daily life in the past. Each Hutong used to have at least one bathhouse where people could gather to socialize, bathe and even engage in recreational activities such as playing chess or cards while enjoying a cup of tea. Te unique environment of the bathhouse ofered a space for relaxation and entertainment.

As demographics and the habits of Hutong residents change, younger generations prefer a more private and individualized bathing experience. However, the old structures and limited space in Hutongs make it difcult to install private baths. To address this issue, the one-person bath has been designed to create a new bath typology with minimal space, providing a comfortable and private bath environment for those without a private bathroom.

“La Grande Piscine À Brusa” Jean-Léon Gérôme
Shower

Proposed locations

Te project is located in Shaanxi Alley in Beijing’s Eight Hutongs. Te Eight Hutongs are a historical residential area, and the hutong pattern was formed at the end of the 18th century. Afer centuries of development, Te hutong forms the existing residential pattern. Te eight hutongs are home to the local Beijing residents, mainly the elderly. But with the rapid economic development in recent years, the city has fooded in with young migrant workers. Many young people choose to live in hutongs to experience the local life of Beijing. Te age diference between existing population groups makes the existing public bath hard to serve all. For the elderly living in the hutong, the pace of life is slow, bath is an important element of social and leisure life. For young people, the pressure of work, coupled with Beijing’s heavy trafc makes it very late when they got home. In this situation, they would rather have an individual bath space close to where they live to relax their tired bodies.

“Siheyuan” Te common residence type in Hutong
Shaanxi Alley

Age Distribution of Hutong residents in 2000 and in 2015

(Source: Beijing Public Security Bureau Resident Population Statistics) Age 60-79 (elder people) Increase Trend

Hutong residents’ one day in Beijing

Elder

people live in Hutong

Younger people live in Hutong

Age 20-39(younger people) Increase Trend

Walking the birds
Playing chess in the street corner
Shopping in street market
Taking a bath in public bathhouse

Morphology based on site condition

Pre-fabricated Copper Core
Steel Rebar
Insulation
Concrete Shell
Entrance
Changing Room
Wood Storage Shelf
Concrete Shell
Rebar
Wood Floor
Water Inlet
Drain Pipe
Wood Formwork
Shoring
Pouring Concrete
Final Product

Roanoke Brewery

Roanoke Brewery

Mixed-use

Mixed-use

Roanoke, VA, USA

Roanoke, VA, USA

Instructor: Kevin Jones

2017

Instructor: Kevin Jones 2017

Roanoke brewing center is a multifunctional building designed for beer tasting, brewing, gallery, and ofces. Te site is located in the center of the city where 2 streets meet. Jeferson street has relatively heavy trafc fow when compared with Church street. Both streets have narrow sidewalks. Te major challenge of this project is to relieve people from the narrow streets while maximizing the building’s commercial value.

Roanoke brewing center is a multifunctional building designed for beer tasting, brewing, gallery, and ofces. Te site is located in the center of the city where 2 streets meet. Jeferson street has relatively heavy trafc fow when compared with Church street. Both streets have narrow sidewalks. Te major challenge of this project is to relieve people from the narrow streets while maximizing the building’s commercial value.

To address these issues, an internal courtyard is created to provide a sense of relief and space to Jeferson street. Taproom, the public section of the brewing center, is designed to face Jeferson street to engage the city and absorb more customers. Te more private section, the brewery hall, and ofces are designed to face the quieter Church street side.

To address these issues, an internal courtyard is created to provide a sense of relief and space to Jeferson street. Taproom, the public section of the brewing center, is designed to face Jeferson street to engage the city and absorb more customers. Te more private section, the brewery hall, and ofces are designed to face the quieter Church street side.

Landscape and Topographic Line

Jeferson Street
3f Sidewalk
Major Roads and Railway
3f Sidewalk
Building Footprint
3f Sidewalk
Noise Map
4f Sidewalk Jeferson
erson Street Noise Level ~63dB
Church Street Noise Level ~45dB

Exploded Axonometric View

Layer
Courtyard voids

Floor Plans

East Elevation
Sounth Elevation
Transparency
East Section
Sounth Section

Te cradle is an urban planning project based on large-scale thinking. Te project is located at the Olusosun landfll site in Lagos, Nigeria. In the 1990s, the landfll site was located in the suburban area in Lagos. With urban development and the accumulation of garbage, Te landfll site is now expanding and slowly shifing to the city center. Te excessive trash on the site makes the reusing and replanning of the sites difcult.

Te Cradle proposes a sustainable, new model of community growth to address the dilemmas facing by the sites and cities. In this design, the community center is considered as a huge “garbage swallow machine”. Tis machine consumes the waste materials on the site and transfers the waste into usable building materials. Te recycled building materials are used to build the surrounding communities.

Te project also looked at how diferent recycled materials are constructed and the types of space they can form. In this project, the community center is not only a place where people gather, but also a cradle for new communities.

Lagos has experienced rapid economic development and population growth over the past few decades, resulting in a large amount of garbage. Since 1992, the government has set up Olusosun landfll to tackle excessive waste consumption in the city, and over the past 20 years, Olusosun landfll has undergone several expansions that made it to the world’s sixth-largest dumpsite today. Given its enormous recycling potential, the project aims to seek a sustainable community development model through the recycling of three types of waste in the landfll site. Over the years, Olusosun landfll has accumulated 65f depth of garbage on the site, in some areas the garbage is very loose, resulting in the soil force is easy to change. Terefore in this design, the community gives up the high rises, instead, the whole community is fat, “foating” on the site.

Lagos has experienced rapid economic development and population growth over the past few decades, resulting in a large amount of garbage. Since 1992, the government has set up Olusosun landfll to tackle excessive waste consumption in the city, and over the past 20 years, Olusosun landfll has undergone several expansions that made it to the world’s sixth-largest dumpsite today. Given its enormous recycling potential, the project aims to seek a sustainable community development model through the recycling of three types of waste in the landfll site. Over the years, Olusosun landfll has accumulated 65f depth of garbage on the site, in some areas the garbage is very loose, resulting in the soil force is easy to change. Terefore in this design, the community gives up the high rises, instead, the whole community is fat, “foating” on the site. landfll perimeter in 1990s

landfll perimeter in 1990s

landfll perimeter in 2000s landfll perimeter in 2010s major roads

Major Road
Landfll Process

Waste composition

= 0.6 ×
Te Forbidden City
Te Colosseum
Olusosun landfll 100 acre
World Africa Nigeria Lagos
World Africa Nigeria Lagos
Te Site ≈
Te Vatican City = 16.6 * Te Colosseum

Program Flow Chart

storage and ship ferrous bailing non-ferrous bailing metal seperator cutting can bailing can dryer can washer sorting metal collector organic storage storage extrude machine melting plastic dryer shredding sorting plastic washer seperator rotate screening tube production paper drying bed carton machine grinding deinking sleeve pulper seperator paper large item storage

Te design attempts to create a community that grows spontaneously from the community center. Te community center is designed with a conveyor system, the huge excavators on the roof mine the underground trash then send it to the central conveyor ring. Te central conveyor ring is connected to paper, plastic, and metal processing plants respectively. Te processing plants acquire the raw materials from the central conveyor ring based on diferent needs. Afer the material is processed, it will be transported by the conveyor system again to the storage space, which is located on the second foor of the community space. Building materials in storage space are transported by the outer conveyor ring to the communities according to the construction needs of these communities. As more waste is mined and processed, more construction materials will be available to the community, and the entire community will expand in a radial form.

Excavator structure and roof
Building structure

In our daily lives, paper is ofen used to create a variety of goods, the most common being writing paper and napkins, thus giving most people the impression that paper is a sof material. In my prototype study, I explored the structural qualities of paper, as well as its potential as a building material.

Te type of waste plastic on the site includes plastic so on. Plastic itself is a lightweight material that and pressure are applied. I designed three prototype various plastic properties and their construction

Plastic Panel
Paper Bale
Plastic Bottle Paper Tube
Plastic Busket
Dyable Paper Pulp Board

plastic bags, plastic bottles, plastic baskets, and that can be easily shaped and molded when heat prototype houses based on plastic, examining the construction potential.

Metal is a hard and durable material that is suitable for structural use. Because of its good durability, it is mainly used as a material for public buildings in the community, such as churches and hospitals. Te metal collected from the site includes cans, metal plates, used water pipes, and so on. I have created three types of prototype houses and mainly looked into the construction potential of these materials.

Waste pipes
Compressed Cans Block
Waste Corrugated Metal Panels

Tis project delves into the diverse applications of parametric design. It utilizes parametric design to create rules for 2D points and lines, extending previous projects that enhance pedestrian pathways, and reinterpreting them into 3D for exploring various architectural formal languages. In addition, the project leverages minimal surfaces and biomimetic “growth” rules through parametric design to expand the formal possibilities of architectural design.

Path Optimization Based On Kernel Density Estimation

3d Path Finding Based On Physarum Simulation

fundamental region

spherical curve from corner

spline from curve to corner

straight line from corner to midpoint

spline from curve to curve

mirror surface

mirror pair of surfaces

mirror cluster of surfaces

Minimal Surface Generating Process

basic module

mesh relaxation

growth step 2

mesh relaxation

mirror and rotate group of surfaces

growth step 1

mesh optimization (equilateral triangle)

Diferential Growth Simulation

Te project’s inspiration stemmed from a digital modeling course that I completed during my graduate studies. Trough the course, I delved into various techniques for generating minimal surfaces and the ways to fabricate them in real-life settings. However, I realized that despite the increasing development of computer modeling in today’s world, a vast chasm still exists between expressive forms and traditional construction methods. Tis has hindered the unifcation of external expression and internal construction. Consequently, the project aims to explore the architectural quality of innovative forms, seeking a balance between architecture and its expressive form from site analysis to facade design.

Design Logic

Direct Sun Hours (Location: New York City)

Facade Design

Facade Option A_Curtain Wall

Facade Option B_Window Wall

Children Hospital(Ongoing)

Healthcare Milan, Italy

Te goal of my thesis is to reimagine the role of corridors in children’s hospitals. Typically viewed as mere passage for moving between rooms, corridors are actually among the most heavily utilized spaces in hospitals, and therefore cannot be overlooked. Hospitals, in general, are highly trafcked environments with patients, doctors, and equipment constantly passing through the corridors, making them busy and stressful areas. Taking inspiration from the social corridors of classical architecture, my design approach explores the corridors of children’s hospitals and their potential as spaces that extend beyond their primary function of facilitating movement. Trough a comparative analysis of corridors in diferent building types, including commercial spaces and kindergartens, I defne a new model of children’s hospital that prioritizes accessibility and functionality. Te project is located next to an existing hospital in Milan, Italy, and the design of the new building expansion is informed by the surrounding environment and culture of the hospital, incorporating elements such as color, material, and lighting to redefne the hospital corridor as a highly efcient space with multiple functions.

Xiamen Maluan Bay Central Island Planning Competition

Perkins+Will Project_Urban Scale

1. Establish Connection Between Waterfront And Central Park
3. Using Elevated Walkway System To Connect Te Terrace
2. Introducing Curves to CreateTerrace
4. Adding Public Spaces On Towers
Underground Space Design

Infnitus Headquarter in Guangzhou

Zaha Hadid Project_Interior SD

Leeza
Individual design with assistance of senior architect

Turn static files into dynamic content formats.

Create a flipbook
Issuu converts static files into: digital portfolios, online yearbooks, online catalogs, digital photo albums and more. Sign up and create your flipbook.
2023 Portfolio by Elaine Cheng - Issuu