Ekaterina Romanenkova - Portfolio

Page 1

P O R T F O L I O

selected works 2019 - 2023

EKATERINA ROMANENKOVA

Tokyo Private Residence

Aman Interiors Booth at Design Miami

Amanyara Store

Midjourney Sketches

European Commission Headquarters

Mayflower World Trade Center

Victory Silos

Fukuoka Jisho Tsunaba

C O N T E N T I N T E R I O R
A R C H T E C T U R E
I II III IV V VI VII VIII pg.06 pg.26 pg.30 pg.34 pg.40 pg.44 pg.50 pg.56
N T E R I O R

ITokyo, Japan

Client undisclosed

Selected Works 2019 - 2023 7 6
Ekaterina Romanenkova TOKYO PRIVATE RESIDENCE Interior design and art selection Spring 2023
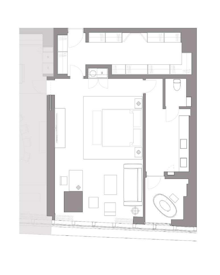
Selected Works 2019 - 2023 8 FLOOR PLAN 9 Tokyo Private Residence
Ekaterina Romanenkova
Selected Works 2019 - 2023 10 LIVINGROOM (OPT.A) 11 LIVINGROOM (OPT.B) Tokyo Private Residence
Ekaterina Romanenkova
Selected Works 2019 - 2023 12 LIVINGROOM (OPT.A) 13 LIVINGROOM (OPT.B) Tokyo Private Residence
Ekaterina Romanenkova
Selected Works 2019 - 2023 MASTER BEDROOM (OPT.A) MASTER BEDROOM (OPT.B) 14 15 Tokyo Private Residence
Ekaterina Romanenkova
Selected Works 2019 - 2023 16 17 OFFICE (OPT.A) OFFICE (OPT.B) Tokyo Private Residence
Ekaterina Romanenkova

FURNITURE SELECTION: ENTRANCE, KITCHEN, LIVING AND DINING ROOMS

MAIN ENTRANCE, LIVING DINING ROOM AND KITCHEN

Selected Works 2019 - 2023 18 19
Ekaterina Romanenkova
AMAN TOKYO RESIDENCES: UNIT 6205 APRIL 2023 AMAN INTERIORS 14
7. Bronze Martini Side Table - Christian Liaigre 1. Entrance Feature (Peter Brook-BallComission Sculpture) 2. N-S02 - Karimoku (Opt.A) 8. Museum Cabinet Wood Sliding Door - Time & Style 5. Cobogo Copacabana Coffee Table - Lia Siqueira by Etel (opt.A) 3. Conoid Lounge Chair - George Nakashima 9. Jute Loop BrownJane Clayton (Opt.B) 2. Custom sofa (Opt.B)
Floor Walls Walls Kitchen
Kitchen
Ceiling Custom Fabric Walnut Fabric Teak Natural Fiber Interlacing Bronze Oak White
9. Grid - Warp & Weft (Opt.A) (Furniture) (Top, Wall)
1 3 4 5 7 8 9 2
4. Greenrock OttomanNakashima Woodworkers (opt.A) Walnut Fabric 5. Span (Custom size) - John Pawson x Salvatori (opt.B)
Oak Beeswax 6
4. PJ-SI-24-A - Pierre Jeanneret (Opt.B)
Natural Freijo Custom Fabric Oak White Marble Cherry Washi paper Bamboo Tokyo Private Residence
6. Akari BB3-X3 - Isamu Noguchi

FURNITURE SELECTION: ENTRANCE, KITCHEN, LIVING AND DINING ROOMS

MAIN ENTRANCE, LIVING DINING ROOM AND KITCHEN

* Additional screen optons on pg. 16

* Custom materilas

Selected Works 2019 - 2023 20 21
Ekaterina Romanenkova
AMAN TOKYO RESIDENCES: UNIT 6205 APRIL 2023 AMAN INTERIORS 15
15. Triple Chest of DrawersGeorge Nakashima (Opt.A) 15. Museum cabinet drawersTime & Style (Opt.C) 13. Akari 75A (D75cm)Isamu Noguchi (Opt.A) 13. Ore PendantAtelier 001 (Opt.B) 14. Walnut Dining Table (151cm) - George Nakashima for Widdicomb (Opt.A) 12. Cats Chair - Time & Style 16. Bench/Coffee Table in Walnut - Phillip Lloyd Powell 17. Vase - Apologia 18. Linda BiancoRubelli Textile
L2 Smooth 40103
19. Tadao Argento - Rubelli Textile
Floor Walls Walls Kitchen (Furniture) Kitchen
Ceiling Oak Beeswax
(Top, Wall)
14. Frenchman’s Cove II - Nakashima Wodworkers (Opt.B)
Beeswax
Cheery English Sycamore
Oak
15. Console - David N. Ebner + 2xCabinets - P.Tendercool (Opt.B)
337
Walnut Walnut
11. Custom Screen Screen
176 x
cmJapanese Early 20th cent. (opt.A)*
Oak Beeswax L2 Smooth 40103
10. The Curving Chair (Custom Tall) - Time & Style
Ziricote Walnut Washi paper Brass 10 13 11 12 15 16 17 19 18 14 Tokyo Private Residence

FURNITURE SELECTION: ENTRANCE, KITCHEN, LIVING AND DINING ROOMS

MASTER BEDROOM

*

Selected Works 2019 - 2023 22 23
Ekaterina Romanenkova
AMAN TOKYO RESIDENCES: UNIT 6205 APRIL 2023 AMAN INTERIORS 17
Leather Wall (Bathroom)
20. Saint-Honoré - Christian Liaigre (opt.B) 27. Japan Chair - Finn Juhl 20. Magnum - Flexform (opt.A) 26. Groundpiece - Flexform (opt.A) 23. Custom Bench - Takumi Otsuka (Opt.B) 21. Faro - Bruno Moinard Edtions (opt.A) 28. Ottoman - Finn Juhl
Floor Walls Walls
Floor (Bathroom) Ceiling Bronze Antique Bronze Leather Olive Suede 6003 Custom Fabric
24. Triple Sliding Door Cabinet - George Nakashima (opt.A)
(Bathroom)
24. Teak 8 Drawer Credenza - Westnofa (opt.B)
Fabric Bronze
26. Don Juan - Christian Liaigre (opt.B) 22. Teak Bedside TablesWestnofa (opt.B)
20 23 21 22 24 25 26 27 Walnut Oak
Marble Black
25. Altai Side TableMuse Design Company 23. Wallnut Bench - Jens Risom (Opt.A) Different uphosltery 22. Cherry and Walnut NightstandsGeorge Nakashima (opt.A)
Custom Fabric Custom Fabric Custom Fabric Custom Fabric Walnut Aswood stained walnut Teak Teak Bronze Abaca fabric Walnut Walnut Plywood Oak Washi paper Cherry Walnut 28 Tokyo Private Residence
21. 2022 - Haos (opt.B)

FURNITURE SELECTION: ENTRANCE, KITCHEN, LIVING AND DINING ROOMS

MASTER BEDROOM

Selected Works 2019 - 2023 24 25
Ekaterina Romanenkova
AMAN TOKYO RESIDENCES: UNIT 6205 APRIL 2023 AMAN INTERIORS 18
34. Custom 3Way Mirror - Takumi Otsuka 29. Coffee Table - Ludvig Pontoppidan (opt.A) 36. Veranda Grey Champagne - Warp & Weft 31. Akari BB1-30FFIsamu Noguchi (Opt. A) 32. X Leg Desk - Pierre Jeanneret (opt.A) 37. Linda BiancoRubelli Textile
29 30 36 38 37 31 32 33 24 35
38. Tadao Argento - Rubelli Textile 35. Torii Stool - Time & Style
Cypress Walnut
Black Metal
31. Stydd - Bruno Moinard Editions (Opt. B) Teak 30. Floor lamp - Paavo Tynell 33. Fauteuil Direction Pivotant - Jean Prouvé (Opt.B) 33. PJ-SI-28-BPierre Jeanneret (opt.A) 32. Conoid Desk - George Nakashima (opt.A) Teak Oak 29. Coffee Table - Georg Jensen Kubus (opt.C) Teak
Twill Congac Walnut Powder Coating Bronze Washi paper Bamboo Fabric Ratan & Brass
29. Domino Large Coffee TableModo10 (opt.B) Walnut
Wall (Bathroom) Floor Walls Walls (Bathroom) Floor (Bathroom) Ceiling Tokyo Private Residence

Miami, USA

Aman Interiors during Design Miami

Autumn 2023

Selected Works 2019 - 2023 II
Ekaterina Romanenkova AMAN INTERIORS BOOTH AT DESIGN MIAMI Booth design and art selection
26 27
Selected Works 2019 - 2023 Aman Interiors Booth at Design Miami 28 29
Selected Works 2019 - 2023 III
Ekaterina Romanenkova AMANYARA STORE
30 31
Turks
& Caicos Amanyara
Store design and art selection Winter 2023
Selected Works 2019 - 2023 32 33 STORAGE BACK OFFICE BLANKETS OCEAN BOTTLE CANDLES TOWELS BATH AMENITIES GLASSWARE CHINAWARE BOOKS BOOKS MAIN ENTRANCE TABLE GAMES TABLE GAMES 3080 mm 1695 mm 3080 cm 3080 mm 770 mm 1000 mm 770 mm 1000 mm 770 mm 1000 mm 1050 mm 7855 mm 9440 mm 1 1 1 2 2 3 3 3. OBJECTS ON PLINTH Apologia (antique objects)
Ekaterina Romanenkova
2. CENTRAL SCULPTURE
Julian Watts
1. PAINTINGS
Christoph Jacob Samantha Dickie Yun Hyong-Keun
FLOOR PLAN ISOMETRY NE ISOMETRY SW
Hayley McCrirrick
Selected Works 2019 - 2023 IV
Ekaterina Romanenkova
Various Locations Private
interior
Autumn
34 35
MIDJOURNEY SKETCHES
AI sketches for
designs
2023
Selected Works 2019 - 2023 36 Midjourney Sketches 37
Ekaterina Romanenkova
A R C H I T E C T U R E

Brussels, Belgium

Schmidt Hammer Lassen Architects

/ Perkins+Will & Rafael de La-Hoz

Invited competition

Spring 2019

Selected Works 2019 - 2023 40 III
Ekaterina Romanenkova EUROPEAN COMMISSION HEADQUARTERS
41
Selected Works 2019 - 2023 SECTION A - A
Ekaterina Romanenkova
42 European Commission Headquarters SECTION B - B
SOUTH ELEVATION
43
NORTH ELEVATION

MAYFLOWER WORLD TRADE CENTER

Boston, USA

Schmidt Hammer Lassen Architects

Project Development / Adaptive Reuse

Winter - Summer 2019

Selected Works 2019 - 2023 44 IV
Ekaterina Romanenkova
45
Selected Works 2019 - 2023 46 L1M PLAN / MEZZANINE FLOOR
Ekaterina Romanenkova
47 Mayflower World Trade Center
L2 PLAN / SECOND FLOOR
Selected Works 2019 - 2023 48 WALL DETAIL 49 Mayflower World Trade Center
Ekaterina Romanenkova
Selected Works 2019 - 2023 50
Ekaterina Romanenkova V VICTORY SILOS Toronto, Canada Schmidt Hammer Lassen Architects Design Development
51
Summer 2019
Selected Works 2019 - 2023 52 Retail Residence & Office Parking Hotel FUNCTIONS
Ekaterina Romanenkova SILOS SOUTH BLOCK CENTRAL BLOCK
53 Victory Silos AVERAGE DAYLIGHT HOURS TERRACES W/ GREEN PEAKS WIND ANALYSIS 8.00 7.00 6.00 5.00 4.00 3.00 2.00 1.00 <1 TERRACES
POROSITY
NORTH BLOCK
W/ VIEW URBAN
SOUTH PLOT
Selected Works 2019 - 2023 54 Connections Spa Restaurant Public space MIDDLE PLOT / SILO West Elevation New Opening East Elevation Existing Opening 55 SILO ADDITIONS Option A Option B / 6 floors Option C / 5 floors Option D / 4 floors Bridge Connection to Tower Elevator & Stairs Bridge Connection to Tower Elevator & Stairs Option A Option B ACCESS GROUND FLOOR VERTICAL CONNECTION Victory Square Victory Square Grade Grade Option A - Retain existing grade Option B - Lower grade to basement Victory Silos
Ekaterina Romanenkova
Selected Works 2019 - 2023 56 VI
Ekaterina Romanenkova FUKUOKA JISHO TSUNABA Fukuoka, Japan Schmidt Hammer Lassen Architects
57
Concept Development / Facade Design Autumn 2019
Selected Works 2019 - 2023 58 Option A Option B
VIEW 1 59 Fukuoka Jisho Tsunaba
2
Ekaterina Romanenkova
Option C
Option A VIEW
EKATERINA ROMANENKOVA

Turn static files into dynamic content formats.

Create a flipbook
Issuu converts static files into: digital portfolios, online yearbooks, online catalogs, digital photo albums and more. Sign up and create your flipbook.