Eka Saputra's Architecture Portfolio

Page 1


EkaSaputra'sArchitecture journey

Education

PetraChristianUniversity

ArchitecturalMajor

FreshGraduated(2022)

AnggotaHIMAdivisikonsumsi dankesehatanLKMM-TD2019, Menjadianggotauntuk membantuparamahasiswauntuk beradaptasidalammenjadi mahasiswayangmemilikijiwa leadership.

ABDIMASpendampingan disabilitasberorientasidi perpustakaankotasurabayadan seminar,sayabertugasuntuk membantumasyarakat disabilitas.

MagangdikontraktorBangun SentosaJaya4bulansebagai drafterarsitekdandesigner kerjadiperusahaanPTPodoJoyo MashyurMei2023-sekarang, sebagaidraftersekaligusdesign.

challengeresport center

masalah desain

esport merupakan olahraga elektronik dimana membutuhkan perangkat gadget yang digunakan untuk bermain. selain itu esport merupakan sebuah olahraga yangmemerlukandukunganfisikdanmental.

- mampu mengimbangi virtual dengan / memenuhi kebutuhan fisik baik kebugaran jasmani maupun kesehatanmental.

- mengubah perilaku atau kebiasaan buruk para pemain esportjikasudahberhadapandenganlayarkomputer.

berangkat dari aspek sejarah, daerah tapak terdapat area bersejarah monumen bambu runcing, dimana bambu runcing mencerminkan pernjuangan bangsa indonesia melawan kolonialisme belanda. dari situ hal ini mirip dengan kompetisi esport yang dilombakan cenderungsepertiperangdansalingberjuanguntukmemperolehkemenangan.

perjuangan adalah kerja keras untuk meraih sesuatu, kunci meraih kesuksesan. dari 2 hal diatas diambil benang merah dari fungsi esport dengan konteks tapak monumen bambu runcing.

kedua hal ini sangat berkaitan dan sama-sama memiliki aspek perjuangan, oleh karena itu sayamemilihperjuangansebagaiaspeksimbolik.

konsep desain

berawal dari masalah desain, mampu mengimbangi virtual dengan memenuhi kebutuhan fisikbaikjasmanimaupunkesehatanmental. bagaimanamengubahperilakuparapemain esport jika sudah berhadapan dengan layar komputer. perilaku pemain esport banyak sekali menimbulkan keburukan seperti masalah lupa waktu, lupa makan, dan juga lupa kesehatan.olehkarenaitumunculkonsepMOVEMENTdimanadihadirkanuntukmemaksa parapemainuntukselalubergerak.

MAKNA:menunjukkanbahwabangunanuntukkegiatankompetitif

BENTUK:darifasadmenyerupaisimboldariesportyangbergerakdandinamis

FUNGSI:sebagaipembentuksuasanadalamkompetitif.

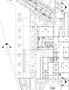
denah tampak

~menerapkan konsep movement dengan memainkan elemen

perspektif eksterior

garis pada fasad~

utilitas

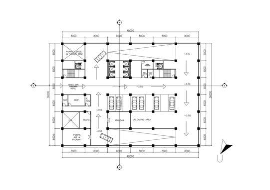
Jakarta North Coast Center(JNCC)

analisa data

lokasi : Jalan Alwan Ancol Raya, Ancol, Pademangan,KotaJakartaUtara

luaslahan:12.000m2

lahan sekitar site

site makro Berada

kota administrasi di

daerahkhususibukotaJakarta,pusatpemerintahanyangberadadiKoja.

Area site dekat dengan perumahan puri jimbaran, jalan tol pelabuhan, kompleks jajanan seafood, costa villa,jakartainternationalstadium(JIS),PantaiAncolBeachMall,BalaiKesehatanKerjaPelayanan.

Selainitu,Siteberpotensikarenadikelilingiolehareakomersil,areaperumahan,danyangterutamajika dilihatdaridatapetawilayahjakarta,areainidirancangkanuntukareaperkantoran

strength:-lokasiyangstrategiskarenadenganAncol -lokasidekatdenganpasarikan

weakness:-dekatareapergudangan -kebisingantinggikarenadekatdengantol opportunities:-cocokdikembangkansebagaikawasankomersial -sebagaitempatberlindungdariisujakartatenggelam threat:-akses

-harusbersaingdenganmall/CBDlainnyayangadadiJakarta -isunaiknyapermukaanlautdiJakartamemerlukanpendekatanstruktur

FUTURESINKINGCITYJAKARTA analisaisuJakartatengelam

KENAIKANAIRLAUTNYA

Kenaikan air laut sekitar 85 milimeter, ataunaik3,2milimetersetiaptahunnya

Overpopulation

Pengambilan air

tanah berlebih

karena pengambilan air bawah tanah secara berlebihan untuk digunakan sebagai air minum, untuk mandi dan keperluan seharihari lainnya oleh pendudukkota.

Turunnya permukaantanah

Akibat dari pengeboran air tanah secara berlebih, permukaan tanah di Jakarta menurun setiap tahunnya(±6cm).

Masuknyaairlaut Permukaan tanah yang memberi kesempatan bagi air laut untuk masuk membanjiri Jakarta.

Studi

Jakarta

Tenggelam sudah

diamatisejak tahun1977

Daridatayangada,AkanadabanyaktitikdiJakartayangdiperkirakanakantenggelam ditahun 2050, Faktor Resiko akan banyak titik-titik daerah yang berkurang fungsinya akibattenggelamnyasebagianareaJakartasesuaidengantitikdaerahpadagambardi tahun2050.

solution and goals

di Kota Administrasi Jakarta Utara adalah nama sebuah
bagian utara
analisa SWOT

Struktur bangunan yang aman dan mendukung terhadap isu jakarta tenggelam.

Menghidupkan area pemukiman jakarta utara, dengan mendukung adanyaspacekomunalyangadaptifdanfleksibel.

Menjadibangunanpelengkapuntukbangunansekitarnya.

konsep struktur

Entranceutama EntrancePedestrian AksesServis

Core Bangunan menjadi tumpuan balok-balok tiap lantainya. Struktur gantung meminimalkan ruang yang terbuang akibat kolom dan juga mengurangiresikogagalnyastrukturakibatrembesanairlaut.

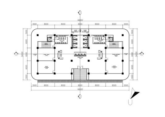
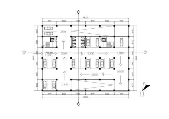
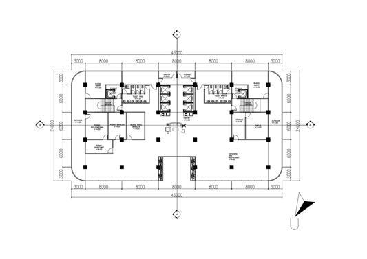
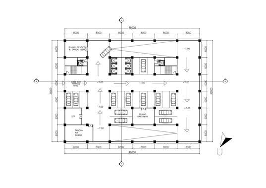
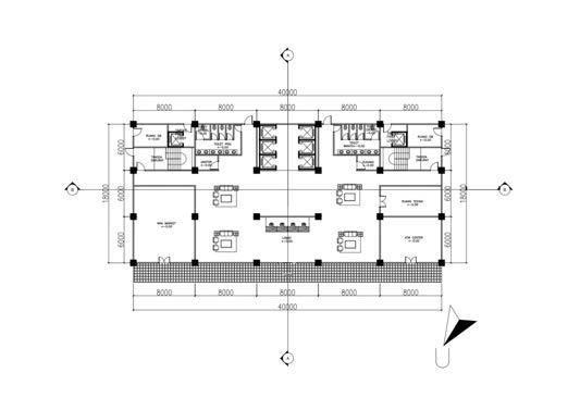
denah podium 1 denah podium 2

denah podium 3 denah lt 4-9,11-13

denah lt 10 denah rooftop

potongan a-a potongan b-b

tampak utara

detialpemasanganfacadeacp

tampak barat

proses pemasangan acp di sekrup ke plat siku. plat sikuitusendiriakandicorjugakebalokbeton detailpotongan

resort hotel and beach

cottage in uluwatu

TUJUAN

Meningkatkan kebutuhan turis mancanegara akan tempat wisata. Menyediakan fasilitas yang dapat mendukungdanmemaksimalkankeindahanalamdiBali Mampu meningkatkan potensi objek wisata di Bali, agar dapat meningkatkan penerimaan devisa bagi pemerintahdaerah

MANFAAT

Sebagai tempat wisata dan penginapan Bermanfaat bagikenyamananjasmanisertarohaniMemanfaatkan potensialamyangadadisekitaragarbisadinikmati.

SASARAN Semuakalangan

DATA TAPAK

Alamat : Jalan Pura Selonding, Kec Kuta Selatan, Kabupaten Badung, Kelurahan Desa Pecatu, Provinsi Bali. Luas : ± 23.000 m²

menciptakan sebuah resort yang bisa mengakomodasikebutuhankenyamanan

sequence

memanfaatkan potensial alam semaksimalmungkin

TRANSFORMASI SITE

bentukanawalpersegipanjang

3 massa untuk menghubungkan dengan konsep mengutamakan potensi alam melalui sequence yang menghubungkan ruang luar dandalam.

PENDEKATAN PERANCANGAN

pendekatan sirkulasi : pada sistem, dengan penekanan pada sistem sirkulasi yangberorientasipadaviewlautsebagai potensialamnya.

dari masalah perancangan munculdimanamassamengalami subtraktif untuk kebutuhan ruang

desain akhir diterapkan agar setiapmassabisamerasakandan memaksimalkankeindahanalam

lalu massa mengalami subtraktif menjadi 3 bagian untuk membedakan zoning setiap massa

MASALAH PERANCANGAN

site plan

denah massa utama
denah lt 2 massa utama
potongan a-a
potongan b-b
tampak
detail fasad bambu
detail kamar
detail ruang luar

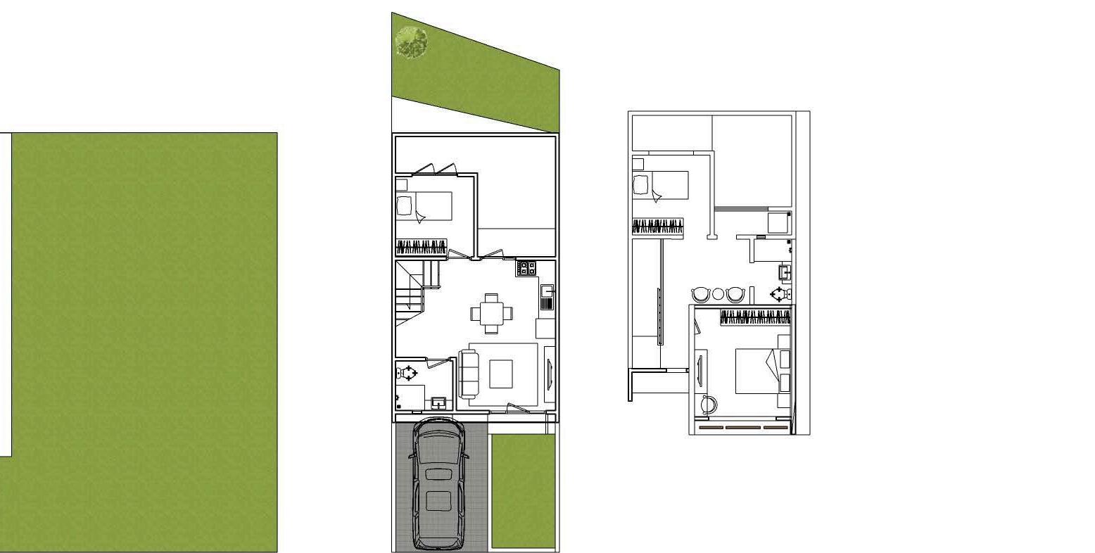
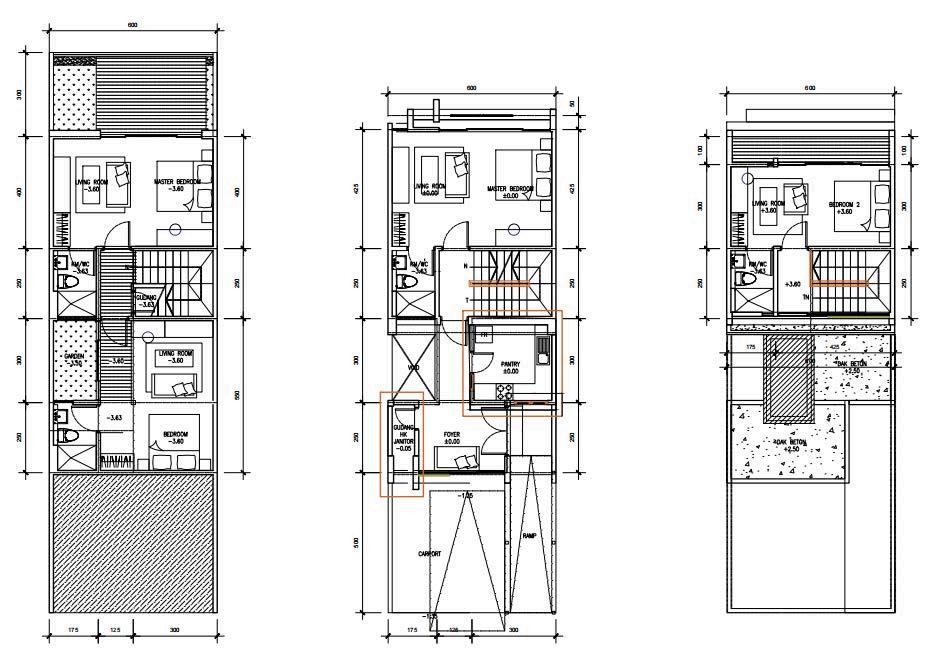
house project

E-HOUSE

location: Pakuwon indah, Villa Bukit Regency3,Surabaya

renovasi rumah dengan luas tanah 12 m x20m,mendesainbangunandengantipe modern classic, dimana terdapat ornamen2 classic pada tiap sosoran rumahataupunpilar.

terdapat4KT,4KM,1Dapur,1KTart,1R Tamu,1Rkeluarga,1Rmakan.

pada rumah tinggal ini, penggunaan material yang cukup terang pada bagian dinding agar kesan rumah tidak terlihat seram dan gelap. warna dinding menggunakan warna abu terang, sedangkan untuk warna pintu dan kusen jendela menggunakan kayu, lalu untuk ornamen2 classic berwarna putih agar kesan modern classicnya terlihat jelas padarumahtinggalini.

E - HOUSE

E-HOUSE

location:Citraland,Surabaya

dengan luas tanah 12,5 m x 16 m, mendesain bangunan dengan tipe modern minimalis. memdesain bangunan dengan membagi tiap zoning.

terdapat 3 KT, 3 KM, 1 Dapur, 1 KT art, 1 R Tamu,1Rkeluarga,1Rmakan.

padarumahtinggalini,terdapatkolampada lantai 2 di bagian depan berfungsi sebagai reflective pool, sedangkan material yang dipakai menggunakan plesteran beton dan juga meminimalisir penggunaan jendela pada tampak bangunan karena rumah tinggalinimenghadapkearahbarat.

Lalu untuk dinding yang maju menerus berfungsisebagaiareaservis.

K-HOUSE:

Design rumah 2 lantai dengan luas 12m x 17m. sang klien menginginkan rumah dengan desain minimalis dilengkapi dengan 4KT,4KM,1Dapur,1KTart,1R.makan,1R. Keluarga,1R.Tamu.

KA - HOUSE

KA-HOUSE:

Design rumah 2 lantai dengan luas tanah

20m x 15m. sang klien menginginkan rumah dengan desain modern minimalis dilengkapi dengan 4 KT, 4 KM + 1 KM art, 1 Dapur,1KTart,1R.makan,1R.Keluarga,1R. Tamu,1R.Kerja,1R.Bermain.

perpaduan fasad yang digunakan membuat tampak dari bangunaninimenjadilebihrindanguntukdilihat

denah lantai 1
denah lantai 2

NEW ARDAYA- HOUSE

Location: VILLAPUNCAKTIDAR,MALANG

SAKALA-HOUSE:

Desain rumah 2 lantai dengan luas tanah 6X16 m. mendesain rumah yang tampak nyaman dan asri membuat klien merasa nyaman dengan linkungan sekitarnya.

Desain rumah dengan desain modern minimalis dilengkapi dengan 3 KT, 2 KM, 1 Dapur, 1 R. makan, 1 R. Keluarga, 1 Outdoor Area.

salah satu keunikannya yaitu memiliki taman belakang yang bisa dipakai untuk penghuni bersantai dan menikmati udara sejak yang hanya berada di SAKALA, MALANG.

villatale

Location: VILLAPUNCAKTIDAR,MALANG

SAKALA-HOUSE:

Desainrumahdengankonsepsepertivillayaitudisewakanuntukpenghuniyanghanyainginmenginap dengan jangka waktu pendek, meskipun begitu penghuni masih akan merasakan kenyamanan dan kententramankarenaberadadiperumahanSAKALA.

Denah basement
Denahlt.1
Denahlt.2

ka - house

Location: Surabaya

KA-HOUSE:

Desain rumah dengan dimana klien menginginkan bangunan dengan konsep modern contemporary. Mengedepankan tiga prinsip yakni estetika, kegunaan dan juga elemen. selain itu juga klien menginginkanbangunanyangmencerminkanmasadepandimanabangunanyangselaluupdateakan material,estetika,sertafungsinya.

VILLA

Location: Bali-Ubud(projectplans)

VILLA:

DesainrumahmodernminimalisdengankonsepHunianVilla,dimanaperbedaanterletakpadaadanya ruang terbuka pada depan bangunan yang memunculkan ide menarik pada desain bangunan. Hunian Villayangterbukamengedepankansirkulasiudaraalamisertamengedepankan3prinsipyaituestetika, kegunaandanjugaelemen.

VILLA

Location: SAKALA-Malang(konsepdesain)

VILLA:

Desain rumah modern minimalis dengan luas 6 x 15 m. Dengan konsep Hunian Villa yang lokasinya berada di perumahan SAKALA, Malang, Jawa Timur. Dengan memanfaatkan pencahayaan dan penghawaansecaramaksimal,membuatpenghunimerasanyamantinggaldiSAKALA.

KAYLA - HOUSE

KAYLA-HOUSE:

Desain rumah uk. 6 x 14 m (2 lantai). Dimana klien menginginkan bangunan dengan konsep modern minimalis.Mengedepankantigaprinsipyakniestetika,kegunaandanjugaelemen.Selainitujugadesain denganmempermainkanatapberbentuksegitigamembuatkesanbangunanmenjadibesardantinggi.

commercial area

221

lane - commercial

Location:Dr.Ir.H.Soekarno(MERR),Surabaya.

221LANE :

Desain bangunan komersial yang memiliki luas tanah +- 5000m2, dengan total luas bangunan +1400m2.Didesaindengantemayangsamayaitumenggunakanfacadepermainankalsiplank,agarsetiap tenantmemilikikesamaandarisegiestetika.221LANEmemilikilebihdari10tenant.

neo lumina - commercial

221LANE :

Desain bangunan komersial yang memiliki luas tanah +- 12000m2, Mendesain bangunan Marugame Udon yang memiliki luas tanah 350m2 dengan luas bangunan 270m2. Konsep baru yang dihadirkan menampilkan dekorasi khas Jepang yang lebih otentik dan menghadirkan lebih banyak spot Instagramableuntuksemakinmemanjakanparapengunjung.

Turn static files into dynamic content formats.

Create a flipbook
Issuu converts static files into: digital portfolios, online yearbooks, online catalogs, digital photo albums and more. Sign up and create your flipbook.