01: Middle Ground
Brooksville, MS
Food Insecurity Research and Education Center
In Collaboration with Jo Aguilar
Spring 2024 | Studio 2B
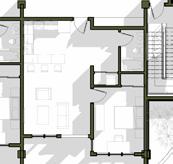
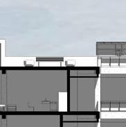
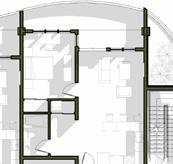
This project focused on providing a Research and Education Center for the small community of Brooksville, which is considered a food desert. Middle Ground aims to revitalize Brooksville by creating a place for the community to play, learn, and grow together. The campus consists of buildings that focus on sustainable food production, education, and community connection. They are organized on a gradient of public to private and angled on the oblique to maximize passive
daylighting and cooling, as well as solar exposure. The four concrete platforms sit just above the ground plane creating landscape pockets for bio-diverse planting, therefore reserving the open soil for cultivation. The building forms are inspired by rural vernacular architecture. Users can experience varying degrees of enclosure with the operable envelope that surrounds the buildings, allowing for air circulation and a visual connection to the surrounding landscape.
Top: Aerial Render. Middle Left: Greenhouse Porch. Middle Right: Education Center Porch. Bottom Left: Food Pantry. Bottom Right: Rooftop Porch.
CLT Panels
Dimensional Wood and Steel Compound Truss
Steel Clerestory Framing
Mass Timber Post and Beam Structure
Concrete Slab with Recylced Aggregate
Concrete Piers
The four platforms are organized based on user groups and public versus private programs. Researchers who live on the campus have private access to their apartments at the back of the site, while the public visitors access the more public buildings from the entry court. The two user groups are diametrically opposed and meet in the middle communal space as shown below.
Researcher Housing
Education + Community
Researcher Circulation
Landscape
Landscape
Research Domain
Greenhouse
Community Garden
Reception + Food Pantry
Visitor Circulation
02: Enliven
Memphis, TN
Mixed-Use Low-Income Housing Complex
Client: Individuals Struggling with Mental Health Issues Fall 2024 | Studio 3A
Extensive research was done prior to the design phase on homelessness in Memphis and its effects on a person’s mental and physical health. The site was also analyzed to see what amenities were lacking in the vicinity.
After the research was conducted, I chose to cater to individuals struggling with mental health issues because of the detrimental effects of homelessness on a human’s wellbeing. I chose to focus on individuals rather than
families so the tenants could build their own support systems within the complex’s community. The programming and services in the complex center around four main facets of health: mental, physical, social, and spiritual. All of the services located on the ground floor are available to the residents and general public, because they provide amenities that are lacking in the vicinity.
In just over two years, Memphians’ rent rose by roughly 30%.
Average rent is estimated to be around $1075 for a 909 sq. ft apartment, so this increase would raise it to $1398.
Memphis ranks 17th in the country with the highest ratio of vacant homes to people experiencing homelessness, with 48.36 vacant homes per unhoused person. If made occupiable, the unoccupied housing units in the city could cover the deficit, but there are many factors preventing this as a solution.
Displacement Typologies:
Low Income/Susceptible to Displacement
Ongoing Displacement
At Risk of Gentrification
Early/Ongoing Gentrification
Advanced Gentrification
Stable Moderate/Mixed Income
At Risk of Becoming Exclusive
Becoming Exclusive
Stable/Advanced Exclusive
Unavailable or Unreliable Data Site
Households who can’t keep up with rapid rent increases are then met with eviction orders. Memphis has been deemed the eviction capital of the U.S., with an average of 31,633 eviction filings reported within a four-year period.
+ Displacement
As seen in both maps, there is a strong correlation between the census tracts considered ‘susceptible to displacement’ or ‘ongoing displacement’ and the high concentraton of eviction filings.
There
The #1 hotspot was the Residences at Lakeview on South Mendenhall within the Oakhaven and Park Village neighborhood, with 563 filings.
Conditions such as diabetes, heart disease, and HIV/AIDS are found at high rates among the homeless population, sometimes 3 to six times higher than that of the general population.
Conceptual Statement: Every entity can be defined by the vibrational energy that flows through and envelops it. Breath also flows in and out of every being, connecting individuals to consciousness and living things to each other. When thinking about the building as its own entity, it must nourish and sustain the things living in it. The goal of this complex is to be a sanctuary of relief, recovery, and health to all who interact with and inhabit it, by breathing life and bringing energy into every space in the building.
Dwelling Statement: The energy and quality of your personal living space directly affects your physical and mental health. Energetic elements like airflow, light, spatial organization, and thermal comfort all contribute to the quality of a space. This then affects the living things and objects you interact with, directly contributing to the life and energy of the surrounding environment.
Southern Winds: Strongest
Northern Winds: Strongest on Average During Winter
Maggie H. Isabel StreetService alley
N. BB King Boulevard
Court Avenue
Bates AlleyOccupiable Alley
03: Emergence
Starkville, MS
Mississippi State University Museum
In Collaboration with Will Coleman, Madi Jones, Coulson Mars, and Taylor Sellars Spring 2025 | Studio 3B
Emergence can be defined as the process of coming into view after being exposed or being concealed. This museum is of the earth, just as its artifacts were and are, and as its inhabitants were and are. The semi-circular, sloping form of the building aims to create a natural circulation between the site and the building, encouraging users to engage with indoor and outdoor spaces. To further relate our building’s skin to the ground, our precast panels feature a layered design modeled after the Earth’s layers.
Our design features three different galleries from different departments at MSU: the Cobb Institute of Archeology, the Dunn-Seiler Geology Museum, and the MSU Department of Art. It is located within a cultural campus that seeks to connect the city of Starkville with campus along the divisive corridor of highway 12. The cultural campus includes the museum, the Grant Library, MSU Welcome Center, outdoor food truck dining, and a flexible marketplace and event space.
The project site is next door to the Mill at MSU, which is a historic building used for conferences and gatherings in Starkville. The cultural campus aims to draw people over from the university and serve as a connector between MSU and the city. We chose to embed the museum into the landscape to further connect the inhabitants and artifacts to place, which is a unifying characteristic for the museum.
The diagram on the bottom left shows how our form evolved throughout the semester. The team combined rectilinear staggered forms for the galleries and curvilinear forms to receive the main plaza and create a terraced gathering area. A courtyard was punched out during the schematic phase of the project for daylighting and passive ventilation, and to house a sculpture garden as part of the art gallery. The curvilinear half of the project was then sloped to create walkable access up to the second floor outdoor space. The Welcome Center, Grant Library, and Museum our connected by axes similar to the Drill Field, one of MSU’s most iconic greeenspaces.










































































































































Shown above is the final quarter-scale detail mock-up of our precast sandwich panel and double-tee structure. To create this mock-up, the team’s project architect drew shop drawing detailing the steps and casting process, and the BCS students executed it. Five iterations of precast panels were designed and cast prior to the final, as part of our architectural panel design process.
The model shown below demonstrates how the panel types form a pattern on the precast skin of the museum.
04: Boathouse
Starkville, Mississippi
Mississippi State University Boathouse at Joe Frank Sanderson Center In Collaboration with Rasul Bashir, Will Blackburn, Joe Cappadonna, Jay Snodgrass, Grayson Townsend, and Jesse Williams Fall 2023 | Studio 2A
This project was part of a collaborative studio between architecture and building construction science students.The client requested a boathouse that would be used for kayak and canoe storage situated on the bank of Chadwick lake near the University’s recreation center. Our team was assigned two primary materials: dimensional wood and reclaimed glass from the racquetball courts inside the Sanderson Center.
Our concept stemmed from our primary materials: a simple, yet visually-intriguing form and structure that framed Chadwick Lake. We wanted the glass skin to encourage visitors to have fun on the lake. The inverted dual-pitch truss was chosen for both aesthetics and function, because of how it compresses and releases the visitor’ view onto the lake. We also designed a front porch for the boathouse, for students to take a break outdoors and socialize.
0.5” Diameter
3.5” Bolt
0.5” Washer
0.5” Lock Nut
Standing Seam Metal Roof
2” x 4” Dimensional Wood Purlin
2” x 6” Truss Crossmember
2” x 6” Dimensional Wood Bottom Chord of Truss
0.5” Diameter x 3.5” Lag Bolts
Steel Hurricane Strap
2” x 12” Dimensional Wood Glulam Beam
Galvanized Steel T-Plate
Aluminum Track with Glass Panel and Sliding Door Components
Aluminum Track with Glass Panel
05: Sketches, Drawings, and Photography
Select travel sketches and photographs were taken and drawn during studio field trips. One photo was taken in Houston, TX.
Robie House Entrance. FLW. 1910. Chicago, IL. Drawn on-site during third-year Chicago Field trip.
The Art Institute of Chicago. Shelpley, Rutan, + Coolidge. 1893. Drawn from reference taken during third-year Chicago Field Trip.
Crystal Bridges Museum of Armerican Art. Moshe Safdie. 2011. Bentonville, AR. Drawn on-site during second-year field trip.
Nelson Atkins Museum of Art - Bloch Building. Steven Holl. 2007. Kansas City, MO. Drawn from reference taken during third-year Chicago Field Trip.
Travel Photography. Left: POST Houston, OMA. Top Right: University of Chicago Booth School of Business, Rafael Viñoly Architects. Bottom Right: University of Chicago Campus North Residential Commons, Studio Gang.
Charcoal Portrait of my childhood dog, Millie.