Portfolio 2020-2024

Page 1

PORTFOLIO Selected works 2020-2024 VOROBEV EGOR
VOROBEV EGOR 25 / 05 / 1990 +7 905 571 35 35 veb.arch@gmail.com

Education:

2008 / 2014

The State University of Land Use Planning

Faculty of Architecture

2007 / 2008

Moscow Architectural Institute

Architecture

Experience:

2024 / p.t

A101 / Deputy Head of Department

2020 / 2024

A101 / Senior Architect

2018 / 2020

A101 / BIM Senior Architect

2017 / 2018

PIK / Middle Architect

2012 / 2017

MORTON / Junior Architect

Skills:

Revit

ArchiCAD

AutoCAD

Twinmotion

3ds Max + Corona

Photoshop InDesign

Skandi 25 & 26

2023 / 2024

Master planning, Facade and plan design, Visualization

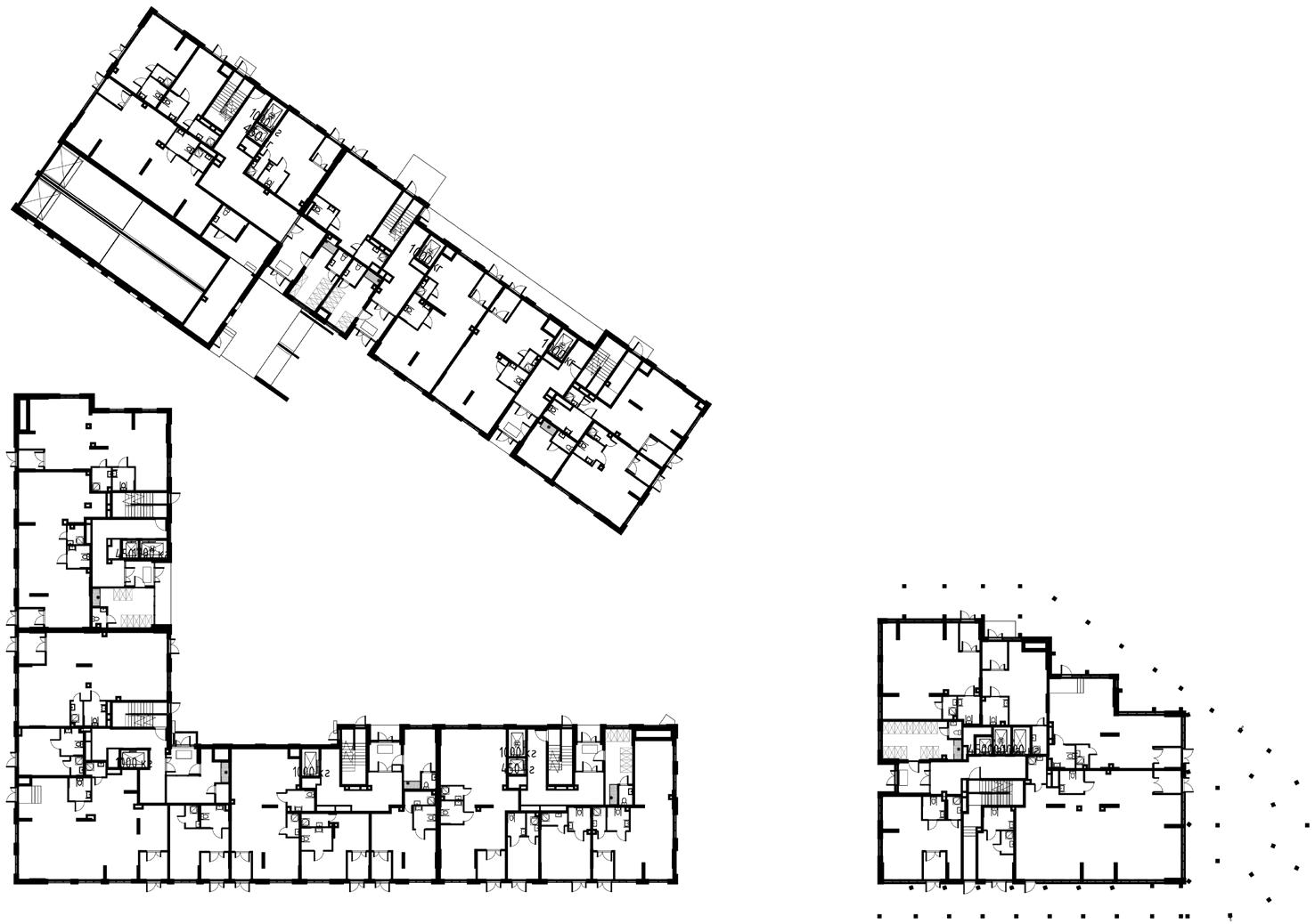
Scandi is a large area in New Moscow near the village of Kommunarka. It is divided into three large zones - North, South and Center. Scandi 25 & 26 is the final house that connects two large development sites - Scandi north and Scandi south.

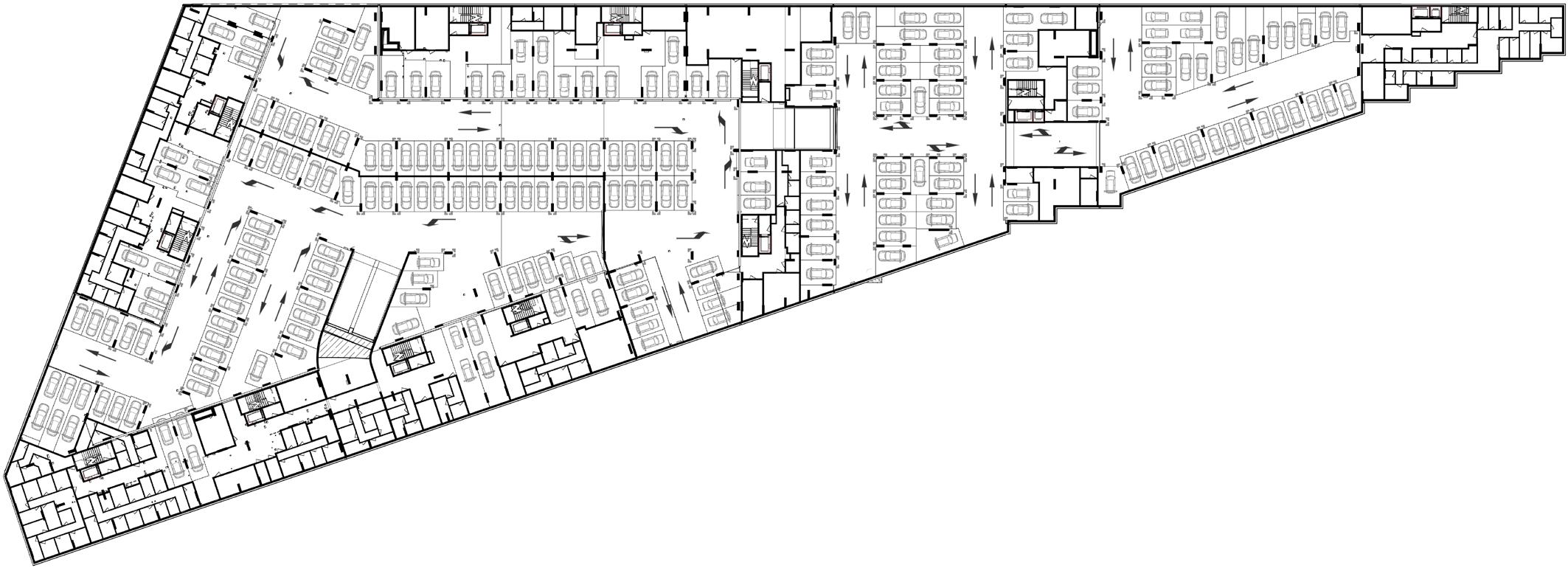
The house is shaped like a wedge to allow for the organization of two important pedestrian routes - through the park towards the metro and the pedestrian promenade towards Scandi South. It consists of 7 buildings of different number of storeys, mainly of the tower type. Buildings 4 and 5 consist of different-story sections. The buildings form 2 blocks, connected by a two-story underground parking lot with 1000 cars inside. Each of the blocks has its own amenities, sports and children’s playgrounds.

The house is designed as a business class and involves the use of more expensive finishing materials. The materials used are varied - plaster facade, fiber-reinforced concrete slabs with imitation brick, fiber cement panels, porcelain tiles, windows and stained-glass windows of increased height.

plan
master
square view pedestrian street view
underground floor ground
ground floor living floor
square
square view
building 26. concrete panel building 26. travertine travertine panel building 26. marble panel
road
view
building 26. brick color variant view from building 25

Zen Quarters 4

2023

Master planning, Facade and plan design, Visualization

The Zen Quarters district is being built in the south-west of the capital - along the coastline of Ivanovsky Pond and the Varvarka River. The master plan for the area is formed in the shape of a “wedge” to form correct pedestrian connections and routes. A central city square has been formed on the lake embankment. The master plan involves the design and construction of 9 houses on the site, almost every house consisting of more than one block.

House 4 was conceived as a business class house and is the “crown” of the entire area, like a lighthouse, ending the main pedestrian route with a contrasting tower overlooking the square.

The building consists of three different-story buildings. Two sectional buildings and one 23-story tower. The building provides underground two-story parking for 334 cars. On the ground floor there are offices and restaurants. Apartments start from the second floor.

A hinged ventilated faсade with finishing fiber cement panels and porcelain tiles was used as faсade solutions. Each apartment has floor-to-ceiling windows. The upper part of the sections is made with an imitation gold surface. The tower is a broken dark stone with blue crystals in the core.

master plan

living floor

ground floor

-2 underground floor -1 underground floor main tower view square view
street view
pedestrian

Native Quarters 3 2022

Master planning, Facade and plan design, Visualization

Native Quarters is a new district in New Moscow in close proximity to Vnukovo airport. In this regard, the area was designed primarily as an economy and comfort class.

The master plan was formed with obvious points of attraction - the embankment on the left and the educational complex in the center of the development, connected by a wide pedestrian promenade diverging near building 3 and forming a city square.

The building has underground parking for 251 cars. On the ground floor there are offices and restaurants. Apartments begin from the second floor.

House 3 is the main domain of the area, so it was decided to increase the budget in terms of façade solutions and it became possible to make a window height from the floor and use less plaster and more ventilated facade.

plan
master
road plan

living

ground

underground

floor
floor
floor
«saw»
block view

Skandi SKOL

Facade and Visualization

Scandi SKOL is a small shopping center on the main central square of Scandi. Planning solutions were developed by a third-party contractor, the facades were designed by my group.

The facades are made of large hanging perforated sheets on top of the main facade and stained glass windows. The “background” is made using plaster painted white. This creates the illusion of a thin and light “veil”. This is especially clearly visible in the evening, when the light turns on inside and it begins to appear through the perforations on the panels.

2020
main road
road view

+7

YOU
THANK
905 571 35 35 veb.arch@gmail.com

Turn static files into dynamic content formats.

Create a flipbook
Issuu converts static files into: digital portfolios, online yearbooks, online catalogs, digital photo albums and more. Sign up and create your flipbook.
Portfolio 2020-2024 by Egor Vorobev - Issuu