Portofolio

Page 1

Portofolio2023 EGIGILANGGUNTORO ArchitecturalDesign Depok JawaBarat Indonesia +6285782871410 gilangguntoro11@gmail.com

BIODATA COVER

A. ARCHITECTURE

I. INTERIOR

O. OTHERPROJECT

TABLEOFCONTENT
01.RAANAKSHALIH 01 02.PINANGMADANI 03 03.KEMAJORAN 06 04.MARKETCENTER 07 05.WORKOUTFACILITIES 09 06.W2V 11 07.SIRKUITMOTORCROSS 13 08.STUDIOBELAKANGWBU 15 09.KANTORPTPAI 17 10. GUHA 19 11.OBLOHOUSE 21 12.DIRECTIONKIT 23 13.RUMAHGENSETBUTC 25 14.HALTEPONDOKCINA 27 15.STASIUNLENTENGAGUNG 29 16.LAYOUTRENOVASI 31
01.KITCHEN’SAPART 33 02.RETAILUMKM 34 03.LOCKERBUTC 35 04.RAILINGTRIBUNBUTC 36 05.BROADCASTROOM 37 06.RECEPTIONIStBUTC 38
i

Beinga"GOOD"person makeslife"GREAT"

Mylife'sphilosophyandmottoarethelasttwosentences.Asa person,Iplaceahighvalueonvaluesandattitudesinmy relationshipswithothersinmyfamily,atwork,andinsociety.so thatImightpositivelyinfluencethelivesandthosearoundme.

My"6"Principlesin" Attitude"

Responsibility

Independent polite tolerant patient obedienttogoodness.

My"9"Principlesin "Skill"

Creative

Innovative Integrity

Honest

Nevergiveup

Critical

Disciplined

Courageous Fair

ii

EGIGILANGGUNTORO,S.ARS.

ArchitectureMajor,UniversityofIndonesia

Depok,WestJava|P(Whatsapp):+6285782871410|gilangguntoro11@gmail.com| https://www.linkedin.com/in/egi-gilang-guntoro-096a05232|(IG):@gegeguntoro|Twitter:@9egeguntoro |Tiktok:@gegeguntoro| www.pinterest.com/ggeg01|https://www.youtube.com/@ggeg2022|

FreshGraduateArchitectureMajorfromtheFacultyofEngineering,UniversityofIndonesia.Haveenthusiasmandhighmotivation inbothdesign,art,architectureandstructure.haveskillsindesign,art,andtechnique(creative,innovative,andcommunicative), which of course are equipped with 3D Modeling (Sketchup, Rhino, Autocad, Revit), Adobe soft skills (Photoshop, Illustrator, in design), and several other design software. Design experience when organized as design and experience working part-time or internship inthesamefield.

WORKEXPERIENCE

ProjectDivisionStaff-PT.BALIUNITED-Internship

January2023-July2023

● Createconceptualdesignsanddevelop3Dinteriormodelingfortheproject,whichwillprovideavisual representationoftheinteriorspaceandhelpinvisualizingthefinaloutcome.

● Creatingdesignsforsportsbuildingorinfrastructureprojectsinaccordancewiththespecified guidelinesandrequirements.

● Reviewingandsupervisingdetailedworkingdrawings,ensuringtheiraccuracyandmakingnecessary improvements.

● Performingfieldsupervisionontheprojecttoensurethattheworkiscarriedoutaccordingto establishedproceduresandschedule.Providingweeklyreportstothesupervisordetailingthefindings ofthefieldsupervision.

● willingtovolunteerforanyeventsandsupporttheorganizedactivities.

JuniorArsitek -ARSITEKMADANI-Internship

January2023-March2023

● Creatingcreativeandinnovativedesignconceptsand3Darchitecturebasedondiscussionswith clientstounderstandtheirneedsandpreferences.

● Developingtheconceptintoadesignthattakesintoaccountthestructureanddurability.

● Creatingprojectpresentationswithdetaileddesignconcepts,structuralandarchitecturaldrawings,3D modeling,andrenderedviews.

● DeterminingthematerialstobeusedinthedesignandcompilingthemintoaBillofQuantities(BoQ) andCostEstimate(RAB).

EditordanContentCreator-URBANCIANJUR-Internship

December2022- March2023

● Responsibleforcreatingandpublishingcontentforwebsites,includingschedulingthepublicationof eachcontentonthewebsite.

● Responsibleforreviewingandcorrectingthegrammarandspellingusedinthecontent.

● Editingcontentonwebsitesandmaintainingaconsistentcontentwritingstyle.

● OptimizingcontentwithSEOonwebsites.

● Managingwebcontent,coordinatingwriters,andprovidingrevieworfeedbacktowriters.

iii

Design&OperationalStaff-CAHAYAINTERIOR-PartTime November2020-January2021

● Createandcompileasalescatalogontheonlineshopanduploadit.

● Receiveordersbothofflineandonline(viasocialmedia/email/phone)andcommunicatewithclients offline.

● Recordreceiptanddeliveryofgoodsandtidyupimportantpapers.

● Performinstallationoperations(monitoringfieldperformanceandtimeliness).Receiveordersboth offlineandonline(viasocialmedia/email/phone)andcommunicatewithofflineclients.

● Recordreceiptanddeliveryofgoodsandtidyupimportantpapers.easeofinstallationoperation (Supervisionoffieldperformanceandtimeliness)

Administration&DesignStaff-DECORINDO-PartTime June2020-September2020

● Createandcompileasalescatalogontheonlineshopanduploadit.Makesalespublicationsonsocial media(posterdesigns,products,brochures,etc.).

● Createandcompilesalescatalogsinonlinestoresanduploadthem.

● Responsibleformakingimportantdocuments(invoices,licenses,offerletters,etc.).

● Receiveordersandcommunicatewithclients.

EDUCATION

UniversitasIndonesia-ARCHITECTURE

CLASSANDASSIGNMENTS:

2019-2023

Basic Design Class, Architectural Design and Methods Class, Building Technologies Class, Design Digital Media Class, Ergonomi, Space Anatomy, Interior Space Design Class, Urbanism, Urban planning, and powerClass:Learnaboutcities,theirrulesandstructures.ProjectfeasibilitystudyandRealestateClass

ORGANIZATIONS:

DepartmentIMAFTUI-RoarsMediaandPublicationDivision2019to2020,FacultyInchargeof2020Ekskursi

UIEquipmentdivisionandCooperativeEngineeringStaff,University-2019to2020,PameranArsitektur2019, UI Art War 2019-2020, Konser Paragita 2019, Konser Gamelan Sekar Widya Makara UI 2019, Sekolah Mentor 2020,Kantek(KajianTeknik)2020,TrackArs2019,TeknikCup2019,FF2019,TeknikOpenHouse2020,ARJUNA

SENI2019

SMANEGERI49JAKARTA-IPA 2016-2019

ORGANIZATIONS:

OSIS-2017s/d2018,FortissimoChoir2016-2019,Paskibra2016-2018,Reportase2017-2019,KIR2016-2019, GambangKromong2016-2019,LLC2016-2019,Rohis2017-2019,KetupelPerkemahanJumatSabtu

AWARD:

OSN Astronomi 3rd Place for 2 Years , TUB Paskibra, Dance Paskibra, Choir Competition (NFF, Kemdikbud, Anri)

SKILLS

TechnicalSkills: MicrosoftOffice(Word,Exel,PowerPoint),Google(Drive,Document,Sheet,Slide),Adobe(Photoshop, Illustrator,Indesign,AfterEffect),3D(Sketchup,Rhinoceros,AutoCad,Revit),Structure(Sap2000,ETABS), Editing(Canva,Figma,),WebsiteMaker(Nicepage,Situs),Video(Filmora,Tiktok).

Languages: FluentinIndonesia,English:Medium,Japan: Beginner,everlearn.

Training: SketchupTraining,AdobeTraininginClass,RhinocerosTraining,AutocadTraining,RevitTraininginClass, WebinarArchitecture,WebinarDesign,WebinarDesignCafe

iv
1
A.01
RAANAKSHALIH ProjectReal-Depok-InternshipProgram

Theschoolfacilitiesforchildrenaredevelopedwithaplayfulandcolorfulconceptto create an enjoyable and engaging learning environment. The classrooms are adornedwithbrightcolors,comfortablefurniture,andcheerfulvisualdisplays.There is a creative play area with games and spaces for artistic activities. A scientific exploration room provides a simple laboratory and experimentation area. An educational garden with colorful plants and gardening activities is available. There isalsoamusicandtheaterroomtofosterchildren'screativity.Amultifunctionalhall with bright colors and flexible furniture is included. The concept aims to accommodate teaching, playing, and exploration activities in a fun and enjoyable manner.

2
3
A.02
PINANGMADANI ProjectReal-Tangerang-InternshipProgram

Renovatingafamilyhomewithanindustrialconceptinvolvesincorporating raw elements like exposed brick walls, concrete floors, and metal accents. Open floor plans, reclaimed materials, and industrial-inspired lighting fixtures create a unique and contemporary living space. The combination of neutral and bold colors, functional furniture, and touches of greenery bring character and comfort to the design. The renovated industrial home conceptcaterstotheneedsofamodernfamilywhileembracingtheedgy elementsofindustrialdesign.

4
5 A.03

Revitalizing Kemayoran Airport involves preserving its unique architectural features and activating the building for various functions, such as a museum or cultural center. The goal is to maintain its cultural heritage while re-establishing its significance in thecommunity.

6
7
Jagakarsa-FasilitasUmum A.04
MarketCenter ProjectAssignment-

Increasing and restoring business opportunities and the declining economiclevelofUMKMandincreasingpeople'spurchasingpowerof UMKM by making economic transaction facilities that are convenient fortransactions,safeforhealthandeasytoreach.

8

WORKOUTFACILLITIES

ProjectAssignment-Sudirman-UrbanSport

9
05
A.

Lack of accessibility for working out. Then, Mimicking and combining indoor outdoor of public working out facilities to adapt in a new lifestyle of working out with accessibility and connectivity to all conditionsandtimesforahealthierlifestyleintheeveryday.

10

ProjectAssignment-Cilacap-Hotel

11
W2V
A.06

Building performance which is intended as a place of relaxation and calm (recreation) utilizes a passive system in the form of a building form that utilizes wind as passive cooling and ventilation. Living balconies as filtered and direct sunlight as a heating system to achievearelaxingandcalmingroom.

12
13
A.07
SirkuitMotorCross ProjectReal-Sukabumi-Kawasan

Creating a rural motocross circuit in Bandung involves adheringtoregulationsandconsideringthelocalcontext.This includesprioritizingenvironmentalprotection,ridersafety,and collaborating with the local community and authorities for a harmonious integration with the cultural and environmental surroundings.

14

StudioBelakangWBU

ProjectReal-Kedoya-Gudang

15
A.08

Renovating a storage warehouse into a two-story building with cost-effective materials involves considerations for efficiency and practicality. Opting for affordable materials such as lightweight steel or precastconcretecanmaintainstructuralstrengthwithoutcompromising quality. Efficient energy usage can be achieved by selecting materials withgoodinsulationproperties,reducingtheneedforexcessivecoolingor heating.Maximizingstoragespacethroughefficientshelvingsystemsand ensuring safety and accessibility with appropriate doors and stairs are also important factors to consider. By renovating the storage warehouse thoughtfully with cost-effective materials, it is possible to create a more efficientandfunctionalstoragespacewithoutstrainingthebudget.

16
17 KantorPTPAI ProjectReal-DuriKepa-Kantor A.09

Creating a well-designed, four-story small-scale office building that maximizes space and accommodates users effectively requires careful planning. Optimize the floor layout toprovidefunctionalworkspaces,meetingrooms,andsupport areaslikereceptionandpantry.Incorporatemodularfurniture, space-saving storage, and consider lighting, ventilation, and acoustics. Flexibility and compliance with building codes are essentialforaproductiveanduser-friendlyofficeenvironment.

18

Guha

ProjectAssignment-Cilacap-GudangPabrik

19
A.10

In the form of a factory or terminal building to facilitate mobility and storage of crops for villagers by connecting (continuity) access to motorbikesandcarsatthelocation,creatingashelterforrestingthat is able to accommodate the existing locality of the pattern in the community.

20

ObloHouse

ProjectAssignment-Jagakarsa-Home

21
A.
11

Designing houses for client, for example, JHP by increasing the visibility and intensity of occupants' meetings with the concept of an openplanboundarycompositiontosupportprofessionsandhobbies and the special needs of each occupant in order to create a warm family.

22

DirectionKit

23
12
A.

Creatingatemporarydirectionkitasastoragesolutionfortoolsthatcan be dismantled later is a practical approach. Utilize lightweight materials like wood or PVC/aluminum panels. Customize the kit with adjustable shelves, drawers, and compartments. Ensure sturdy and easy-to-assemblejoints.Considersecuritybyincorporatinglocksorkeys. Thisdirectionkitallowsforflexibleandeasilyreconfigurablestorage.

24

RumahGenset

ProjectReal-Bali-Gudang

25
13
A.

Creating an economical and secure genset housing for mobility and storage involves important considerations. Use cost-effective, durable materials like galvanized steel or lightweight composites. Design the housing efficiently to accommodate the genset, including necessary cooling and ventilation systems. Prioritize security with locks and alarm systems. Ensure easy and safe access for maintenance. By designing an economical and secure genset housing, efficient mobility and storage withattentiontosafetyandconveniencecanbeachieved.

26

HalteStasiunPondokCina

ProjectAssignment-Depok-Infrastructure

27
A.14

Redesigning a bus stop that looks less aesthetically pleasing both in terms of aesthetics but the function and safety of the bus stop also seemtobelesssupportiveofmobility,soitisproperlyredesignedso thatitisinclusive,comfortableandeasytoreach.

28

StasiunLengtengAgung

ProjectAssignment-Cilacap-Hotel

29
A.15

The existing problems are regarding elements that are contrasting, less universal and some functions that do not meet the artistic composition so that the purpose of this redesign is to align existing design elements so that they are harmonious, maximizing function, inclusivenessandcomfort.

30

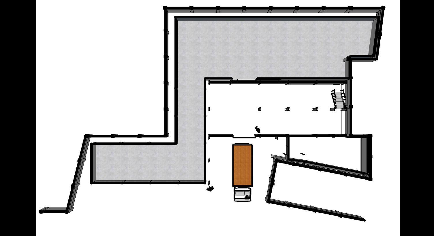
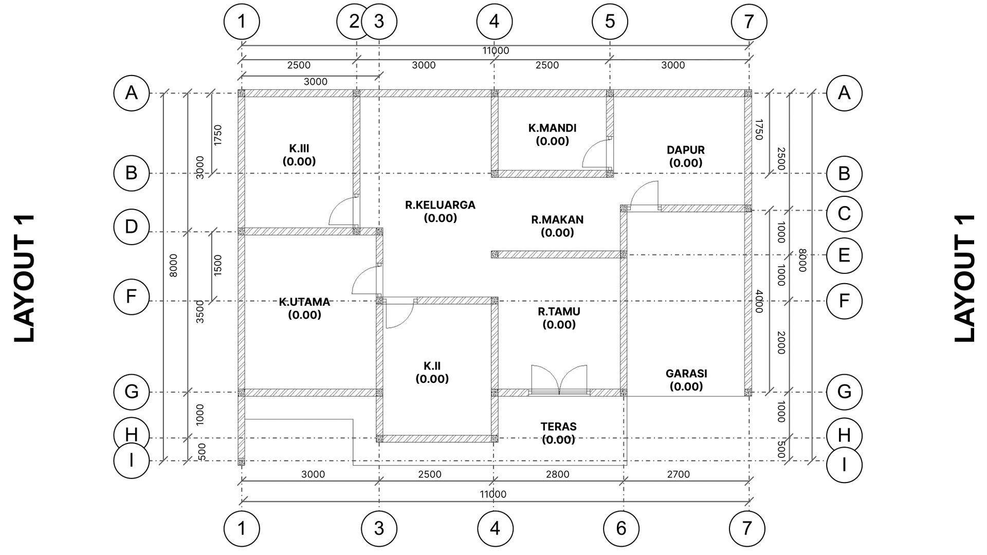
LayoutRenovasi

ProjectReal-Cilacap-Home

31
A.
16

NEXT

2023

butstillergonomic,spaciousandcomfortable.

33

RetailUMKM

ProjectAssignment-Jakarta

Creating

34
a small and medium-sized retail and being able to accommodate it properly intermsofergonomics,flowandeconomy.

I. 03

LockerBUTC

ProjectReal-Bali-Tribun Bola

Secure, comfortable, and robust lockers are made with high-quality materials, reliable locking systems, spacious interiors, good ventilation, and strongconstructionforlong-lastingreliability.

35
36 Railing ProjectReal-Bali-Tribun Bola I. 04
37
LogoReceptionist ProjectReal-Bali-Tribun
Bola 05
I.

NEXT

2023
39
40
2023

Turn static files into dynamic content formats.

Create a flipbook
Issuu converts static files into: digital portfolios, online yearbooks, online catalogs, digital photo albums and more. Sign up and create your flipbook.
Portofolio by Egi Gilang Guntoro - Issuu