

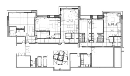
BRISTOL HARBOURSIDE 2021-2022 O+MSHEDS
CO-WORKINGSPACE
RESIDENTIAL CORFU 2024 VILLAPETROTI
COMMERCIAL OFFICE LONDON 2023 NORDCLOUD
ALSTON&BIRD
COMMERCIAL OFFICE
LONDON 2023


DrawingofWelshBack,Bristol.c.1822.

ProposedBuildingfromWelshBack,Bristol

BRISTOLHARBOURSIDE 2021-2022 O+MSHEDS
CO-WORKINGSPACE
TheO+MShedshavebeensittingonthefloating harbourin Bristolsincethe1800s,inrecentyearsthebuildings havebeen leftabandoned.Asaresultnaturehascreptintothe cracks andhasbeguntomake ahomeintherundown building.
Thedesignisacommunityfocusedopenworkspace,thatplays onthehistoricalpresenceofthesitethatwasoncetheheartof athrivingworkingcommunity.Re-purposingandregeneratingthe buildingintoahubthatpromotesconnectionandcollaboration afterthepandemicwhilstalsolettingpeopleconnectwithhistory andnatureinoneplace.
Using biophilic principles toblendnatureandurbanenvironments togethercreates a healthy, welcomingandcomfortablespacethat people wouldchoosetospendtimein-anescapefrom cramped home environments and stilted grey offices of thepast.


LETTINGNATUREINTOOURENVIRONMENTISBENEFICIALTOHEALTHANDWELL-BEING
Researchhasdeterminedtheintroductionof livingvegetation,lightandairto urbanspacesisbeneficialforhealth and well-being,canimproveconcentration,creativity, performance andsocialinteraction. Thereisavarietyof plantingthroughout thedesignto createanoasisofgreen inanurbancityenvironment. Thetreesandplantshave beenresearchedandchosenfor theirinterest; colour,textures,smellandtheywillchangethroughouttheyeardependingonthespecies.Allvegetationchosen isabletogrowintheBristolclimateandhasbeengivenenough spacetothrive. Theplantlistisnotdefinitive.Thedesignis aliveandwillcontinuetoevolve,itwillneedcareandattention;allowingthecommunitytheopportunitytotakeownershipwill createa closerbondwiththespaceandeachother.



Naturewillfindawaytoreclaimurbanspace

Naturetakingbackvagabondstructures

PLANTINGKEY:
MIXEDTREES
JapaneseAcer|SliverBirch|Cherry|Willow
CITRUSTREES
WILDFLOWERS&MEADOWGRASS
AncientBritishMeadowmix.
MIXEDPLANTING
Ferns|Palm|Herbs|Lavender
CLIMBINGPLANTS&GRASSES
Ivy|Honeysuckle|MixedFescues
HANGINGINDOORPLANTS
Spider|Ivy|Stringofbeads|Ferns BOXTOPS-LIVINGROOF Seedum|WildFlowers|Grasses








Eachboxdividingtheprotectedandunprotectedspacesiscladwithwoodormetal.Split byaglasswall,theunprotectedmaterialswillageatfasterratethantheirprotected counterparts.Eachsurfacewilldevelopaninterestingpatinaandallowtheoccupantstosee theageingofmaterialsthroughtheseasons.
ThediagramtotheleftshowsthePROTECTED[inside]andUNPROTECTED[outside]areas inthedesign. Theyaresplitbyglazedinternalwallsandtheboxeswhichspanbothareas.










Workingwiththeuniquequalitiesofthebuildingandopeningupsectionsoftheinterior spaceallowsoccupantsaccesstonaturallight,viewsandairflowthroughoutthebuilding. Thisisachievedinthreeparts:
Bycreating2outdoorareas,theGardenandCourtyard,andallowinginteraction betweeninsideandoutsideviawindowsintheboxesthatcanbeopened.
Bynotdividingtheinteriorspacewithhardboundariesbutinsteadusingthelineof site,elevationandfurnituretodesignatedifferentzones.
Bycreatingspacesinthebuilding withmetalmeshthatcreatesafreeholdbetween spaceswhilstallowingairflowandlighttopassthrough.
TheFloating AuditoriumwasinfluencedbytheformofMajestyPalm(RaveneaRivularis) whichcancreatelargestrongplanesofcoverwithoutblockinglightandair.Thestepsofthe auditoriummimicthebladeoftheMajestyPalm,offsetandoverlappingcreatingalarge solidsurfacefromaboveandaseriesofthinfinswhenseenfromtheground.



















ASUCCESSFULENVIRONMENTISBUILTAROUNDFLEXIBILITY
InspiredbytheshippingcratesthatwouldhavefilledtheO+MShedsintheirheyday, boxesfillthespacecreatingadivisionbetweentheprotectedandunprotectedareas. However,theabilitytoopenthewindowsalongtheunprotectedsidescreatesan interactionwiththetwoareasandallowslightandairflow.
Thevarioussizedboxescreatespaciousandintimateareasforusersandarepurposed fordifferentuses:housingworkenvironments,meetingspaces,toilets,staircasesandan elevator.
Eachboxhasabacklitdrapedclothtodiffusethelightanddampensoundinthespace.







AtF3Architects,aspartoftheresidentialteam,Iworkedona projecttodesigntheinteriorofavillawhichwasmid-waythrough constructionontheIslandofCorfu.
Theclientwantedtheinteriorstotakeinspirationfromthe surroundingareaandformaterialstobesourcedlocally.
Thevillawouldbecomeahighendholidayresidence,witha mediterraneaninfluence,whilststillfeelingliketheirhome.
Wewantedtogiveeachroomit’sownidentitywhilstalsobeing cohesivetotheoverallschemeofthevilla.Weachievedthisby playingwiththetexturesandcoloursinthefinishesandchoosing individualhighendfurnitureforeachroomwhichfolloweda mediterraneanlookandfeel.








































































































