Undergraduate Architectural Portfolio

Page 1

P O R T F O L I O

E D M A R V L A R G A D O J R B S - A R C H I T E C T U R E U N D E R G R A D U A T E A R C H I T E C T U R A L

c o n t e n t s

A P R O P O S E D L O W - C O S T R E S I D E N T I A L H O U S I N G C O M M U N I T Y A P R O P O S E D U N I V E R S I T Y A P R O P O S E D E C O - I N D U S T R I A L P A R K 01 16 23

the concept

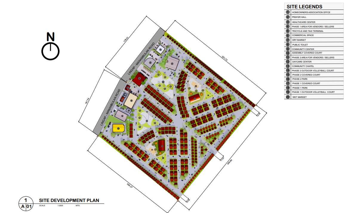
The low-cost housing community is a proposed public housing development that would accommodate informal dwellers living in Barangay Santo Niño particularly in purok 23, Tugbok District Davao City. The proposed lowcost housing community shall contain duplex attached housing units, commercial spaces, facilities and establishments which is necessary for the low-cost housing development.

The goal of the housing development is to design a low-cost housing community not just intend ed for the 163 informal settlers living in Barangay Santo Niño, Purok 23 Tugbok District Davao City but also to other informal settlers living in Davao City, more over, not just to provide a mere low-cost housing for informal settlers, but to pro vide a community that strives for social sustainability, economic sustainability, group action sustainability and people’s empowerment which would improve the living conditions of the residents. Lastly, the proposed low-cost housing develop ment is designed to hit sustainable development goals such as, “no poverty”, “good health”, and “sustainable cities and communities”.

concept P A G L A U M H E I G H T S A P R O P O S E D L O W - C O S T R E S I D E N T I A L H O U S I N G C O M M U N I T Y
02 concept P A G L A U M H E I G H T S
03 P A G L A U M H E I G H T S concept
04 P A G L A U M H E I G H T S
site development plan
05 block and street zoning P A G L A U M H E I G H T S
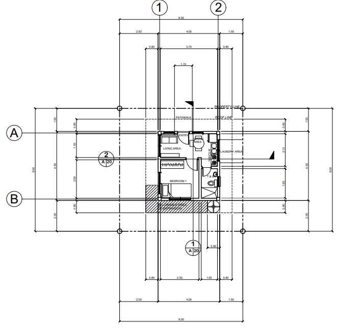
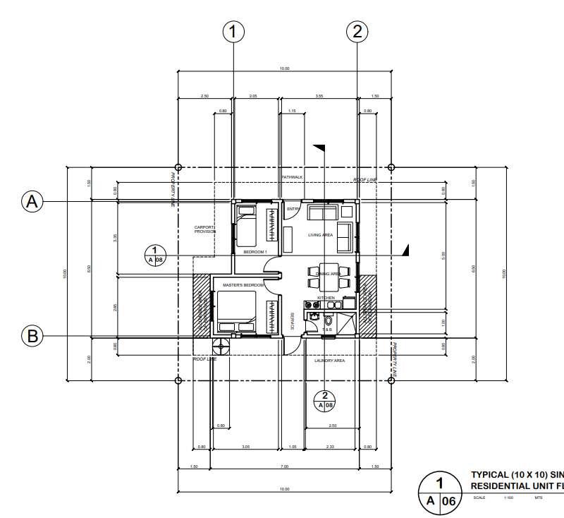
06 floorplan P A G L A U M H E I G H T S ( 1 0 X 1 0 ) S I N G L E D E T A C H E D R E S I D E N T I A L U N I T

front left rear right

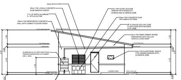
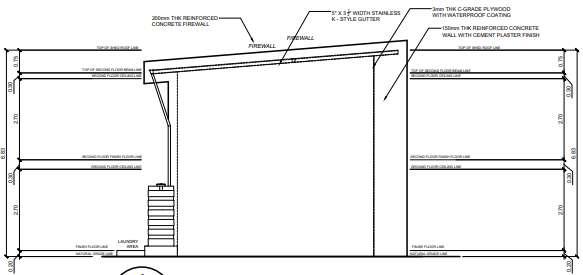
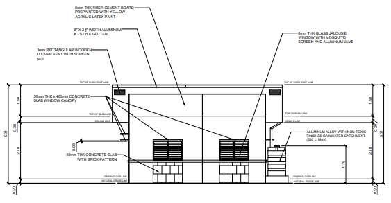
07 elevations P A G L A U M H E I G H T S
( 1 0 X 1 0 ) S I N G L E D E T A C H E D R E S I D E N T I A L U N I T
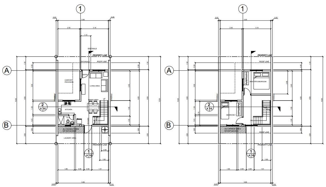
08 floorplan P A G L A U M H E I G H T S D U P L E X S I N G L E A T T A C H E D R E S I D E N T I A L U N I T

front left rear right

09 elevations P A G L A U M H E I G H T S
D U P L E X S I N G L E A T T A C H E D R E S I D E N T I A L U N I T
10 P A G L A U M H E I G H T S floorplan R O W H O U S E R E S I D E N T I A L U N I T

front left rear right

11 elevations P A G L A U M H E I G H T S
R O W H O U S E R E S I D E N T I A L U N I T
12 P A G L A U M H E I G H T S floorplan ( 8 X 8 ) S I N G L E D E T A C H E D R E S I D E N T I A L U N I T

front left

rear right

13 elevations P A G L A U M H E I G H T S
( 8 X 8 ) S I N G L E D E T A C H E D R E S I D E N T I A L U N I T
14 perspectives P A G L A U M H E I G H T S
15 perspectives P A G L A U M H E I G H T S
VENDOR'S AREA VOLLEYABALL COURT SUBDIVISION ENTRANCE DAYCARE CENTER HEALTHCARE CENTER AERIAL PERSPECTIVE OUTDOOR GAZEBO COMMUNITY CHAPEL PARK COMMUNITY CENTER BASKETBALL COURT
SITE PERSPECTIVE

the concept

College students are more likely to suffer from school design environment it possibly affects their focus on school works, particularly in academic performance. With green design it can help students improve their academic studies and it promotes and provides clean and green environment. Green design does not only benefit users but also its surroundings.

16 concept U N I V E R S I T Y
A P R O P O S E D U N I V E R S I T Y
17 concept U N I V E R S I T Y
18 U N I V E R S I T Y
development plan
site
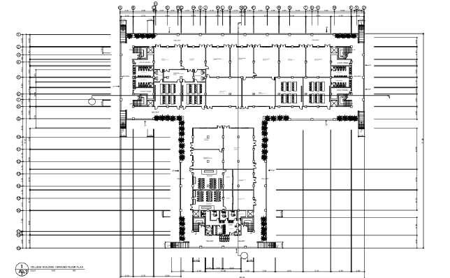
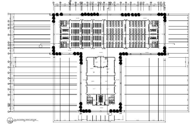
19 floorplan ground floorplan second floorplan third floorplan U N I V E R S I T Y
20 floorplan U N I V E R S I T Y fourth floorplan fifth - eighth floorplan

front left rear right

U N I V E R S I T Y
22 perpsectives U N I V E R S I T Y classroom
college
interior
building exterior

the concept concept

The proposed modern design of the industrial park perfectly contrasts the hustle and bustle with its use of open green spaces and design elements inducing a tranquil atmosphere. Moreover, the green way and open spaces aims to provide serenity and calmness from the restless noise pollution. With good design, the architects engage with a selection of features that allow them to reach their end goal. An excellent design is not only what the user sees, but also what the user feels. To encapsulate, humility is the word to describe the character of the building.

23
E C O - I N D U S T R I A L P A R K A P R O P O S E D E C O - I N D U S T R I A L P A R K
24 site development plan E C O - I N D U S T R I A L P A R K
25 floorplan E C O - I N D U S T R I A L P A R K
26 elevations E C O - I N D U S T R I A L P A R K f r o n t l e f t r e a r r i g h t

WAREHOUSE EXTERIOR

WAREHOUSE INTERIOR

WAREHOUSE INTERIOR WAREHOUSE INTERIOR

27 perspectives E C O - I N D U S T R I A L P A R K

ADMIN EXTERIOR STAFF OFFICE

MAIN LOBBY DRIVER'S DORMITORY

28 perspectives E C O - I N D U S T R I A L P A R K

P O R T F O L I O

E D M A R V L A R G A D O J R B S - A R C H I T E C T U R E U N D E R G R A D U A T E A R C H I T E C T U R A L

Turn static files into dynamic content formats.

Create a flipbook
Issuu converts static files into: digital portfolios, online yearbooks, online catalogs, digital photo albums and more. Sign up and create your flipbook.