Portfolio Emily Dixon

Page 1


College of DuPage Interior Design Portfolio

Summer 2025

Glow is a luxury cosmetics store located in Oak Brook, Illinois, offering a curated selection of high-end beauty products. Renowned for its exceptional customer service that consistently exceeds expectations, Glow delivers an elevated shopping experience tailored to the needs of every client.

The store’s design reflects a thoughtful balance of elegance and functionality, emphasizing wayfinding, sustainability, and ADA accessibility From intuitive layout choices to eco-conscious materials and inclusive design features, every aspect of the space was crafted to create a welcoming, luxurious, and responsible retail environment.

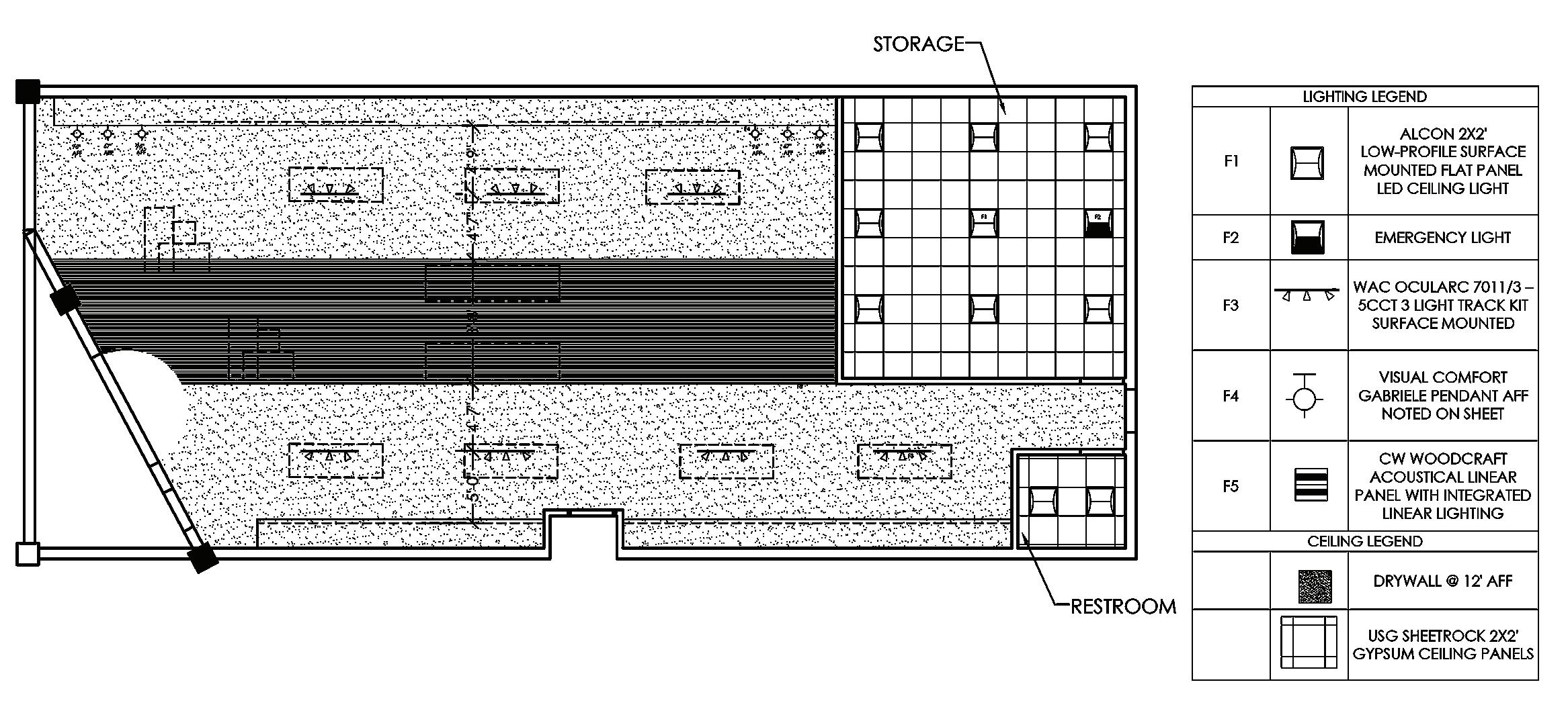
• Wayfinding within the store is thoughtfully achieved through the use of ceiling and floor materials that subtly guide customers toward the cash wrap at the back of the store. Clear, elegant signage placed above product displays further enhances navigation, ensuring a seamless and intuitive shopping experience.

• Sustainability was prioritized through the use of environmentally safe, certified materials that align with green building standards and support eco-conscious design practices.

• ADA accessibility was achieved through careful attention to minimum clearance requirements, an accessible restroom, and a cash wrap counter designed at appropriate height to accommodate all customers.

• Three or more merchandise areas are visible from the front of the store.

• Deliberate sightlines were determined to draw customers from one theme area to another. Past as much merchandise as possible.

• Lit logo and ceiling fixture leads customers to the back of the store.

Bubble Plan
Blocking Plan

Fixtures and Materials

WALL COVERING

MAYA ROMANOFF

PINK PEARL

FLOORING

TILEBAR MOXY XL

COFFEE BEIGE

GLOW FIXTURE LEGEND

SCALE: 1/8”=1’-0”

WALL PAINT BENJAMIN MOORE BRIDE TO BE

FLOORING EF CONTRACT

STAINED CONCRETE

GLOW FLOOR LEGEND

SCALE: 1/8”=1’-0”

GLOW REFLECTED CEILING PLAN

SCALE: 1/8”=1’-0”

PLANKED RAW OAK LAMINATE

GLOW FRONT CASHWRAP ELEVATION

SCALE: 1/2”=1’-0”

CASHWRAP ELEVATION

SCALE: 1/2”=1’-0”

CASHWRAP SECTION CUT

SCALE: 1/2”=1’-0”

FORMICA
CARRARA BIANCO LAMINATE
FORMICA
F5

BROWNSTONE

DESIGN CHALLENGE

• Preserve the historic details, including ornate wood moldings and original architectural elements

• A dining table that seats up to 12 people

• Discreet storage space for folding chairs

• Create a dedicated area suitable for working

• Include an accessible bathroom

• Design a dedicated laundry/mud room with slop sink and upper cabinetry

DESIGN SOLUTION

• Retained original crown moldings and ceiling medallions to honor the home’s historic character

• Integrated a hidden push-to-open closet for folding chair storage

• Added a built-in banquette to serve as a multifunctional space for dining and work

• Designed a full bathroom featuring a classic clawfoot tub with a mounted showerhead

• Developed a fully equipped laundry/mud room complete with a slop sink, upper cabinetry, front-loading washer and dryer, and a built-in bench with boot storage

Produced in SketchUp

Produced in SketchUp Produced in SketchUp

OLIVE

VINE

Olive & Vine is a thoughtfully designed Italian restaurant located in the heart of Naperville, Illinois. The concept blends rustic charm with contemporary comfort, capturing the essence of Italian hospitality through a rich and tactile material palette. The interior features exposed brick walls, dark natural stone, and warm terracotta hues, complemented by reclaimed woods and lush greenery to create a cozy, organic atmosphere. These elements come together to evoke the feeling of a timeless countryside villa, with modern touches that feel fresh and inviting.

Functionality and inclusivity were integral to the design process. The layout includes ADA-compliant restrooms and vestibule, with code-compliant clearances throughout the space to ensure accessibility for all patrons. Slip-resistant flooring was carefully selected to promote safety without compromising the aesthetic vision.

Sustainability also played a critical role in material selection and overall project execution. Low-VOC finishes, LEED-compliant materials, and energy-efficient lighting were utilized to minimize environmental impact and promote healthier indoor air quality.

• Low VOC materials

• LEED Compliant materials

• Greenguard Gold certified finishes Sustainability

Rules of Thumb

• Kitchen area ranges from 30-45% of the total square footage

• 18 inches of space between occupied chairs

• 42-60 inches between square tables and 24-30 inches between the corners of diagonal tables

• Restroom stalls are ADA accesible

• Bar has ADA accesible hright

• Aisles are 36 inches

FLOOR PLAN

SCALE: 1/4”=1’-0”

RESTAURANT

Drawings produced in Autodesk AutoCAD not to scale. Original drawings are representative of industry standards
Olive & Vine – Naperville, IL

Fixtures and Materials

MOOOI

RAIMOND II DOME CAPITAL LIGHTING DONOVAN

FOSCARINI

APLOMB PENDANT

STYLENATIONS

FITHUG 057

EXPORMIM FLAMINGO SQUARE DINING TABLE

FLOORING GUEST GUARD COMMERCIAL FLOORING

ENTRY ELEVATION

SCALE: 1/2”=1’-0”

BAR ELEVATION

SCALE: 1/2”=1’-0”

Birds-eye perspective

RESTAURANT

WASHINGTON RETREAT

Fireplace Process

• Married couple in their early 50s

• Have two daughters, ages 13 and 10

• Seeking a relaxing vacation home to escape city life

Concept

• Incorporate dark wood elements to emphasize the natural surroundings

• Include a fireplace to create warmth and coziness during fall and winter

• Use gold accents to add warmth and subtle elegance

• Design a custom kitchen island for functionality and style

• Feature exposed beams to highlight natural architectural details

Two-point perspective

Two-point perspective

The fireplace was built and modeled in SketchUp. First, I used the rectangle tool to measure the width and length of the fireplace. Next, I drew a line from the back corner to the top of the wall and drew over the angle of the ceiling to make a face using the measuring tool. Then, I used the push/pull tool to push out the fireplace to the size I wanted. Lastly, I used the rectangle tool on one side and measured how big I wanted the fireplace to be, used the extrusion tool again to create the opening, and added materials to complete the fireplace.

6. Materials
1. Rectangle tool
Measuring tool
tool
Rectangle tool
tool

BACHMAN BATHROOM

• Lydia Bachman is a retired anthropology professor and has moved to downtown Colorado Springs

• Lives alone with her two dogs

• Enjoys hosting guests regularly

• Appreciates the historical character of her bungalow but desires updated amenities with a Craftsman-inspired aesthetic

• Requires ample storage space and a large shower for comfort and accessibility

Concept

• The bathroom design seamlessly blends Craftsman style with historical elements

Features wood cabinetry paired with modern metal accents, introducing a contemporary touch while respecting the home’s heritage

• Walls are prepped for grab bars to support aging in place and future accessibility needs

• Incorporates a spacious walk-in shower designed for ease of use and comfort

MECHANICAL FLOOR PLAN

SCALE: 1/8”=1’-0”

In collaboration with Morgan Lazarz

Partner created renders and the custom vanity

I made demolition changes and shower measurements

Together we decided materials, dimensioned, and checked each others work

SINK ELEVATION

SCALE: 1/8”=1’-0”

NORTH WALL ELEVATION

SCALE: 1/8”=1’-0”

LAW OFFICE

This project involved designing a two-story law office that included private offices, conference rooms, a mock courtroom, and collaborative workspaces. I used Autodesk Revit throughout the design process to create coordinated floor plans, sections, elevations, and detailed documentation. Revit’s parametric features allowed me to make real-time updates and ensure accuracy across views, schedules, and material specifications.

To communicate the design intent clearly, I developed immersive 3D views and photorealistic renderings using Enscape, highlighting key spaces like the courtroom and large conference room. The project reflects a fully integrated workflow—combining space planning, BIM modeling, and visual presentation— aligned with industry standards

FIRST FLOOR COLORED PLAN

SECOND FLOOR COLORED PLAN

AXONOMETRIC

SCALE: 3/32”=1’-0”

RECEPTION DESK ELEVATION

SCALE: 1/4”=1’-0”

CONFERENCE ROOM ELEVATION

SCALE: 1/4”=1’-0”

SECTION CUT SOUTH

SCALE: 1/8”=1’-0”

SECTION CUT NORTH

SCALE: 1/8”=1’-0”

Emily Dixon is a graduate from the College of DuPage with an Associate’s Degree in Applied Science for Interior Design and a Computer Applications Certificate. She is profficient in Autodesk AutoCAD, Adobe Photoshop, Chief Architect, and SketchUp. She’s eager to continue growing as a designer and excited to bring her creativity, adaptability, and passion for design into the professional world.

dixon9386@gmail.com

(630)699-2558

https://issuu.com/edixon

www.linkedin.com/in/emily-dixon17

Turn static files into dynamic content formats.

Create a flipbook
Issuu converts static files into: digital portfolios, online yearbooks, online catalogs, digital photo albums and more. Sign up and create your flipbook.
Portfolio Emily Dixon by Emily Dixon - Issuu