Portfolio-HungcheCho-2022

Page 1

PORTFOLIO

Interior Design & Landscape Architecture

Hungche Cho

Resume

Hungche Cho

Birth : 26/10/1995

Email : edisoncho.nl@gmail.com

Mobile : +31613824182

Linkdein : hungchecho

Nationality : Taiwan

Language

Chinese - Native, Taiwanese - Native proficiency, English - Professional proficiency

Education

2014-2018

Bachelor of Landscape Architecture

Tunghai University, Taichung, Taiwan

2020-2022

Master of Interior Design

ArtEZ University of Art, Zwolle, Netherlands

Professional Experience

July-Sep 2017

Internship, Antao Design Co., Hangzhou, China

.Residential garden plant design,

.Assist senior designer to gather the case study information

Assist senior designer to make the presentation for client

2019 Sep -

2020 July

Assistant Designer CNHW Landscape Design Co., Taipei, Taiwan

.Making physical scale model

.Residential, Office building, Park plant design

Making the presentation to introduce the case to client

.Assisit meeting between Senior designer and client

.Assisiting senior designer modeling and rendering

Skill

Photoshop Illustrator InDesign Premiere AutoCAD SketchUp Lumion MicrosoftOffice Rhino

Move Along With Your Memory

Small Livingroom Display Ikea Visual Merchandiser Project 2023
ArtEZ Master Graduation Thesis Research Project 2022 Become Cat - Spatial Experience Design ArtEZ Master Spatial Design Project 2021 Losheng Sanatorium Space Renovation THU Landscape Architecture Graduation Project 2018 Working Field Landscape Architecture Working Project 2019 06 10 18 26 34
Selected Works

Small Living Room

This is a Visual Merchandiser design case for my personal practice. I use IKEA as a product example and use cool and warm colour tone as the theme. This space is aimed at a display space in the shopping mall, there for the space was built with open space. The potential customers can be attracted by the display and concentrate on the space. Completely different styles on both sides can also give consumers more reference value.

01
2023 , Individual Project , IKEA Visual Merchandiser Project

Warm Colour Tone

Cold Colour Tone

8
9

Move Along With Your Memory

According to the United States study people on average move 11 times in their lifetime. People move for different reasons, for example, refugees trying to escape from the war, students moving to the city to study, etc.

However, some people might have this feeling when they just move to a new space and feel like they don't belong there. Things that feel familiar with are no longer here. It could be the furniture, the wall hanger where you put your coat, or the window where sunlight shines through in the afternoon. These users' experiences forming to memory and then a sense of belonging.

I believe throughout a series of actions people can find out the missing part in their space. Therefore I designed a methodology and a toolbox to help people to find out their needs, and their sense of belonging back.

02
2022 , Individual Project , Interior Design Research Project Website Process Book Video

Moving from Taiwan to Netherlands to ArtEZ School

As an international student, moving from Taiwan to the Netherlands was a new experience. From the size of the room to the equipment of the room, etc., different cultures also affect those detail I get used to having.

12
Taiwan Netherlands ArtEZ School

Pattern In the Space

When I studied my three different rooms, I realize that even under different spatial conditions, I still have general fixed room rules. In shaping my room, there are two cores, the desk and the bed, which in turn extend and determine the development of the rest of the space.

According to the different space experiences of each person, the perception and layout of the room will also be different. However, that idea eventually form into a unique pattern.

13
14

Build up Sense of Belonging Space

So my project's goal is to build up an old room memory in the new space. When creating such an abstract sense of belonging space, the most important thing in this project is to visualize people's memory in space.

The hints can be associated with people, can be shaped, arrangement of the space, color, etc. When these hints can be related to the memory in our brain, then it can bring a sense of belonging. In this project, I use the projector, physical structure, and other objects to recreate that sense of belonging space.

In the end, I categorize three elements that are crucial to building up the space.

15
Materials The Abstraction
Pattern
The
The

Tool Box and Rules

After my research, I establish a complete set of rules and a toolbox for people to use. With the video and process on the website, people can easily follow. There are Three chapters Prepare, Install, and Adapt.

16
Chapter 2
Chapter 3
Chapter 1
17

Become Cat

As architecture designers, we often think about space for humans, and only for humans. People experience space from a very narrow perspective, and we often limit ourselves to certain ways of thinking about the spatial experience.

However, for a cat the space can be very different, for example, the wall can be their walking path, and the rooftop is just another shortcut to another house. For them, the elements in the space are full of various ways of using them. One of my favorite books " I am a Cat "by Natsume Soseki inspired me as a designer how can we change our spatial experience from a cat's perspective. Mimicking the behavior of cats makes me realize, how interesting it can be if we try to jump outside the box. So does designing a space with this concept.

02
2022 , Individual Project , Spatial Experience Project Zwolle, Netherlands
Video

As a Cat

How cats perceive the world can be very different from us. According to the research, the cat can only see certain colors, also their vision compared to ours is much more burly. Not only the visual but also their spatial experience, that's why I start with mimicking the behavior of cats to see how these work for human beings.

20

Concept - Cat Tower

As humans, we usually move horizontally, but cats are not limited by this. So I analyzed the cat's usual movements and picked from the movements I imitated and put them together as a puzzle.

Arranging the photos of the action into a series of sequences, and then adjusting for the direction of the action, I ended up with a rough concept model, like a giant cat tree.

21

Selected Action

22
23
24
25

Losheng Sanatorium Space Renovation

Losheng Sanatorium used to be an isolation hospital for Han's illness. The sanatorium is like a small society, and patients live here their whole lives from admission to death. Now, with the development of urban renewal, the sanatorium once fell into the crisis of demolition. Even now, there are still patients living inside, but the landscape and buildings in the park have fallen into the predicament of no one to organize and maintain them.

For those patients who were discriminated against and still could not live with peace of mind in their later years, also the buildings and landscapes as witnesses of history.

Our design re-planned this place into a place where future generations can better understand the history and revitalize it into a historical and cultural park.

04
2022 , Hung-cheCho, Yu-Ting Liu Group Project Landscape Architecture Graduation Project Taipei, Taiwan

Background

The history of the sanatorium has always been filled with memories of pain and struggle from its establishment to the present day. As the "home" of lepers, it has witnessed the scars of history, from the misunderstanding and fear of patients in the old age society, and even the people, buildings, and landscapes left in this sanatorium in modern times are facing the crisis of survival.

Issue Discussion: Tragedy under Social Stigma

Stigmatization

Insufficient knowledge of disease leads to the general public being afraid of it.

Elegy

Unfair treatment from early isolation to modern times.

Leprosy

Appearance defects cause discrimination by others.

28 Japanese Occupation Showwa – Post war The 83th – 104th year Republic Era The 104th year Republic Era – Now 1927 1945 1946 1993 2003 2004 2005 2009 2016 2020
Cure Factory Demolish Safe Japan Taiwan isolation Forest Heal Self-isolation Future
Taiwan Taipei City Xinzhuang District

The Losheng Sanatorium located at No. 145, Dingpojiao. It has undergone three important periods. These times bring up Losheng's humanities and natural resources, we hope that through the image of Losheng being enveloped by greenery, we can develop and revitalize this precious historical space.

Design Concept - Story Telling

We develop the local spirit in four areas: "Review, Experience, Participation, and Reflection". We combined the elements from the important memories of the patient to design twelve scenes to provide visitors with a series of spatial readings.

29 Plaza Medical station Library Church Restaurant Historical Memorial Patientes Residential Youth Workshop Forest Trail Farm Lecture hall Temple Columbarium Review Experience Reflection Participate Review Experience No.1 No.2 No.3 No.4 No.5 No.6 Reflection Participation No.7 No.8 & 9 No.10 No.11 No.12
Losheng
樂森 - No.145
Cultural Food Leisure Living
30
31
Scene 5 : Despair Scene 4 : Morgue Scene 6 : Conversation

SCENES SELECTED

32
Scene 2 : Year Scene 7 : Working Scene 9 : See Scene 11 : Walls Scene 12 : Thinking
33
Scene 12 : Thinking Scene 5 : Despair Scene 9 : See

05

Working Field

2019 , SketchUp, Lumion, AutoCAD, Photoshop Landscape Architecture Working Project Taiwan

In the field of work, most of the cases I came into contact with as an assistant landscape architect in 2019 were photoshop and rendering using modeling software.

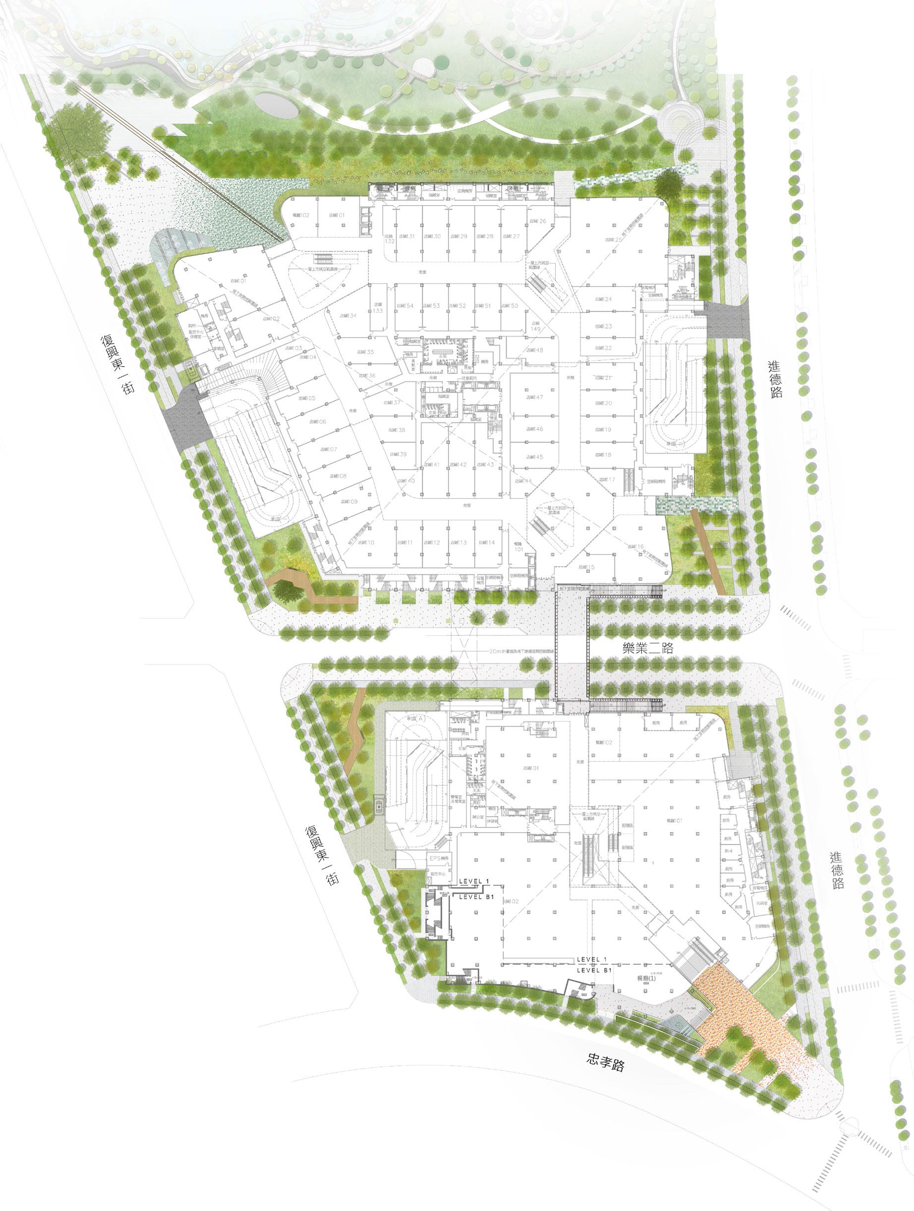
Shopping Mall Landscape

For this project, I am mainly responsible for rendering the scene designed by the senior designer and also working with the design of the plant.

And used Sketchup for the modeling and exported to the lumion and photoshop to do the rendering.

36

Technology Park Landscape

37
This is the project that company work with the architect, and I used the model from the architect and input it into the lumion and adjust it with photoshop.

Turn static files into dynamic content formats.

Create a flipbook
Issuu converts static files into: digital portfolios, online yearbooks, online catalogs, digital photo albums and more. Sign up and create your flipbook.