portFOLIO

![]()


I have a solid background in construction, architecture,andengineering,complemented byalmost3yearsofvaluableworkexperience and professional internships. My advanced skills in design software and the creation of 2D and 3D plans enable me to develop innovative and functional projects. I am committed to excellence and creativity, applying my knowledge to demonstrate my ability to face challenges with efficiency and dedication.
AntonioNariñ 2019-2024
ArchitectDegr
SantoTomásU 2021-current Constructioni
Designand2D
AutoCAD3D.S
Revit.SENA20

Others: Illustrator,Corel Draw, V-Ray, Twinmotion,Lumion,SAP2000,MicrosoftProjects,

I designed and managed residential and commercial renovation projects, ensuringcompliancewithlocalbuildingcodesandregulations.
I conducted site evaluations and quality control inspections to guarantee safetyandprecisionateveryphase,aligningwithindustrystandards.
I developed and presented detailed floor plans and renderings, effectively showcasing the design to clients and project teams, securing design approvalandalignment.
I managed material selection, inventory control, and vendor coordination toensurethetimelydeliveryofprojects.
IledthecreationandrefinementofRevitmodelsforresidentialandcommercial projects,ensuringdetaileddocumentationandaccuracyinalignmentwith companystandards.
Idevelopedcomprehensivetechnicaldrawings,includingfloorplans,sections, andelevations,meticulouslyaligningeachdetailwithprojectspecificationsfor constructionteams,andprepareddetailedscheduleswhilecollaboratingwith contractors.
Icreatedandmanagedprojectschedules,milestones,anddeliverables,ensuring thetimelycompletionofRevitmodelsandtechnicaldrawingsadjustingdesigns topreventconflictsandensureconsistentprojectdelivery.
Imaintainedeffectivecommunicationwithteammembers,addressing technicalinquiriesandproactivelyidentifyingpotentialchallenges.


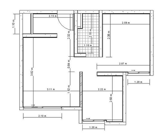
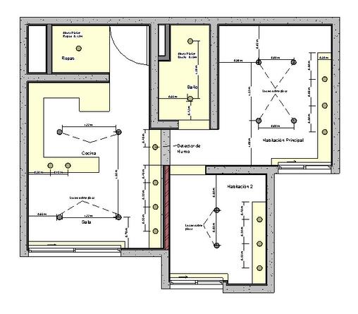
TypeofProject:ResidentialRemodeling
Location:Bogotá
Software:Revit
Therenovationdesignfora30m²apartmentinBogotáhas been meticulously developed, incorporating high-quality whitefinishes,customkitchenandroomsfurnishings.The primary focus of the proposal is to create comfortable and inviting spaces that prioritize both functionality and aestheticappeal.Strategicuseoflightingandlight-colored toneshasbeenemployedtofosterasenseofopennessand spaciousness, making the apartment feel larger and more welcoming.
The design aims to balance modernity with comfort, ensuring that every detail contributes to a cohesive and harmoniouslivingenvironment.


TypeofProject: ResidentialRemodeling
Location:Bogotá
Software:Revit-SketchUp





TypeofProject: ResidentialRemodeling
Location:Bogotá
Software: SketchUp
TypeofProject:
ResidentialRemodeling
Location:Bogotá
Software: SketchUp




TypeofProject: Residential
Location:Bogotá
Software:Revit
TheAxisHouseisasingle-familyhomeof50m²,laidouton a single floor. It features a double-height gable roof. The interior space consists of two bedrooms, one bathroom, a living-dining room, and an American-style kitchen. Additionally, it includes a laundry room and a backyard withagarden.
The structural design was developed from the foundation, incorporating three types of footings and tie beams. The concept of the house is that of a compact country home, suitableforruralorvacationsettings.Theroofstructureis composed of metallic braces using the steel frame system, withagableroofconfiguration.
Team:MakeirEasier Colombia,Bogotá

TypeofProject: Residential
Location:Bogotá


Software:Revit FirstFloorPlan. Cimentationplan.


FacadeandLongitudinalSection. North-South
FacadeandCrossSections.
East-West

TypeofProject: Residential
Location:Bogotá
Software:Revit 3DVIEW



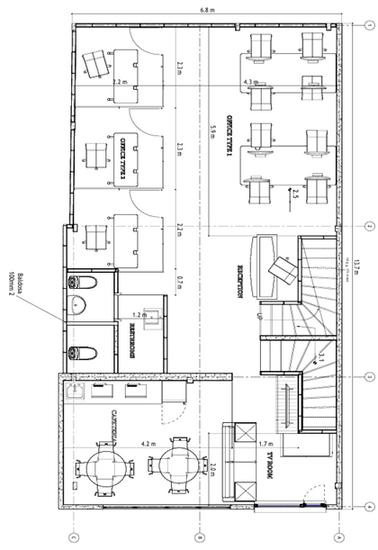
TypeofProject:OfficeRemodeling
Location:Bogotá
Software:Revit
MoreraOfficeisameticulouslydesigned94m²spaceaimed at optimizing functionality and transparency. The layout encompasses two main configurations: an open area with two desks accommodating four people each, fostering dynamiccollaboration,andthreeenclosedofficeswithglass wallsforprivacywhilepreservingasenseofopennessand natural light. Additionally, the office features a spacious cafeteria for eight people, facilitating breaks and team socialization,alongsidealoungeequippedwithatelevision forrelaxationandinformalmeetings.Theoffice'sstructural systemincludesasteelframeforthestaircase,columnsand ceiling and drywall partitions for interior walls, ensuring bothflexibilityanddurabilityintheworkspacedesign.
Team:ArqEdifica. Colombia,Bogotá

TypeofProject:OfficeRemodeling
Location:Bogotá
Software:Revit

The office is situated on the second floor, characterized by a well-defined floor plan that delineates the spatial arrangement. The office features partitions constructed from drywall, offering flexible division of areas, while a robust steel frame system supports the ceiling, ensuring structural integrity and allowing for versatile design possibilities.
TypeofProject:OfficeRemodeling
Location:Bogotá
Software:Revit


LongitudinalSection,Cra96-157
North-South

CrossSection,Cra96-157 East-West

Exploded axonometricdrawing



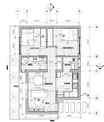
TypeofProject:ResidentialRemodeling
Location:Bogotá
Software:Revit
Therenovationdesignfora32m²apartmentinBogotáhas been meticulously developed, incorporating high-quality white finishes, custom kitchen furnishings, and reinforcementofthemaindoorforenhancedsecurity.The primary focus of the proposal is to create comfortable and inviting spaces that prioritize both functionality and aestheticappeal.Strategicuseoflightingandlight-colored toneshasbeenemployedtofosterasenseofopennessand spaciousness, making the apartment feel larger and more welcoming.
The design aims to balance modernity with comfort, ensuring that every detail contributes to a cohesive and harmoniouslivingenvironment.
Team:ArqEdifica. Colombia,Bogotá

TypeofProject:
ResidentialRemodeling
Location:Bogotá
Software:Revit




InteriorRendering,LivingRoom Cra74b-18
Blue tiles and a mosaic border imitating stone have been selected according to the client's preferences. Custom wooden furniture has been designed for the kitchen and living room, which includes a shelf with a winerackandglassholder,aswellasadesk.Laminate wood flooring has been chosen to complement the overallaesthetic.


BaseKitchenCabinet WallKitchenCabinet
TypeofProject:
ResidentialRemodeling
Location:Bogotá
Software:SketchUp

Iassumedresponsibilityforon-sitesupervision.Inaddition,I actedasaliaisonwiththeclient,facilitatingtheacquisitionof materials.

LongitudinalSection,Cra74b-18
North-South




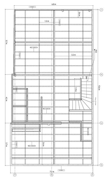
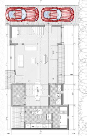
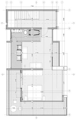
TypeofProject:Residential
Location:Chía
Software:Revit
Threefloorsresidenceof240squaremetersandafootprintof93.10 squaremeters.Theinternallayoutofthehouseiscarefullydesigned tomaximizefunctionalityandcomfortfortheoccupants.
Onthefirstfloor,thereareserviceareasandsocialzones,includinga modern kitchen, a spacious dining room, and a comfortable living room, ideal for entertainment and daily living. The second floor is dedicated to private areas, providing a quiet and reserved space for the bedrooms. The third floor also houses additional private areas, continuing the theme of privacy and comfort. Additionally, it includes an extension of the social zone, creating a perfect balance betweenprivatespacesandcommonareas,allowingforversatilityin theuseofthehouse.
Team:ArqEdifica. Colombia,Bogotá

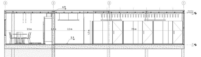
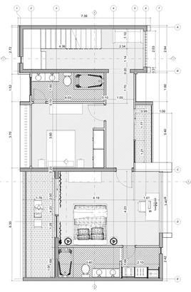
TypeofProject:Residential
Location:Chía
Software:Revit

Thegeneralsiteplanoftheproject delineates three bedrooms on the second and third floors, with the socialarealocatedonthefirstfloor. The master bedroom on the third floor is distinguished by its private livingroomanden-suitebathroom.
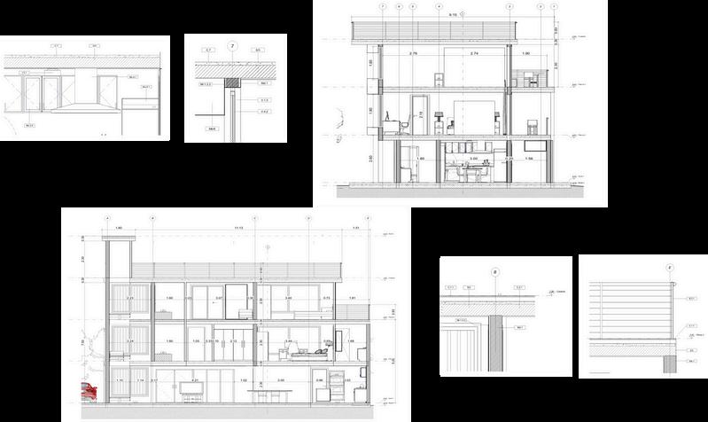
TypeofProject:Residential
Location:Chía
Software:Revit



FrontalandBackView.
North-South

LateralViews. East-West
Uppercabindetail Windowdetailandconcretefloorslab
LongitudinalSection.
North-South

CrossSection.
East-West
Brickwallandconcretefloorslab Railingdetail

TypeofProject: Commercial
Location:Cali
Software:AutoCAD/SketchUp
The pavilion is a project presented for an architecture competitioninthecityofCali,itislocatedonacornerlotat theintersectionofCra4NandCll62N.Forlandplanningof a tensile structure of 878 square meters. This structure consists of two parallel sections, each supported by structural trusses strategically placed at 4 meter intervals. The roofing system involves a non-structural membrane anchored to columns through a sophisticated pulley mechanism,ensuringstabilityandaestheticappeal.

TypeofProject: Commercial
Location:Cali
Software:SketchUp

The pavilion's expansive spaces are ideal for various commercial, recreational, and exhibition activities within its galleries. Its open-plan design not only provides ample room fordiversefunctionsbutalsoallowsforabundantnaturallight and ventilation, creating a comfortable and inviting environment.
The tensioned membrane, supported by structural trusses, protectsvisitorsfromtheelements,blendingfunctionalitywith aestheticappeal.

TypeofProject: Commercial
Location:Cali
Software:AutoCAD




FacadeEast-WestCra4NandCll62N.








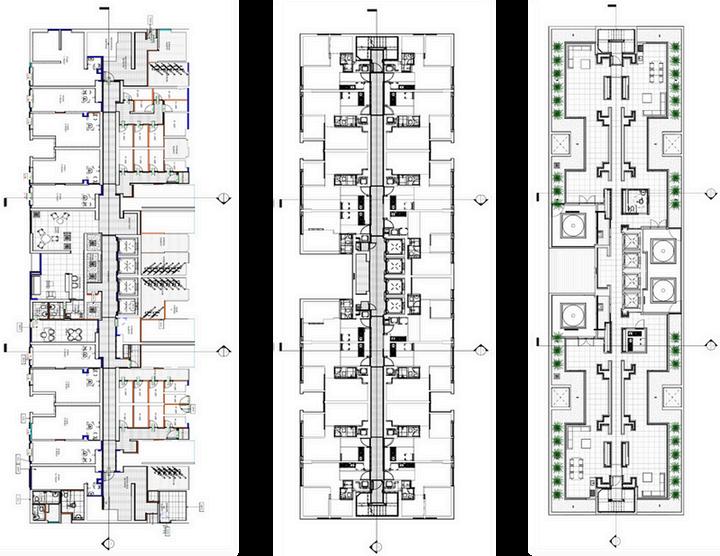
TypeofProject: Mixed-Used
Location:Bogotá
Software:Revit
TheTintalitobuildingisconceivedasamultifacetedspace thatseamlesslyintegratesresidentialandcommercialuses within a single development. Strategically located along a park, this eight-story building aims to create a vibrant communitycenterthatenhancestheurbanlandscape.
The building design incorporates an elevator, ensuring accessibilityandcomfortforallresidents.Thegroundfloor has a commercial area with a double-height ceiling, fostering a dynamic commercial environment that encourages interaction and activity, the top floor is a walkableterracewithBBQandgardensforresidents.
Team:ArqEdifica. Colombia,Bogotá

The first floor of the building features four types of commercial spaces, totalingtenretailunits,andincludes20 rooms designated for storage and administration purposes. Additionally, there are three technical rooms and fourbicycleparkingspaces.Floorsthree through eight share the same apartment layout, ensuring uniformity andefficientuseofspace.Therooftopis designed to be accessible, offering two BBQ areas and landscaped gardens, providing residents with recreational andsocialamenities.
TypeofProject: Mixed-Used
Location:Bogotá
Software:Revit

RearandWestFacade.
South-West
FrontalandEastFacade.
North-East

CrossSections.
East-West

LongitudinalSection. North-South

