EDEN YODER
SELECTED WORKS 2023-2024
![]()
EDEN YODER
SELECTED WORKS 2023-2024
ARCHITECTURE STUDENT
Currently 4TH year sutdent of a 5 year Masters of Architecture Program PROFILE
CONTACT
760-705-6761
12535 Calle Tamega, San Diego, CA 92128
eden.yoder@gmail.com
March @ KANSAS STATE UNIVERSITY
Intended Graduation May 2026
Current GPA: 3.73
Dean’s List
August 2017-June 2021
Graduated Magna Cum Laude from The Cambridge School, a Classical Christian School located in San Diego
Studied Logic, Rhetoric, the Great Books, Latin, and Greek
August 2024 - Present
Collaborated in an interdisciplinary studio to design sustainable solutions for the Gateway Decathlon competition.
Led architectural design efforts, working closely with engineers and other disciplines to deliver innovative project outcomes.
Gained valuable experience in a mock professional office environment, coordinating project tasks and enhancing team communication.
January 2022 - Present
Music Education Specialist: Facilitate weekly teachings of songs to the chapter
ADOBE SUITE
RHINO TWINMOTION
V-RAY
REVIT SKILLS
Director of Academic Affairs: Engage with members of the chapter who are below the required GPA threshhold, collaborating to develope personalized action plans aimed at elevating their academic performance.
August 2022 - Present
Participating in monthly meetings connectin with other women in the design realm
HOUSE EXECUTIVE PREFECT @ THE CAMBRIDGE SCHOOL
August 2022 - Present
Organized and planned community events in and outside of school
▪ Food and school supplies drives for local San Diego communities
▪ Luncheons, group activities, and games for the entire high school
Emphasized and organized mentorship within the house system community
MUSICIAN
2012- Present
Studying Classical, Theater, and Jazz vocal technique
August 2024 - Present
Collaborated with team members to manage high-volume periods, ensuring smooth workflow.





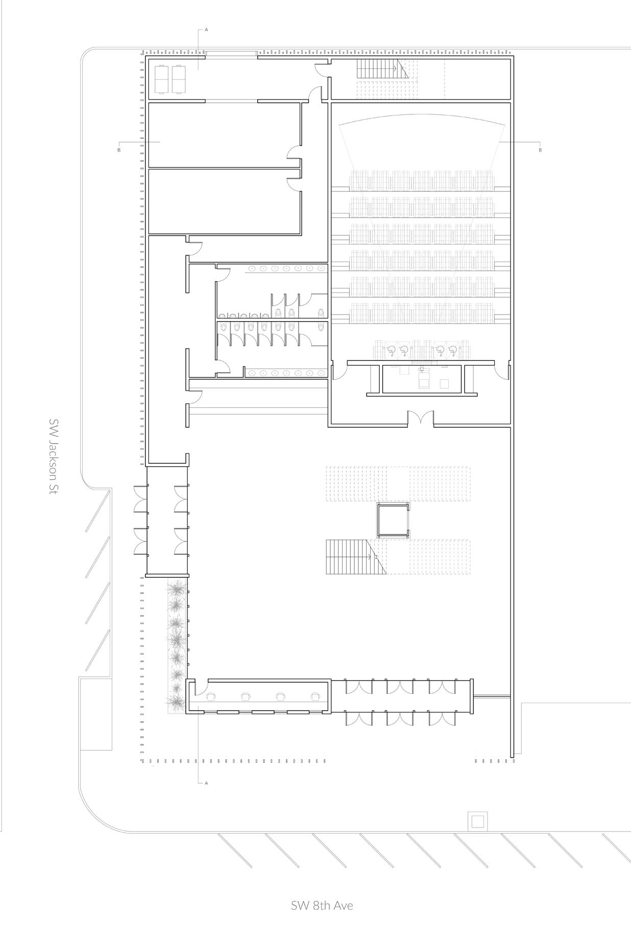
Embedded within this architectural endeavor is a commitment to crafting a theater experience that seamlessly adapts to its surroundings. At its core lies the multifunctional main atrium space, designed to serve as both a welcoming lobby and a versatile white box theater. Clear wayfinding strategies within the atrium ensure intuitive navigation throughout the building.
The strategic positioning of the black box theater, perpendicular to the white box with large double height doors, facilitates a fluid transition between spaces, enhanced by expansive doors connecting the two realms.
Additionally, the white box theater extends to the exterior plaza, blurring the boundary between indoor and outdoor spaces, inviting public engagement from the street. This design approach transcends physical constraints, fostering an immersive environment for artistic exploration and community interaction, redefining traditional theater design through adaptability, accessibility, and enduring captivation.








The Center for Kaw River Culture employs a mounding system to reintegrate the land with the community of Topeka. These large-scale landforms bring the landscape into the skyline and address the lack of natural spaces in the industrial zone along the Kansas River.
The mounds, functioning as active circulation zones, facilitate movement while also offering spaces for contemplation. Their design transcends mere barriers, creating inviting park-like areas for community gatherings and rest, infusing vitality and a sense of belonging into the site.
The buildings are not imposed entities but rather organic extensions of the landscape. By seamlessly integrating the structures with the natural surroundings, the design reinforces the notion that the community and its history are integral components of the land.
This symbiotic relationship serves as a catalyst, fostering ongoing engagement and cultivating a deep appreciation for the cultural significance embedded in the Topeka community.




The large paths that circulate around the building allow for art to be installed and space to pause.


To enter the building you must move through, around, and beside the mounds, fostering engagment.
The twisting path allows the public to safely and easily access water for recreational use.

The mounds activate the site creating public space for the community.


GALLERY SPACE


The design of the Low-Rise Housing in Iola, Kansas, creates a microcosm of the greater Iola community.
To respond effectively to the site’s conditions, the design uses a gridbased layout that directs movement throughout the site. This grid layout not only shapes the clustered housing scheme but creates a network of pathways that guides residents through the clusters, all connected by the shared plaza.
This design accommodates a community in transition including senior citizens, young adults, and young families. The design serves as a reminder of the larger Iola community for elderly residents, fostering a sense of familiarity. Simultaneously it introduces the younger generations to the warmth of the Iola community, promoting a sense of belonging and community engagement for all age groups.
This interconnected design approach not only optimizes the use of the site but also reinforces the bonds between different generations in the community


Circulation throughout the site will always overalp in the central plaza

The Grid defines the shape of the mass as well as its placement on the site

the

View down one of the alleys of the circuit of paths looking into the common courtyard space





The arrival of the Aztek Theater in downtown Topeka is an opportunity to promote engagement in the urban setting. Prioritizing visual engagement from the sidewalk, strategically revealing spaces where people naturally gather, captivate the passerby.
The concept of ‘reveal’ influences the composition, the dynamic interplay of mass and void, and the facade. By dispersing gathering spaces strategically throughout the structure, it encourages fluid movement and engagement, fostering an environment that beckons exploration and community connection. This idea of ‘reveal’ finds expression in compression and release, culminating in the grand stair that connects the various theaters and gathering spaces.
The exterior facade or ‘curtain’, serving both functional and design purposes, plays a diagrammatic role in this narrative. Its openness near the entry invites a gradual transition, encouraging individuals to move through the curtains. The curtain is cut away at time to allow for unobstructed views to the capitol as well as exposure to the people passing below. The curtain’s density is indicative of the enclosure needed on the interior.


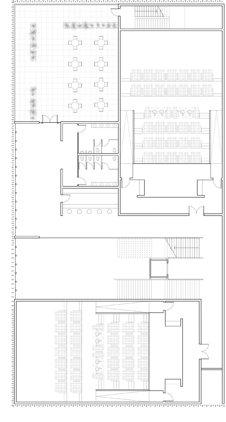
SECOND FLOOR PLAN



