Eren DEMIRCI Portfolio

Page 1

GULHANIM MOSQUE

What Was Requested From Us İn This Project İs A Mosque , The Lower Part Of Which Could Be Used For Commercial Purposes. The Location Of The Project İs At Ortahisar District İn Trazbon. The Main Challenge İn The Design Was The Risk That The Combination Of The Mosque And The Floors Below İt Might Give A High And Bulky Appearance From The Elevation Of The Building. At This Stage Of The Design, İn Order To Eliminate This Disadvantage, The Mosque And The Rest Of The Commercial Part Are Divided By The Main Slab Of The Building To Show İts Functional Difference.

Another Feature Gives A Value To The Mosque İs The Use Of A Glass Dome İn Construction. In Addition To All Design Of The Project, The İnterior Design Was Also Done By Our Team. While All The Mihrab, Pulpit, Lectern, Reliefs And All Motifs Provided İntegrity İn The Design, The Most Vital Part Of The Design Was The Glass Ceiling Design. Each Light Element Used On The Ceiling Was Considered As A Representation Of A Human Being. And With The Natural Light Provided By The Glass Dome, İt İs Aimed To Feel The Spiritual Feeling Of The Users More.

This Project Was Designed By Us Through Metin Kaya, And Delivery Time Of İt İs 3 Weeks And The Project İs Currently Under Construction.

AKYAZI 1+1 APARTMENT BUILDING

In the 1+1 apartment project, whose project and interior design were made by us our team aimed to use a simple, elegant and modern architectural style. The project is located at Akyazı Quarter Ortahisar District in Trabzon. After the basic design phase of the project cycle , the interior design and visualization works for the sample apartments were started. In this design, we face with the main difficulty was that the flat types has a thin and long layout plan. Our team aimed to create a freer and open plan layout to solve this problem. This project was designed by us through Metin KAYA, and delivery time of it is 4 days.

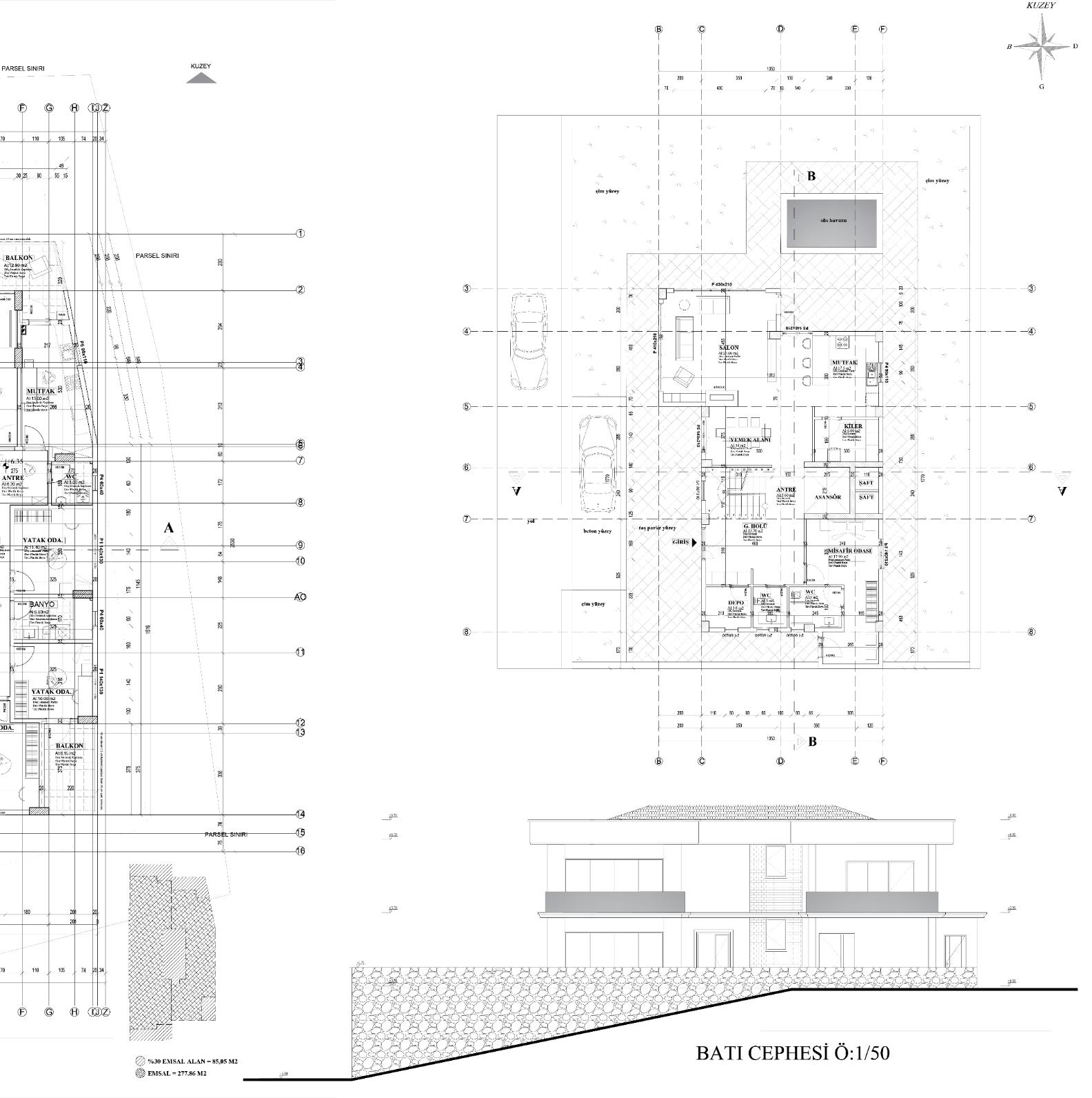
YESILYURT VILLA PROJECT

In this project in a natural environment that is located at Yeşilyurt Quarter Ortahisar Disrict in Trabzon, our customer requested from us to design 3 different types of villas that are coherent structure with the landscape. Our team aimed to provide a beautiful view to the users by preserving the natural features of the project site in the building settlements. For this reason, we prefered to use glass materials in a part of the terrace that is infront of the villas increase the integrity with nature of the villas located towards the stream along the land. This project was designed by us through Maher Majak , The design and visualization of the project were completed in 3 days with hard and critical teamwork.

AKYAZI SAMPLE APARTMENT BUILDING DESIGN

In the sample apartment Project that located at Akyazı Quarter Ortahisar District in Trabzon , whose project and interior design were made by our team aimed to use a simple, elegant and modern architectural style in line with customer requests. After the material selection of the walls, floors and other architectural elements used in the project design was determined by the co-desicion of our customer and our team, we aimed to make the most suitable design for the project.

This project was designed by us through Maher Majak , The design and visualization of the project were completed in 3 days with critical teamwork.

YESILYURT SOCIAL AREA DESIGN

The project, which includes an open-air cinema, different social areas and 5 bungalows, was designed by our team at a landscape in nature. It was a very important criterion that the site of the project is at the waterside .Our team aimed to create more dynamic open, semiopen and close space and provide a beautiful view to the users by preserving the natural features of site in the building settlements. This project was designed by us through Maher Majak , The design and visualization of the project were completed in 3 days with critical teamwork.

GUNES LAW OFFICE -RENOVATION PROJECT

In this project, we worked on the transformation of an old apartment into a modern, bright and spacious law Office. The project is locaced at Faroz Quarter, Ortahisar District in Trabzon. The design stages of the project were as follows; First of all, the survey works were carried out at the project site. Secondly, the planning of the project and the suggestions for interior design were made, and the visualizations were made as a result of the final project . Finally, the implementation phase for the renovation was started. Considering the wishes of our customers, user-specific furniture was designed for the interior design of the space and these designs were delivered to the customer with materials and colors palette that has a key map which shows the materials on the plan This project was designed by us through Ceren Güneş , The design and visualization of the project were completed in 1week with critical teamwork.

GARDENHILL-RENOVATION AND VISUALIZATION PROJECT

In Gardenhill project that is located in Trabzon, which we got involved in after a certain stage as an office, the project had to be reviewed again. First of all, observations about the site were made on the land and work was started for the renovation project and layout of the building settlement for the user needs. The project cycle continued under the control of our office. 3D design and visualization of the project in this social complex was completed by our team. In addition, this project is our first project within the scope of TKDK and it has given us a lot of experience in this context and created a reference for such projects to be made. In addition to the architectural design of this project, the official approval procedures have been completed by working with our TKDK consultant for the building inspection documents. The construction of the project, in which we took part in the construction site works will finish soon.

This project was designed by us through Özdemir Aydın, The design and visualization of the project were completed in 2 months.

ARMADA PLAZA SAMPLE APARTMENT BUILDING DESIGN

In this project, where we proceeded in an elegant, simple and modern line in terms of design style, we made the selection of lighting, furniture and materials considering interior design. Although we chose mostly dark furniture, we transformed the environment into a warmer home environment with holistic lighting. An interconnected design was used in all rooms of the house.

This project was designed by us through Melik Reis, the design and visualization of the project were completed in 3 days.

YOZGAT LUMBER MILL

This Project is a lumber mill that is located in Yozgat. Before starting for the factory design, we received information from our client about the number of employees, factory functions, manager and employee rooms and special areas for timber production. In line with this information, we designed a draft plan. Afterwards, we completed the architectural plans with the co-decisions we made with our client, and again we made an facade design that is suitable for the factory function. Finally, interior and exterior visualizations of the building were prepared. This project was designed by us through Nazmi .., the design and visualization of the project were completed in 8 days.

BEYKOZ LANDSCAPE PROJECT

In this project, a landscape design proposal was made for an existing villa that is at the Beykoz district in Istanbul. In line with customer requests, we presented a draft plan with our landscape architect team. And with the final decisions, we aimed to design a spacious, relaxing and visually integrated plan for the user with the use of natural stone, some water elements, pedestrian paths in asymmetrical lines, and the balanced distribution of hard and soft ground.

This project was designed by us throughTekin Özbey, The design and visualization of the project were completed in 3 days.

YESILYURT VILLAS II

In this project, 3 different types of villas suitable for the given area were requested. The land is located at Yeşilyurt Quarter in Trabzon. In the project we planned with the existing garden walls on the land, we aimed to present both a modern and a classical design. And finally, we delivered it to the customer with 3D visualization and animation. This project was designed by us through Maher Majak , The design was completed in 6 days.

OLD CURIOSITY SHOP -RENOVATION PROJECT

The point we find valuable in this project is the location of the space that is at important square Of Trabzon. Before starting the project, survey works were carried out, and during the design process, we aimed to add a new modern atmosphere to the place by preserving the unique historical background of the space. In addition to these, we enriched the spatial function by adding a new coffee area in line with the customer's request. When the design process was finished, we delivered it to the customer with 3D visuals, bill of quantities and cost calculations. This project was designed by us through Mustafa Tabakoğlu, The renovation project was completed in 8 days.

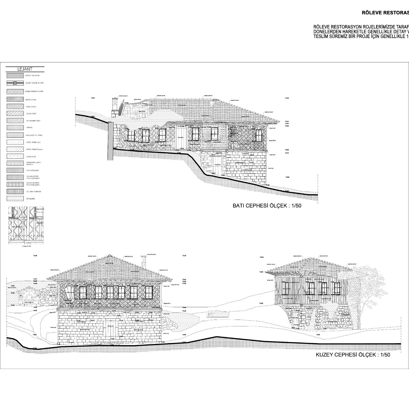
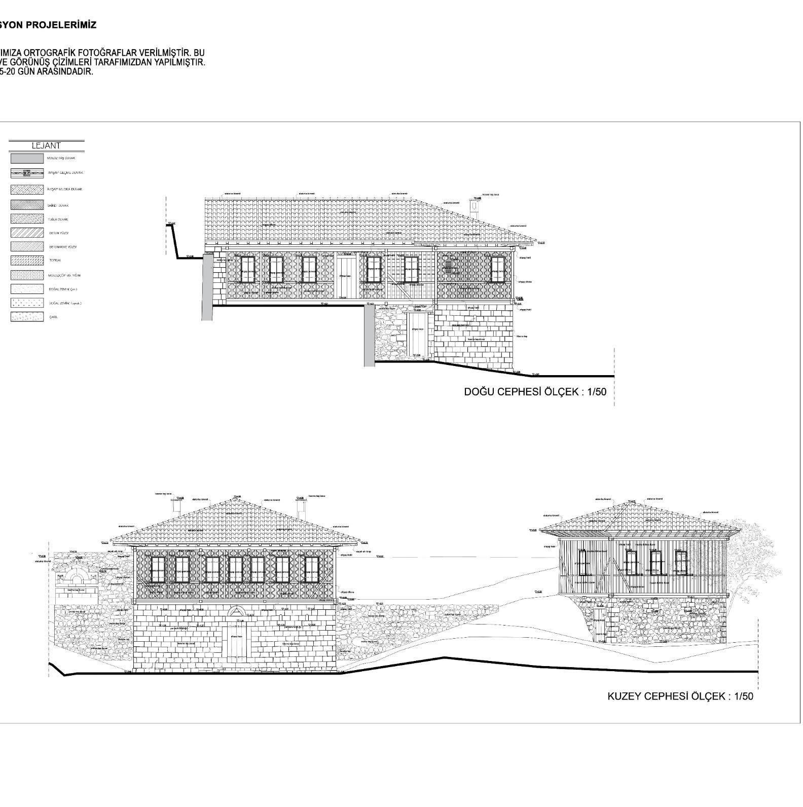
RESTORATION PROJECTS

In survey and restoration Project, orthographic photographs were taken as information about the project. After that we complete the detail and elevation drawings with the received data. Delivery time may vary depending on the project, but it takes 15-20 days on average

RESTORATION PROJECTS

In survey and restoration Project, orthographic photographs were taken as information about the project. After that we complete the detail and elevation drawings with the received data. Delivery time may vary depending on the project, but it takes 15-20 days on average

RESTORATION PROJECTS

In survey and restoration Project, orthographic photographs were taken as information about the project. After that we complete the detail and elevation drawings with the received data. Delivery time may vary depending on the project, but it takes 15-20 days on average

SOME OF 3D VISUALIZATION WORKS

3D modeling and visualization works that include interior and exterior renders with different perspectives are usually delivered within 1-4 days.

SOME OF 3D VISUALIZATION WORKS

3D modeling and visualization works that include interior and exterior renders with different perspectives are usually delivered within 1-4 days.

Turn static files into dynamic content formats.

Create a flipbook
Issuu converts static files into: digital portfolios, online yearbooks, online catalogs, digital photo albums and more. Sign up and create your flipbook.