

ELLIE NOLAN
ARCHITECTURE PORTFOLIO
RESUME
EDUCATION
Columbia University—Master of Science in Advanced Architectural Design expected May ‘26
Auburn University—Bachelor of Architecture May ‘25
Graduated Summa Cum Laude
EXPERIENCE
Tippett Sease Baker Architecture—Montgomery, AL
Architecture Intern—Summer ‘24
Supported the design and delivery of single-family residential projects through concept development, hand-drafted drawings, and construction documentation.
Collaborated closely with project architects to translate design intent into clear drawings across schematic design, design development, and construction phases.
Gresham Smith—Charlotte, NC
Industrial Architecture Intern- Summer ‘23
Assisted multidisciplinary project teams in producing detailed architectural drawings and construction documents in Revit for large-scale industrial facilities, including food and beverage plants and battery production facilities.
Supported the resolution of complex programmatic and technical design challenges, balancing operational requirements, coordination, and constructibility.
Collaborated with internal teams and consultants to support project communication, documentation standards, and timely project delivery in a fast-paced environment.
Hereford Dooley Architects—Nashville, TN
Architecture Intern- Summer ‘22
Collaborated directly with the Principal Architect on a residential renovation project, supporting design development and construction documentation in Revit.
Assisted in preparing Revit-based drawing sets and graphic presentation materials to communicate design intent clearly to clients and consultants.
Maintained a centralized project database supporting design research, code tracking, project coordination, and client management to streamline workflow.
HONORS / AFFILIATIONS / CERTIFICATIONS
WELL Accredited Professional
WELL-AP-0000180079
NYC Department of Buildings Opening Doors Building Accessibility Innovation Challenge Honorable Mention
The Architectural League of New York Member
SKILLS
Revit, AutoCAD, Rhino, Adobe Suite, Hand Drafting, SketchUp, Enscape
01 Professional Work
Hand-Drafted Residential Projects
Firm: Tippett Sease Baker Architecture
Location: Montgomery, AL
Time: Summer 2024
Supervisor: David Baker
Type: Single Family Residential
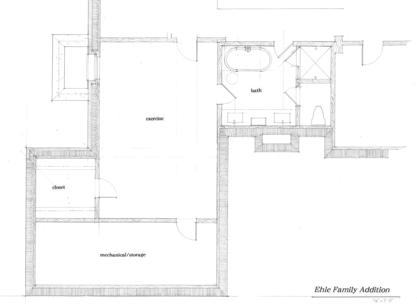
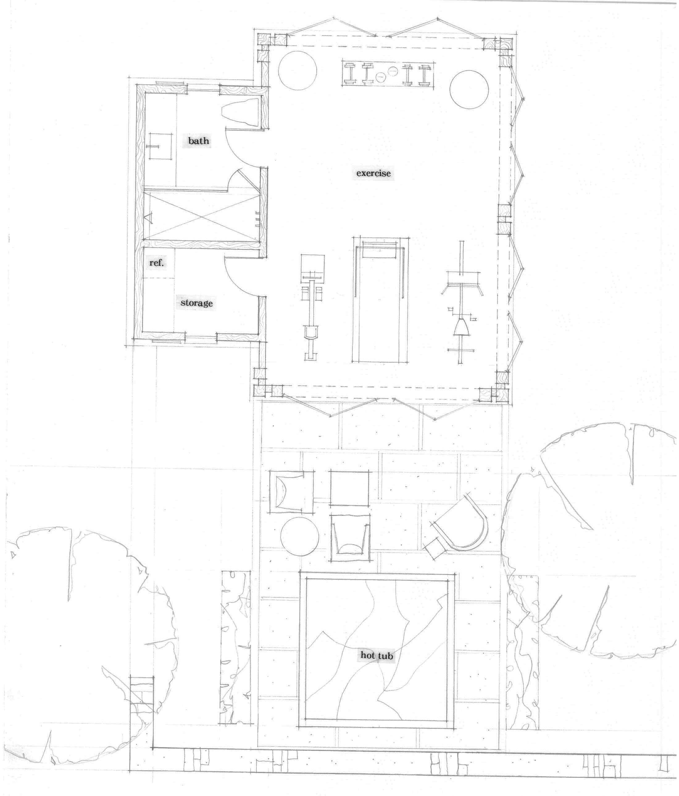
All work was completed as part of a team. My primary responsibility was in the area of representation. While the designs shown here are not my own, I selected the views and created the drafts. The interior perspectives represent a renovation project focused on the living and kitchen areas. These drawings were presented to the client as part of the schematic design phase.






Hand Drafting
These drawings come from several different projects, but each one was hand drawn by me. While the overall designs were developed collaboratively, I focused on producing the drawings as part of the representation process, using hand drafting as a way to clearly communicate spatial ideas and details.

02 Irish-American Museum
Adaptive Reuse of John Johanson’s US Embassy
Location: Dublin, Ireland
Instructor: Jorge Otero-Pailos and Mark Rakatansky
Partner: Valentina Lizcano
Time: Fall 2025
Software: Revit, Rhino, AutoCAD, Photoshop, D5
Type: Adaptive Reuse
Size: 50,000 sf
The Irish–American Heritage Museum reimagines John Johansen’s 1960s U.S. Embassy in Dublin as a living monument to migration, labor, and resilience. Through adaptive reuse, the project explores how a building once defined by diplomacy can become a public space of reflection and creation. Visitors move through a sequence of galleries that unfold themes of immigration, material, labor, resilience, religion, and the future, each expressed through shifts in light, texture, and sound. Thick concrete walls rise through the structure to unify reading rooms, workshops, and gathering spaces, while a copper stairway weaves through a central void filled with natural light. The upper floors host workshops and classrooms that extend the museum’s narrative of making into active practice. These spaces operate as a membership-based artist collective that offers classes in metalwork and craft, generating revenue while fostering cultural exchange. In doing so, the museum continues Johansen’s investigations of aggregation and contained circulation, translating them into spaces for collective memory, education, and creative production. It asks how adaptive reuse can transform a site of power into a place of belonging and how architecture can sustain itself as both cultural institution and working studio.





The layered stone facade reveals the building’s material logic, shifting from smooth to rough like an exposed geological cut, preparing visitors for a descent into the museum where stories of extraction are uncovered below ground.
Facade Collage:
Museum
The studio included a curatorial component, requiring each object in the museum to be carefully selected and researched. The museum begins with Immigration, where visitors descend beside the embassy wall, surrounded by famine artifacts that speak to loss and departure and set the stage for the Irish journey to America. In Material, rough stone, board-formed concrete, and timber walkways ground visitors in the physical world of extraction, while objects such as copper samples and mining picks trace a lineage from ancient craft to industrial labor. The Labor, Resilience, Religion, and Future galleries continue this narrative of endurance, faith, and transformation, honoring those who turned struggle into solidarity while looking ahead to renewal through education, making, and the preserved presence of Johansen’s original façade.



1916–1919, Butte, Montana

12 Ellie Nolan
A Tribute to the Irish Community
Amanda Jane Graham
Perspective A
Perspective B Perspective C

Section Perspective highlighting program stacking

- Basement: material archive and theater
- Ground Floor: museum
- 1st-3rd: classrooms and workshops

Basement Floor Plan

From the museum, visitors rise through a central atrium, a vertical vein of light that anchors the building. A copper stair winds upward through the embassy’s internal façade, linking the museum, library, theater, and workshops. As sunlight filters through the clerestory, movement becomes a spatial narrative where ascent itself feels like illumination.


Perspective from 2nd floor looking down through atrium
Upper levels are organized as a revenuegenerating maker space, combining workshops and archival areas to support research, fabrication, and public use.


Ellie Nolan

2nd
03 Connecting the Dots
Human Imprints on Dartmoor’s Landscape
Location: Devon, England
Instructor: Elise Misao Hunchuck and Marco Ferrari
Partner: Jason Li
Time: Summer 2025
Software: GIS, Photoshop
Type: Speculative Environmental
This project examines Nancy Holt’s Trail Markers series to reveal the hidden interventions that shape seemingly natural landscapes. Holt’s twenty archival inkjet prints document a trail between Two Bridges and Wistman’s Wood in Dartmoor, England. By following the orange marks that guide walkers, her work exposes how human actions, permissions, and environmental management construct what we perceive as nature.
Building on this, the project asks how humans adapt the landscape through architecture. How does design change the way we move through and experience terrain? How can built forms like paths or shelters balance coexistence with control? Through models and visualizations, the project explores architecture as both a tool for adaptation and a force that redefines what is natural.
Peepholes frame curated views of past, present, and imagined futures, prompting reflection on how design mediates access and belonging. A scaled map of Dartmoor layers official routes with evidence of extraction, infrastructure, and shifting boundaries, revealing the environmental and political costs of human adaptation.
Together, these representations question how architecture participates in landscape-making and how humans continually reshape the natural world to fit evolving needs and desires.


The two maps show Dartmoor National Park as it presently is and how we see the landscape in 2025. This isn’t just a navigational tool, it’s an interpretive lens. We’ve layered official hiking paths with historical traces of land use such as medieval farmsteads, abandoned mines, sheepfolds, military zones, and archaeological remains. It also includes ecological overlays including areas of degraded heather moorland, damaged peatlands, Molinia dominance, and trails impacted by overuse.
We draw attention to how accessibility through tourism and the right to roam creates both connection and strain on the land. Paths erode and habitats shift, yet these movements keep Dartmoor alive in the cultural imagination. The landscape remains adaptable, continually reshaped by human movement and ecological change as it balances access and preservation.


Environmentally Sensitive Area
Limestone with Sandstone
Mafic Igneous-rock
Mafic Lava
Mafic Lava and Mafic Tuff
Mafic Tuff
Mudstone and Sandstone
Peat Soil Wetland River Woods Grass Priority Habitat
Map of Dartmoor National Park - 2025
Map of Wistman’s Wood Trail - 2025
Clay, Silt, Sand and Gravel
Felsic-Rock
Limestone and Mudstone
Ellie Nolan


Sand, Silt and Clay
Sandstone and Conglomerate
Roads and Motorways
Path
Trail
Wetlands
Buildings
Quarries
Trail Markers
Trail Marker Connectivity
Map of Dartmoor National Park - 2050
Map of Wistman’s Wood Trail - 2050
FUTURE:
We envision Dartmoor once again flourishing as a vibrant, biodiverse landscape, rich in woodlands, grasslands, upland heaths, blanket bogs, mires, and meadows, alive with a diversity of plants, trees, insects, birds, and mammals. Our vision for a balanced Dartmoor includes natural grazing, peatland restoration through re-wetting, and reforestation, creating conditions that support the return of beavers, wild boar, and other vital ‘ecosystem engineers.’ Restored woodlands would help rebuild natural habitats, address biodiversity loss, and mitigate climate change.
PRESENT:
Dartmoor today is a living landscape of contrasts where human use and natural processes continuously intersect. The moor’s open expanses, granite tors, and rolling heaths attract walkers, farmers, and conservationists alike, creating a space where recreation, agriculture, and ecological restoration coexist. It faces ongoing challenges such as overgrazing, soil erosion, and pressure from tourism, yet it remains a crucial habitat for rare species and an important carbon store. Current conservation efforts aim to balance these competing interests, promoting sustainable land management while preserving the cultural and ecological richness that defines Dartmoor.
PAST:
We envision Dartmoor once again flourishing as a vibrant, When Nancy Holt created her Trail Markers series in 1969, Dartmoor was undergoing change. The National Park had recently opened the moor to more visitors while farming and military use continued. Increased sheep grazing after the war had begun to reshape the land’s ecology. Holt’s orange trail marks revealed Dartmoor as both a site of ecological transformation and a cultural construction—an environment shaped as much by human decisions as by geology and weather.



Ellie Nolan

04 Synthetic Oasis
Responding to Austin’s Urbanism
Location: Austin, TX
Teacher: Ernesto Bilbao
Time: Fall 2023
Software: Rhino, AutoCAD, Photoshop, Enscape
Type: Museum
Size: 69,640 sf
This art museum sits one block east of the state capitol and beside Waterloo Park, positioned within a landscape of open green spaces that often lack shade or places to gather. Working first as a team on a master plan and then individually on the building, our studio explored how urban architecture can express adaptability through form and use. The design integrates galleries, a theater, classrooms, a library, and a food court around a central space defined by a light canopy. Composed of a woven grid of Glulam columns and beams, the canopy filters light and recalls the park’s natural textures while offering flexibility for events, exhibitions, and informal rest. The surrounding structures slide beneath this roof, forming an adaptable threshold that can shift between civic plaza, outdoor gallery, and shaded commons. The project asks how museums can evolve beyond static containers of art to become responsive, restorative public spaces.

Perspective from entrance to oasis courtyard




All work on master-plan was completed in a group with Meghan Ferguson and Trenton Williams. The work of designing and representation was split evenly among the three group members. The master plan to the right depicts downtown Austin, TX. The 15 blocks are re-imagined to redefine the path of pedestrians to the inside of blocks, rather than sequestered to the perimeter. The gray buildings are existing and the white buildings are new additions. The axons highlight specific blocks and the pedestrian movement through the center. The Art Museum design was an individual project.
Ellie Nolan

Above: Process diagrams of oasis columns
Below: Worm’s eye axonometric highlighting shape of columns in relationship with buildings
Key:
10: Dance Studio
20: Music Classroom
30: Office
40: Museum
50: Theater
60: Lobby
70: Food Court

Elevation and sections highlighting the arched oasis and its relationship to the buildings

Ellie Nolan







Ellie Nolan


05 (Dis)Abling Spaces
The Architectural Experience of Deafness
Location: Mackworth Island, ME
Teacher: Christian Dagg
Time: Spring 2025
Software: Rhino, AutoCAD, Illustrator, Photoshop
Type: Educational
Size: 14,000 sf
(Dis)Abling Spaces is an architectural thesis that examines how design can move beyond basic accessibility to enrich the lived experience of Deaf and Hard of Hearing individuals. Located on Mackworth Island, Maine, the historic home of the Governor Baxter School for the Deaf, the project draws on phenomenology, DeafSpace guidelines, and personal experience to propose a community focused building centered on sensory awareness and visual communication. Through five guiding strategies sense of place, proximity, mobility and transparency, light and color, and acoustics the design creates an inclusive environment that supports learning, gathering, performance, and public engagement while reinforcing the cultural and social presence of the Deaf community within the landscape.


Design Guidelines
Drawing on phenomenology, DeafSpace principles, and personal experience, I identify five key strategies to support the Deaf and Hard of Hearing communities. These concepts shape the design through sense of place, proximity, mobility and transparency, light and color, and acoustics, guiding the creation of spaces that enrich and energize occupants while fostering inclusivity in Falmouth, Maine.
Sense of Place
- Use of natural elements
- Views of landscape
- Engagement with senses
- Reverberation time


Proximity - Proxemic requirements of Deaf community - Hallways with conversation nooks - Circular seating

36 Ellie Nolan
Mobility and Transparency
- Circulation
- Rounded corners
- Transparency around doors
Light and Color
- Enough light to read sign language
- Multiple light sources
- Colors are muted and contrast all people

Acoustics
- Minimize background noise
- People are not spread out
- Irregular rooms


Right: Ground Floor Plan
Below: Process Diagrams highlighting how the overall shape evolved. As part of my process, I constructed watercolor perspectives to study lighting and roof conditions.






Ellie Nolan




Main vehicle road
Ellie Nolan



Stabilized trodden path and beach
06 Industrial Individualism
Location: Columbus, Georgia
Instructor: Christian Dagg
Time: Fall 2024
Software: AutoCAD, Rhino, Photoshop
Type: Multi-family Residential
Size: 53,660 sf
The married student housing at Columbus State University provides accommodations tailored for graduate students while raising questions about adaptability in architecture. Positioned between the Chattahoochee River and Columbus’s historic brick industrial buildings, the project explores how new construction can respectfully engage its context while remaining flexible for future needs. The design reflects its surroundings through brick façades and a mass timber structural system that allows for reconfiguration over time. Three separate buildings frame a central courtyard and open toward river views, balancing collective and private life. Point-load circulation and irregular window placement give each resident a sense of individuality and ownership, while the continuity of materials and proximity of forms create a shared identity. The project asks how adaptable housing can evolve with changing social patterns and how architecture can remain rooted in place while open to transformation.
Perspective illustrating access from the river-walk, linking the central courtyard with the riverfront path

Married Student Housing

Above: Second floor plan showing the units assigned to each building
Ground floor plan illustrating how the buildings define and enclose the exterior space
Right:
44 Ellie Nolan


Studio
One Bed
Ellie Nolan


Two Bed ADA Unit
Above: Section showing the irregular window pattern and the shifting floor plans
Above: Transverse section of one-bedroom building and elevation of two-bed-room building



Ellie Nolan
Above: Perspective from southeast corner

Below: Process sketches used to design the above perspective


Models and Drawings




Ellie Nolan



