Ebenezer Haile - Portfolio

Page 1

EBENEZER HAILE

Selected Works 1
Ebenezer Haile 2
Selected Works 3

“Creativity Leads to Innovation in Kids” A Creative Learning Center 2022

Ebenezer Haile 4 CLIK

The CLIK Center is set to challenge the meaning of what an after school program / community center looks like today. CLIK will be intentionally designed for users to come together to create, self express and spend quality productive time outside of their homes or schools.

Selected Works 5

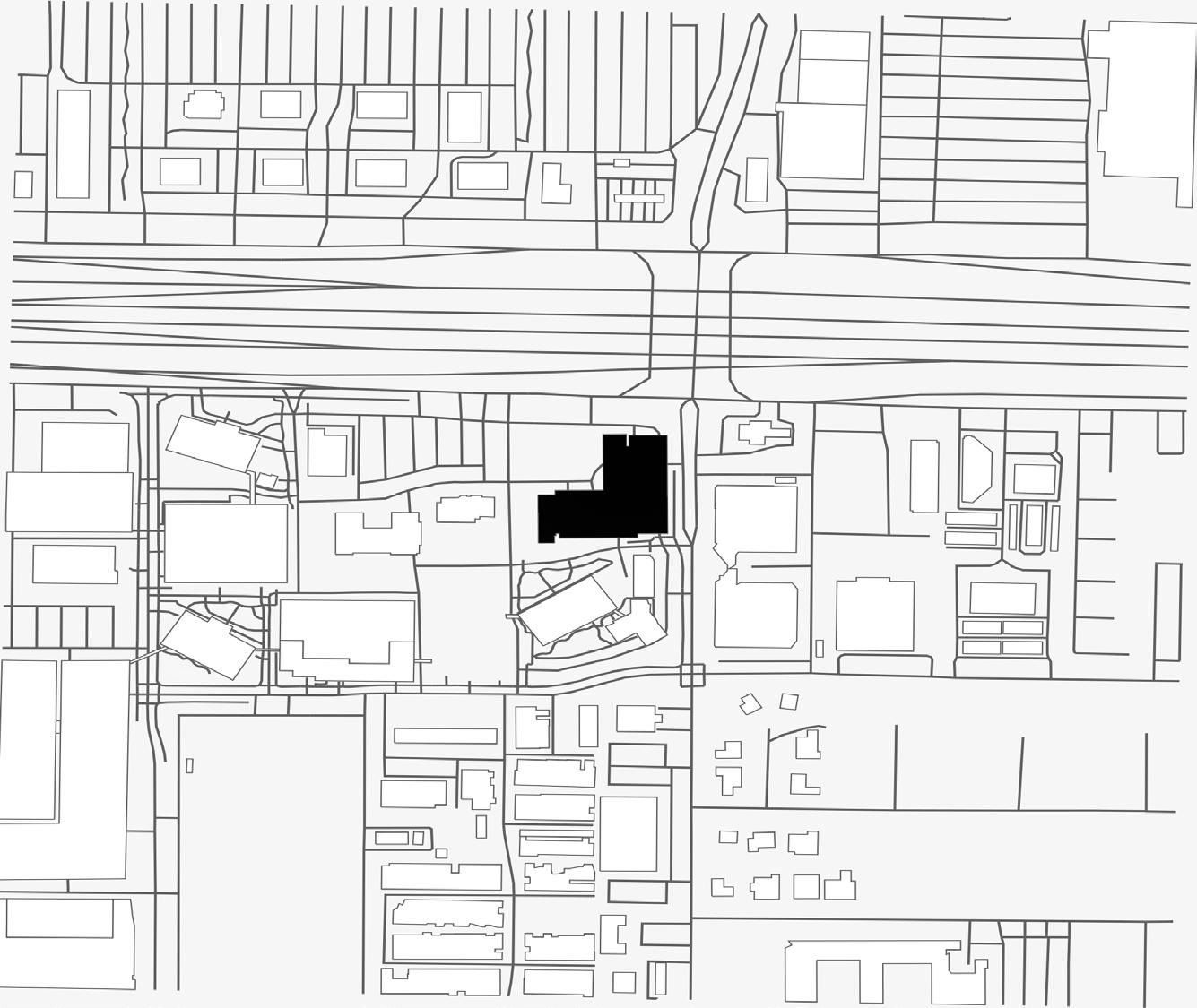
SCHEMATIC SITE PLAN

SCHEMATIC EXTERIOR

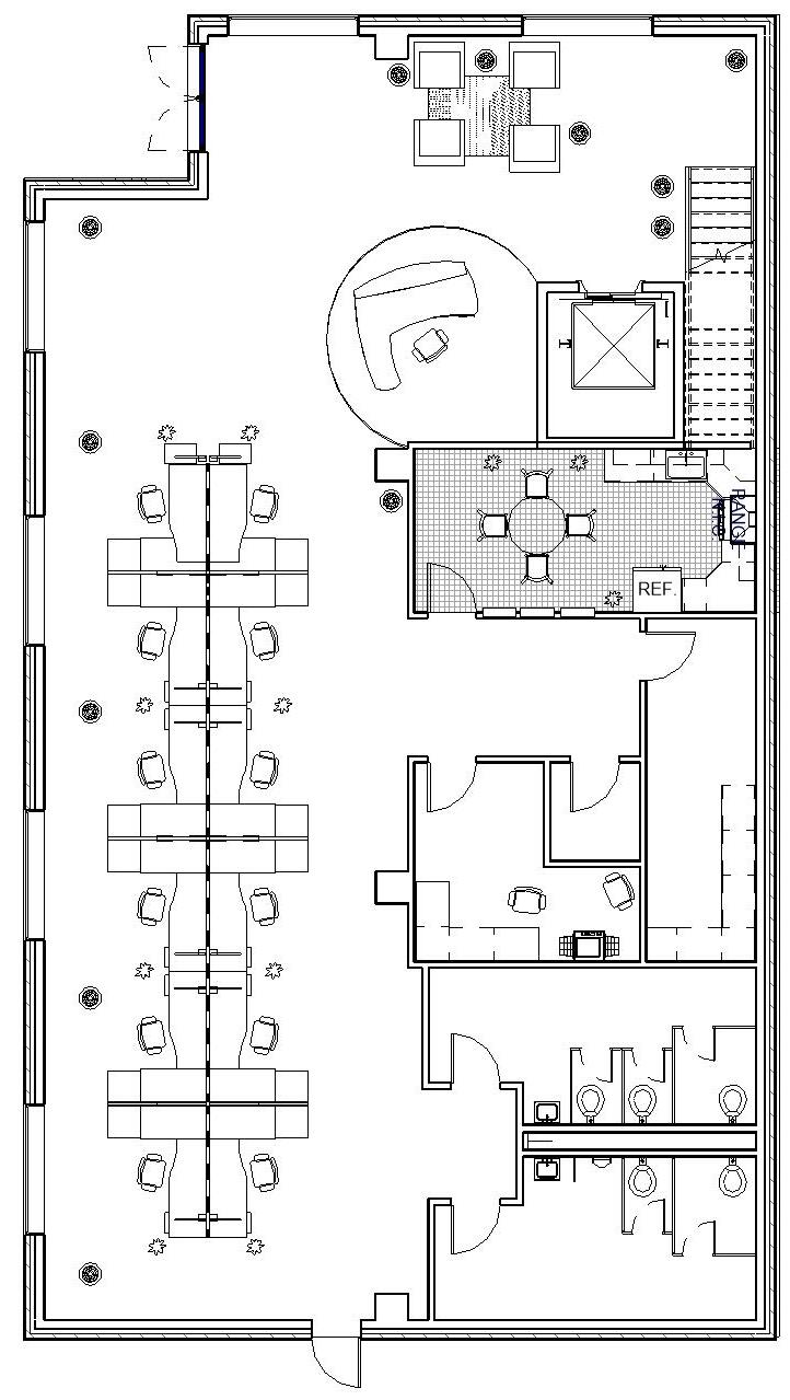
SCHEMATIC FLOOR PLAN

Ebenezer Haile 6
3018 Emancipation Ave Houston, TX 77004
CLIK
A CREATIVE CENTER
Selected Works 7
Ebenezer Haile 8
Selected Works 9
Ebenezer Haile 10
Selected Works 11

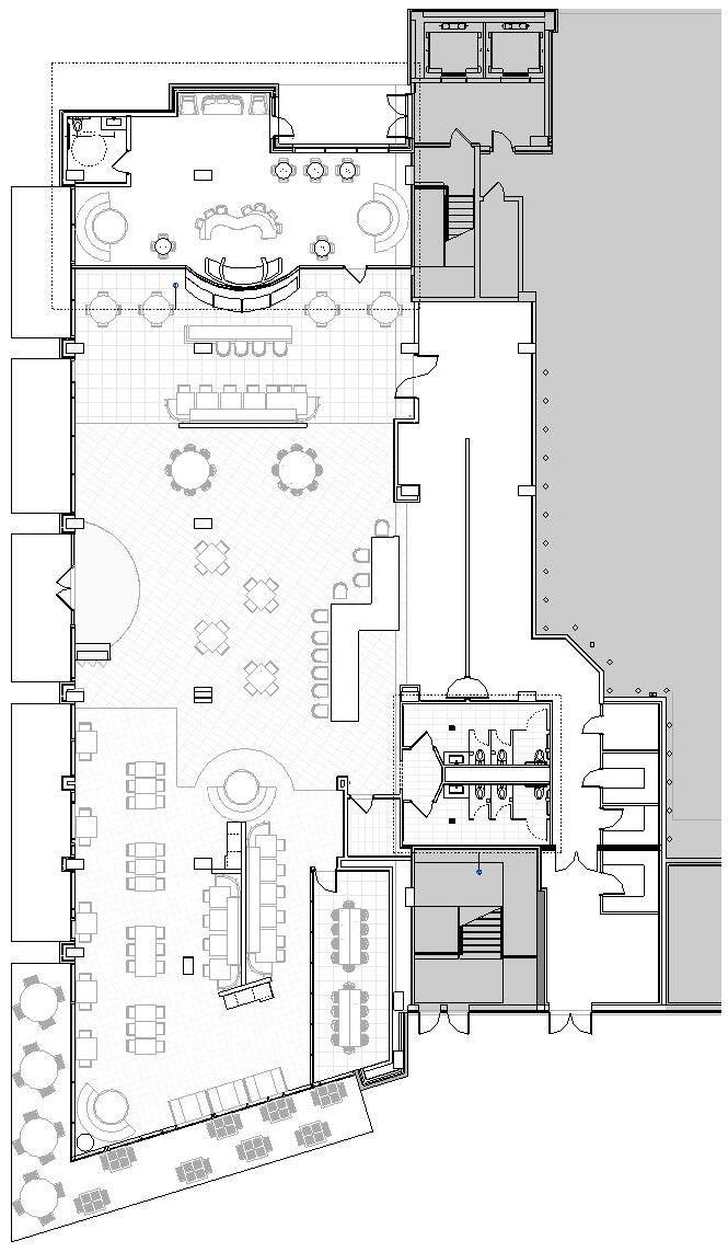
GOODE KITCHEN 2022

Goode is a fine dining experience curated for Levi Goode that focuses on balance. Balance because, as the world progresses, we have lost the appreciation for balance and stability of good. We have adopted the extremes of “great” of “terrible” as the norm / parameters of expression. But that balance or middle ground of “good” is what is perfect. Whilst alluding to the family name and the simple yet tasteful design concept, this is Goode by Levi Goode.

Ebenezer Haile 12
9757 Katy Fwy, Houston, TX 77024
Selected Works 13
Ebenezer Haile 14
Selected Works 15
Ebenezer Haile 16
Selected Works 17

NATURAL DISASTER MUSEUM

The Natural Disaster Museum is a dynamic and immersive space dedicated to exploring the science and human impact of natural disasters. Through interactive exhibits, educational programming, and engaging displays, visitors will gain a deeper understanding of the causes and effects of natural disasters and the measures we can take to prepare for and mitigate their impact.

Ebenezer Haile 18
1708 San Jacinto Blvd, Austin, TX 78701
Selected Works 19
Ebenezer Haile 20
Selected Works 21
Ebenezer Haile 22
Selected Works 23
Ebenezer Haile 24
Selected Works 25
Ebenezer Haile 26

THEATRE ROOM

LIBRARY

Selected Works 27

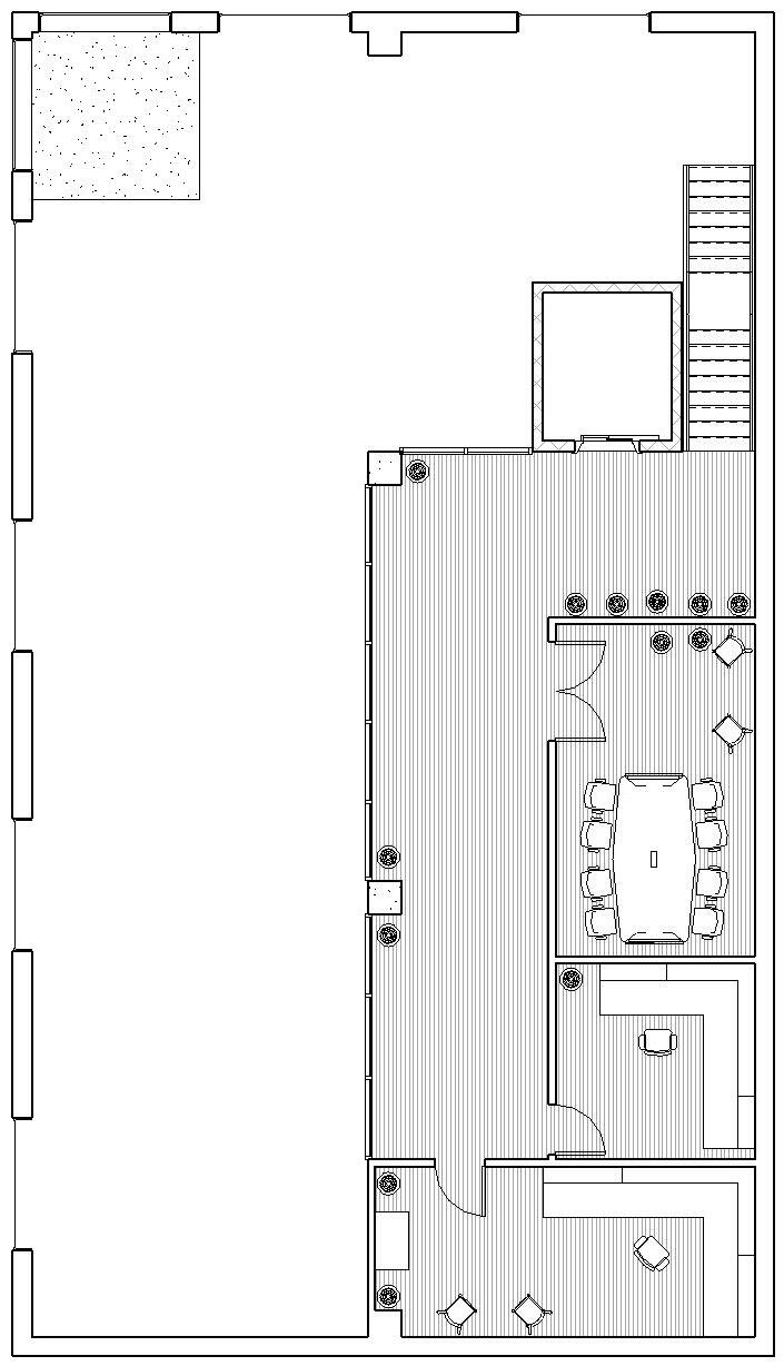
COMMERCIAL OFFICE BUILDING

The spatial concept that developed here is intended to create a welcoming and uplifting atmosphere. The design aims to cultivate positivity, interactivity, and luminosity, providing a space that is both inviting and energizing.

Ebenezer Haile 28
956 Grove Blvd, Austin, Texas
Selected Works 29
Ebenezer Haile 30
1
LEVEL
Selected Works 31

LEVEL 2

Ebenezer Haile 32
Selected Works 33
Ebenezer Haile 34
Selected Works 35
Ebenezer Haile 36 Ebenezer Haile 832-449-9760 Ebenmhaile@gmail.com THANK

THANK YOU

Selected Works 37

Turn static files into dynamic content formats.

Create a flipbook
Issuu converts static files into: digital portfolios, online yearbooks, online catalogs, digital photo albums and more. Sign up and create your flipbook.
Ebenezer Haile - Portfolio by ebenhaile - Issuu