Skip to main content

Portfolio

Page 1

Email: easson.shen@gmail.com

Phone: 021 126 4046

Linkedin: https://www. linkedin.com/in/chenyi-shen740b3322a/

CHENYI (EASSON) SHEN

Having graduated in Urban Design and Landscape Architecture, my enthusiasm lies in crafting sustainable and healthy environments that benefit both humanity and our planet. Hailing from Changzhou, China, a city steeped in the history of classical Chinese gardens, I possess a profound interest in the traditional garden styles of both the East and the West.

Given my passion for camping, reading, and traveling, I seek inspiration from these experiences to infuse creativity into my work. Whether it’s integrating elements from my journeys or drawing from the tranquility of camping, I aspire to create urban landscapes that resonate with both cultural significance and modern sustainability.

BIO
LINWOOD RE-IMAGINED
02 01 03 PLAY
THE
SHIFTING THE NORMAL FOR ALBANY
UNDER
SHADE

HAND DRAWING

04 05 06
FOOT BRIDGE DESIGN & PLANTING PLAN WORK EXPERIENCE
1
1

1

SHIFTING THE NORMAL FOR ALBANY

FOR ALBANY 1

SHIFTING THE

NORMAL

SHIFTING THE NORMAL FOR ALBANY 1

VISION

Albany centre will become a low emission neighbourhood with a high quality living and working environment to create a sense of belonging for the community.

KEY MOVES

High quality of living and working

• Promote the density to support the existing amenities and accommodate more population on site.

• To create an active streetscape by improving the experience in the street.

• To create comfortable and active public/private interface for ground floor units.

Sustainable, low-emission development

• Expand existing Albany Bus Station into a TOD development to encourage of using public transport.

• To create a walking and cycling friendly environment to ease the dependence on private vehicle traffic.

• Make the most of the existing infrastructure

Sense of belonging

• To improve the green connection with the surrounding natural landscape.

• To promote the activities of all age groups to unite the community.

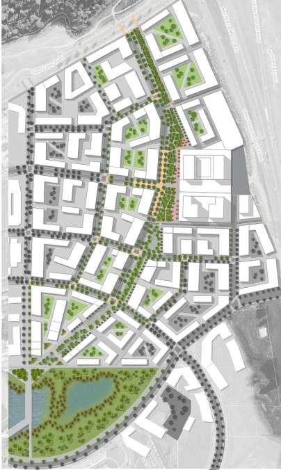
0 10 30 70 150m N
STRATEGY 24 storey 12 storey 7 storey 6 storey 4 storey 24 storey 20 storey 12 storey 7 storey 6 storey 4 storey TOD - POINT BLOCK GROUND LEVEL High density residential Office Albany Bus Interchange Auckland Light Rail (Albany station) Retail
COURTYARD BLOCK
HEIGHT
RESIDENTIAL -

1

SHIFTING THE NORMAL FOR ALBANY

LAND USE (GROUND FLOOR)

MOVEMENT

LAND USE (UPSTAIRS)

OPEN SPACE

TOD Metropolitan residential PARKING STRATEGY STORMWATER ANALYSIS 20m 18m 16m 12m 18m (bus, pedestrian and cyclists only) Vehicle free zone Walking and biking access Bus route Commercial - Retail Residential Commercial - Office Transit Car park Existing buildings Natural reserve Civic space Key connection Sidewalk Key access Inner block access TOD

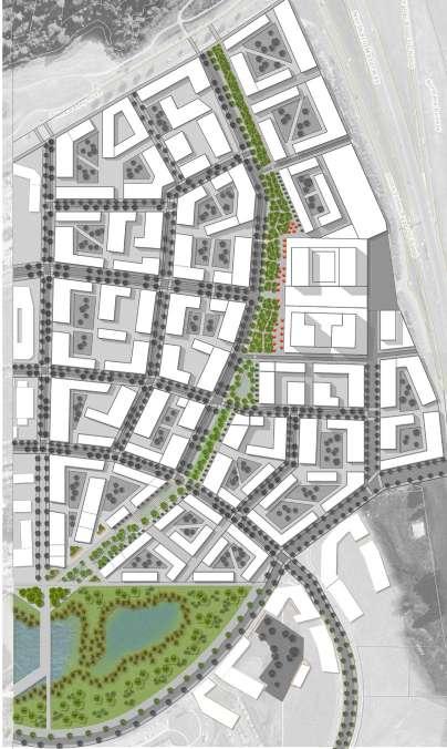
STREET TYPOLOGY

20m street and linear park

20m 4m 3.5m 3.5m 4m 2.5m 2.5m 4m 4m 2.75m2.75m 2.5m
4.5m 3.5m 3.5m 4m 2.5m
3.5m 2.5m 2.5m 3.5m
4m 12 storey building 24 storey building with 3 storey podium 4m 2.5m 7m 4m 4m 7m 5m 2.5m
20m street Linear park
16m
18m
12m

SHIFTING THE NORMAL FOR ALBANY 1

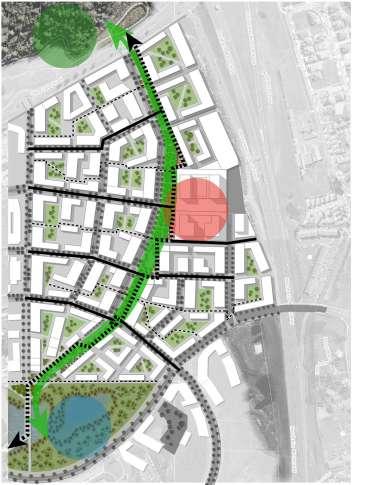
STAGE 1 - Linear park STAGE 3 - Residential blocks along the park STAGE 2 - TOD STAGE 4 - Residential blocks

PLANT PALETTE

DETAIL PLAN
Cabbage tree Pohutukawa Lancewood Harakeke Titoki Manuka Pin oak Carex secta North Island Kowhai Nikau palm
1 1 2 2 3 3 4 4 5 5
View Shaft Analysis

LINWOOD RE-IMAGINED 2

VISION

Linwood Park – Eastgate Mall will become a diverse and eclectic community hub with a strong community identity, enhanced transport connections, and regenerated natural landscape to make it a place called home.

Christchurch central city Maximum walking distance Student cycling distance Daily cycling distance
Philipstown Waltham
Port Hills AvonRiver HeathcoteRiver
Richmond
Linwood 0.4km Suitable walking distance 5min Avonside 5min 5min 10min 10min 1.0km 2.0km Woolston Wainoni Avondale Bromley Aranui

CHRISTCHURCH CITY CONTEXT GREEN NETWORK SYSTEM

Christchurch city centre Port Hills Sumner Northern Christchurch New Brighton Site location
PUBLIC TRANSPORT NETWORK CYCLEWAY NETWORK
LEGEND 5 Rolleston-New Brighton Interval:10min 155 Eastgate-Lyttleton Interval:30min 140 Russley-Sumner Interval:15min Existing cycleway Proposed cycleway Orbiter a/c Interval:15min 80 Lincoln-Parklands Interval:15min 10min 15min 4.0km Bromley Avon-Heathcote Estuary Aranui Bexley New Brighton Wildlife habitat Rural area Stepping stone patch Suburban Central city Wildlife movement Wildlife movement Existing green space Proposed green space Rivers Existing community gardens Proposed community gardens Flood flow Regional Plan Scale 1:20000 @ A1

LINWOOD RE-IMAGINED 2

DESIGN INTENT

The area of the intermediate plan is located in Linwood Park. The design was driven by creating a playful experience through the site. Nature not only inspired the design but also being part of it. The design encourages users to be creative and adventurous and enjoy nature and sports.

4 5 6 1 2 3
9
4 5 6 1 2 3 7 7 8 8 9 0.00 0.00 -1.00 -1.00 33% 20% -2.00WL 0.00 0.00 0.00 1.00 2.00 3.00 4.00 4.50 30% 27.0% 27.0% 0.5% 0.00 0.00 0.00 0.00 0.35 1.00 1.00 0.35 0.00 0.00 0.00 0.00 -0.15 -0.15 -0.17 -0.17 -0.17 -0.20 -0.17 -0.17 -0.17 0.00 4.10 4.10 -0.03 -0.03 -0.15 -0.30 -0.35 -0.40 -0.45 -0.50 -0.55 0.00 0.00 0.00 0.00 -0.10 0.10 -0.10 0.10 0.00 3.50 4.35 Intermediate Plan Scale 1:500 @ A1

LINWOOD RE-IMAGINED 2

DESIGN INTENT

The detail design shows the area of Sand dune Playground. The design is aimed to reflect the sand dune landscape with vegetation, landform, colour palette, and activities. A water management system will be introduced to make the most of the water in the playground.

-0.55 -0.53 -0.52 -0.53 -0.52 -0.53 -0.52 -0.22 -0.55 -0.55 -0.55 -0.55 -0.25 0.00BM 0.00 0.00 0.00 0.00 -0.23 -0.23 -0.13 -0.02 -0.03 -0.13 -0.15 -0.12 0.00BP -0.50 -0.50 -0.45 -0.45 -0.45 -0.10 0.30 -0.10 -0.15 -0.50 -0.43 -0.43 -0.43 -0.22 -0.12 -0.12 -0.05 -0.15 -0.15BP -0.10BP -0.52BR -0.44BR -0.46BR -0.44BR -0.44BR -0.52BR -0.13BP -0.15BP -0.15BP 0.40BC 0.45BC 0.00BC 0.10BC -0.05BP -0.02BP -0.13BP -0.13BP -0.12BP -0.10BP -0.10 -0.25 -0.25 -0.25 -0.15 -0.20 -0.15 -0.13 1.0% 1.0% 1.0% 1.0% 1.0% 1.0% 3.0% 3.0% 3.0% 3.0% 3.0% 3.0% 3.0% 3.0% 3.0% 3.0% 3.0% 3.0% 1.0% 1.0% 1.0% 1.0% 1.0% 3.0% 4.0% 1.3% 1.0% 1.0% 1.5% -0.05TP -0.05TP -0.12TR -0.04TR -0.07TR 0.08TR 0.10TR -0.22TR -0.05TP 0.00TP 0.05TP 0.45BIC 0.50BIC 0.40BIC 0.15BIC 0.57TEC 0.62TEC 0.52TEC 0.28TEC 0.05TP 0.05TP 0.05TP 0.07TP 0.07TP 0.00TP 0.40TP 2.0% BM Bench Mark 0.00 BP Bottom of Planter TP - Top of Planter BS- Bottom of Slide SS - Surface of Slide TH - Top of Handrail BL - Bottom of Ladder TL - Top of Ladder BR - Bottom of Rock TR - Top of Rock BPS - Bottom of Play Step TPS - Top of Play Step TEC - Top of Edge of Channel BIC - Bottom of Inner Channel BC Bottom of Channel A 1 2 3 3
Detail plan scale 1:100 @ A1 -0.12 0.35 -0.03 -0.42 -0.42 -0.42 -0.41BR -0.02BP -0.12BP 3.0% 1.2% 0.10TR 0.05TP 0.07TP 0.00BM 0.00 0.00 0.00 0.00 0.00 0.00 -0.10 -0.10 -0.12 0.00 0.00BS 4.50BS 3.00BL 1.50BL 0.00BL 3.50BS 3.50BS 0.00BP 0.00BP 0.35 -0.40 -0.38 -0.40 -0.40 -0.38 -0.38 -0.08 -0.08 0.02 -0.37BR -0.41BR 3.80BPS 0.41BPS 3.10BPS 3.50BPS 1.50BPS 3.25BPS -0.37BR -0.37BR 0.02BP 1.0% 1.0% 3.0% 3.0% 3.0% 3.0% 1.0% 0.8% 0.03TR 0.10TR 4.00TPS 0.10TPS 3.30TPS 3.70TPS 1.70TPS 3.45TPS -0.07TR 0.07TP 0.45TP 0.45TP 0.20SS 4.60SS 3.05TL 1.55TL 0.05TL 3.55SS 3.55SS 0.40TH 4.80TH 2.75TH 2.75TH 25.0% 80.0% 40.0% 15.0% 20.0% 35.0% 4.50 4.00 4.00 3.50 3.50 3.00 3.00 30.0% 30.0% 10.0% 10.0% 30.0% 30.0% 2.50 2.50 2.00 2.00 1.50 1.50 1.00 1.00 0.50 0.00 10.0% 10.0% 1 2 A' A'
Dust fill from the work of naturalising Linwood Canal

LINWOOD RE-IMAGINED 2

Street corridor

The green corridor along Linwood Ave and Tuam St was proposed To enhance the connection between Avon/Heathcote Estuary, Linwood, Avon River and Hagley Park. The plants in this area need to be hardy and tolerant to the pollution from the road. The plant selection contains exotic and native species. The fast-growing street trees would provide shade/shelter to the road users for a short time before the native species matures. The native plants were proposed to provide food to the wildlife and attract them to move along those corridors.

Waterway corridor

To improve the water quality of Linwood Canal and Heathcote River, the two waterways with several issues on water quality in Christchurch and deal with flood threat in the catchment of Heathcote River. The plant selection is focussed on native riparian plants following the instruction of Riparian zones: A guide to the protection of Canterbury's rivers, streams and wetlands from Environment Canterbury Regional Council. The plant species are divided into groups of margin, Lower bank and upper bank according to the distance from the water.

GREEN NETWORK

On the regional scale, the strategy shows how the green network was enhanced by improving the street corridor along Linwood Ave and Tuam St, the waterway corridor along Linwood Canal and Heathcote River and encouraging on growing of more native plants in the backyard and schoolyards.

Backyard/schoolyard patch

The site is surrounded by residential areas and has seven educational institutions 4km from the site. It occupies a significant proportion of the extent of Christchurch, in which the plant species are not selected with considering ecological benefits but aesthetic values. The schoolyard and backyards will form the biggest patch in the city by encouraging the residents and school to plant more native species.

Quercus palustris Pin oak Phormium cookianum NZ mountain flax Typha orientalis Bulrush Cordyline australis Cabbage tree Coprosma repens Mirror bush Sophora microphylla Kōwhai Leptospermum scoparium Manuka Olearia solandri Coastal daisy bush Pseudopanax arboreus Five finger Podocarpus totara Tōtara Aristotelia serrata Wineberry Ileostylus micranthus NZ mistletoe Leptospermum scoparium Manuka Carex secta Pukio Phormium tenax NZ flax Libertia ixioides New Zealand iris Coprosma propinqua Mingimingi Hebe salicifolia Koromiko Pachystegia insignis Marlborough rock daisy Hebe ‘Wiri Mist’ Hebe Quercus robur English oak Sophora microphylla Kōwhai Libertia grandiflora Mikoikoi Apodasmia similis Oioi
N N N N N N N N N N N N N N N N N N N N N N E E
Margin Lower bank Pittosporum tenuifolium Black matipo Pittosporum tenuifolium Black matipo Dodonaea viscosa Hopbush Sophora microphylla Kōwhai
N N N N N
Libertia ixioides New Zealand iris
Upper bank
Kowhai Manuka Black matipo Kowhai Cabbage tree Pukio Manuka NZ flax Bulrush Pin oak English oak Kowhai NZ iris Hebe wiri mist

LINWOOD RE-IMAGINED 2

URBAN FOREST

Kahikatea – kereru manatu, lush, older plains ecosystem, was identified in Christchurch Ecosystem Map by Lucas Associates based on the soil types. The plant species in this area need to be suitable/tolerant to wet Taitapu/deep silt soil. Linwood Park is aimed to create an urban forest by integrating the proposed native plants and existing exotic trees with good conditions. The urban forest will be the stepping stone patch and habitat for wildlife.

Cordyline australis Cabbage tree Dacrycarpus dacrydioides White pine Alectryon excelsus Titoki Melicytus micranthus Shrubby mahoe Aristotelia serrata Wineberry Leptospermum scoparium Manuka Podocarpus totara Tōtara Pittosporum eugenioides Lemonwood Prumnopitys taxifolia Black pine Prumnopities ferruginea Miro Melicytus ramiflorus Mahoe Pseudopanax arboreus Fivefinger Pittosporum eugenioides Black matipo Plagianthus regius Lowland ribbonwood Pseudopanax crassifolius Lancewood Myrsine australis Red mapau Fuchsia perscandens Climbing fuchsia Griselinia littoralis Broadleaf Coprosma propinqua Mingimingi Coprosma robusta Karamu Sophora microphylla Kowhai Ileostylus micranthus NZ mistletoe Schefflera digitata Seven finger Carex secta Pūkio
N N N N N N N N N N N N N N N N N N N N N N N N
STAGE 1
STAGE 2 STAGE 3

LINWOOD RE-IMAGINED 2

PLAYFUL LANDSCAPE ARTIFICIAL PLAY

PLAYING WITH WATER

The play features were mostly customised. The ones that the local suppliers could not provide would be replaced with their existing products with similar functions.

PLAYING WITH LANDFORM

Tree logs Source: Existing trees with poor conditions and birch trees from the site clearance Timber boards Kwila boards Source: One Stop Deck Shop Pre-cast concrete channels Source: Wilco Precast Natural rock Source: Urban Paving Climbing Hold Source: Water play gate Source: Playground Centre H4 treated pine logs Source: Playground Centre Basket swing Source: Playground Centre Standard swing Source: Playground Centre Manila Climbing Rope Source: Again Faster Equipment Stainless steel Custom stainless steel slide Source: Playground Centre Stainless steel Custom stainless steel slide Source: Playground Centre Archimedes skew pump Source: Playground Centre
NATURAL PLAY

STRUCTURE

LIGHTING

CUSTOM DRAIN COVER

PERGOLA

FURNITURE

SPECTATOR SEAT

CONCRETE BENCH

STREET GALLERY

KEAS LANE

PALLET SEAT

LINWOOD CULTURE
During the day During the day During the night During the night
Recycled timber from damaged pallets Source: Eastgate Mall Custom stainless steel frame Source: Logic Street Scene Used and damaged timber pallets Source: Eastgate Mall Recycled Timber from demolished fences Source: Fence demolition in the residential area Pre-cast concrete base for seating/edges of planter Source: Wilco Precast SunTuf Source: Place Makers PVC roofing Timber rafter Timber joist Timber beam Timber post Recycled posts and beams Source: Hard Wood Timbers New Zealand

PLAY UNDER THE SHADE 3

DESIGN INTENT

Schoolyard of St Albans School were redesigned into an adventurous playground, which encourages students taking risk to explore in their lives and inspires their creativity. The forms of design components refer to different types of natural landscape on Canterbury Plain.

Shade patterns (11:00-13:00 February 1st)

Surface material UV reflectivity

Thermal comfort

E E D D D D D D D D D D D D D D D E E E E E E E E E E E E E E E Evergreen Deciduous 0 1 2 3 4 5 6 7 8 9 10 Shading time (h)
4
6 3 2 5 7 8 9 11 12 13 10 1 Jungle cross 3 Outdoor gallery 5 Outdoor classroom 7 Bicycle shed 9 Mountain bike track 11 Natural swimming pool 2 Tree house 4 Outdoor cafe 6 Terrain playground 8 Free playing area 10 Sports field 12 Fountains
LEGEND

PLAY UNDER THE SHADE 3

1. JUNGLE CROSSING

Native plant species have been chosen to recover a small forest, which represents the native forest in Canterbury area. Except providing better sun protection behaviour, it could increase the biodiversity on the campus.

2. TREE HOUSE

It is built on the two huge Oak trees at the entrance of the school. Those two trees provide almost 90% shade coverage all day long. It uses net climbing as access approach.

3. OUTDOOR GALLERY

It gives school kids a proper place to hang their artworks. At the time without exhibitions, those walls could be used for graffiti. They also have the function of blocking cold wind.

SHADE MASTER PLAN

BUILT SHADE

NATURAL SHADE

It is the main gathering place at lunchtime. More shade is added to ensure sufficient protection. The ground surface material is changed into wooden deck to avoid reflective UVR.

4. OUTDOOR CAFE

PLAY UNDER THE SHADE 3

RED POURED RUBBER

PURPLE POURED RUBBER

WOODEN DECKING

5 5
7 8 6
SECTION A-A’ OF TERRAIN PLAYGROUND
A’ A 6 7 8
Austroderia fulvida Toe Toe
3 11 11 12 13
PLAY UNDER THE SHADE
Leptocarpus similis Oioi Carex secta
11 12 13
Typha orientalis (Raupo or bulrush)

PLAY UNDER THE SHADE 3

BEFORE

Artificial turf (3-7%)

Asphalt (4-9%)

Wooden chips (7-9%)

Grass (1-3%)

Entrance of buildings

Entrance of school

Moving routes

Water (3-7%)

Sand (15-18%)

EVALUATION

Comparison between original

SHADE COVERAGE

The new design increased shade schoolyard range through both However, it is impossible to create shade coverage) everywhere on shade coverage has been provided of the area in transition zone has zone, the shaded area has been (Shen, 2021)

MATERIALS

The main change of material happened surface. Low reflective (soft) material wooden chips and wooden decking in the original design to reduce

CIRCULATIONS

New circulation is based on the each part of the campus. The new route options, which could enhance movement in school. Shade in this both shade plants and built structures.

Active zone

active zone

ZONES

A new layout of components has Since the pool has been moved campus, the three experiences of the main spine of school and form with each other. Passive active zone defined space and the area surrounding spectators. Higher shade coverage and built structures.

THERMAL COMFORT

Trees, outdoor gallery walls and wind from north-east and south-west. chosen as natural shade to ensure coverage and heat from sun radiation

Passive
Wind direction Air flow direction
North-east South-west

original design and new proposal

shade coverage across the whole both natural and artificial shade. create good quality shade (94% on the campus. About 70-80% provided to passive zone. 60-70% has been shaded. In the active been raised to at least 25-30%.

happened on the ground material like poured rubber, decking replaced asphalt surface reduce reflective UVR.

original design. It connects new design provides more enhance the interest of this part was provided by structures.

has been applied in the design. to north-east corner of the of active zone flow through form a stronger connection zone expands within well surrounding the active zone as coverage is given by shade plants

terrain are used to block south-west. Deciduous trees was ensure the the sufficient shade radiation in winter.

AFTER

Poured rubber (3-7%)

Asphalt (4-9%)

Wooden chips (7-9%)

Grass (1-3%)

Water (3-7%)

Decking (7-9%)

Soil (4-6%)

Exposed aggregate (4-9%)

Entrance of buildings

Entrance of school

Moving routes

Active zone

Passive active zone

Wind direction

Air flow direction North-east South-west

FOOT BRIDGE DESIGN & PLANTING PLAN 4

DESCRIPTION

This project was about designing a foot bridge and planting plan, then push them to the stage of construction. The skills were required for this project is drawing the scale accurate technique drawings and knowledges landscape materials including the hard construction material and planting.

1
Bridge Construction Drawing
Southern Woods Tree Nursery, 1002 Robinson Rd, Rolleston 7675
BY
Lincoln University #1135513 Page NO 1/2 Sheet CD
DRAW
Chenyi Shen

WORK EXPERIENCE 5

DESCRIPTION

Project name: SH3 Ōhaupō Road, Glenview bus hub

Location: Hamilton, New Zealand

Client: New Zealand Transport Agency

I worked as landscape architect intern at DCM Urban Design. This selection of work includes the projects I completed under the mentor of Dave Compton-Moen, the director of DCM Urban Design.

This project is aimed to create renderings for the new proposed bus hub in Hamilton. I was asked to contact the client directly to make revisions according to the enquiries from NZTA through emails.

HAND DRAWING 6

Turn static files into dynamic content formats.

Create a flipbook