Architecture Portofolio 2023 - Dyandara

Page 1

Architecture Portfolio | 2023
CONTENTS 01 02 03 04 05 06 VIP GOLF CLUB SENTUL Professional FAIRFIELD AIRPORT HOTEL Professional HOTEL AT SENTUL Professional CATUR TUNGGAL RESIDENCE Professional BUKIT PERMATA RESIDENCE Professional KOPI O COFFEE SHOP Academic An Architect with more than 6 years experience working on various type of buildings and roles for Locals and International clients. Specialized in Residential/Housing, Interior, Landscape Architecture, Commercial and Hospitality building Contact Me: widyandara.yusuf@gmail.com

VIP CLUBHOUSE AT SENTUL

Project Details:

Firm: Sekawan DesignINC Arsitek

Location: Bogor, West Java

Golf clubhouse is a central facility associated with a golf course where golfers gather, socialize, and access various amenities. It serves as the focal point of the golfing community, providing a range of services and features to enhance the overall golfing experience. Golfers typically use the locker rooms in the clubhouse to store their personal belongings, change into golf attire, and freshen up. These facilities often provide showers, lockers, and grooming amenities to ensure comfort and convenience for players.

Clubhouses often have event spaces that can be rented for various functions such as weddings, parties, conferences, or corporate events. These spaces may feature banquet halls, meeting rooms, or outdoor areas, providing versatile venues for different occasions. On The east and west side we designated balconies or terraces, that offer views of specific holes or the golf course. These areas allow spectators to watch ongoing tournaments or observe other golfers in action.

Overall, this golf clubhouse provides a range of amenities and services to enhance the golfing experience, promote social interaction among golfers, and serve as a central hub for the golfing community.

4
6 7
Concept of the building was inspired by typical country side houses in Australia, with the domination of dark metal cladding walls and roof all at once. For the interior, Japandi style was preferrred by the client and it was done by another specialist.

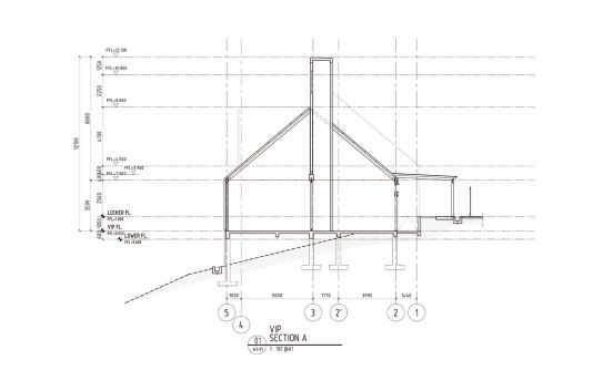
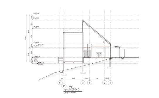
ELEVATIONS:

SECTIONS:

8 9
10 11

FAIRFIELD HOTEL

Project Details:

Firm: Sekawan DesignInc Arsitek

Location: Soekarno Hatta Airport - West Java

This Airport hotel is located in close proximity to an airport, typically within a short distance or directly connected to the airport terminal. This hotels cater to travelers who require convenient accommodation near the airport, whether for a short layover, early morning departure, or late-night arrival. It was designed to provide comfort, convenience, and efficient services to meet the specific needs of air travelers. These hotels are usually modern and well-equipped, offering a range of amenities and facilities to ensure a pleasant stay.

Given the limited time frame for the construction of the project, the structure of the hotel is predominantly precast concrete, sealing is done with precast concrete panels and bathrooms were supplied in ready modules. The project also contemplates the use of various resources related to energy efficiency, such as the use of solar panels for heating, green roofs and automation systems.

12

CONSTRUCTION ON SITE

14 15
BASEMENT 02 TYPICAL FLOOR (3RD - 8TH) BASEMENT 01 LEVEL 2ND BLOCK PLAN GROUND FLOOR
16 17 ENTRANCE GATE PLAN SIGNAGE PLAN BY M ARR OT T BY M A R R I O T T drawing title DESCRIPTION REVISION DATE CHK'D client architect structural consultant consultant quantity surveyor project scale project no. drawing no. revision. notes revision 19006 FAIRFIELD BY MARRIOT JAKARTA AIRPORT PT Bumiraya Anugerah Jaya date costruction management 14 JANUARY 2022 key plan Jln. Kemang Selatan No. 99B JAKARTA 12730 INDONESIA REYNOLDS PARTNERSHIP PT CONSTRUCTION COST MANAGEMENT CONSULTANTS E-mail office@reynoldspartnership.co.id SIGNAGE DETAIL 20 A12-14 C FOR CONSTRUCTION 22/01/14 SA Detail and electrical system Refer to Specalist drawing title DESCRIPTION REVISION DATE CHK'D client architect structural consultant m & e consultant quantity surveyor project scale project no. drawing no. revision. notes revision 19006 FAIRFIELD BY MARRIOT JAKARTA AIRPORT PT Bumiraya Anugerah Jaya date costruction management 14 JANUARY 2022 key plan M R A S D A EMAIL: bharong@sdarsitek.com Jln. Kemang Selatan No. 99B JAKARTA 12730 INDONESIA TELEPHONE 6221 835 2236 MECHANICAL ELECTRICAL ENGINEERS REYNOLDS PARTNERSHIP PT CONSTRUCTION COST MANAGEMENT CONSULTANTS K O N A N B A Y A A R A N M AN E-mail office@reynoldspartnership.co.id SIGNAGE 2 DETAIL 1 40 A12-14 C
18 19
FACADE MAIN ENTRANCE ENTRANCE GATE
3D VISUALIZATION

HOTEL AT SENTUL

Project Details:

Firm: Sekawan DesignInc Arsitek

Location: Bogor, West Java

As part of the Sentyl City’s Landscape extending and transforming of O was given a new purpose as a 5-star hotel that’s also welcoming for locals. The overall complexity of this project – combining adaptive reuse, a new wing extension, and strengthening the relationship with the surrounding park – is a reflection of Sentul City’s overall approach and ambitions. It was about bringing the old and new together with a balanced new program, a careful integration of the extension, and refined use of materials. The result is a design transformation that respects the building’s pre-existing strengths while introducing harmonious new elements.

Designed by SDA’s Principal architect Warren Daubney in 2022, the build- ing’s massive concrete brick exterior has a formal facade on the streetside and three wings facing the poolside. My role was as an architect along with other team contibute to design process to the controstion drawing.

20
22 23
24 25 SITE PLAN BASEMENT 2ND LEVEL TYPICAL
TYPICAL
GROUND FLOOR MEZZANINE LOWER GROUND
4 STAR HOTEL
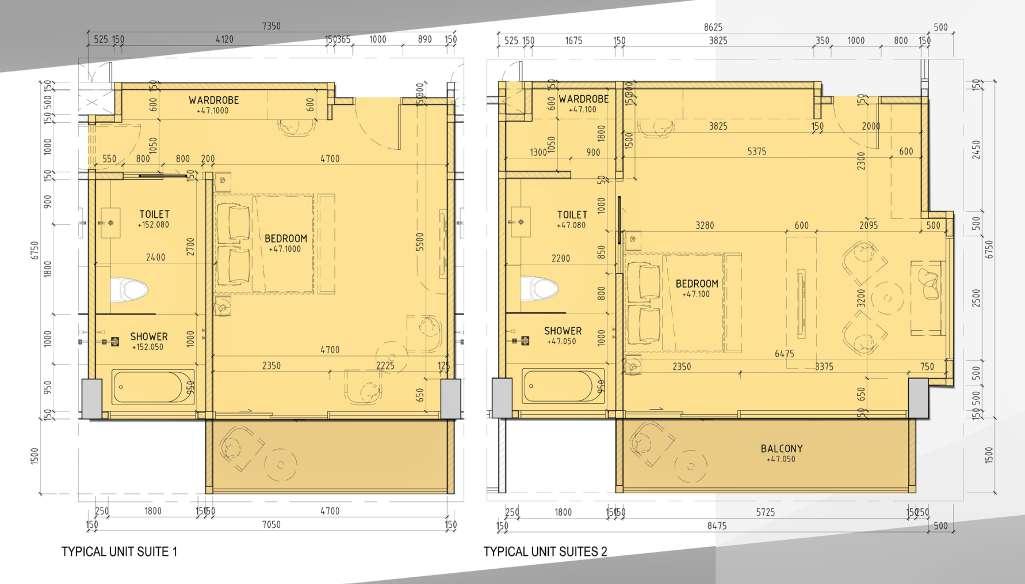
5 STAR HOTEL (SUITE ROOM)
26 27
28 29 REAR ELEVATION MAIN ENTRANCE
30 31 INT Illustration 01 INT Illustration 02 INT Illustration 03 INT Illustration 04 INT Illustration 05

CATUR TUNGGAL RESIDENCE

Project Details:

Firm: Personal Project

Location: Rawamangun, East Jakarta.

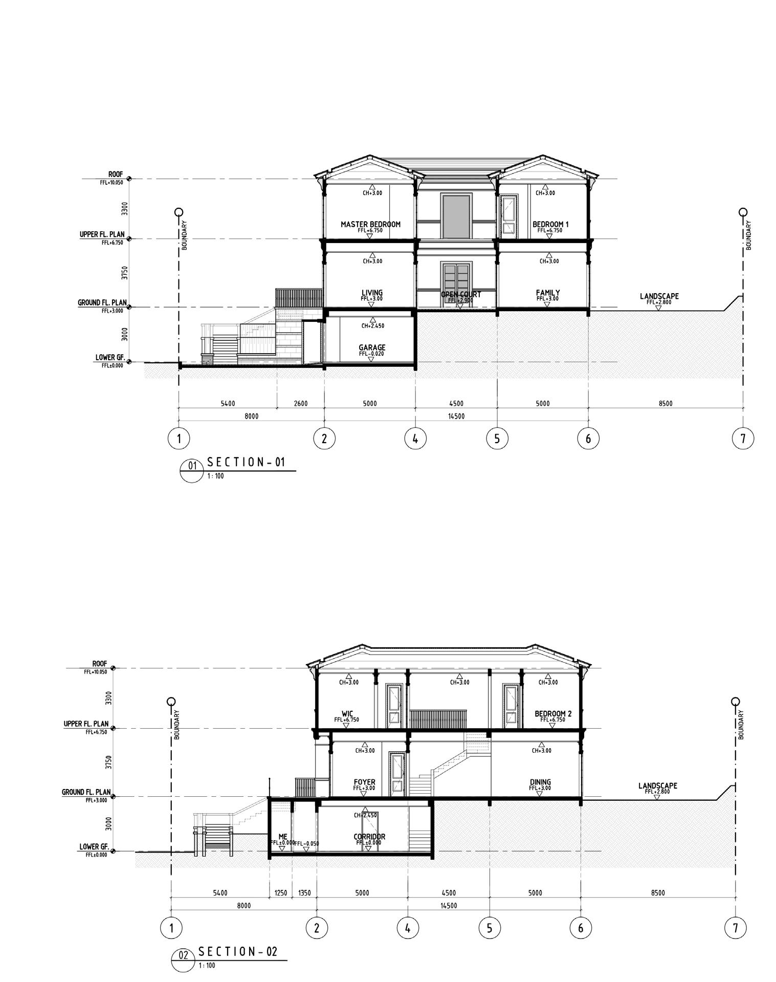
This modern, spacious house is located in Rawamangun, East Jakarta. I was involve as architect and interior designers. Through architecture comprised of simple volumes in adequacy with its context, this project stands out as a work of the materials and their implementation. It then becomes an expressive architecture whose meticulous details and variety of textures are ‘Ariane’s thread’.

In contrast, the living rooms are located on the third floor, bathed in sunlight thanks to abundant windows to the outside. Entirely open to each other, the variations in ceiling heights delimit the uses. The glass extrusion reappears here as a skylight of double height, expanding the space towards the sky. The staircase providing access to the roof terrace is integrated into it, and views of the city are revealed as you climb.

32
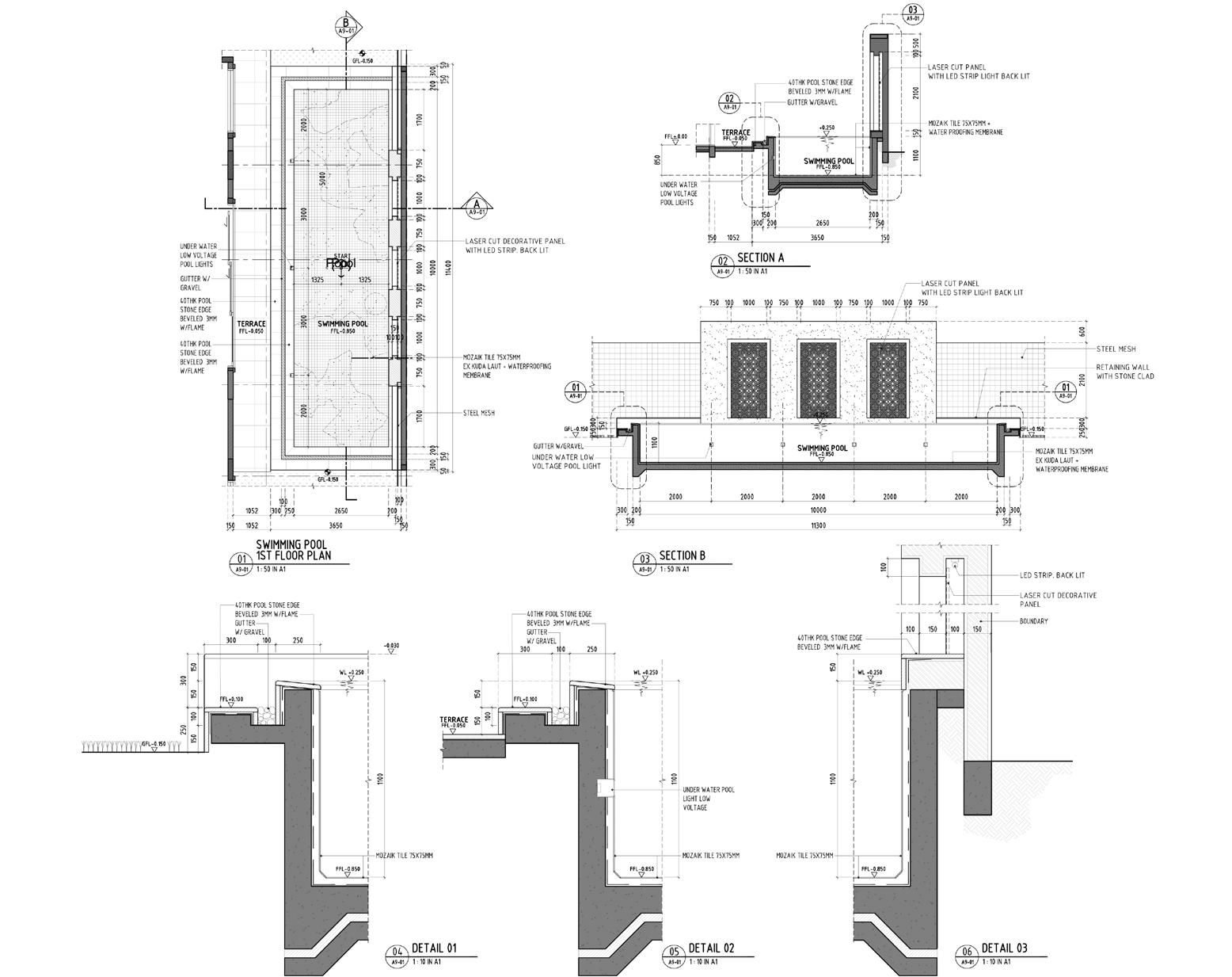
34 35 Swimming Pool Detail 3D Perspective
36 37 Image 01 | Image 02 Image 03 3D Perspective
38 39
Roof Deck’s Construction Poolside Lighting Ornament’s Construction Entrance Skylight Cosntruction
40 41 INTERIOR APPROACH

BUKIT PERMATA RESIDENCE

Project Details:

Firm: Sekawan DesignInc Arsitek

Location: Northridge Bogor - West Java

Residence at Bukit Permata is one of my most recent project with SDA Team and inpired by another project we already did in 2021. My role was as Architect in charge under direct supervisor of SDA’s principals. The dealine was quite tight with only 2 months in total to made everything from scratch, conceptual to the contruction-ready drawing. We finished this project on Mei 21st 2023. It was very challenging to make 2 houses with similar yet different design in order to fasilitate the needs of client. But we manage to finish the design and deliver the final drawing right on time.

42
44 45
46 47
48 49 East Side View
Front View
50 51

Project Details:

Firm: Pakebu Studio

Location: Makassar- South Sulawesi

This is one of my very first experience in Drafting Interior drawing back in 2015. I contributed to this project when I was in my college year for my internship program.

Scoop of my job was basically to interprete Interior designer’s conceptual drawing and transfer it to constructional drawing. Such as Fixed furniture design, costum furniture, Bar Counter, Backdrop details, costume lighting fixture, etc.

52
MY KOPI O!
54 55
56 57
58 59
60 61

Turn static files into dynamic content formats.

Create a flipbook
Issuu converts static files into: digital portfolios, online yearbooks, online catalogs, digital photo albums and more. Sign up and create your flipbook.