Skip to main content

Daria Sutormina / Portfolio 2024

Page 1

DARIA SUTORMINA

portfolio de arquitectura / 2023

Worked in Architecture since 2011 in Moscow, which mostly consisted of public spaces and historical restoration. In 2015, I moved to Spain and worked with Spanish architects in Mallorca in which I collaborated in creating interiors and residential homes. Here I was able to learn new construction regulations, materials, specific factors of projecting ergonomic and beautiful spaces in Mediterranean climate. In 2021 I have completed my knowledges about Spanish regulations and sustainable construction due to the UPM Master degree program.

Sharing the ideology that Architecture is more than just the built environment, it’s also a part of our culture. It stands as a representation of how we see ourselves, as well as how we see the world.

Daria Sutormina Portfolio de arquitectura 2023 2

DARIA SUTORMINA

m: +34 622 10 10 70 // e: dsutormina88@gmail.com

Palma de Mallorca, Islas Baleares

Educación

2006 - 2012

2020 - 2021

Máster de Arquitectura

Universidad Estatal de Geodesia y Cartografía de Moscú

Máster Universitario en Construcción y Tecnología Arquitectónicas Universidad Politécnica de Madrid

Experiencia profesional

04.2022 - Actualidad

Riutort Arquitectos // Palma de Mallorca dirección de obra proyectos de casas residenciales

01.2016 - 11.2021

Estudio Cano Arquitectura // Palma de Mallorca proyectos básicos de casas residenciales proyectos de interiores privados y públicos

12.2014 - 11.2015

09.2013 - 09.2014

Archiproba Studios // Moscú proyectos de interiores privados y públicos

Nowadays Office // Moscú proyectos básicos de casas residenciales proyectos de interiores privados y públicos, research

11.2012 - 08.2013

Ginzburg Architects // Moscú anteproyectos, proyectos básicos, proyectos ejecucción proyectos de restauración y adaptación

01.2011 - 02.2012

Soft skills

A-Ya Studio // Moscú proyectos básicos, renders

Me considero una persona creativa, perfeccionista, educada y responsable. Veo cada proyecto como un reto y algo que puede enriquecer mi crecimiento personal tratando de analizar todas las situaciones al máximo para llegar a una solución lógica y razonable con respeto y educación hacia los demás.

Idiomas

español, inglés, ruso

3
Daria Sutormina Portfolio de arquitectura 2023 4 casa en Mallorca, 1 336 m²
5
team / Alberto Cano, Javier Toledano, Daria Sutormina
Daria Sutormina Portfolio de arquitectura 2023 6
7
Daria Sutormina Portfolio de arquitectura 2023 8
9
Daria Sutormina Portfolio de arquitectura 2023 10 casa en Mallorca, 316 m²
11
team / Alberto Cano, Fernando Cano, Javier Toledano, Daria Sutormina
Daria Sutormina Portfolio de arquitectura 2023 12
13
Daria Sutormina Portfolio de arquitectura 2023 14 casa en Palma de Mallorca, 318 m²
15
team / Fernando Cano, Javier Toledano, Daria Sutormina
Daria Sutormina Portfolio de arquitectura 2023 16
17
Daria Sutormina Portfolio de arquitectura 2023 18
19
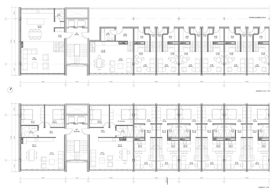
Daria Sutormina Portfolio de arquitectura 2023 20 MUCTA UPM
21 tabajo Fin de Máster
Daria Sutormina Portfolio de arquitectura 2023 22
23
Daria Sutormina Portfolio de arquitectura 2023 24
oficina Schwalbe en Alemania
25
team / Tamara Muradova, Marinika Sadgyan, Daria Sutormina
Daria Sutormina Portfolio de arquitectura 2023 26
27
Daria Sutormina Portfolio de arquitectura 2023 28
cafe Iskra en Moscú
29
team / Nata Tatunashvili, Natalya Mastalerzh, Daria Sutormina
Daria Sutormina Portfolio de arquitectura 2023 30
31
Daria Sutormina Portfolio de arquitectura 2023 32
concepto de residencia Chekhov APi, Rusia
33
team / Askar Ramazanov, Daria Sutormina
Daria Sutormina Portfolio de arquitectura 2023 34
35
Daria Sutormina Portfolio de arquitectura 2023 36
dibujo
37
Daria Sutormina Portfolio de arquitectura 2023 38
39

gracias

Daria Sutormina Portfolio de arquitectura 2023 40

Turn static files into dynamic content formats.

Create a flipbook