
ROBERT RIVERS
Architecture & Design
![]()

ROBERT RIVERS
Architecture & Design

see architecture as a gift. Through it, good spaces can be made great, and dead spaces can come to life. This gift is coupled with a great responsibility – because architecture is not so much about beautiful buildings, but rather the people they serve. They are to be comfortable, safe, beautiful, and an enhancement to our everyday lives.
The creative side of me has always been obvious, and when I discovered my love for architecture, it became my favorite and main outlet of expression. Supplementing desire for creative expression, is the desire to learn how to advance my craft and ultimately create the best possible places for people to inhabit.
This portfolio shows some of my solutions to various challengesthrough architecture.


The site is within the context of the Camana Bay Town Center a very vibrant and well populated New Urbanist town, located in the center of Grand Cayman. Positioned on the most prominent axis - the Paseo - the site is in a very advantageous location to connect the Cultural Center to Camana Bay Town Center.
Developing a corner site presented the opportunity to create a termination of the Paseo’s vista, while also creating a welcoming street-front to other vantage points. The Gallery was used to create a transparent, welcoming “porch” into the site, leading straight into the main space - The Courtyard.



The Courtyard, being the main “room” of the development, is surrounded by all the elements of the project’s program. With the cultural context of Cayman in the forefront of the design, the “Porch” was a very important feature. Taking precedence from traditional Caymanian architecture - often including sizable porches - it was very important to accentuate the entrance into the main courtyard space. This porch nuance found its way into the design of the Gallery. Light and airy, it would serve as a visual connection in to the space, while displaying local Caymanian Art and Display pieces.
The “Paseo” is the main stream of life throughout the Camana Bay development. Along the Paseo, there are signature restaurants, cafes, movie theaters, various retail outlets, offices, residences and a bookstore. With all the life of this main passage, it is a very fitting axis, tying the Cayman Cultural Center to Camana Bay - acting as the direct termination of the vista from the Paseo.


The Courtyard is very open and welcoming to anyone wishing to come in and enjoy any of the functions around it, or just be within the courtyard itself. The entrance to the Courtyard is located on the pedestrian-friendly boulevard - Camana Way. It is composed in such a way that all elements of the Cultural Center are visible from the first glance. It employs the natural shading of palms, and immediately presents seating options to be utilized.



Benton Harbor, Michigan was quite successful in the food industry historically. Unfortunately, these successes have not continued with the city over the past few decades. With an increase of unemployment and a decrease of flow of income, Benton Harbor is in need of some restoration.
Benton Harbor is one of the cities positioned on the Great Fruit Belt in the Midwest. The developer desired to have this project bring people together, draw revenue and create social and business
opportunities - through food. Prairie Development Group (“the developer”) had a passion to implement locally grown food, harvested and sold in a local market. This project provides a main quad-like area in which multiple types of community gatherings can occur - centered around food, drink, and the local market.






















While developing this project, it was important to the developer that there be multiple buildings with mixed uses, providing a variety of tenants, and increasing the usage during all times of the day. In the buildings with mixed uses, there are housing opportunities, retail opportunities, learning opportunities, and businesses – hence more jobs, more income and more richness of community and culture.
Since Benton Harbor is the world headquarters for the Whirlpool corporation, this project would create an opportunity for the company to display appliances and contribute to the local food market - specifically through food preparation.
The main building in the development is on the corner of W. Main St. and Twelfth St. Within this triple story building, there is a sports bar in one wing and a restaurant in the other. Both the restaurant and the bar have their own 2 floors, available for separate tenants or a single owner. The third story is high scale residential.
The restaurant will feature fresh food, grown by local farmers, as a way to tie into and promote local farmers market. This will be a place for fine dining, or quick lunch hour stops. It will provide upstairs and downstairs outdoor seating area, with excellent views into the quad and to the streets.
Aside from the restaurant’s ability to draw a crowd, the sports bar will be a main driving character in this development. Sports bring people together, and so do drinks – a winning combination. The sports bar will also be there to help add to the night life of the place, creating more jobs, and bringing in more revenue.


Within the whole development, there were spaces in which provide more intimate environments. When making a Place, the experience is heightened and improved when we have little nooks that we can retreat to.
Cafe Del Sol is an example of a small cafe, which is expected to improve the life and vitality of the place by providing an all-day service and “buzz” of business. This livens up the development, in turn, contributing to the rejuvenation of Benton Harbor.




On the campus of Andrews University, there is a plot of land tucked away, which currently has a peach orchard on it. It’s a beautiful, sloping landscape, surrounded by mature deciduous and coniferous woods.
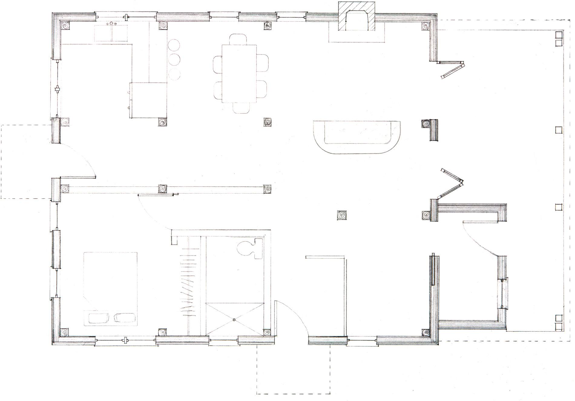
The Nature Center includes a main Gallery Hallway, a Nature Observatory/Conference Room - with supporting office, kitchen and storage space.
The Nature Center at Andrews University was designed as a place where the local community and the campus can learn about and engage more in the natural environment of Berrien Springs.
Apart from being an avenue for education about the natural environment, other benefits of the Nature Center include a gray water collection and treatment system, and passive ventilation system. The building is also designed to facilitate a lot of natural lighting.










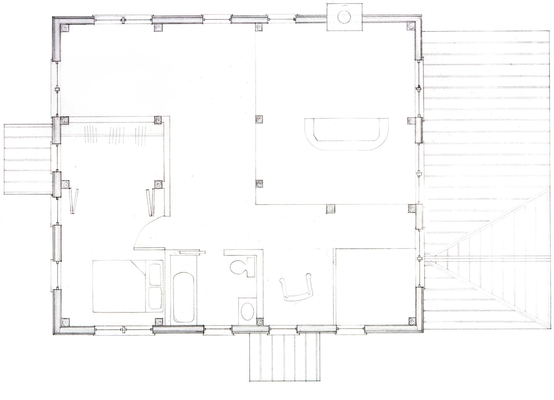
In this project, craft was very important. Materiality was represented carefully, with their correct hatching, poche methods and drafting conventions.
Heavy timber, post and beam construction was used as the structure, while Structural Insulating Panels (SIPs) were used for the buildings’ exterior envelope. Other local materials, such as stone and wood, were also used.






During my studies, I got the opportunity to go do an Analytical Study Tour throughout Europe. We visited Italy, France, England, and Sweden.
The sketches in this section are some of those done while I was there. These sketches analyze and note various conditions, conventions, architectural elements and details saw while on the tour.
On this trip we were instructed on how to analyze architecture through sketching. In the section I have included a few of the drawings that did to further understand the buildings and their surrounding qualities.

AVENUE DES CHAMPS-ÉLYSÉES, PARIS





Throughout my study of architecture, I explored the use of watercolor paint to represent my ideas more clearly and use it as a tool to create compelling renderings. The use of watercolor is also used analytically, to study shadows, profiles and tonal values.




