










This project involved the community of Village Lutheran Church in Berrien Springs Michigan. worked in this project with Evan Wong. Our goal for the project was to provide the community with different ways in which they could use their property. We created and propose to fill the site with small cottages that catered to seniors and family oriented row houses.




In this project we got the choice to choose a site that was near our hometown. My home
towns is Lima, Peru. chose this site because it was close to the water and had a park right next to it. It wasn’t as urban as would of have liked but the amount of pollution in the center of the city wouldn’t be good in a health center. The program included a vegetarian restaurant, bookstore gym and transient dwellings.
















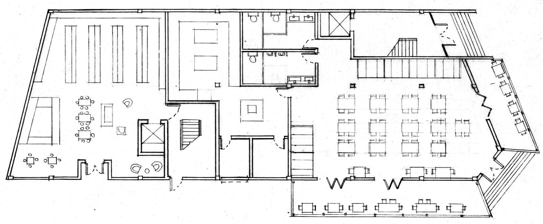
1st Floor
The fist floor consist of a health oriented restaurant with a bookstore adjacent to it. The restaurant contains outdoor seating and garage doors to let the maximum air inside the building.

(956) 648 9037 e ceciajenisse@gmail.com
The second floor contains offices with a small gym with views to the ocean. There are also locker rooms with a yoga room popping out of the building.
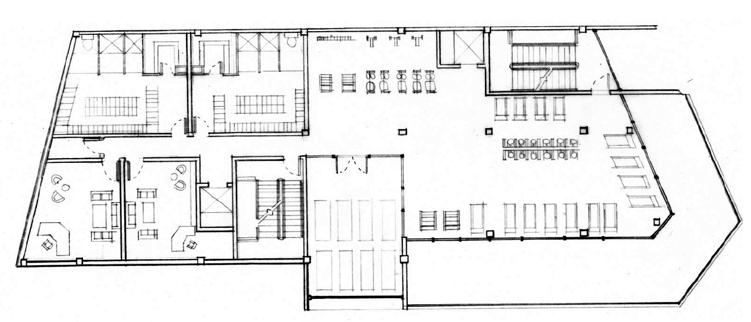
3rd Floor 2nd Floor
The third floor contains the dwelling units for the women in th program. Each room has a window to the outside and in the middle there is a courtyard. have also proposed a communal area in which they can have various activities and meals.
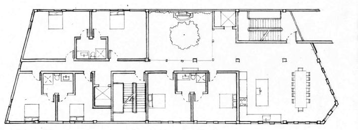
4th Floor
The fourth floor has almost the same layout at the third floor. There is a courtyard overlooking the ocean in which there is also a pergola to provide shade.



(956) 648 9037 e ceciajenisse@gmail.com












(956) 648 9037 e ceciajenisse@gmail.com




(956) 648 9037 e ceciajenisse@gmail.com cec a munOz



These are some of the water colors have done in the past. Watercolors teach us to see what the values that are in front of us. In my trip to Europe we were encourage to use the true value of the color and shadows. All of the colors shown are made from four primary colors. Using this method learned to pay attention to the colors and shadows around me.



