H V F D ESIG N HV DES
HAPUTHANTHRIGE FERNANDO

hvfdesign@gmail.com
909-680-5179

WEIMAR INSTITUTE
WELLNESS CENTER
WEIMAR, CALIFORNIA













Front Elevation



PORTICO




RESTAURANT PROPOSAL
COLTON, CALIFORNIA
Perspective Rendering
A FREELANCE PROJECT OF JEEVA’S KITCHEN IS A FAMILY OPERATED BUSINESS WITH A FOCUS FOR OUTREACH WITHIN THE COMMUNITY. IT INCLUDES A COMMERCIAL KITCHEN FOR DINE-IN AND CATERING WITH AN ATTACHED BALL ROOM. WITHIN THE 5,000 SF STRUCTURE IT COMES WITH AN OFFICE SPACE AND AN ORIENTAL GROCERY STORE.










Front Elevation
HOUSING DEVELOPMENT
HIGHLAND, CALIFORNIA
FRON 1/4" =
Front Elevation
LANDSCAPING DESIGN AND DEVELOPMENT
COLTON CALIFORNIA







REDLANDS, CALIFORNIA
Primo Fernando | Arch 318 | Background Building Studio
STOREFRONT BUILDING



South Elevation
Front Elevation
Wall Section












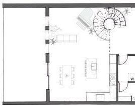
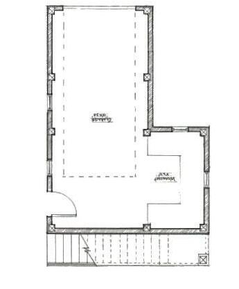
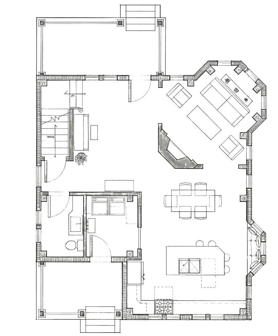
HOUSE WITH CARRIAGE HOUSE DESIGN
BERRIEN SPRINGS, MICHIGAN
Carriage House ModelSecond Floor Plan
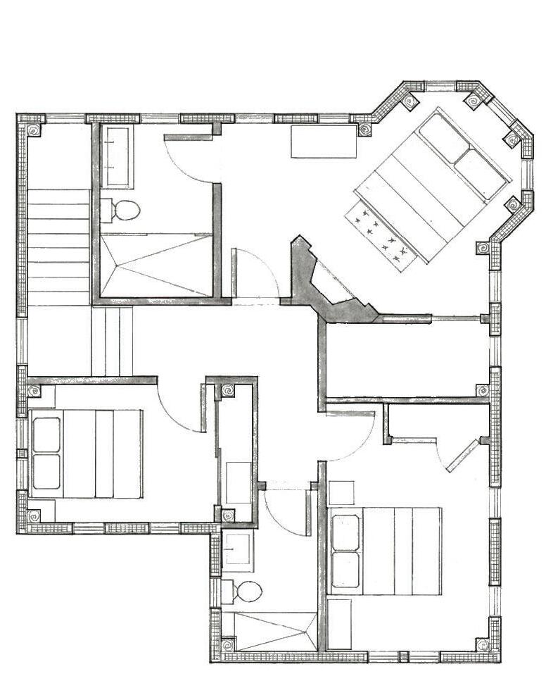
First Floor Plan






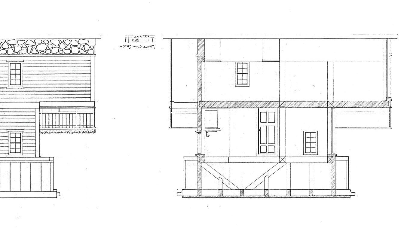
Transverse Section
Longitudinal Section
N. Hamilton Elevation
N. Mechanic Elevation
Back Elevation
Alley Elevation









N. Hamilton Elevation
Back Elevation
Partial Elevation

HAND DRAWINGS AND WATERCOLOR











































DESIGN
(PRIMO) HAPUTHANTHRIGE FERNANDO HVFDESIGN@GMAIL.COM 909-680-5179
hvfdesign@gmail.com 909-680-5179