

PORTFOLIO ARCHITECTURE
The Harbor Artyard Connect Ministry Center Korean Storefront: Breathing with Nature
Placemaking Studio / 2022
p. 4-11
halimi@andrews.edu
imhalim.myportfolio.com
Background Building Studio / 2021
p. 12-19
Background Building Studio / 2021
p. 20-27
Home in Heritage Hill Underground Environmental Center Studies & Drawings
Architecture as Craft Studio / 2019 Introduction to Design Studio / 2018 Drawings & Graphics Studio, Analytical Studies, etc. / 2017-2022
p. 28-35
p. 36-41
p. 42-54
The Harbor Artyard
Benton Harbor, MI
In the heart of Benton Harbor Arts District, the Harbor Artyard creates moments for people to enjoy, relax, appreciate, learn, and dine. With a key component of shipping containers, the art complex functions as a shipyard where various arts from local artists meet, intersect and synergize. Hence, the visitors and locals have the opportunity to appreciate the arts of Benton Harbor.









Rooftop Market Northwest-looking Perspective
Art Learning Center North-looking Perspective
Art Studio Southwest-looking Perspective
Art Gallery Addition Media Room South-looking Perspective

South Elevation





East Elevation

South-North Section
Media Room
Gallery
Gallery
Connect Ministry & Worship Center
Bukchon, Seoul, Korea
Traditionally a residential area for yangban, aristocrats in Old Korean Chosun Dynasty, Bukchon is where both the contemporary modern landscape and traditional Korean buildings co-exist. This 5-story ministry and worship center is designed to be where everyone can connect with people and connect to God. It starts from more accessible and public spaces and ends with more private and intimate spaces.



Yulgok-ro Elevation
Yulgok-ro


Gyedong-gil Elevation


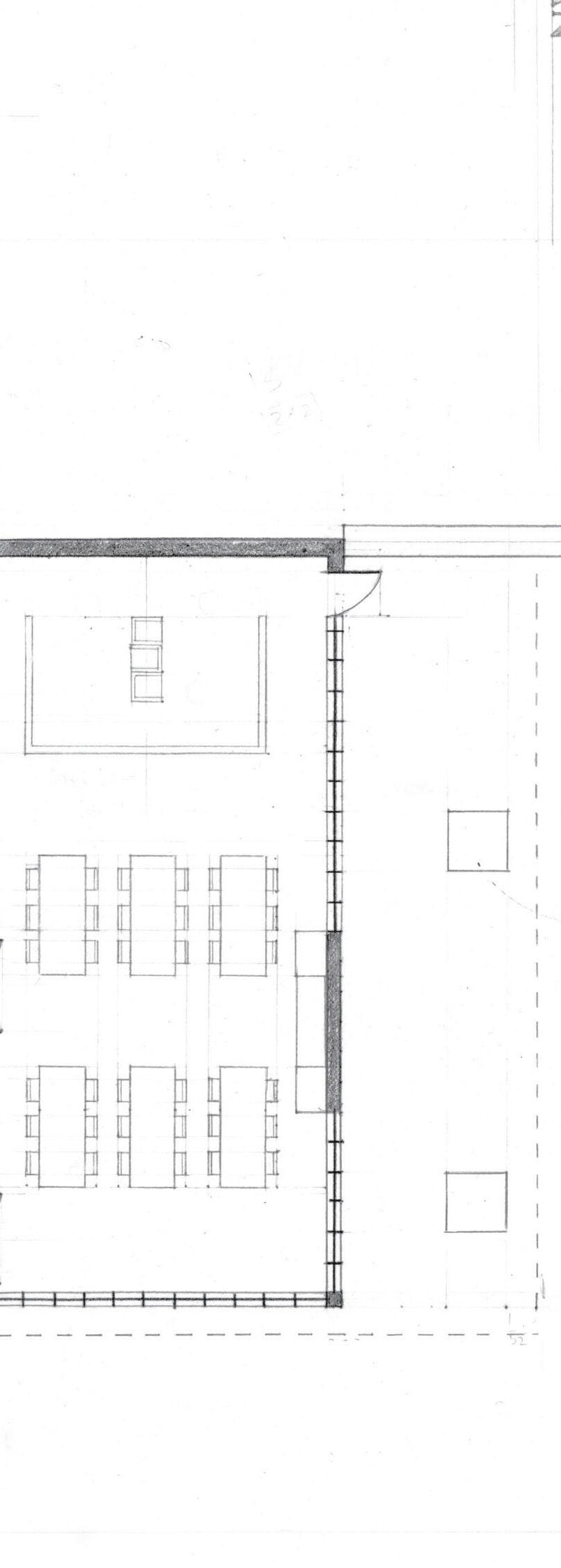
1st Floor Plan: Restaurant and Gallery
Book Cafe Restroom




2nd Floor Plan: Sanctuary
3rd Floor Plan: Sanctuary
Sanctuary
Sanctuary
Courtyard
Classroom
Restroom
Restroom Prayer Room
Pastor's Room


Counseling Room


4th Floor Plan: Counseling Center
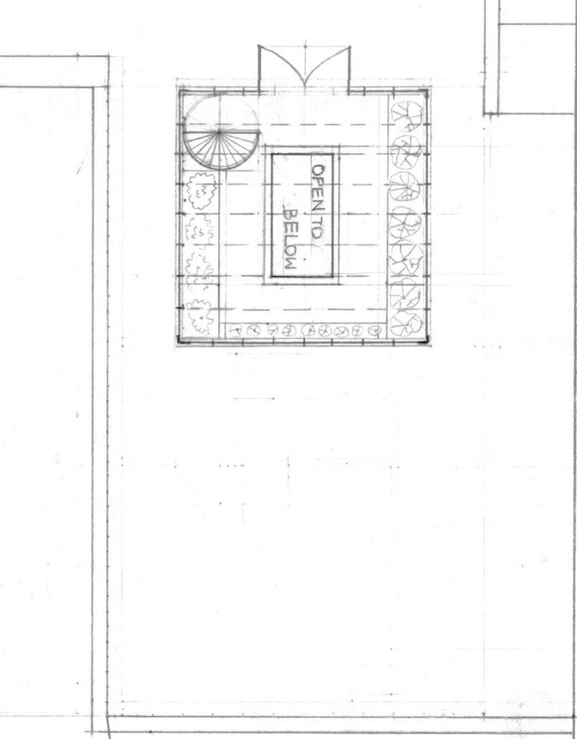
5th Floor Plan: Residential Program





Precedent Study for Korean Storefront
Jongno, Seoul, Korea
Naksunjae Hall, located in Changdeokgung Palace, was built by King Heonjong in 1841 according to traditional 16th-century residential typology for nobility and applying features of the king's residence.



Elevation
Proportion Study
Naksunjae Hall in Changdeokgung Palace

Korean Background Storefront: Breathing with Nature
Located in Bukchon, a historic and cultural district in Seoul, this mixed-use storefront background building is designed to directly reflect and celebrate the traditional architecture of my hometown, Seoul. This space creates an opportunity for people to experience multiple layers of moments created by continuous entrances and to interact with nature as the space intentionally blends the border of outside and inside.




Bukchon, Seoul, Korea
Gyedong-gil Street Elevation
Gyedong-gil
Bukchon-ro 8-gil







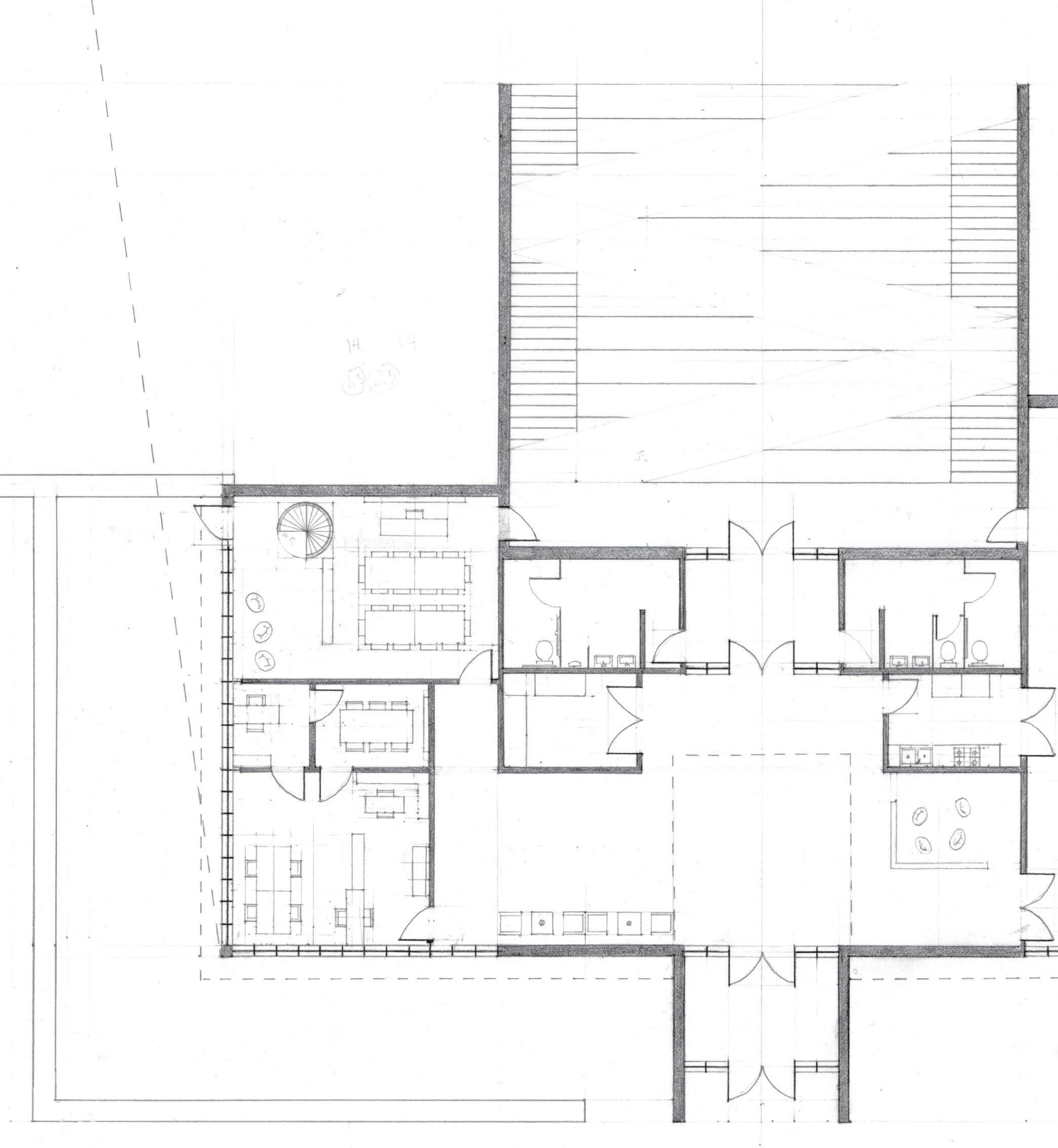
First Floor Plan
Commercial Space
Courtyard
Studio Apartment
One-bedroom Apartment
Second Floor Plan



Studio Apartment
One-bedroom Apartment









Home in Heritage Hill
Grand Rapids, MI
The carriage house and the main house are designed by using several precedents of Heritage Hill and the general classical languages. While keeping its simplicity and symmetrical principles, the SIPS building system is used to construct the main house.








Paris St Elevation
Elevation








Corner Model

Counter
Batten
Slate Roof Tile
Soffit Fascia
Subfascia
Flashing

Underground Environmental Center
Berrien Springs, MI
Underground Environmental Center is an interactive space that brings people into harmony with nature by learning and experiencing the creation of God. Utilizing the topography and creating a delicate visual balance, the environmental center welcomes visitors to appreciate nature.








Greenhouse Floor Plan
Greenhouse Section
Kitchenette






West Elevation
Studies & Drawings
Analytical Architectural Sketches
On-site drawings and studies of urban architectural settings from Analytical Study Tour




of a Building



North End, MA
South Street Seaport, NY
Dwelling House in Canterbury Shaker Village, NH
New Mexico Museum of Art, NM
Parsons-Gates Hall of Administration of CIT, CA
"Eyes on the Street" Façade—the Face







Patio Market Old Town Albuquerque, NM
Urth Caffe, CA
Cuxa Cloister in the Met, NY




Quincy Market, MA
Solomon R. Guggenheim Museum, NY




George Pearl Hall in University of New Mexico, NM
Salesforce Transit Center and Park , CA









Bryant Park, NY Central Park, NY
Paley Park, NY






Boston Public Library, MA
Doe & Moffitt Libraries in UC Berkeley, CA
Boston athenæum, MA


Drawings and study of Palazzo Ossoli and its patterns


Analysis of proportions and tectonics of Roman Doric order and design of classical porch













Pencil
Les Misérables

Colored Pencils

halimi@andrews.edu
imhalim.myportfolio.com