
This architecture design portfolio documents my process and work throughout architecture school. Join me on this journey of exploring the idea of home and place-making.

![]()

This architecture design portfolio documents my process and work throughout architecture school. Join me on this journey of exploring the idea of home and place-making.

A linear path points to an ultimate destination. The South Bend site will direct its residents and community members to a path of improvement. The urban sprawl will be addressed through public space and mixed-use solutions. This way, it will not continue to spread through downtown South Bend. The site has the potential to become lively, as it is across from the Cubs Stadium and a working transportation system.











































































































































































































































































































































































































The Ayagachi experimental agriculture center will be a model for green building technologies and solutions in the Puno region of Peru. Agricultural innovations will set the standard in order to fight malnutrition in the region. The center will be organized as working farm with tight knit buildings, in order to protect against the cold highland climate.The student run center will provide the financial means for every child to experience an Adventist education. Visiting the site for two weeks helped me connect personally with the locals and to understand the culture.
Work done in collaboration with Andrews University urban design studio



Preliminary concept sketches done before site visit



Circulation Diagram
Land Use Diagram Energy Diagram

Zero Waste Facility
The campus will be a model for waste disposal, a severe problem in the region. Combustible waste will provide heating and electricity for the site.
Pedestrian Center
The hamlet will have a pedestrian oriented center. The plazas and paved walkways will allow visitors to explore the site freely.
Andean Zoo
The zoo will include local animals such as llamas, guanacos, vicachas and Andean foxes.
Nazca Irrigation System
Tapping into underground water reserves will allow for a system to irrigate crops.




“Some may ask, Why does Sister White always use the words, ‘plain, neat, and substantial,’ when speaking of buildings? It is because I wish our buildings to represent the perfection God requires of his people.”
EG White, Evangelism 378.1
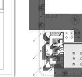
Sections showing typical guest accommodations and view of the visitor center.


This Adventist ministry center serves as a gateway for the people of Des Moines. Members of the public who visit this center will participate in a program that targets body, mind and spirit for personal growth.










Top and bottom: Transverse and longitudinal sections


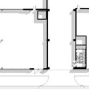
Located in the historic Court Avenue district, this live-work unit supports a thriving community. The elegant, classic nature of the building draws from the surrounding building fabric.









Storefront transverse and longitudinal sections
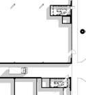
The arts district of the twin cities, Saint Joseph and Ben will thrive in this complex of modern, modular studios. Artists will be able to express themselves in an environment that serves as a blank canvas for the city of Benton Harbor. The positive/ negative space of the cities will be a topic of conversation in itself.




Corner detail and structural models of the studios. The enclosure around the timber frame structures was SIP panels with a stucco finish.



Site elevation
This finely crafted Finnish Sauna takes on a shape of transition and nostalgia. Its exposed timber frame structure is pulled apart from the rest of its wood clad skin. The simple house shape is a simplification of the Dutch gable roof of the corresponding main house.


The structural models show the way the sauna is integrated into the sloped terrain. Plexi-glass illustrates the glass railings and roof structure.







Included are perspective studies and sections from my European study abroad. I use watercolor as a technique to express the emotion of spaces and places.










This pottery was the result of a study exploring plant forms in combination with simple geometries. Modeling a piece of clay into a dimensional property helped me get a good sense of space and depth.



Contact 515 710 0125
gesellealfaro@yahoo.com