DS_PORTFOLIO_Architectural Draftsperson

Page 1

PORTFOLIO

DIEGO SABOGAL 0432 143 614 dsabogal73@gmail.com

0432 143 614

dsabogal73@gmail.com

Innovative and detail-oriented Graduate of Architecture with 8 years of experience developing architectural plans and construction documentation for high-end residential and commercial projects. Collaborated with engineers and contractors to ensure compliance with building codes and regulations, resulting in top-quality drawing sets. Proficient in CAD, Revit and rendering, enhance my performance to develop and present design concepts to clients and stakeholders enabling informed decision-making processes.

WORK EXPERIENCE

Design Draftsperson

2021 - Curr. Outscape - Adelaide, South Autralia

• Produce landscape concepts and technical drawings for high-end residential projects, ensuring alignment with client briefs and building standards

• Collaborated with builders and contractors, utilising Revit drafting to prepare detailed construction drawings.

• Produced Revit models and renders to showcase design concepts, improving client and stakeholders understanding.

Design Drafter

2020 - 2021 Aland - Sydney, NSW

• Prepared detailed construction documentation for high-end residential buildings using AutoCAD and Revit, ensuring accuracy and meticulous attention to detail in plan sets.

• Collaborated with engineers and consultants to ensure compliance with BCA standards and regulations, streamlining construction documentation.

• Interpreted Design Applications plans, regulations, and codes to develop Revit models, conceptual renders, and CAD drawings, facilitating stakeholder decision-making.

Architectural Draftsperson

2019 - 2020 Nettleton Tribe Architects - Sydney, NSW

• Prepared detailed technical drawings for high-end commercial projects using Revit to create 3D models and craft documentation from drafts by architects and engineers. This facilitated a collaborative design process, identifying and solving technical project challenges.

• Created Revit 3D models adhering to company standards, collaborating closely with the BIM manager to meet project requirements.

MICROSOFT OFFICE

• Collaborated with engineers and consultants to ensure compliance with BCA standards and regulations, streamlining design application and construction documentation.

SKILLS
REVIT AutoCAD ADOBE ENSCAPE/VRAY
2 ABOUT | RESUME

01 / 02

BELAIR 024 / CRAFERS 015

SOUTH AUSTRALIA

LANDSCAPE DESIGN

2024 PAGES: 4-15

03

LOTUS SCHOFIELDS

NSW LOW RISE RESIDENTIAL BUILDING 2021 PAGES: 16-23

04 / 05

SBP LOT303 / WILLAWONG STAGE II

NSW INDUSTRIAL BUILDING DESIGN 2020 PAGES: 24-35

3 TABLE OF CONTENTS
PROJECT NAME | TYPE 4
5

01 BELAIR 024

PROJECT DATA

TYPE LOCATION COMPANY

ROLE

ABOUT

RESIDENTIAL LANDSCAPE

SOUTH AUSTRALIA

OUTSCAPE

LANDSCAPE DESIGNER

Situated within the dynamic context of Adelaide’s southeastern foothills, the landscape concept embraces city views and intricate topography. This architectural endeavour seizes upon the opportunity to sculpt terraced outdoor spaces, strategically maximising land usage and sunlight exposure. In doing so, we fulfil the diverse needs of both the client and the site while ensuring a harmonious integration with the surrounding environment.

BELAIR 024 | LANDSCAPE
7
SITE PLAN | RESIDENTIAL 8

The project was meticulously drafted in Revit, employing 3D models, documentation, and rendering to accurately capture site conditions. This facilitated the creation of a precise drawing set for presentation to clients and stakeholders, ensuring clear communication of the proposed design.

9
| RESIDENTIAL
LANDSCAPE DESIGN

02 CRAFERS 015

PROJECT DATA

RESIDENTIAL LANDSCAPE SOUTH AUSTRALIA

OUTSCAPE

LANDSCAPE DESIGNER

ABOUT

In designing the Adelaide Hills landscape, prioritising the interaction between the house and its environment is key. Understanding weather challenges, especially in winter, guides smart planting and functional area placement to maximise outdoor living. This approach aims to seamlessly integrate the dwelling with its natural surroundings while enhancing sus-

CRAFERS 015 | LANDSCAPE
TYPE LOCATION COMPANY ROLE
11

The project was meticulously drafted in Revit, employing 3D models, documentation, and rendering to accurately capture site conditions. This facilitated the creation of a precise drawing set for presentation to clients and stakeholders, ensuring clear communication of the proposed design.

SITE PLAN | RESIDENTIAL
12
13 LANDSCAPE DESIGN | RESIDENTIAL
PROJECT NAME | TYPE 14
15

LOTUS SCHOFIELDS

PROJECT DATA

ABOUT

In the growing suburb of Schofields, on the fringe of Sydney’s urban sprawl, a high-end low-rise residential development emerges. Comprising three five-story buildings, it offers diverse apartment types tailored to meet the needs of families seeking an alternative living experience. This project incorporates sophistication and community integration, enriching the residential landscape with its innovative design and inclusive approach.

LOTUS | RESIDENTIAL
TYPE LOCATION COMPANY ROLE RESIDENTIAL BUILDING NSW ALAND DESIGN DRAFTER
03
17
SITE PLAN | RESIDENTIAL 18

DESIGN CONCEPT | RESIDENTIAL

The project was meticulously drafted in Revit, employing 3D models, documentation, and rendering to accurately capture site conditions. This facilitated the creation of a precise drawing set for presentation to clients and stakeholders, ensuring clear communication of the proposed design.

19

02

PROJECT NAME

ABOUT

Nobisin porersp erchit, aut alitaquis et iunt imincia comnihi ctotatio et voluptam fugiatur andi ad quate voluptae illo tor ate consecumquam quam volorei undero quae enimus evelecatur, quaerupiciet quia et faccus et dio optis ipienti atiumquas sitLentia vellore vellaborum adi quasim quatat ea cuptasped exces sim nectaque velenis vel ipsus aliatem quiam sequide liquis sint lique culla vel inissit pel imus sam que porat

PROJECT DATA

TYPE

SIZE

LOCATION

INSTRUCTORS

TEAM MEMBERS

ROLE

ELEVATIONS | RESIDENTIAL 20
21
| RESIDENTIAL
ELEVATIONS
22 BUILDING PLAN | RESIDENTIAL
23 CONSTRUCTION DETAILS | RESIDENTIAL

05 SBP - LOT 303

PROJECT DATA

TYPE LOCATION COMPANY ROLE

ABOUT

INDUSTRIAL BUILDING

NSW

NETTLETON TRIBE ARCHITECTURAL DRAFTSPERSON

This industrial DA development seeks to reimagine traditional warehouse architecture through contemporary materials and energy-efficient solutions. By offering a functional yet aesthetically enhanced space, it aims to redefine the industrial landscape while maximising sustainability.

SBP LOT 303 | INDUSTRIAL
25
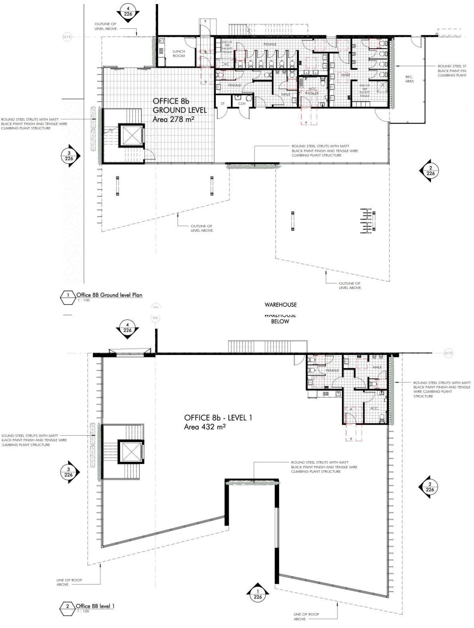
BUILDING PLAN | INDUSTRIAL 26

The project was meticulously drafted in Revit, employing 3D models, documentation, and rendering to accurately capture site conditions. This facilitated the creation of a precise drawing set for presentation to clients and stakeholders, ensuring clear communication of the proposed design.

27 BUILDING PLAN | INDUSTRIAL

06 WILLAWONG STAGE II

PROJECT DATA

TYPE LOCATION COMPANY

ROLE

ABOUT

INDUSTRIAL BUILDING

NSW

NETTLETON TRIBE ARCHITECTURAL DRAFTSPERSON

This industrial CC development seeks to reimagine traditional warehouse architecture through contemporary materials and energy-efficient solutions. By offering a functional yet aesthetically enhanced space, it aims to redefine the industrial landscape while maximising sustainability

WILLAWONG STAGE II | INDUSTRIAL
29
BUILDING PLAN | INDUSTRIAL 30
31 ELEVATIONS | INDUSTRIAL
ELEVATIONS | INDUSTRIAL 32
33 SECTIONS | INDUSTRIAL
SECTIONS | INDUSTRIAL 34

CONSTRUCTION DETAILS |

35
INDUSTRIAL
DIEGO SABOGAL Architectural Draftsperson 0432 143 614 dsabogal73@gmail.com

Turn static files into dynamic content formats.

Create a flipbook
Issuu converts static files into: digital portfolios, online yearbooks, online catalogs, digital photo albums and more. Sign up and create your flipbook.