Drew Supina Portfolio - 2025

Page 1


Drew Supina

Architecture

Selected Works

13 Sheldon Ave, Apt. 5 Ames, IA, 50010

1+ (651) 707-4910 sups3360@outlook.com dssupina@iastate.edu

Objective Statement

Emerging architecture professional with a strong foundation in architecture design, client relations, and project coordination. Driven by a passion for the field and an eagerness to continue learning beyond graduation, I am seeking a fulltime role in a dynamic firm where I can further expand my skills, advance my career, and actively pursue licensure.

Education

Aug 00 - Current

Bachelor of Architecture

04 - Current Hartman Spiller Trapp Architecture I Des Moines, IA I Intern I

Collaborated directly with architects, interior designers, and contractors to develop design solutions I Supported the completion of projects through interdisciplinary coordination and effective scheduling I

- Current University Transportation Service I Ames, IA I Detailer I

Clean & detail vehicles to provide a positive customer experience I Part time spent in shop completing mechanical work such as diagnostics, oil changes, and other competencies I

Iowa State University I Ames, IA I GPA 3.81 I Graduation - May 05 I Employment Jul 017 - Sep 03

Junker & Sons Landscaping I Lakeland, MN I Foreman I

Collaborated firsthand with homeowners to develop landscape plans I Responsible for the completion of jobs including patios, retaining walls, gardens, water features, and fleet service I

Awards & Honors

01 - Current President I Car Club I ISU I

- Current Dean's List

Graduated With Honors I Stillwater Area High School I

Twin Cities Autoshow I Minneapolis, MN I

Achieved honorable mention award in the first ever Project Car Contest hosted by the Twin Cities Autoshow.

Further Academic Experience June 019 Notre Dame Architecture Summer Course

Participated in a multi-week architecture program at the University of Notre Dame. Skills

I

Manufacturing I

Museum of Protest

Washington, D.C.

Our goal was to challenge the traditional white cube museum typology, redefining how we engage with history and its complexities. Situated on the National Mall in Washington, D.C., this museum is more than a repository of artifacts - it is a space for dialogue, reflection, and action. The design embraces the multifaceted nature of protest, celebrating its power to challenge societal norms and shape collective identity.

Protests embody contrasts - hope and frustration, chaos and creativity, destruction and unity. Central to the museum's design is the spatial sequence matrix, a conceptual framework developed using artificial intelligence. This matrix organizes the visitor's journey along two intersecting spectrums: darkness to light and disarray to order. It reflects the layered experiences of protest, from its raw and chaotic origins to moments of resolution and clarity. The spatial organization of the museum follows this progression, ensuring visitors experience both the emotional weight and the transformative potential of dissent.

Studio Collaborators
ARCH 403
Sage Schroder, Kylie Krass
Professor Bosuk Hur Tools Revit, Lumion, Illustrator, Photoshop

The architecture amplifies this narrative through bold contrasts in materiality, scale, and spatial organization. Dimly lit, immersive exhibits evoke the raw intensity of protests, while open, light-filled galleries celebrate resolution and unity. The museum integrates interactive installations and educational elements to encourage visitors to reflect on the past and engage critically with the present. It becomes a dynamic platform for dialogue, with spaces designed for both personal contemplation and public discourse.

Exist. Reflecting Pool
Reflection Ramp
Current Day Artist Exhibition
1900s Exhibition
Current Day Exhibition

Documentation: A collection of small scale protests & acts of activism that we experienced while visiting

visiting Washington D.C., merged with large scale protests & acts of activism documented in America's history.

Museum of Protest - Artist's Exhibition

Protests have been pivotal in shaping our nation's identity, yet their stories often go untold in mainstream narratives. The Museum of Protest fills this void, creating a place where the history of dissent is honored and its enduring relevance celebrated. By embracing complexity, diversity, and unrestrained creativity, the museum ensures that the power of protest remains visible - not only as a historical force but as a vital component of our collective future.

Museum of Protest - Model

Comprehensive Research

TreeFlow

Ames, Iowa

TreeFlow reimagines architecture as an adaptive, living system that integrates seamlessly with its local environment. Positioned as a community hub within a rehabilitated urban site in Ames, IA., this project demonstrates how buildings can become active participants in ecological restoration. By merging the use of sustainable design principles with innovative material strategies, TreeFlow transforms traditional architecture into a regenerative system, addressing issues such as water management, soil health, and community engagement.

At its core, TreeFlow explores the potential of buildings as autonomous urban systems - dynamic entities that manage energy, materials, and resources. Elevated off the ground to minimize site disruption, the building leverages permeable gabion walls and bioswales to naturally filter water runoff and combat the site's erosion and contamination challenges. These gabion systems simultaneously act as a unifying feature, seamlessly blending the structure into its surrounding landscape while supporting its ecological functions. The building's use of mass timber ensures a sustainable construction method, reducing embodied carbon, while channel glass along the north and south facades provides diffused daylight, enhancing interior comfort and minimizing energy consumption.

Studio Collaborators
ARCH 401 Jessy Muo
Professors Tools Ayodele Iyanalu, Rod Kruse
Rhino, Lumion, Illustrator, Photoshop

The design reflects a paradigm shift in architecture, positioning buildings as active contributors to the environment rather than static resource consumers. Extensive site research and design coordination shaped TreeFlow's ability to serve as an extension of the landscape itself, benefiting adjacent forests and fostering healthier ecosystems. Visitors to TreeFlow are immersed in this dynamic interplay between built and natural environments, with the building serving as both a functional and educational space.

- Learning Space

TreeFlow
1. Back of House
Storage
Exhibition
Gabion Material Exhibition 5. Bio-Wall Exhibition
Cafe 7. Retention Exhibition

TreeFlow's communal spaces amplify its mission by offering learning opportunities for visitors to understand the importance of water retention, erosion prevention, and the challenges of contaminated water. The building itself becomes a teaching tool - actively demonstrating the principles of sustainability it embodies. As visitors observe the bioswales filtering runoff, the gabion walls stabilizing soil, and the permeable surfaces improving water flow, they witness firsthand how architecture can harmonize with nature.

Greenroof Panels
Channel Glass System
Gabion Rock Modules
Mass Timber Structure
Concrete Footing, typ
Hollow Core Slabs

By redefining the relationship between the built environment and natural ecosystems, TreeFlow serves as a model for sustainable urban systems. It is more than a building - it is a regenerative system that conserves resources, restores landscapes, and educates communities, proving that architecture can play an essential role in shaping a healthier, more sustainable future.

Precast Commons

New York City, New York

Precast Commons responds to the growing demand for affordable urban housing in New York City, leveraging innovative modular precast concrete construction methods to create efficient, adaptable, and cost-effective living spaces. Situated on 113 West 136th Street, our design offers seven residential units, including a penthouse suite, and ground-level gallery space to support local artists. The modular design, which incorporates prefabricated components such as studio apartments, one-bedroom units, and circulation modules, simplifies the construction process, enabling faster assembly and cost savings. This approach is ideal for urban infill sites, allowing for flexibility in design and easy adaptation to various contexts across the city.

This project was sponsored by Wells Concrete as part of a design competition focused on urban infill housing. Our team's innovative use of modular precast concrete earned us a spot as one of the finalists, where we had the opportunity to further develop our design and explore the potential of precast forms in creating efficient, sustainable housing solutions for New York City.

Course

ARCH 348L

Professor Rob Whitehead

Collaborators

Tools

Jacob Bainbridge, Hannah Banaszak

Rhino, Lumion, Illustrator, Photoshop

Modules: 1. Roofing
Penthouse Living and Bath
Stairs and Hallway
Penthouse Bedroom 5. One Bedroom Apartments
Studio Apartments
Gallery Space
Apartment Commonspace

Market Lofts & Cafe

San Francisco, California

Market Lofts & Cafe reimagines urban living in San Francisco, merging affordable housing with vibrant public spaces to address the city's pressing social and economic challenges. Located within a collaborative masterplan designed by our collective studio, this mixed-use project provides muchneeded affordable housing and cultivates a sense of community through diverse programming, active circulation, and thoughtful connections to its surrounding urban context.

San Francisco's urban zoning at the time of this project's conception highlights the city's housing crisis, with 38% of the city zoned for single-family residences, a median renter income of $98,41, and 11.4% of the population living in poverty. Against this backdrop, Market Lofts & Cafe was designed as a high-density, mixed-use solution that embraces the vibrancy of Market Street - a cultural and infrastructural artery of San Francisco known for its convergence of activity, diversity, and life. Using Market Street as a precedent, the project draws inspiration from its geographical patterns, circulation networks, and dynamic urban energy, incorporating these qualities into the building's design.

Professors Andrew Ballard, Gautam Pradeep
Lumion, Photoshop, Illustrator
Market Lofts & Cafe - South Elevation

Situated on a mid-block plot, the site posed unique challenges, including the absence of corner exposure, leading to the need for a public outdoor pathway connecting the shared communal green space to the street. This pathway became a defining feature of the project, guiding both its spatial organization and experiential flow. The outdoor passage creates a natural extension of Market Street's bustling character, fostering movement, interaction, and connectivity. To develop this element, I conducted extensive massing studies and aligned the structural grid and circulation layout to the compass orientation of Market Street, embedding its sense of convergence and gathering within the project's fabric.

Group Site
Units, typ
Communal Patio
Units, typ Units, typ
Cafe Seating
Cafe #1
Tenant Amenities
Cafe #
Structure & Cores

South Union Bread Cafe

Des

Moines, Iowa

This renovation project reimagined South Union Bread Cafe by transforming the existing, partitioned restaurant space to better serve an evolving urban community. In close collaboration with the cafe's owners, management, and staff, I helped identify key limitations such as a constricting demising wall dividing the dining area. The design solution involved removing this barrier through four expansive openings, visually lowering the ceiling with custom acoustic panels that preserved the space's historic character, and integrating dynamic wayfinding via colorcoded tile to clearly delineate seating from circulation. Additional enhancements, including a new storage room that introduced symmetry and a reconfigured bar with an integrated order pickup station, were devised to streamline operations and improve customer flow ahead of increased demand from nearby office workers.

Working alongside our contractor, K. Johnson Construction, I maintained a hands-on role throughout the project, from site measurements and ongoing field verification to real-time troubleshooting during construction. This close engagement allowed me to ensure quality control and effectively bridge the gap between design intent and construction execution. The experience not only deepened my expertise in field verification and quality assurance but also honed my skills in operational workflow optimization, reinforcing my commitment to delivering user-centered, functional design in a professional setting.

Tools
Revit, Enscape, Photoshop
Skills Field Verifiction, Operational Workflow Optimization
Office Of Hartman Spiller Trapp
Acoustic Panels

Beauty Salon T.I.

West Des Moines, Iowa

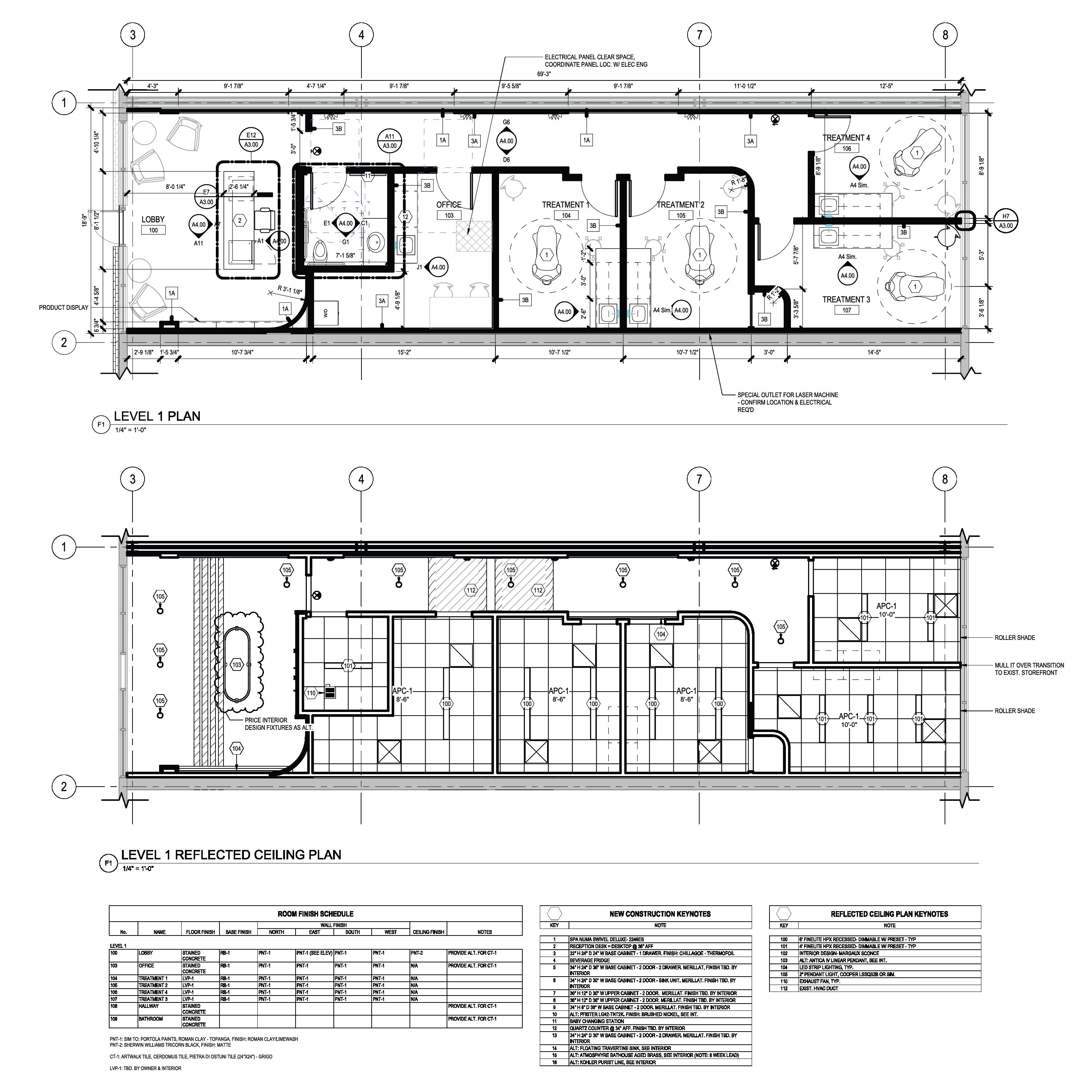
This tenant improvement project provided a unique opportunity to apply architectural detailing at a small scale while coordinating with an interdisciplinary team. Tasked with designing a refined and luxurious space for a high-end beauty salon, I worked closely with the interior design firm Era Design House, the project owners, and contractors to ensure a seamless execution. The 1,000+ square-foot space features four treatment rooms, a private office, a gender-neutral restroom, and a striking lobby designed to establish a sophisticated atmosphere. A custom millwork reception desk and feature headwall set the tone for the space, while integrated LED lighting highlights the built-in product display shelves, creating a continuous architectural datum that extends into the arched hallway entry.

This project expanded my professional skill set, allowing me the opportunity to coordinate directly with consultants and contractors while ensuring design intent was maintained through valueengineering efforts. By navigating budget constraints and working closely with the landlord and contractor, we successfully streamlined the project while preserving its high-end aesthetic. Currently in its final bidding stage, construction is set to begin in February 05. Through this experience, I strengthened my ability to integrate architectural vision with practical execution, further refining my approach to professional project delivery.

Office Of Hartman Spiller Trapp

Temple Pocket Park

Des Moines, Iowa

As part of my professional experience with Hartman Spiller Trapp Architecture, I contributed to the Temple Pocket Park project in downtown Des Moines, Iowa. This initiative reimagines an underutilized space between the Des Moines Public Library and the Temple Theater, capitalizing on its strategic location along Locust Street - an area poised for increased foot traffic due to upcoming office conversions and expanding businesses. With new restaurant openings and a growing demand for outdoor seating, our goal was to design a cost-effective, adaptable solution that would enhance the park's usability for both local businesses and the broader community.

My design introduces a prefabricated system of three custom steel panels that extend from the ground to the existing glass canopy onsite. These panels serve as a framework for a retractable canvas system, allowing flexible, three-season outdoor seating. Additionally, we replaced the existing mulch with native prairie plantings to improve water management and prevent drainage issues. Currently, the design is in the pricing phase, with plans to integrate the park improvements alongside the proposed restaurant developments in the Temple Building. This project reflects a targeted, strategic approach to urban revitalization - ensuring that a once-overlooked space now contributes meaningfully to Des Moines' evolving Central Business District.

Office Of Hartman Spiller Trapp
“People

ignore design that ignores people.” - Frank Chimero

Turn static files into dynamic content formats.

Create a flipbook
Issuu converts static files into: digital portfolios, online yearbooks, online catalogs, digital photo albums and more. Sign up and create your flipbook.
Drew Supina Portfolio - 2025 by Drew Supina - Issuu