

![]()


COFFEE & MUSIC HOUSE
Designed By; Drew Gobbi




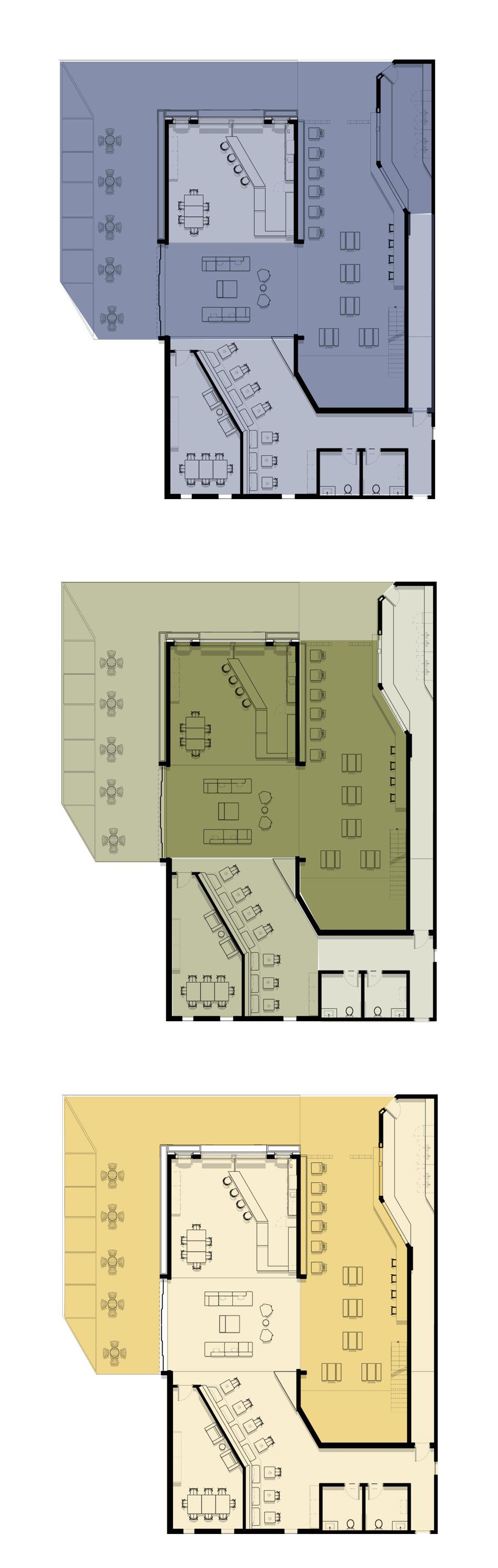
“Common Thread”is an adaptive reuse Coffee and Music house that aims to revitalize the face of Emma Avenue in downtown Springdale, Arkansas. As a result of in-depth research and experimentation, the project embraces forward-thinking and sustainability by integrating recycled materials and upcycled designs into its aesthetic and functionality.
It seeks to bring together a diverse market of coffee, wine, and music lovers in an effort to provide a ‘common’ space outside of home and work/school. Common Thread’s motto is “Where community is strung together” which promotes the collaboration of minimalist aesthetic with bold design decisions to holistically merge the sounds and sips of Springdale’s community.

“Common Thread” exists in a charming Art Deco style building built in 1934. This building was one of the 1st sites to establish Emma Avenue’s community in Springdale, Arkansas. The existing building is listed on the National Register of Historic Places.
Springdale’s population stands around 90 thousand residents and is in the Top 3 fastest growing cities in Arkansas, thanks to its thriving abundance of art,

The material focus of Common Thread is cotton, which is soft, fluffy staple fiber that grows in a boll, or protective case, around the seeds of the cotton plant. It is composed primarliy of cellulose, glucose, and fiber. Cotton is most commonly used in architecture and design through upholstery, drapery, or acoustic solutions. This adaptive reuse project seeks to push boundaries of cotton in construction by utilizing both its organic and recycled forms.
The cotton plant thrives in the Arkansas Delta Region along the Mississippi River, and is one of the states most abundant and land-devoted crops.

Organic, un-chemically modified cotton retains innate structural, acoustic, and insulative properties of the fiber and is highly recyclable and regenerative. Processed cotton is less biodegradable, but can still be recycled and given a second life through construction. Cotton recycling can save up to 20,000 liters of water per kilogram of cotton, and greatly decrease the amount of textile waste that ends up in landfills


























































