Skip to main content

Drew Blackledge - Portfolio

Page 1

Contact Info

Email: ajblackledge@gmail.com

Phone: (312) 216 -9962

Linkedin: Andrew Blackledge (http://linkedin.com/in/andrew-blackledge-27431a261)

Instagram: drewski_designs

Architecture Annex Site Plan and Force Diagram

Trim

ARCHITECTURE ANNEX 1ST

FLOOR PLAN

Scale: 1/16” = 1’-0”

ARCHITECTURE ANNEX 2ND

FLOOR PLAN

Scale: 1/16” = 1’-0”

N N

ARCHITECTURE

ANNEX EAST ELEVATION

Scale: 1/16” = 1’-0”

Scale: 1/16” = 1’-0”

ARCHITECTURE ANNEX SECTION
Architecture Annex 1303 S Goodwin Ave
V 2022
Drew Blackledge
1/16” = 1’ - 0”
Ray Wysocki
N UP UP UP UP UP UP east elevation 1 A105 A106 A104 1 1 1 2 3 4 5 6 7 8 9 10 11 12 1' 0" 0' 4" 1/16" = 1'-0" 1 Level 1
1st Floor Structural Plan
Architecture Annex 1303 S Goodwin Ave
V 2022
Drew Blackledge
1/16” = 1’ - 0” N DNDN DN DN DN DN east elevation 1 A105 A106 A104 1 2 3 4 5 6 7 8 9 10 11 12 2nd Floor Structural Plan
Ray Wysocki
Architecture Annex 1303 S Goodwin Ave Drew Blackledge V 2022 Ray Wysocki Level 1 0' - 0" Level 2 15' - 0" Level 3 31' - 0" 1 A109 Level 4 56' - 10 13/16" attic 39' - 10 13/16" watertable 5' - 4 13/16" 1/8" 1'-0" 1 Section 1
Level 0' - 0" Level 15' - 0" Level 31' - 0"Level 4 56' - 10 13/16" attic 39' - 10 13/16" watertable 5' - 4 13/16" 1/8" = 1'-0" 1 East
South Elevation and Section 1/8” = 1’ -0”
Architecture Annex 1303 S Goodwin Ave Drew Blackledge V 2022 Ray Wysocki Level 1 0' - 0" Level 2 15' - 0" 1 A107 Level 3 31' - 0" Level 4 56' - 10 13/16" attic 39' - 10 13/16" watertable 5' - 4 13/16" 1/8" = 1'-0" 1 Section 3
Level 1 0' - 0" Level 2 15' - 0"Level 3 31' - 0"Level 4 56' - 10 13/16" Level 4 56' - 10 13/16" attic 39' - 10 13/16" watertable 5' - 4 13/16" basement -12' - 0" 1'-0"
East Elevation and Section 1/8” = 1’ -0”
Architecture Annex 1303 S Goodwin Ave
V 2022
Drew Blackledge
Boatsman no name In mullions
Ray Wysocki
struc tural
Roof Joist
column
Reinforced Concrete Post Tension Floor
Footing Structural Member Diagram NTS
Concrete slab
Architecture Annex 1303 S Goodwin Ave
V 2022
Drew Blackledge
NTS
Ray Wysocki
Architecture Annex 1303 S Goodwin Ave
V 2022
Drew Blackledge
NTS
Ray Wysocki Interior Print Lab Render
Architecture Annex 1303 S Goodwin Ave
V 2022
Drew Blackledge
NTS
Ray Wysocki Exterior and Site Render

Sun Haven Park

Intersection II

Mu

Five Empties

Float Boat

Shuttlecocks

Walking to the Sky

The Way

Two Forms

Balloon Dog

Hollow Planes

2345678910Legend
1/64” = 1’0” N 1 2
78
1-
Scale:
3 4 5 6
9 10

Hollow Planes

Hollow Planes is a scupture designed to expose contrasting circulations in built spaces and natural ones.

is sculp[utr was created through 4 elevations using the golden ration. Once the 2 sets of elevations were created, they were set to interlock through plan and eventually 3D modelling.

e four interlocking vertical planes have a rigid plan which is compacted by their linear geometric form. ese geometric lines referance the built forms on this site: the art intillation and the visitors’ center.

Much like the visitors’ center and the art instillation, the materiality of Hollow Planes re ects the site while the lines contrast. e traingular tips of the vertical planes create shadows eoncompassing the surrounding space. Depending on the time of day, this sculpture can look completely di erent.

With the ranging sculptures trhoughout Sun Haven Park, Hollow Planes is meant to represent the built environment added to make this site into a place of discovery.

Sun Haven Park is a sculpture park which focusses on natrual movement and a comfortable experience highlighting the beauty of the Arizonall desert. e park is built of loose vertical and horizontal planes to connect visitors with nature. Users experience the art spread throughout the park in an environment that allows both nature and art to live as one.

e circulations of the built sturctures as well as the pathways around the park have an organic ow allowing the users to adventure and stumble upon sculptures of varying design, scale, and meaning. Multiple paths of varying length and width take visitors in winding routes through the Arizona landscape. e paths are framed vertically by a palm walk. e palm walk in this park is created by young palms on the edges of paths creating loose vertical planes. ese planes act as a natural source of way nding by keeping the visitors on set paths. Intential openings in these planes draws focus to certain sculptures or monuments.

e visitor center acts as an awaises from the harsh ways of the sun while still allowing occupants to experience the warmth of the climate. Overhead pergolas block the harsh rays during miday while still letting light into the common space. e surrounding buildings look onto this common space and take in its light without the disruption of intense sun rays.

e visitor center also promites the organic ow of the rest of the park through a circulation that allows visitors to enter the park from either east or west. An approach entrance is a key aspect of the visitor center that clearly shows visitors where to go from the parking lot.

0 1 2 4 8 VISITOR CENTER PLAN
1/4” = 1’-0” N
Scale:
0 1 2 4 8 VISITOR CENTER SECTION
Scale: 1/4” = 1’-0”

Fleure Gallary

Artifact Placed in Site Drew Blackledge
nding Artifact
1/16” = 1’-0”
Way
Scale:
Way nding Artifact Iterations

is collage represents the concept of free form way nding and organic circulation through the creation of 4 walkable planes. e paths create a linear spiral throughout the 4 planes.

Using a physcially unrealistic concept allowed the expansion of organic paths in built construction.

Using lines of sight to generate personal way nding allows occupants to personalize experiences in spaces of wandering.

With Fleure Gallary being an art exhibit, this concept enveloped the project leading to more opaque facade on all levels. is allows occupants to see glimpes of exibits that spark their interest from a far and manipulate their way ning based on interest.

WAYFINDING CONCEPTUAL COLLAGE

RENDERED CIRCULATION

The Fleure Gallary is an art gallary located on N Chestnut St and E Main St in the heart of downtown Champaign. The gallary’s design draws on generative and ciculation concepts to create a wandersome experience through interchanging exhibits.

Through experimentation with circulation in artifact ideation, the gallary has become a space where the user can choose their path based on lines of sight. With windows and screens dominating the facade, occupants can see glimpes of other exhibits they wish to visit. Basing their tour of the gallary off of the wayfinding via lines of sight allows a completely natural and personalize circulation throughout the space. The 4 staircases, 2 elevators, and 5 bridges make this possible.

Many gallaries are designed as sterile spaces to showcase the art; The Fleure Gallary uses its design to combine occupants experience with art and space. The personalized circulation allows users to create their own experience and have both the gallary and art be part of this.

FLEURE GALLARY SITE PLAN

Scale: 1/16” = 1’-0”
N 1ST FLOOR PLAN

ARCHITECTURE ANNEX

EAST ELEVATIONScale: 1/16” = 1’-0” RHINO MASSING ON SITE Scale: 1/16” = 1’-0”

PHYSICAL MODEL

Scale: 1/16” = 1’-0”

AI VARIATION

rough using DALL-E AI to variate previous renders of Fleure Gallary, alternate mass lumber buildings have been generated highloghting the same design features.

is iteration mantains the lightness in facade, overall materality, extruding roo ines, and construction style as the original concept. e compositions and levels of the buildings are alterned to give a site with 3 variating roo ines of similar buildings.

Using AI to expand concepts can lead to realization and expansions about current ideas. rough sketching AI variations, projects can have new solutions, facades, and more than align with original ideation

OTHER AI VARIATIONS

THE RAY HOUSE

WORKING SECTION

EXTERIOR SKETCH

WORKING FLOOR PLAN
PARTI DIAGRAM

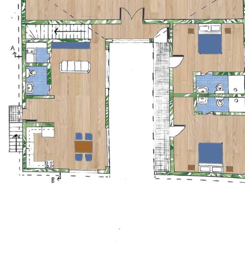
e Ray House is located on a remote site in the Amazon Rainforest. e building is stilted to prevent ooding and allow light to enter the upper exterior windows. e U shape plan allows a courtyard letting light into all spaces as well as seperating the private and public space in this residential property.

A front porch is implemented using precidents of American southern arhcitecture to be a connecting space between the entrance, living, and sleeping spaces. e inward pitch of the roof allows water to be easily collected and used throughout the property. e inwards slope also allows this home to be reclusive with lines of sight only available from interior spaces. e exterior windows spanning betwenen the rst oor walls and the roof allow light to enter but eliminate exterior lines of sight.

UP DN DN WasherWasherDryer A108 1 A108A108 2West 3 1 2 3 4 5 6 7 8 9 10 11 12 14' - 0" 1' - 0"14' - 0"1' - 0"29' - 0"1' - 0"14' - 0"1' - 0"14' - 0"0' - 10" 11'6" 21'10 1/2" 21'4 1/2" Level 1 RAY HOUSE STRUCTURAL FLOOR PLAN Scale: 1/16” = 1’-0”
Level 1 4' - 0" Level 2 19' - 0" loft 15' - 0" ground level -4' - 0" 1 2 3 4 5 6 Level 6 31'Level0" 7 29' - 6" Level 1 4' - 0" Level 2 19' - 0" loft 15' - 0" ground level -4' - 0" 7 8 9 10 11 12 Level 6 31' - 0" Level 7 29' - 6" Level 1 4' - 0" Level 2 19' - 0" loft 15' - 0" ground level -4' - 0" 7 8 9 10 11 12 Level 6 31'Level0"7 29' - 6" 1/16" = 1'-0" 1 East 1/16" = 1'-0" 2 North 1/16" = 1'-0" 3 RAY HOUSE ELEVATIONS Scale: 1/16” = 1’-0”
Level 1 4' - 0" Level 2 19' - 0" loft 15' - 0" ground level -4' - 0" 1 2 3 4 5 6 Level 6 31'Level0" 7 29' - 6" Level 1 4' - 0" Level 2 19' - 0" loft 15' - 0" 7 8 9 10 11 12 Level 6 31' - 0" Level 7 29' - 6" 1/16" = 1'-0" 1 Section 1 1/16" = 1'-0" 2 Section 2 RAY HOUSE SECTIONS Scale: 1/16” = 1’-0”

Small Scale Design

Concept Board Croquetes

Work Board

Flats

Sustainable Outerwear Line

I wanted to create an innovative and versatile vest which adhered to sustainable strategies. To do this I started with square shaped fabrics. e cut was made from the neck, and the sleeves were originally cut out. To make the vest more usable, I decided to loosely attach the removable sleeve with a thick removable stitch. is acts as an aesthetic aspect of the vest as well as allowing its functionality to align with that of a sweater if needed. is multifunctional design allows the clothing to be more usable in di erent circumstances. With the piece ful lling two wardrobe functions, it requires the consumer to buy less pieces. is causes less waste to be produced. e vest is made out of hempbers which are plant based. e sustainable bene ts of this material include less water use in the growing process, fertilization of soil, mold resistant clothing, and UV protective clothing.

Turn static files into dynamic content formats.

Create a flipbook