Skip to main content

ARCHITECTURE PORTOFOLIO

Page 1


ABOUT

A determined open-minded person, searching for the optimum solutions.

Intuitive and pragmatic, I am always eager to get involved in new projects and learn from the best. I gain most satisfaction when I’m challenged to question my knowledge about architecture, design, visuals, craftmanship, having in mind that its the only way to develop as a human being and also as a professional. I insist on dreaming on something greater than myself, yet passionate about aesthetics in terms of architecture and product design, constantly thinking about how architecture can help in solving problems which would lead to an optimistic future for us people and the planet we live on.

RESUME Architect |2ND year right of signature

DOB: 27.04.1997 (27 years)

POB: BICAZ, NT, ROMANIA

EXPERIENCE

2023-2024 Junior Architect at KXL | 1 year

2022-2023

2019-2021

2019-April

2018-April

2017-April

2016-April

ABILITIES

Technical

Full-time contract under OAR certified architect

Junior Architect at IDEART | 1 year

Full-time contract under OAR certified architect : prof.dr.arh. Dan Marin

Freelancer in Graphic Design and Product Photography

Logo making, interior | exterior renditions, photographic presentations

UAUIM Photography Workshop

Denmark study trip

UAUIM Architectural Workshop

France/Germany/Switzerland study trip, photography, sketching

stuFF-10_PNC | IMUAU Design Workshop

Romexpo Exhibition

UAUIM Architectural Workshop

Italy/Greece study trip, photography, sketching, model making projects

Autocad Revit

Visual Redaction

2015-2021

2011-2015

3ds Max

Drafting Photoshop

3D Modelling Illustrator

Rhino Lightroom

Physical Modelling

Photography

Unreal Engine

InDesign

Microsoft Office

Acrobat

Building Permit Documentation

EDUCATION LANGUAGES ACHIEVEMENTS

“Ion Mincu” University of Architecture and Urbanism - Architecture

“Petru Rareș” National College - Mathematics and Informatics

Romanian - native proficiency

English - full professional proficiency

French - elementary proficiency

Spanish - elementary proficiency

2022 Help autism campus - ONG - architecture competition | 2ND mention

Romanian architecture annual XXth edition - portofolio projects category | 1ST mention

2021 Bioclimatic house - Alumil - architecture competition | 1ST place

2018 CocaCola packaging design - special edition | shortlisted

2017 Prototype for community - Holcim - architecture competition | special mention

2015 “Ion Mincu” University of Architecture and Urbanism - Admission Contest | top 10

TABLE OF CONTENTS

COMPETITIONS

08-18 CIBIN URBAN REGENERATION

21-30 HELP AUTISM CAMPUS

33-36 BIOCLIMATIC HOUSE

ACADEMIC

38-52 DIPLOMA PROJECT

COMPETITIONS

URBAN REGENERATION OF CIBIN MARKET AREA (Entry)

PROJECT LOCATION: SIBIU (HERMANNSTADT) , ROMANIA TYPE: OAR INTL. COMPETITION YEAR: 2023 (3 MONTHS)

FUNCTION: ARGI-FOOD PUBLIC MARKET(S+P+2E+ER)

ADJACENT: (URBAN SQUARES RENEWAL, PUBLIC PARKING REVAMP, REVEGETATION)

At the intersection of the Cibin River and Turnului Street, the Cibin Square area emerges as a pivotal node, embodying the essence of urban connectivity and symbolism. The proposed ensemble embraces the dual significance of its urban thoroughfare and iconic presence.

Cibin Market : An Urban Square Beyond a Traditional Market Nestled amidst the bustling arteries of Malului Street and Cibin Street, the envisioned building retreats from Turnului Street, giving rise to a vibrant urban square that assumes a multifaceted role:an inviting gateway to the agri-food market, a focal point accentuating the Central Bank building and a space that reveals fragments of archaeological heritage.

On the opposing facade of this newfound square, a row of majestic trees takes its place, acting as a green boundary that artfully conceals the Siemens building and marks the inception of a verdant pathway leading towards the historic center. Turnului Street – revegetation and unsealing

As the primary link between Cibin Square and the historic center, especially the area surrounding the Evangelical Church of Saint Mary, Turnului Street undergoes a revitalization process aimed at alleviating congestion and transforming it into a green corridor towards the historical centre with a two-way cycle track, while the right side endeavors to double existing parking spaces with the added tree lines.

The building’s strategic placement establishes an urban plaza, serving as a testament to its pivotal position within the cityscape, while also providing glimpses into the tapestry of history.

TEAM: AUTHOR prof.dr.arh. DAN MARIN CO-AUTHORS arh. MĂZĂRIANU DRAGOȘ-ANDREI arh. PÎNTEA RUBEN-OTNIEL

stud.arh. AMBROSĂ ALEXANDRU ASSOCIATES arh. VOICU ALEXANDRU stud.arh. SENCU POLINA

Spatially manifested, the building’s layout emerges into a prismatic volume, embedded within the horizontal alignment of the Cibin axis and the city’s distinctive silhouette. Simultaneously, its elevated stature allows the terrace on the topmost level to offer an expansive panorama, encompassing enchanting vistas of the historic center and the Cibin River.

The exposed brick facade of the building not only evokes the memory of the ancient fortifications that once stood in this very location but also pays homage to the materiality that characterizes medieval Sibiu, which continues to resonate in the historic center. Addressing both functional and urban requirements, the architectural treatment varies between opaque brick panels for the parking floors and transparent sliding glass panels for the ground floor housing the market.

Piața Cibin Street - traffic clarification

Piața Cibin Street, spanning along its length, is dedicated to a taxi rank and temporary stopping areas, accommodating tourist coaches of all kinds, easily accessible from Turnului Street. On its shorter side, primarily intended for circulation within the supply area and providing access to the aboveground parking, a temporary traders’ parking lot is proposed, extending partially towards Malului Street. Additionally, the intersection with Malului Street serves as the designated rental point for bicycles and electric scooters.

At street level, a punctuated perimeter structure and a centralized supply area liberate the facades, opening them entirely to the plaza and the adjacent streets.

Up above the frontal perspective shows the main entrance of the market.In front of the proposed ensemble an urban plazza emerges where the visitors can observe the archeological remains of the bastion.

Moș Ion Roată Street – revegetation

Despite the narrowness of the site, the existing parking on Moș Ion Roată Str. is reconfigured to accommodate an alignment of trees, delineating the street from the courtyard of the Art School. Piațeta Coroana - intensification of vegetation

Renowned for its central fountain, Piațeta Coroana retains its original layout and lush greenery, with the removal of the parking lot on Târgul Vinului Street. To further enhance the presence of the market, a row of trees is planted along Turnului and Târgul Vinului streets, providing a definitive boundary that safeguards and defines the pedestrian space. Additionally, the restoration and revitalization of adjacent buildings, housing cafes and restaurants, contribute to the overall vibrancy and allure of this charming square.

Gong Theater Square – a space for outdoor performances

Taking advantage of the terrain’s unique contours, the Gong Theater Square undergoes a reimagining, seamlessly extending its functions into the external realm. Through slight modifications to the curve of Alexandru Odobescu Street, the pedestrian space in front of the theater is amplified. On the opposite side, two elevated platforms, demarcated by planters and trees, restore the horizontal expanse, serving as versatile spaces for relaxation or outdoor performances, in perfect harmony with the theater.

The setbacks on the upper levels create terraces that afford captivating views of the historical center and the river valley, allowing visitors to immerse in the scenic beauty of the surroundings.

ARCHITECTURAL OBJECT

The architectural proposal for the Cibin agri-food market harmoniously amalgamates various references, both general and site-specific, rooted in the program’s nature, historical context, and contemporary requirements.

1. The typological reference:

- The enclosure with dual orientation finds inspiration from the ancient market (macellum) of Ostia.

- The portico design draws influence from the historic Butchers’ Guild Hall in Sibiu.

- The covered space concept is reminiscent of Victor Baltard’s Les Halles Centrales in Paris.

2. Historical reference:

- The brick bastion pays homage to the iconic Haller Bastion in Sibiu.

3. Contextual reference:

- The sloping roof adorned with a pinion captures the essence of the Butchers’ Guild Hall and the historic houses in Sibiu’s city center. Building upon these references, the spatial composition and materiality of the structure exemplify the fusion of pragmatic functionality and symbolic expression. This synthesis manifests within the ensemble through:

1. A central, glass-enclosed space that serves as a gathering point, protected yet inviting.

2. Equitable openings on three sides, ensuring optimal accessibility. As a reverential nod to the former bastion that once graced this location, the brick volume embodies this concept, both in materiality and perceived solidity.

Haller Bastion in Sibiu Butchers’ Guild Hall in Sibiu
Rooftop restaurant perspective towards the historical city spires and Făgăraș mountains

The ground floor, aligned with the sidewalk, is exclusively reserved for the agri-food market. Designed as a transparent space, it integrates with its surroundings through sliding glass panels that can be retracted to enhance access and unify the interior and exterior spaces.

The strategic positioning of traffic nodes facilitates a vertical expansion of the public realm, enabling flexible utilization of the upper levels.

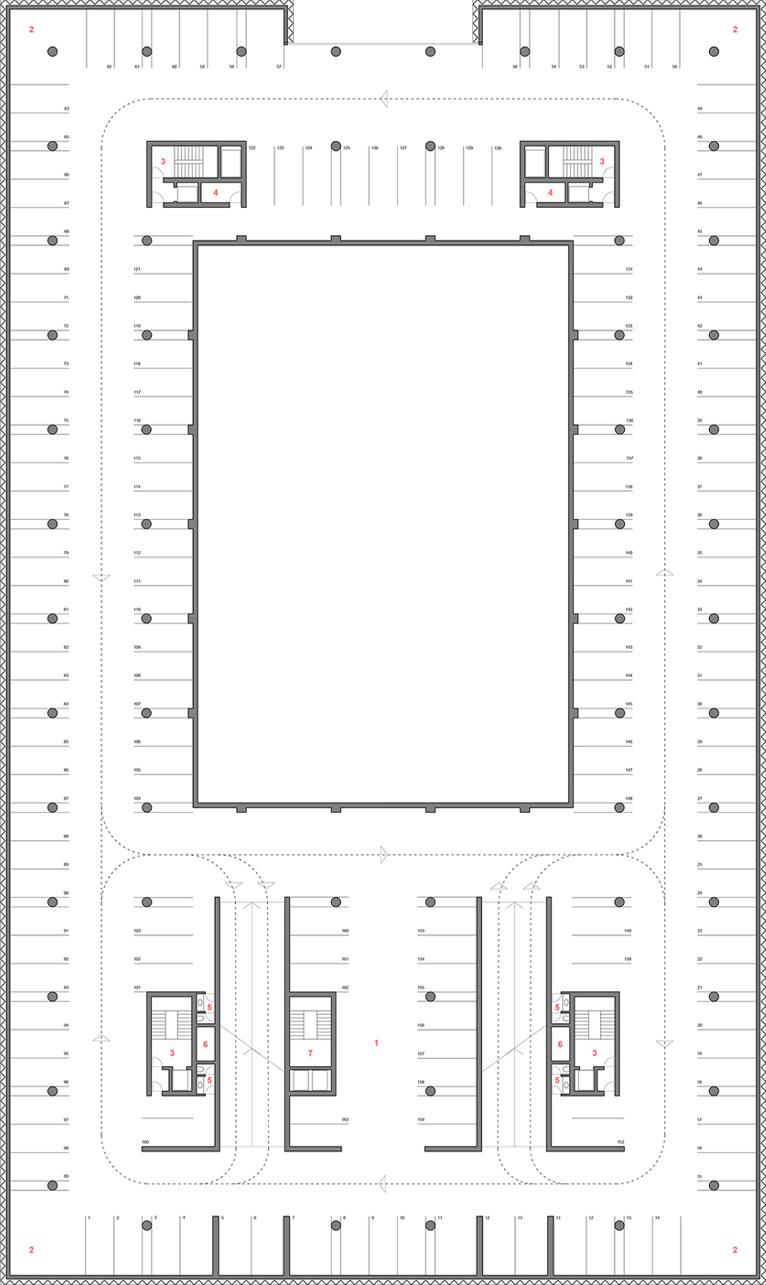
The first and second floors provide parking spaces for 326 cars and 32 motorcycles, respectively.

The third floor encompasses complementary functions, featuring three distinct areas: an exhibition space facing north, offering panoramic views of the plaza and Turnului Street; a versatile area for commercial or cultural activities and an area dedicated to restaurants and terraces that overlook the Cibin River on one side and the historic center on the other.

The arrangement of these functions around a central space, spanning multiple levels, ensures natural ventilation and ample natural light for the agri-food market. Solar protection is achieved through the silk-screening of the skylight’s glass enclosure and an additional retractable textile awning mounted externally.

In harmony with the surrounding architectural fabric, the proposed volume adheres to a height regime comparable to neighboring buildings such as the Siemens Building and the Central Bank.

By seamlessly integrating into the historical silhouette of the city, dominated by the tower of the Evangelical Church of St. Mary, the design contributes to the altimetric hierarchy between the “lower city” and the “upper city.”

Up above an aerial view shows the main competition site with the market emerging alongside the Cibin river. The intervention resumes towards the city centre via Turnului Street encompassing a suite of urban moments.
Butchers’ Guild Hall in SibiuLes Halles Centrales in Paris
Rooftop bar perspective towards the Cibin river

1

TÂRGUL PEȘTELUI GONG THEATRE COROANA SQUARE

As the primary link between Cibin Square and the historic center, especially the area surrounding the Evangelical Church of Saint Mary, Turnului Street undergoes a revitalization process aimed at alleviating congestion and transforming it into a green corridor towards the historical city centre. The left side of the street replaces current parking lots with a two-way cycle track (2.50m) and a symmetrical line of trees, while the right side endeavors to double existing parking spaces with the addition of a tree-lined boundary.

Taking advantage of the terrain’s unique contours, the Gong Theater Square undergoes a reimagining, seamlessly extending its functions into the external realm. On the opposite side, two elevated platforms, demarcated by planters and trees, restore the horizontal expanse, serving as versatile spaces for relaxation or outdoor performances, in perfect harmony with the theater. These platforms stand as autonomous spaces or can seamlessly merge with the theater to accommodate performances, amplifying the pedestrian realm.

To further enhance the presence of the

and

a row

is

providing a definitive boundary that safeguards and defines the pedestrian space. Additionally, the restoration and revitalization of adjacent buildings, housing cafes and restaurants, contribute to the overall vibrancy and allure of this charming

Turnului str. near tg. Peștelui Square
Tg. Peștelui square plan 1:1000
Gong square plan 1:1000
Coroana square plan 1:1000
Renowned for its central fountain, Piațeta Coroana retains its original layout and lush greenery, with the removal of the parking lot on Târgul Vinului Street.
market,
of trees
planted along Turnului
Târgul Vinului streets,
square.
Gong theatre general view
Coroana square
Platform close-up
Turnului str. elevation 1:1000
Ensemble short section 1:1000
Malului str. elevation 1:1000
Ensemble long section 1:1000
Turnului str. perspective
Malului str. perspective
Main entrance

4

3

5

1

1

2

3

4

5

6

Malului str. sidewalk perspective
Piața Cibin str. perspective

HELP AUTISM CAMPUS (2ND mention)

PROJECT LOCATION: URICANI (CÂMPUL LUI NEAG,HD) , RO TYPE: OAR COMPETITION YEAR: 2022 (5 MONTHS)

FUNCTION: HEALTH FACILITY (S+P+E) (SENSORY GARDEN, PLAYGROUNDS, THERAPY SPACES, TELESCOPE PLATFORM, GARDENING) ADJACENT SITE AMENITIES (ENDEMIC FLOWERS GATHERING CENTRE, FISHING AREA, ORCHARD ,BONFIRE AREA)

The image of the ensemble was conceived as a continuous horizontal structure anchored in the site, featuring lightweight prefabricated elements that reduce the volume’s massiveness, thus achieving a human-scale proportion.

The colors used are found in nature and have a low contrast, making them ideal for individuals with ASD and demonstrating a beneficial effect in the context of prolonged exposure to them. The interior courtyard was designed as a protected sensory garden, a space for relaxation and learning through various activities that stimulate multiple senses.

The multifunctional interior space can be subdivided into three more intimate spaces and features CLT walls with soundabsorbing treatment and diffused blinds that can reduce external stimuli levels, creating a calm and conducive environment for learning.

Each interior space directly connects with nature through generous glazed surfaces that allow natural light to penetrate the interior, resulting in a strong positive impact on health. Shading devices have been used to control natural light and glare in all interior spaces. Wood is the predominant material for the facade and interiors, creating a warm and domestic atmosphere for children.This design approach aims to bring the architecture closer to the human scale and create a child-friendly environment with constant access to nature, similar to their homes.

TEAM: arh. MĂZĂRIANU DRAGOȘ-ANDREI arh. PÎNTEA RUBEN-OTNIEL

stud.arh. AMBROSĂ ALEXANDRU

To control the intensity of sounds that cause discomfort to individuals with autism, a clear separation was applied at the plan level between communal spaces and accommodation units.

Noise-generating spaces were positioned in the basement, while CLT sound-absorbing walls were used within the accommodation units to provide good acoustic insulation.

Noise-generating spaces such as technical rooms and the kitchen are positioned in the basement, benefiting from light courtyards to avoid disturbing therapy activities. CLT soundabsorbing walls are used within the accommodation units to provide good acoustic insulation between private and communal spaces.

The ensemble has been designed with accessibility in mind, ensuring that all spaces and activities are accessible to everyone. Elevators were designed at each vertical circulation node to access the first floor.

Access to each space is marked primarily by architectural elements (access pergola at the entrance to the ensemble and pockets at each access to the accommodation units), and then by contrasting visual elements.

Up above the frontal perspective shows the main entrance of the campus. The proposed ensemble emerges in a mountain area where the patients ranging from 4 to 20 years attend to a suite of therapeutical programs.

The construction materials used are recyclable and have a reduced carbon footprint. The construction was designed with energy efficiency principles to reduce operating costs and minimize its negative impact on the environment.

The ensemble includes both communal interior and exterior spaces that promote socialization and communion, as well as private escape spaces (individual accommodation units, individual outdoor rest areas) to provide users with the opportunity to participate in group activities or retreat. The interior areas strike a balance between intimate, quiet spaces and those with access to multiple sensory stimuli.

The circulation is continuous, predictable, without dead ends. The constant visual openness towards the interior courtyard provides users with a good overall orientation and the ability to anticipate the spaces as they move through them.

Along the circulation, visual and tactile signage elements have been used to ensure good orientation both in the garden and in the interior ensemble.

The circular shape of the ensemble facilitates the creation of a protected outdoor environment for children, with minimal risks and enhanced visibility. The perimeter of the ensemble’s exterior garden is clearly delimited by a protective fence doubled with vegetation and controlled access at the site entrance.

The design of the ensemble sets it apart from the majority of therapeutic institutions in Romania in terms of scale and materiality. It features a flattened circular volume made of wood that stretches organically across the wide plateau of the site, with a low height (P+1) and a free geometry.

The colors used are pastel tones found in nature, without strong contrast.

The interior spaces directly communicate with the exterior through generous glazed surfaces that allow natural light to penetrate the interior, which has a strong positive impact on health. The construction benefits from controlled ventilation for ventilation through a high-performance heat exchanger.

Due to the narrow width of the volume, efficient natural ventilation of the interior space can be ensured, thereby reducing the energy consumption required for artificial cooling during the summer.

2

3

4

5

6

All spaces within the ensemble have ample openings towards the natural context; the interior garden promotes access to nature both on the ground floor and on the first floor through the green terrace. Each interior space communicates directly with nature through generous glazed surfaces that allow natural light to penetrate the interior, which has a strong positive impact on health. Shading devices have been used to control natural light and glare in all interior spaces. Wood is the predominant material for the facade and interiors, creating a warm and domestic atmosphere for children.

The shared spaces are positioned on the ground floor, clearly delimited from the accommodation units by vertical circulation nodes. The proposed ensemble’s circular shape allowed for the creation of a simple, optimized, and intuitive circulation throughout its interior spaces. The constant visual openness towards the interior courtyard provides users with a good overall orientation and the ability to anticipate the spaces as they move through them. Along the circulation, graphic signage elements have been used to ensure good orientation both in the garden and in the interior ensemble.

Users have the option to use multiple pedestrian routes along the access road or pathways connected through the orchard that lead to the building and all the relaxation spaces in the garden (play area, campfire, riverbed).

The construction’s floor level coincides with the exterior level at all entrances, making it easy for all users to enter.

Both the interior and exterior spaces have been designed to accommodate multiple activities according to the current needs of children and possible future needs. Thus, the shared spaces have been designed free of structure within the floor plan and feature movable walls that can easily subdivide the space to function in different scenarios.

Site plan 1:800 (AREA 13514m2) Legend:

D.1 PLAYGROUND

D.2 SENSORY GARDEN

D.3 TRAFFIC SIMULATION

D.4 GARDENING AREA

D.5 BONFIRE AREA

D.6 AMPHITHEATRE AREA

G.1 PARKING

G.2 GATEKEEPING

G.3 WALKWAYS/ROADS

L. ORCHARD

Campus section 1:800
Hallway rendition
Hillside ensemble rendition
Exterior ensemble rendition
Inner courtyard rendition

Load-bearing CLT wall system 120mm load-bearing CLT wall (5 layers) with acoustic treatment: 12mm plasterboard+7cm mineral wool+1,5cm cavity. The system is recommended by its good sound absorbtion Rw=68dB while having low carbon footprint (83kgCO2/m3) in comparison with standard issue concrete walls (419kgCO2/m3).

01. Solar energy - solar panels on S,E,V roof areas generate near 100% of the buildings energetic load.

02. Wall-to-opening ratio -window surface below 50%

04. Triple glass frame - effective window design ensures low thermal conductivity coefficient on prolonged sun exposure while having an anti-glare filter (sunlight washes all the necessary indoor spaces without disturbant glaring).

05. Shading systems - shaded outdoor terraces that prevent edifice overheating during summer while permitting natural light in cold seasons. - roller blinds mounted on the exterior window frames throughout the ensemble (better natural light control and interior overheating prevention during summertime). sun rays beyond 68o angle of incidence are stopped by terraces.

06. Optimal sealing - vapour membrane blocking undesired air bleeds

07. Rainwater collector - graywater reuse

08. Locally sourced materials for a more sustainable approach - CLT elements for structural elements - chemically treated wood boards for the ventilated facade.

09. Compact extents - reduced exterior footprint

10. Continuous thermal insulation - 30cm(roof)/15cm(walls) rigid mineral wool - 50cm geocell glass foam for foundation.

11. Heat recycling ventilation - double flow-controlled ventilation with high performance heat pumps.

03. N-S natural ventilation
Room rendition
Balcony rendition

BIOCLIMATIC HOUSE (1ST place & 1ST mention at romanian architecture annual XX TH edition)

PROJECT LOCATION: FICTIVE (LAKE NEAR BUCHAREST) ,RO

TYPE: OAR COMPETITION (ALUMIL)

YEAR: 2021 (2 MONTHS)

FUNCTION: RESIDENTIAL (P+E)

ADJACENT SITE AMENITIES (PRIVATE LAKE DOCK)

TEAM: arh. MĂZĂRIANU DRAGOȘ-ANDREI

arh. PÎNTEA RUBEN-OTNIEL

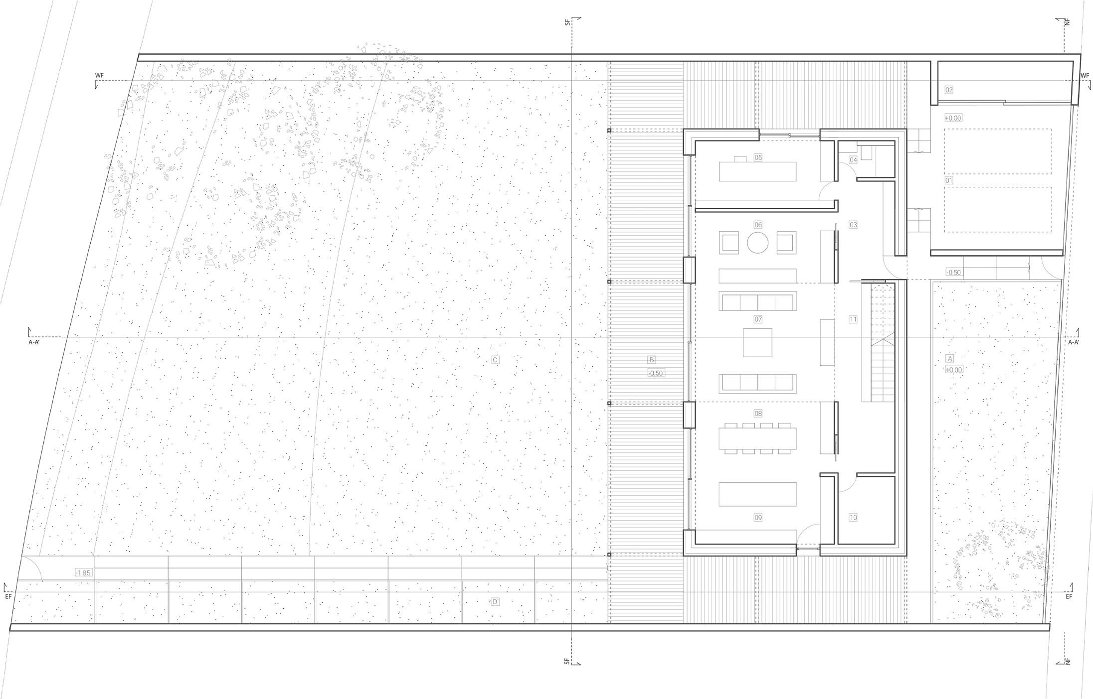
Up above a rendition as viewed from the shore encompases the buildings’ relation with its surrondings. A sloping private garden that fully opens to the lake seamlessly transitions inside the living spaces via a continuous terrace.

The given site represents an ideal case for designing a bioclimatic dwelling. It offers a generous opening that gently slopes towards the lake in the southern part. Since there are no precise details about the occupants of the house, we decided to start the study from the existing element - the garden. The dwelling extends along the entire short side of the plot and retreats towards the end of the site, thus obtaining a spacious garden in the southern part that overlooks the lake.

The north facade of the house is doubled by the service area, an opaque barrier that shelters the house and frees up the plan to achieve a continuous interior space in relation to the garden.

All the noble spaces of the dwelling are directly connected to it and oriented towards the landscape. Although the architectural language used is contemporary, we wanted the architecture of the house to integrate into the natural context:

- the ground floor has a tectonic character, a strong horizontal element anchored in the ground, materialized by a continuous terrace that traverses the entire ground floor of the house, covered with a pergola that opens and closes to provide suitable shading in the context of intense summer sun or protect the terrace from precipitation.

This is an important element of the house; it extends along all three sunny facades, enlarging the interior space towards the landscape and creating more secluded areas on the sides of the house. The upper floor uses a different language, a wooden cladding, a gable roof that is not only the result of the desired aesthetics but also responds to the requirements related to the specific precipitation of the area and has a suitable angle for integrating solar panels.

These panels are rigorously divided, achieving coherence of the facade.

The living space is continuous, segmented by furniture pieces, and the most important space in the house, the living room, is centrally located and spans two stories in height, benefiting from ample natural light through sliding windows and zenithal lighting.

The master bedroom and kitchen are oriented towards the southeast, thus obtaining energizing natural light from the early hours of the morning, while the study spaces are oriented towards the southwest to benefit from more light in the later part of the day.

The long side of the plot is accentuated by a pathway that descends towards the esplanade bordering the lake. Along this pathway, a vegetable garden has been created in direct relation to the house’s kitchen. The entire house has been lowered by 50 cm from the street level to allow for the placement of the garage within the northern limit of the plot.

Bioclimatic scheme 1:100

SCHEME LEGEND:

1. Solar Energy

- 46 photovoltaic panels arranged on the SOUTH produce 20kW (5 times more than average household 4kW draw)

2. Triple glazed High-performance Windows

- high-performance sun-oriented Alumil windows with low U-factor (favors the penetration of natural light in all spaces in the house)

3. Shading Systems - Alumil bioclimatic pergola arranged on the 3 illuminated sides of the ground floor of the house (closes and opens automatically to prevent overheating during summer and encourage natural light penetration during the winter)

- Alumil roller shutters located in the outer side of all windows in the house (prevents interior space overheating in summer)

4. Compact Volume - reducing the contact surface with the outside;

5. Waterproofed - vapor barrier to remove unwanted air leaks;

6. Rainwater Tank - graywater reuse for household use;

7. Natural Ventilation N - S

8. Continuous thermal insulation

- rigid mineral wool 30cm for roof and walls;

- glass foam thermal insulation 40 cm for the foundation;

9. Heat Recovery Ventilation

- mechanical ventilation controlledwith double flow for ventilation, high performance heat exchanger;

10. Geothermal Heat Pump

11. Natural Materials

- CLT panels for structure (cross laminated timber);

- solid wood planks (ventilated facade);

12. Windfang

- thermal buffer

13. Outdoor garage + EV Charger

- does not communicate directly with the interior of the house to prevent heat transfer;

14. Cold Air Barrier against N currents

- high fence at the N limit of the site;

- less than 70% glazing on the N facade;

15. CHILDREN ROOM 1
CHILDREN ROOM 2
MAIN BATHROOM
18. MASTER BEDROOM
VESTIBULE
SANITARY FACILITY
OFFICE ROOM
LOUNGE AREA
LIVING ROOM
DINING ROOM 09. KITCHEN 10. TECHNICAL ROOM 11. STAIRCASE

ACADEMIC

DIPLOMA PROJECT

PROJECT

LOCATION: ROMAN (NT) , ROMANIA TYPE: ACADEMIC (UAUIM) YEAR: 2021

FUNCTION: HOUSING (P+4E) , CULTURAL (S+P+1E+M)

ADJACENT: URBAN FABRIC AND HISTORICAL MONUMENTS RENEWAL, PUBLIC PARKING AREAS REVAMP, REVEGETATION AND SUSTAINABLE PLANNING

MISSION STATEMENT

MENTEE: stud.arh. MĂZĂRIANU DRAGOȘ-ANDREI

MENTOR: prof.dr.arh. DAN MARIN

The current identity problematic of a given neglected historical urban fabric is often heard of when we are refering to small scale city without any global importance, that still a historical marker. This uncertain nature, especially the everchanging 20th century transformations, generated a response that favours old town continuity. Main analysis subject, the armenian historical monuments, although resilitent, get to face the consequences of a dissonant urban scene.

The socialist approach to urban sequences and also the functionally forsaken armeninan church represented the perfect opportunity for an urban renewal followed by a given cultural purpose for the building.

The armeninan church, main beacon of the armenian community and urban island, remains disconnected from the main historical central fare road due to bad outcome in general. By generating a masterplan for the city centre, the project is just the first step in a successfully implemented intervention.

CITY OF ROMAN, NT

The earliest mentions of the city can be found in the Chronicle of Novgorod, dating approximately to 1387, as well as in Nestor’s chronicle. The flrst internai document is a deed of donation dated 30 March 1392. lt is believed that the name of the city was derived from Roman I Muşat, who is considered its founder.

Throughout its history, Roman has remained one of the mast important urban centers in Moldova. lt has gained this significance due to its cosmopolitan nature, attributed to the presence of several ethnic groups. ln addition to the Romanian community, there are significant communities of Armenians, Jews, and Catholics. Roman I exempted Jews from military service in exchange for a tax.

The city was largely destroyed in 1467 during Matei Corvin’s campaign in Moldavia but was subsequently rebuilt under the rule of Stephen the Great. The medieval importance of Roman is demonstrated by the presence of an archbishopric in the city, which served as the religious and administrative center of both

Roman and the wider Moldova region. Due to the lack of certain documents accurately attesting to the founding date of the archdiocese, historians believe it was most likely established between 1408 and 1413, during the reign of Alexander the Good, who is considered the organizer of the church hierarchy in Moldova.

According to Dimitri Cantemir’s “Description of Moldova,” the increase in Moldova’s population necessitated the establishment of three additional hierarchical seats to assist the metropolitan. These seats were located in Roman, Rădăuți, and Huși. However, only the bishops from Rădăuți and Huși were granted the title of bishop. The bishop of Roman was appointed as an archbishop and allowed to wear the bishop’s miter during church services, but he did not hold superior authority over the other bishops, having only primacy.

By the end of the 19th century, Roman had become an urban commune and the administrative center of Roman County, with a population of 14,019 inhabitants living in 2,500 houses.

The town boasted a seminar with four classes, a gymnasium, vocational schools for boys and girls, three primary schools for boys and two for girls, as well as separate schools for boys and girls within the Armenian community.

It also had six Orthodox churches, an Orthodox chapel, a Catholic chapel, an Armenian church dating back to 1809, and a hospital. During that time, the current commune of Carol 1 operated within the territory, with its village of residence now forming the Nicolae Balcescu neighborhood. According to the 1925 Socec Yearbook, the city still served as the residence of the same county and had a population of 18,300 inhabitants. In 1950, Roman attained the status of a regional city and became the residence of Roman District in the Bacau region (between 1952-1956, in the lași Region). However, as a result of Nicolae Ceaușescu’s administrative reforms starting in 1968, Roman County was not reinstated. Instead, the city was designated as a municipality and placed under Neamț County.

1972 City map
Vintage postcards with Roman of unknown origin

Site plan 1:20000

1. The ensemble consisting of the monuments: Great Precista Church, Bell Tower, Old Hospital, and St. George Theological Seminary.

2. “Roman Mușat” Square

3. Old jewish public bath

4. “The Pit” - former historical center

5. The ensemble of Armenian Church and Armenian School

6. The space formed by a monumental house.

UNDERLYING PROBLEMSPREPOSITION

The following proposed sites for analysis represent testimonies of the past, urban spaces full of significance that host heritage objects deeply ingrained in the consciousness of the inhabitants.

Although they should be the main attractions of the city, they are forgotten or neglected and “suffocated” by parasites. All of them need to be promptly restored as they are the most important historical sites of the city of Roman.

In the case of the fourth site, these testimonies have completely disappeared during the socialist period when “Ştefan cel Mare” Street, the most important commercial street in the city, was destroyed, the historic center was demolished, and in its place, the “pit” was created - the current Ştefan cel Mare Pedestrian Street, lined with residential blocks that bring with them the spirit of uniformity, completely opposite to the specificity of the place offered by the old city.

Each of the designated sites represents valuable urban spaces that need to be reclaimed.

I have chosen to delve into the study of the ensemble composed of the existing Armenian Church and the Armenian School monuments , which require valorization.

The selected site is suitable for an intervention at both the urban planning and architectural levels. The intention is to structure the area, rid it of parasites, and provide it to the city.

In the case of the depersonalized pedestrian area, I will propose a massive plantation that will consolidate the city’s historical axis.

MASTERPLAN

The previously mentioned spaces need to be valorized and urgently reclaimed.

In the case of the pedestrian area, a dense plantation and refurbishment of existing blocks are proposed.

CIRCULATION

The studied site opens up towards the main road that traverses the city, which facilitates access through public transportation lines. Issues can be observed at the level of alleyways, which have transformed into connecting streets, disrupting the existing vegetal fabric.

The proposed solution suggests connecting these urban spaces through a network of vegetation, which would enhance their perception in collective memory while providing structure and revitalization to the city.

Thus, the “pit” transforms into an attractive and welcoming central place. The poor context generated by socialist interventions (blindwall and annex constructions that degrade the old spirit of the place).

FUNCTIONS

The analyzed area reveals that the majority of functions found here are of public utility.

Considering that we are located in the city center, any function incorporated here should serve the community.

The analyzed area on the attached map reveals a significant lack of cultural spaces in the heart of the city. Therefore, the proposed recovery of the initial program contributes to this issue and also brings back the nostalgia of a forgotten past in a contemporary form.

The dysfunctionality of the island and the abandonment of the original cultural program of the building.

HEIGHT MAP

We find low-rise dwellings from the old fabric, mostly dominated by medium-rise collective housing buildings with a ground floor plus four additional floors (P+4), with the focal points being the church steeples rising above the density of residential blocks that follow the general rule.

Perimeter of study

Central area with mixed functions

Housing area(<P+2) +adjacent functions

Housing area(>P+2) +adjacent functions

URBAN SALOON

To restore the integrity of the island and preserve its historical character, the removal or relocation of small service functions is proposed, as they defy the urban planning rules in the protected area.

06. Cantacuzino green space

07. Landscaped green space

09. Roman water park

10. Riverside promenade

The ground floors of these volumes serve the community with various public catering functions and a street exhibition space. Through this connection, new residential units will be generated, which will enjoy the image of a reconstituted green space as it once was.

At the scale of the island, two volumes are proposed to complete and restore the park’s frontage by creating a unified image of housing.QQQWQQQQ

The choice of the program is determined by the natural continuation of a well-known function within the communitythe children’s club.

The Armenian school will be the subject of an educational center aimed at preparing young people in various current fields, different from traditional education: versatile workshops, computer labs, etc.

- 1929, Category B

12. Municipal Library - 1890, Category B 13. Armenian School (Student Club) - 19th century, Category B 14. Armenian Church - 1609, Category A 15. House, currently Police Headquarters - 19th century, Category B 16. “St. Voivodes” Church - 1611-1615, Category B

17. House, currently Kindergarten - 19th century, Category B 18. Fălcoianu House (History Museum) - cca. 1900, Category B 19. Cantacuzino House - 19th century, Category B

20. “Roman Vodă” High School - 19th-20th century, Category B 21. Hogaş Villa - 19th century, Category B 22. Sergiu Celibidache House - 1828, Category B

23. Elderly Home - 1850, Category B

School No. 1 (1885, Category B)

Aerial view of the pit - Before
Aerial view of the pit - After

ARMENIAN ENSEMBLE

As early as the fifth century, Byzantine emperors used to relocate the Armenian population to provinces outside Armenia, especially the Balkans. In the ninth century, as a result of the repression of the socialsectarian movement of the Pavlicians, Emperor Valle I deported large masses of people from Armenia to the northwestern parts of the empire, especially to Macedonia. During this period, the Armenian colonies were founded in Bulgaria, Greece, Transylvania. The appearance of the Seljuk Turks at the beginning of the 11th century, as well as some natural calamities started waves of refugees to the west (in 1060, 1064, 1239, 1319, 1342). The first Armenian colonies in Moldova predate the formation of the Principality of Moldova, probably dating from the 12th century. Armenian traders used the transit route from southern Poland, through Moldova, to the Black Sea. In the city of Cetatea Alba was discovered a tomb inscription in Armenian dating from 1174. In 1350 an Armenian church was built in Botosani. Moldovan voivodes invited Armenian merchants to contribute to the development of the Moldovan economy and cities. To this end, they were offered rights and privileges. In 1401 the enthronement of an Armenian bishop in Suceava was approved. Following the exemption of taxes and customs duties of Armenian merchants, in this city, at that time the capital of Moldova, 700 families settled. In 1418, 3000 more Armenian families were brought, who settled in 7 cities: Suceava, Iasi, Botosani, Dorohoi, Vaslui, Galati, Hotin. With the advance of the Ottoman Empire, more and more Armenians took refuge on the territory of Moldova. Under the reign of Stephen the Great, about 10,000 Armenians came to Moldova. In the 17th century, the entire trade of Moldova was concentrated in the hands of the Armenians, providing an important source of income for the state of Modova. In the centers with a large number of Armenians, they had the right to elect their own mayor. The city of Botosani was administered jointly by Romanians and Armenians, at first in equal numbers, then proportionally. In the years 1840-1850, the Armenian colony was reorganized. Thus the diocesan council, composed of five lay members, had both ecclesiastical and secular attributions: opening new schools, resolving disputes between Armenians, administering the property of the colony, etc.At the beginning of the 19th century, Armenian public schools appeared in Iasi, Roman (1841). According to tradition, the first Roman wooden church was the one bought by the Armenians from the Saxons, around 1335. According to research, in Roman at the beginning of the seventeenth century there were over 500 Armenian families who built their first stone church between 1558-1609. In the second half of the century the Armenians restored and enlarged the stone church from the beginning of the 17th century, which was shaped like a ship, without the bell tower, the tower on the nave and the side annexes. These added now gave it the shape of a cross. The architect Johan Brandel of Daggendorf from Bavaria, drew up the project and led the works of enlargement and renovation of this church in neoclassical style, at the expense of the Armenian faithful Donica Simionovici, having an estate at Simionești-Cordun and Teodor Solomon, with an estate at Butnărești-Roman, how he speaks is the inscription fixed on the north wall. At the end of its restoration works, a white marble basorelief of high artistic value sat on the frontispiece of the church, above the main entrance, which reproduces with great finesse the sculpted icon of the Dormition and Ascension of the Mother of God, the historical patron saint of the church, on one side and on the other a bilingual Armenian-Romanian inscription. The iconostasis of the church was made by local Romanian craftsmen in 1830, made of linden wood carved in a perforated lacework. Carved deacon doors and pierced have two medallions, on the left the Holy Apostle Peter with the keys in his hands and on the right the Holy Apostle Paul, with the gospel of the Gentiles in his right hand and the sword of the Spirit in his left hand, with carved laurel leaves above, as a sign of the victory of the preaching of the gospel to all nations. The pictorial register of the iconostasis comprises a series of particularly expressive medallions arranged in a logico-theological way, leading the eye of the mind on the path of the history of salvation. On the iconostasis are painted St. Gregory the Illuminator, the first bishop of Armenia and the one who baptized the Armenians, and St. James, the brother of the Lord, the first bishop of the church in Jerusalem and author of the Eastern liturgy, still used by the Armenians. The holy altar is small; there is no mural here. The Holy Table is completed to the east with an icon of the Mother of God. The chosen colour was lime, in the same tone as the iconostasis.

PARKING SPACES
HOUSING ENTRANCE
21. CHURCH ANNEX 22. HOUSING HALLWAY 23. EXHIBITION
PORTICO WITH BENCH

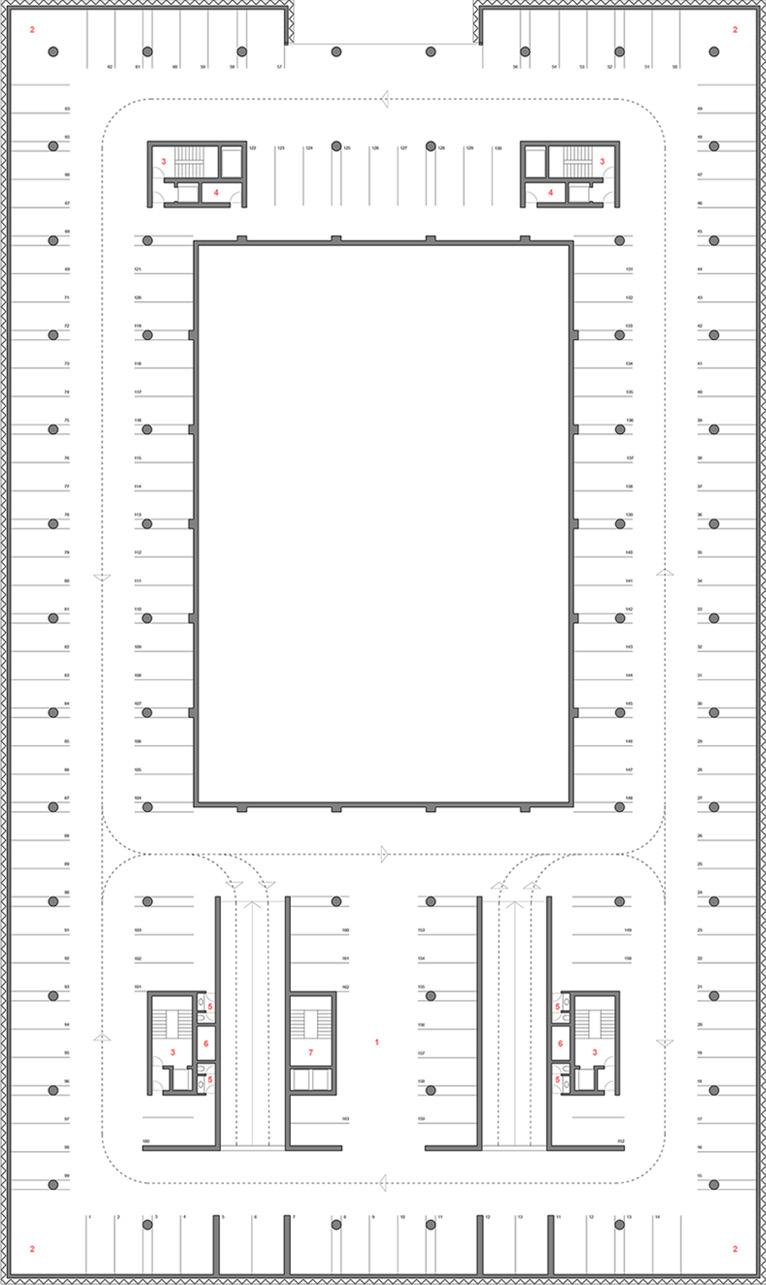
First floor plan 1:1000

legend:

LABORATORY
VERTICAL CIRCULATION
SANITARY FACILITIES
STORAGE
LABORATORY
PAINTING ROOM
ART CLASSROOM
CLASSROOM
MUSIC ROOM
STAIRCASE
SHARED TERRACE
HOUSING STAIRCASE
17. VENTILATION COURT
ARMENIAN CHURCH
BALCONY
HOUSING HALLWAY
Ensemble
Ensemble
Ensemble
Cuza Vodă str. rendition
Linking park alley
Eastern ensemble elevation 1:800
Western ensemble elevation 1:800
Northern ensemble elevation 1:800
Southern ensemble elevation 1:800
Park ensemble rendition
Veronica Micle str. ensemble view

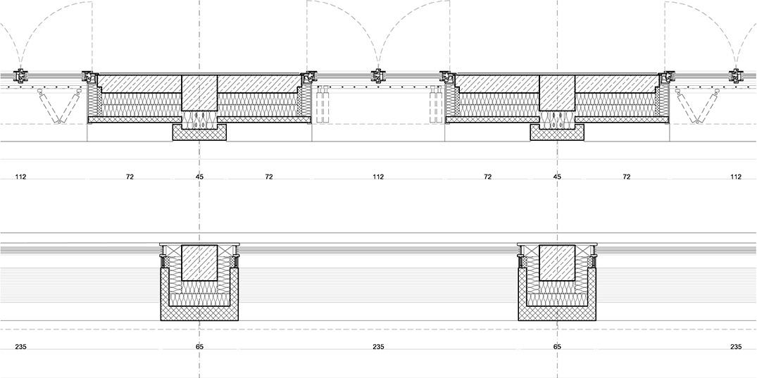
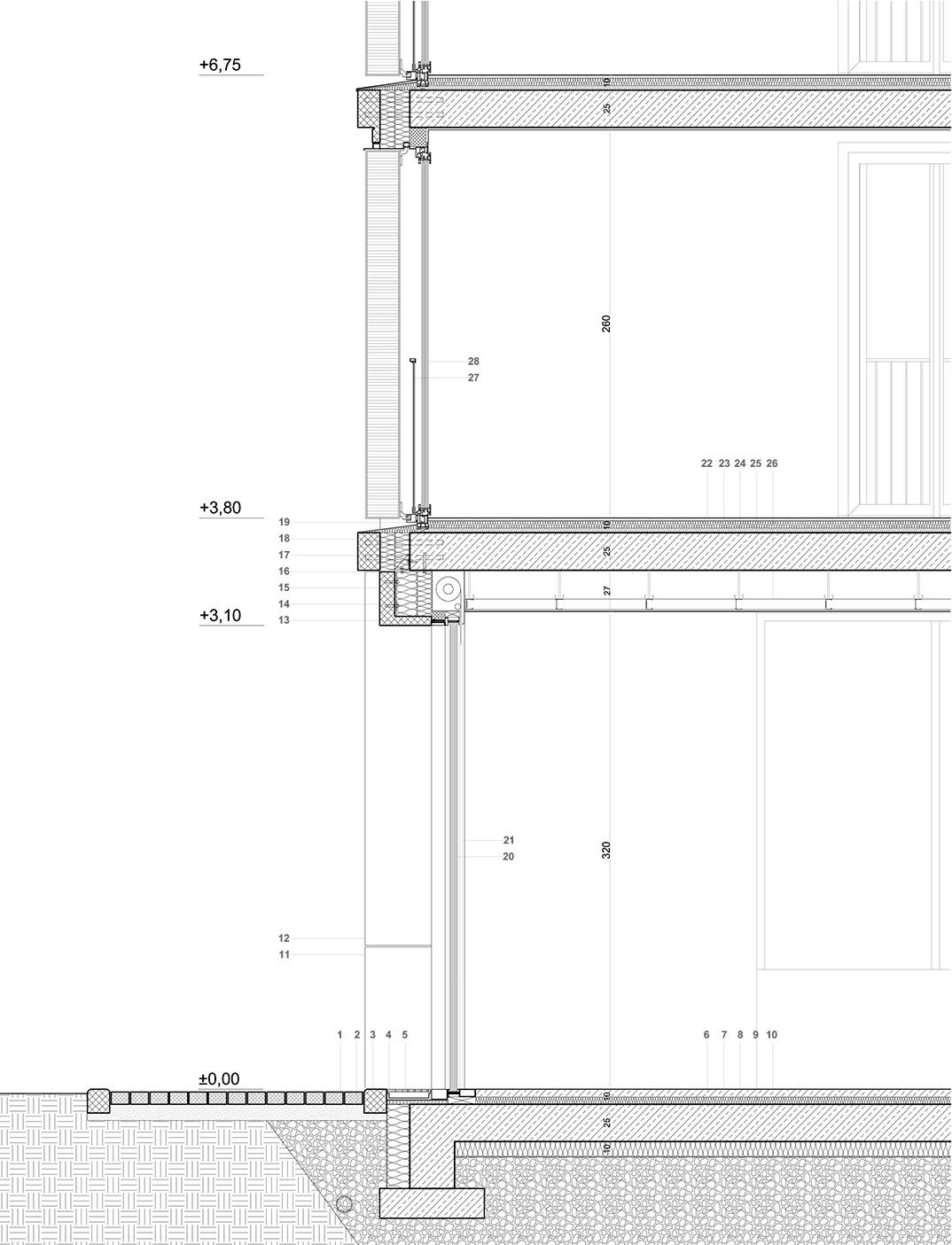
1 - 8CM COBBLESTONE PAVEMENT

2 - LEVELING SAND BED 3 - PREFABRICATED ALLEY CURB 4 - 30CM GALVANIZED STEEL GUTTER

5 - HIGH DENSITYTHERMAL INSULATON

6 - TROWEL-FINISHED CEMENT SCREED 7 - 3CM EXTRUDED POLYSTYRENE THERMAL INSULATION 8 - 25CM REINFORCED CONCRETE SLAB

- 10CM MINERAL WOOL

INSULATION

- GEOCELL GLASS FOAM BED

- 3CM NATURAL STONE CLADDING

- GLASS FIBER REINFORCED

CONCRETE COLUMN

- GLASS FIBER REINFORCED

CONCRETE L-PROFILE

- 10+15CM MINERAL WOOL

- STAINLESS STEEL ANCHORS

- GLASS FIBER REINFORCED

CONCRETE BEAM 19 - 2MM SHEET ALUMINUM CAP COATED RAL 9006 20 - ALUMINUM FRAME COATED RAL 9006 TRIPLE LAMINATED GLASS 21 - ROLLER BLIND GUIDES

- LAMINATED WOOD PARQUET 23 - 5CM EXTRUDED

INSULATION 16 - GALVANIZED STEEL L PROFILE WITH THERMAL BREAK

Courtyard perspective
Portico
Exhibition view

Turn static files into dynamic content formats.

Create a flipbook