STEPHEN MCCANN 20202023
+1 845.803.1678 spmccann23@gmail.com
![]()
+1 845.803.1678 spmccann23@gmail.com

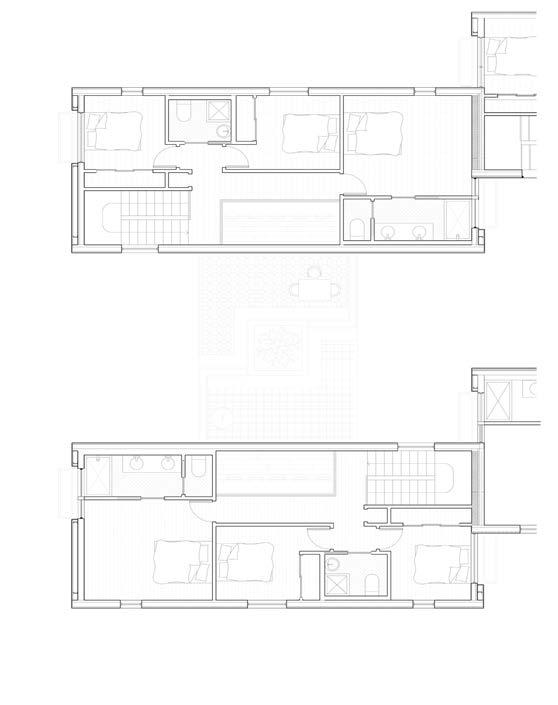
109 W 57th St: The New Neighbor Advanced Studio Spring 2022
Critic: Kyriakos Kyriakou Team: Alexis Carreon
Real estate speculation is paramount to New York City’s condominium metabolism, and supertalls are its most recent champions. In the year 2022, two supertalls on W 57th were completed. One, 111 W 57th St, offered 60 residential units, 46 of which in a pencil tower topping at 1428’. 111 W 57th St was developed by JDS Development Group and designed by SHoP Architects and Studio Sofield. The other, 109 W 57th St, rivaled its neighbor’s height at 1330’ and offered 27 residential ‘skyplots’. The city of New York designed and developed this supertall to establish new land rights in manhattan. This project explores the consequences of real estate speculation at its most extreme, where boundaries of sky become sovereign plots, allowing the owner’s fantasies and profits to grow unimpeded.




Board Member 1 (BM1): 10 years, it’s taken us ten years to complete 111 w 57th St. This is a mess. Have your marble contractors shown up yet?
Board Member 2 (BM2): No, I have no idea where they’re at. They said “some job is holding them up”. We know which job. I’ll keep bugging them, we need to finish the interiors now. Like now. Any chance we’re still in the race with 109?
BM1: No, it’s too late, I called John from the city, they sold the last one weeks ago.
BM2: What about all those blank lots where nothings getting built?
BM1: It’s just a piggy bank for now. A really expensive piggy bank.
BM2: And it only took the city a single year to finish it, how did they even manage that?
BM1: They got every concrete sub in the city, that’s how. They didn’t have to build much really, just had to run their structure up.
BM2: How cheap was that, do you think? With all of those air gaps, I’m sure they needed way less concrete than us. And they didn’t have to spend all that money on a mass tuned damper.
BM1: So much money on that mass tuned damper. What I’m hung up on though is how fast they sold, and how much money they made. The city said the profit would go to that new public space below and the affordable housing gap. But they made so much profit. Can you believe it? A blank floor plate, that’s what people in this city want?
BM2: I know, and we thought we were taking risks with 111. It took you so long to convince me that 15’ floor to floor penthouses would sell the building for more. But 40’ floor to floor? It’s ridiculous.
BM1: It’s genius. John said it was inspired by that trailer park out on Montauk that’s selling lots for millions of dollars. I guess their clients just want space, they don’t want anyone deciding what they’ll do with their land. Custom kingdoms. It’s feudal. You can build whatever you want with their structure: spas, vineyards, clubs, mansions, gardens. What would you build with a lot?
BM2: Oh god, hmm whatever I want. Did you hear someone was trying to park their yacht up there? Oh I don’t know, probably something just to get away for a while. I could use a backyard, but a $100 million backyard?
BM1: You might not but these are the richest people in the world. It’s not just the backyard you’re buying, that’s not what’s valuable, that’s what we forgot. It’s space. It’s post-human, it’s just development for development’s sake. Like Phoenix. They beat us at our own game. We’ve been trying to do the same thing for years, masking it in silk, velvet, and marble. But we’re not allowed to make new land like them.
BM2: But our clients love our interiors, isn’t that valuable in itself? We brought the best to this project, everyone wants a Sofield Studio apartment right now, everyone. They all lined up after the renders. A perfect view of Central Park. Isn’t that what all our clients want?
BM1: Sure but not what they need. They need a place for their money to grow, not subdivided floor plates with columns and mechanical systems already installed. It’s optimized. Like a capital machine.
BM2: Great. So how screwed are we? They have a machine. What do we have?
BM1: We still got a good building, it’ll all still sell. Just for less. I thought we had the whole block to ourselves for years…
BM2: They had to build right next to us? RIGHT. ON. TOP. OF. US.
BM1: They’re only blocking like one window a floor, at least they didn’t block our view of Central Park, it’s just a shear wall. I do wish we didn’t custom order 44 thousand pieces of terracotta.
BM2: About that. NDK is asking for all the money to be released to them.
BM1: Who are they again?
BM2: That terracotta company from Germany.
BM1: Oh yeah. All the way from Germany, now it’s all covered up.
BM2: Did John bring up his offer again?
BM1: Of course he did, he’ll pay them out if we give them the panels. Pretty insistent, its a low blow. First they cover up our facade, then they try to buy it from us to put it on their building.
BM2: It sounds like something we would do.
BM1: Probably. We did say the facade was a gift to the city, though I didn’t mean for it to be taken so literally. About your backyard, did you see that Parisian garden that is starting to be planted on one of the skyplots?
BM2: Yeah, I know the landscaper, kind of crazy getting that fountain up there for them.
BM1: Well turns out that the Russian prince who owns it is the same guy who bought our apartment next door. He tore out our glass and installed a backdoor to his skyplot.
BM2: I wonder if that’s gonna keep happening. I think the city aligned their floor plates with ours where they could.
BM1: Junior, that’s it! Maybe there is an opportunity here to rebrand. We need to piggyback on to this project in any way that we can: “109, 111’s backyard.”



























































































































































































































































































































































































































































































































































































































































Advanced Studio Spring 2023
Critic: Kevin Alter
Individual
The public space of Vancouver is primarily defined by the sea wall paths, beaches, and pocket parks along the shore of Vancouver Bay. These linear causeways define an episodic space, where nodal points of gathering offer a respite from the causeway’s velocity. A public intervention adds a third dimension to this matrix: time. As the public space has been pushed to the peripheral and hard-to-build upon tidal lanes, it is caught in between development and rising sea levels. In order to mark these shifts in ground, a series of public platforms are placed throughout Kitsilano Beach Park to act as a climatic ruler. The years 2025, 2050, 2075, and 2100 are recognizable sectional datums across the site. At the year 2100 datum, lightweight inhabitable lanterns are tied to the platforms to denote social spectacle and occasion. Slowly, as the water rises on the site, the public space and relationships between these platforms shift, expressing a further fragmentation of public life.














Iceland Volcano Lookout Point
Vertical Studio Fall 2021
Critic: Elizabeth Danze
Individual
This project was submitted as an entry for Bee-Breeders ‘Iceland Volcano Lookout Point’, a place for hikers to rest and remark on the rim trail of Hverfjall Volcano. This project seeks to recognize Hverfjall’s geologic history through simple extrusions from the trail’s edge. 7 Blades erupt from the hillside to act as vectors for hikers to extend themselves. The public space, the nook of a collision, uses this datum to highlight a descent into the crater.

Mound.
Formal extrusion to highlight the volcanic mound
Section extrusions as striations
Rotate.
Create public and private space through seperation and collision



Bury Shards to acknowledge the lineage of Hverfjall






Critic: Martin Haettasch
Team: Claire Greene
This project explores the duality between private ownership and unit independence afforded by the spatial division of a party walls and the cohesive network created by their agglomeration. As both a part to a whole and a unique condition by its situation on the site, a unit becomes an agent of both individuality and collectivity. Above the ground floor, the party walls are rotated 90 degrees to loosen into a systemic employment of spatial division. This rotation subverts the single directionality of the typical rowhouse scheme and creates a weaving pattern of unit formation. This project breaks down the monotony of a typical rowhouse scheme with surprising moments of collectivity and sharedness while still preserving the integrity of the independent unit.












































































+1 845.803.1678
845.803.1678
spmccann23@gmail.com
University of Texas at Austin Austin, TX
Master of Architecture I Fall 2023, GPA: 3.85/4
Skidmore College
Saratoga Springs, NY
Bachelor of Arts in Biology
May 2015
Digital Rhinoceros, Revit, Archicad, AutoCad, Photoshop, Illustrator, Premiere Pro, After Effects, InDesign, Excel, Revu
Hand
Construction, Model Building, Sketching
Certifications
RMGA Natural Gas Technician
Wilderness First Responder
Registered Yoga Teacher (200 RYT)
Bronze Alpha Ro Chi Medal
University of Texas at Austin, 2024
+ Judged by the faculty of the school, this medal is presented to one graduate who has shown ability for leadership, performed willing service for the school, and who has promise of real professional merit through their attitude and personality.
Oglesby Prize
University of Texas at Austin, 2024
+ Nominated and chosen by the faculty, the Oglesby Prize is awarded to a Bachelor of Architecture or Mater of Architecture student based on merit in architectural design.
Design Excellence Nominee
University of Texas at Austin, 2021, 2022
Murray Legge Architecture//Legge Lewis Legge Intern, 2022 - 2023
Austin, TX
+ Design Intern focusing on schematic design and design development for large public art works and residential projects. Worked with a small team to produce concept packets, permit sets, physical models, site research, and client presentations.
Perkins Eastman
Intern, 2021
Chicago, IL
+ Perkins Eastman Chicago Intern mainly focusing on schematic development of hospitality and senior living projects. Prepared presentations, drawings, renderings, and publications for projects of various scales.
University of Texas at Austin
Teaching Assistant//Lecturer Interviewer//Exhibition Designer, 20212023
Austin, TX
+ Teaching assistant for City Architecture for Professor Daniel Koehler. Aided students in group research projects, grading, organizing, led exercises and discussions.
+ Teaching assistant for Construction I for Professor Aleksandra Jaeschke. Organized and performed lab assignments, grading, and student communication.
+ Student Interviewer for Jessen Lecture Series. Interviewed and participated in dialogue with renowned practicioners such as Herman Hertzberger and Coren Sharples (SHoP)
+ Exhibition design for Professor Martin Haettasch for his exhibition “Radical Middle Grounds”. Designed and constructed exhibition space for drawings, models, and presentations.
Urban Myth Construction
Assistant Superintendent, Carpenter, 2019 - 2020, 2024 Newburgh, NY
+ Brought onto a passive house project (PHIUS) in Newburgh, NY for site management, european door and window installation, interior framing, finish and general carpentry. Building awarded NYSERDA Building of Excellence October 2019.
Utah Community Action
Weatherization Crew Member, 2017 - 2018
Salt Lake City, UT
+ Performed weatherization and building diagnostics on low-income homes in the salt lake valley. Specific tasks include relevant diagnostics, blow and sprayed insulation, door and window installation, furnace and water heater installation, and general carpentry.